REF#CH-POLIH-001 / Вилa / Полихроно / Област Халкидики / Гърция / Продажба На картата
Спални
4
Бани
4
Паркоместа на открито
2
Тоалетни
1

Обща площ
175 м²
Площ на парцела
162 м²

Цена
1 100 000 €
2 151 413 лв.
2 151 413 лв.
Запитване за повече информация или оглед
Инфо пакет
Състояние
отлично
Обзавеждане
Кухн. бокс
Разстояния
Последна актуализация
28.05.2026 г.
Разстояния от имота до други важни обекти
- Център на града: 500 м
- : 85 км
Гледки от имота
- Гледка към вътрешен двор
- Гледка към морето
- Гледка към плаж
Административна информация за офертата
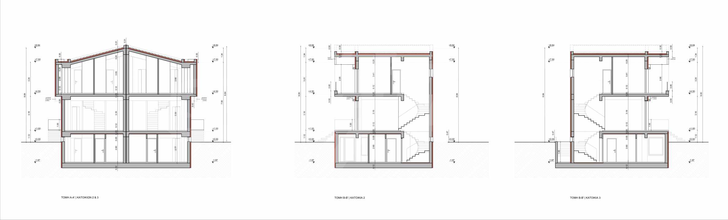
Предлагаме Ви, вила K-3, ново строителство, първа линия на морето с директен излаз на плажа, в Полихроно, Касандра, Халкидики. Вилата се отличава със своите модерен дизайн и архитектура, изчистени линии и функционалност.
Параметри:
● РЗП - 175 кв. м.;
● Дневна с кухненски бокс и трапезария;
● Спални - 4;
● Бани - 4;
● Двор - 162 кв. м.;
● Първа линия на морето
Разпределение:
● 1-во ниво, сутерен - 2 спални, 2 бани;
● 2-ро ниво, партер - дневна с кухня и трапезария, WC;
● 3-то ниво, 1-ви етаж - 2 спални, 2 бани
Параметри:
● РЗП - 175 кв. м.;
● Дневна с кухненски бокс и трапезария;
● Спални - 4;
● Бани - 4;
● Двор - 162 кв. м.;
● Първа линия на морето
Разпределение:
● 1-во ниво, сутерен - 2 спални, 2 бани;
● 2-ро ниво, партер - дневна с кухня и трапезария, WC;
● 3-то ниво, 1-ви етаж - 2 спални, 2 бани
Виж текста на други езици (автоматичен превод)
Местоположение (приблизително)
На картата с червен маркер е указано приблизителното местоположение на имота/комплекса.
Нашите топ оферти за продажба в Полихроно, Гърция

