REF#Kbs 139202 / Къща / с. Герман / Софийска област / България / Продажба На картата
Етажност на сградата
2
Асансьор
не
Стаи
4
Спални
3
Бани
3
Гаражи
2
Балкони (тераси) бр.:
2
Тоалетни
3

Площ на сградата
270 м²
Площ на парцела
250 м²
Запитване за повече информация или оглед
Инфо пакет
Състояние
отлично
Обзавеждане
Необзаведен
Отопление
Термопомпа
Климатик
Термопомпа
Разстояния
Последна актуализация
02.04.2026 г.
Разстояния от имота до други важни обекти
- Център на града: 20 км
- Sofia (SOF): 19 км
Гледки от имота
- Гледка към гора
- Гледка към града
- Гледка към парк
- Гледка към планината
Отопление
- Термопомпа
Климатизация
- Термопомпа
Административна информация за офертата
ГАЗИФИКАЦИЯ, ЕЛЕКТРИЧЕСТВО
- Електричество
ВОДОСНАБДЯВАНЕ
- Вода
КАНАЛИЗАЦИЯ
- Канализация
ФАСАДА
- вентилируема фасада
- декоративни фасадни елементи
САНИТАРНИ И СПОМАГАТЕЛНИ ПОМЕЩЕНИЯ
- Балкони
Модерен комплекс от къщи в с. Герман – съвършен баланс между град и природа.
Представяме Ви бутиков затворен комплекс от 36 модерни еднофамилни къщи, разположен в едно от най-предпочитаните направления край София – с. Герман. Локацията предлага отлична свързаност с града чрез Околовръстен път и Цариградско шосе, както и бърз достъп до Бизнес парк София. В същото време районът осигурява спокойствие, зеленина и близост до природни зони като Панчарево и Лозен планина.
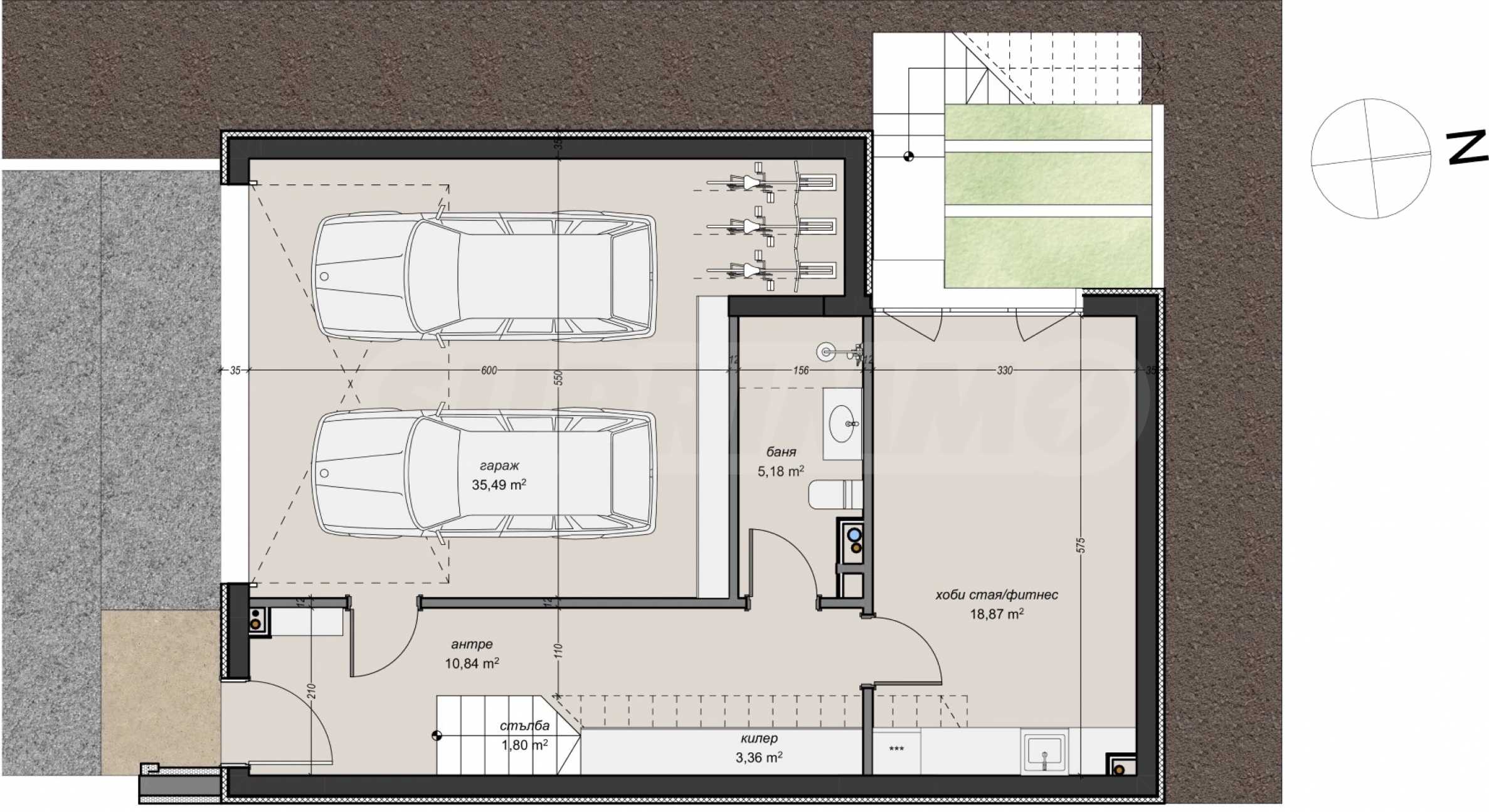
Конкретната оферта е за къща от 270 кв.м. с прилежащ двор от 250 кв.м. Състои се от просторен хол с веранда, 3 просторни спални, 2 тераси, 3 бани с тоалетни и двоен гараж с фитнес стая, която би могла да бъде и винарна или зона за развлечения.
Комплексът е проектиран с внимание към съвременния начин на живот, съчетавайки модерна архитектура, функционални вътрешни разпределения и усещане за простор и уединение.
Основни параметри:
• Общо къщи: 36;
• Свободни къщи: 21;
• Площи: от 313 кв.м до 720 кв.м;
• Разпределения: къщи с 3 и 4 спални;
• Етап: предварителни продажби;
• Очакван АКТ 16: 2029 г.
Цени:
• От 3500 € (≈ 6845 лв.) до 4000 € (≈ 7823 лв.) /кв.м.
Схема на плащане
• 30% при подписване на договор;
• 30% на етап Акт 14;
• 30% на етап Акт 15;
• 10% на етап Акт 16.
Предимства:
• Затворен комплекс с контрол на достъпа;
• Самостоятелни дворове към всяка къща;
• Висок клас строителство и материали;
• Съвременна визия и функционални пространства;
• Тиха и зелена среда, подходяща за семейства;
• Бърз достъп до ключови бизнес и търговски зони;
• Перспективна инвестиция с потенциал за покачване на стойността.
С. Герман се утвърждава като една от най-предпочитаните локации за живот в близост до София, благодарение на комбинацията от природа, спокойствие и удобен достъп до града.
Представяме Ви бутиков затворен комплекс от 36 модерни еднофамилни къщи, разположен в едно от най-предпочитаните направления край София – с. Герман. Локацията предлага отлична свързаност с града чрез Околовръстен път и Цариградско шосе, както и бърз достъп до Бизнес парк София. В същото време районът осигурява спокойствие, зеленина и близост до природни зони като Панчарево и Лозен планина.
Конкретната оферта е за къща от 270 кв.м. с прилежащ двор от 250 кв.м. Състои се от просторен хол с веранда, 3 просторни спални, 2 тераси, 3 бани с тоалетни и двоен гараж с фитнес стая, която би могла да бъде и винарна или зона за развлечения.
Комплексът е проектиран с внимание към съвременния начин на живот, съчетавайки модерна архитектура, функционални вътрешни разпределения и усещане за простор и уединение.
Основни параметри:
• Общо къщи: 36;
• Свободни къщи: 21;
• Площи: от 313 кв.м до 720 кв.м;
• Разпределения: къщи с 3 и 4 спални;
• Етап: предварителни продажби;
• Очакван АКТ 16: 2029 г.
Цени:
• От 3500 € (≈ 6845 лв.) до 4000 € (≈ 7823 лв.) /кв.м.
Схема на плащане
• 30% при подписване на договор;
• 30% на етап Акт 14;
• 30% на етап Акт 15;
• 10% на етап Акт 16.
Предимства:
• Затворен комплекс с контрол на достъпа;
• Самостоятелни дворове към всяка къща;
• Висок клас строителство и материали;
• Съвременна визия и функционални пространства;
• Тиха и зелена среда, подходяща за семейства;
• Бърз достъп до ключови бизнес и търговски зони;
• Перспективна инвестиция с потенциал за покачване на стойността.
С. Герман се утвърждава като една от най-предпочитаните локации за живот в близост до София, благодарение на комбинацията от природа, спокойствие и удобен достъп до града.
Виж текста на други езици (автоматичен превод)
Местоположение (приблизително)
На картата с червен маркер е указано приблизителното местоположение на имота/комплекса.
Нашите топ оферти за продажба в Герман, България


