Етажност на сградата
4
Етаж
1
Асансьор
да
Стаи
2
Спални
1
Бани
1
Балкони (тераси) бр.:
1

Обща площ
73.92 м²
Застроена площ
63.87 м²
Общи части
10.05 м²
Градина
11.70 м²
Състояние
В процес на строителство
Планирано завършване
Май 2027

Цена
80 500 €
157 444 лв.
157 444 лв.
1 089 €/м²
2 130 лв./м²
2 130 лв./м²
Без такса поддръжка
Без комисиона от купувача
Запитване за повече информация или оглед
Инфо пакет
Разстояния
Последна актуализация
01.04.2026 г.
Разстояния от имота до други важни обекти
- Морето: 800 м
- Burgas (BOJ): 44 км
Строителство
- Тухла
Административна информация за офертата
ГАЗИФИКАЦИЯ, ЕЛЕКТРИЧЕСТВО
- Електричество
ВОДОСНАБДЯВАНЕ
- Водоснабдяване
КАНАЛИЗАЦИЯ
- Канализация
ФАСАДА
- външна изолация
ВИД НА ОБЩИТЕ ЧАСТИ
- гранитогресни плочки
САНИТАРНИ И СПОМАГАТЕЛНИ ПОМЕЩЕНИЯ
- Балкон
- Баня с тоалетна
ИЗОЛАЦИИ И ДОВЪРШИТЕЛНИ РАБОТИ
- PVC дограма
- Външна изолация
- На шпакловка и замазка
ЕКСТРИ В СГРАДАТА
- Асансьор
ДВОР И ГРАДИНА
- Двор
ДОСТЪП ДО ИМОТА И ТЕЛЕКОМУНИКАЦИИ
- Асфалтиран път
ДРУГИ
- В жилищна сграда
- Магазин за хранителни стоки в близост
Представяме за продажба двустаен апартамент в нова сграда с лимитиран брой апартаменти, с удобна локация само на 10 минути пеша от плаж Харманите, в новата част на град Созопол. Сградата е разположена на естествен хълм, с бърз и лесен достъп и до центъра на града.
В ПРОЦЕС НА СТРОИТЕЛСТВО.
Очакван Акт 16 - май 2027 г.
Покупка без комисиона!
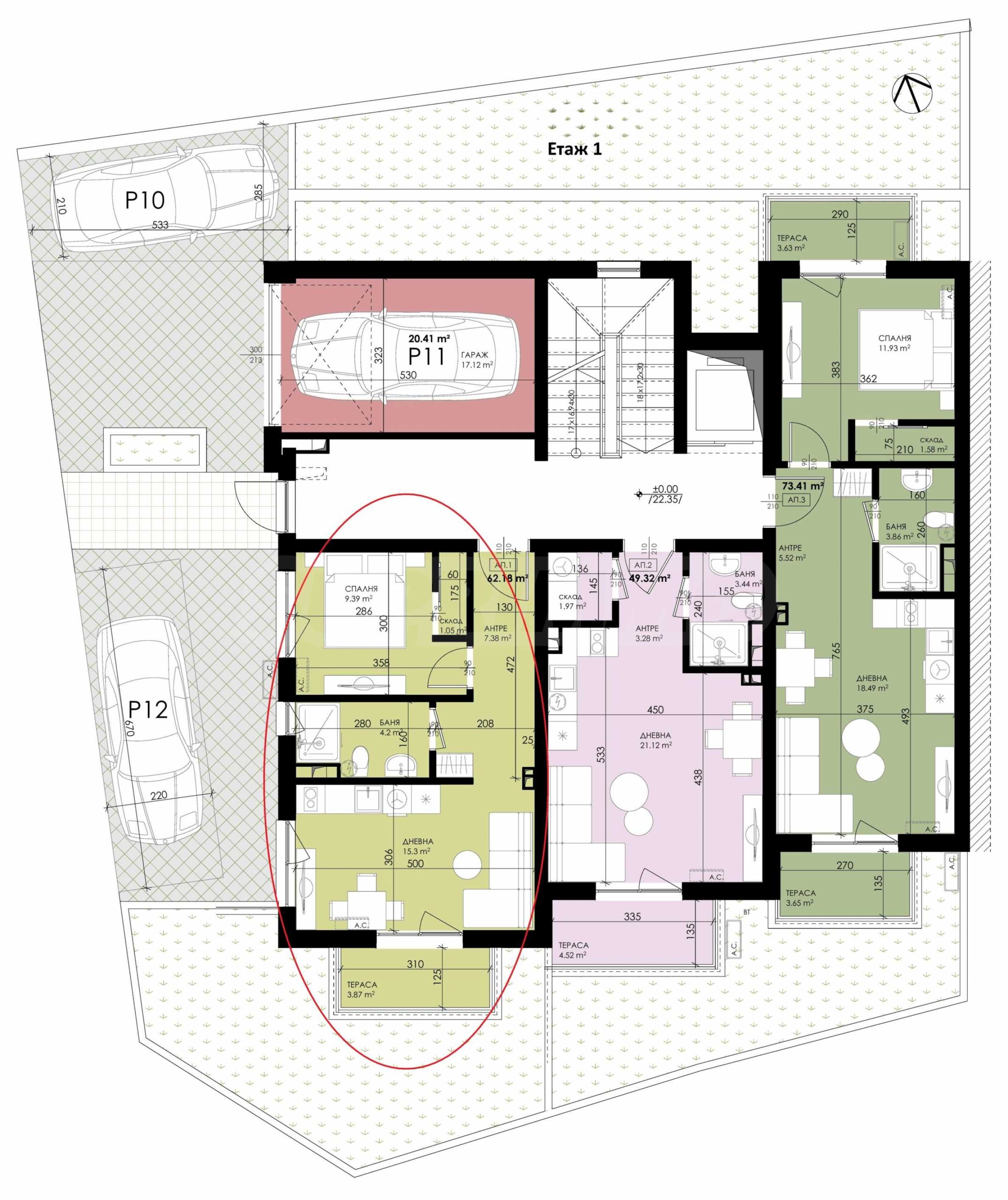
Имотът е с обща площ от 73,92 кв.м, разположен на първи етаж, със собствен двор с площ от 11,70 кв.м и изложение юг/запад.
Разпределение:
• антре;
• дневна с кухня;
• спалня;
• баня с тоалет;
• тераса.
Издава се в степен на завършеност по БДС:
• входни блиндирани врати;
• ЕЛ: контакти , без осветителни тела;
• ВиК: до тапа;
• стени: вътрешна мазилка;
• под: циментова замазка;
• тавани: шпакловка.
Качествено строителство:
• фасада: EPS топлоизолационен пакет на Baumit;
• дограма: PVC 5 камерна;
• тераси: гранитогрес за външни условия.
• покривни тераси с XPS и хидроизолация, aлуминиев ажурен парапет;
• покриви: плоски с XPS, пароизолация, замазка с наклон и два пласта хидроизолация;
• общи части: стълбище от гранитогрес, алуминиев парапет;
• входни врати;
• ЕЛ: до ключ;
• ВиК: до тапа;
• вътрешна хастарна гипсова мазилка;
• под: изравнителна циментова замазка.
Без такса поддръжка.
Апартаментите са разпределени на 4-ри нива в сградата, с достъп със съвременен асансьор. Имотите от по-високите етажи имат панорамна гледка към града, морето и зеленината на местността. В продажба са просторни студиа и двустайни жилища с площ от 48,95 кв.м до 108,31 кв.м, както и открити и закрити паркоместа.
Има опция и за закупуването на паркоместа.
Очакваме Вашето запитване
Ако желаете да организирате оглед на имот, който Ви интересува, или да посетите някой от нашите офиси, моля свържете се с нас. За да уговорите ден и час за среща или оглед, можете да се обадите на посочения в обявата телефон или да изпратите запитване чрез електронната поща. Нашият консултант ще Ви съдейства с всички необходими подробности и ще уговори удобно за Вас време.
Търсите подходящия за Вас имот?
Не се колебайте да се свържете с нас и да ни разкажете за Вашите нужди и предпочитания. Нашият екип ще проведе задълбочено проучване на пазара, за да Ви предложи имоти, които точно отговарят на Вашите критерии. Разполагаме с изключително портфолио от висококачествени и ексклузивни жилища, които са достъпни само за нашите клиенти. За да сте първите, които ще получите информация за тях – свържете се с нас.
Допълнителни услуги
Като ценен клиент на нашата компания, Вие ще имате привилегията да ползвате напълно безплатно услугите на нашия опитен юридически екип. В допълнение, предлагаме комплексни решения, включващи имуществена застраховка, безплатна финансова консултация, както и изгодни условия за финансиране. Нашите услуги се разпростират и в сферата на препродажбата, отдаването под наем и управлението на имоти. Осигуряваме висококачествени ремонтни дейности и обзавеждане чрез специализирани фирми, които са част от нашата корпоративна група и са наши дългогодишни професионални партньори.
В ПРОЦЕС НА СТРОИТЕЛСТВО.
Очакван Акт 16 - май 2027 г.
Покупка без комисиона!
Имотът е с обща площ от 73,92 кв.м, разположен на първи етаж, със собствен двор с площ от 11,70 кв.м и изложение юг/запад.
Разпределение:
• антре;
• дневна с кухня;
• спалня;
• баня с тоалет;
• тераса.
Издава се в степен на завършеност по БДС:
• входни блиндирани врати;
• ЕЛ: контакти , без осветителни тела;
• ВиК: до тапа;
• стени: вътрешна мазилка;
• под: циментова замазка;
• тавани: шпакловка.
Качествено строителство:
• фасада: EPS топлоизолационен пакет на Baumit;
• дограма: PVC 5 камерна;
• тераси: гранитогрес за външни условия.
• покривни тераси с XPS и хидроизолация, aлуминиев ажурен парапет;
• покриви: плоски с XPS, пароизолация, замазка с наклон и два пласта хидроизолация;
• общи части: стълбище от гранитогрес, алуминиев парапет;
• входни врати;
• ЕЛ: до ключ;
• ВиК: до тапа;
• вътрешна хастарна гипсова мазилка;
• под: изравнителна циментова замазка.
Без такса поддръжка.
Апартаментите са разпределени на 4-ри нива в сградата, с достъп със съвременен асансьор. Имотите от по-високите етажи имат панорамна гледка към града, морето и зеленината на местността. В продажба са просторни студиа и двустайни жилища с площ от 48,95 кв.м до 108,31 кв.м, както и открити и закрити паркоместа.
Има опция и за закупуването на паркоместа.
Очакваме Вашето запитване
Ако желаете да организирате оглед на имот, който Ви интересува, или да посетите някой от нашите офиси, моля свържете се с нас. За да уговорите ден и час за среща или оглед, можете да се обадите на посочения в обявата телефон или да изпратите запитване чрез електронната поща. Нашият консултант ще Ви съдейства с всички необходими подробности и ще уговори удобно за Вас време.
Търсите подходящия за Вас имот?
Не се колебайте да се свържете с нас и да ни разкажете за Вашите нужди и предпочитания. Нашият екип ще проведе задълбочено проучване на пазара, за да Ви предложи имоти, които точно отговарят на Вашите критерии. Разполагаме с изключително портфолио от висококачествени и ексклузивни жилища, които са достъпни само за нашите клиенти. За да сте първите, които ще получите информация за тях – свържете се с нас.
Допълнителни услуги
Като ценен клиент на нашата компания, Вие ще имате привилегията да ползвате напълно безплатно услугите на нашия опитен юридически екип. В допълнение, предлагаме комплексни решения, включващи имуществена застраховка, безплатна финансова консултация, както и изгодни условия за финансиране. Нашите услуги се разпростират и в сферата на препродажбата, отдаването под наем и управлението на имоти. Осигуряваме висококачествени ремонтни дейности и обзавеждане чрез специализирани фирми, които са част от нашата корпоративна група и са наши дългогодишни професионални партньори.
Виж текста на други езици (автоматичен превод)
Местоположение (приблизително)
На картата с червен маркер е указано приблизителното местоположение на имота/комплекса.
Схема на плащане
5000 евро СТОП капаро;
Първа вноска – 30% при подписване на предварителен договор;
Втора вноска – 30% при Акт 14;
Трета вноска – 30% при Акт 15;
Четвърта вноска – 10% при Акт 16.
Нашите топ оферти за продажба в Созопол, България

