REF#CH-GR-139048 / Четиристаен апартамент / Kavala / Област Кавала / Гърция / Продажба На картата
Клас на сградата/комплекса
Стандартен
Етажност на сградата
5
Етаж
4
Асансьор
да
Стаи
4
Спални
3
Бани
3
Паркоместа на открито
1
Балкони (тераси) бр.:
3
Тоалетни
1

Обща площ
150.68 м²
Състояние
В процес на строителство
Планирано завършване
Май 2029

Цена
Цена по запитване
Без комисиона от купувача
Запитване за повече информация или оглед
Инфо пакет
Състояние
до ключ (полуобзаведен)
Обзавеждане
Завършени кухня и баня
Бани
Оборудвана баня
Подове
Подове с паркет, Подове с теракот
Разстояния
Последна актуализация
12.04.2026 г.
Разстояния от имота до други важни обекти
- Морето: 100 м
- Център на града: 2 км
- Kavala (KVA): 30 км
Гледки от имота
- Гледка към морето
Строителство
- Изцяло обновена сграда
- Реставрирана сграда
Административна информация за офертата
ПОКРИВ
- плосък покрив
САНИТАРНИ И СПОМАГАТЕЛНИ ПОМЕЩЕНИЯ
- Балкони
- Баня с тоалетна
ИЗОЛАЦИИ И ДОВЪРШИТЕЛНИ РАБОТИ
- PVC дограма
- Блиндирана входна врата
- Интериорни врати
- Подове с паркет
- Подове с теракот
- Стени боядисани с латекс
ОБЗАВЕЖДАНЕ И ОБОРУДВАНЕ
- Вградена кухня
- Оборудвана баня
ЕКСТРИ В СГРАДАТА
- Басейн
Представяме Ви четиристаен апартамент в Beyond – впечатляващ проект, реализиран чрез пълната реставрация на бивша сладоледена фабрика в Кавала, разположена само на крачки от морето. Концепцията на проекта е да вдъхне нов живот на индустриалното наследство, като го трансформира в модерна жилищна среда с високо качество и съвременен комфорт. Освен просторни жилища, сградата ще предлага внимателно подбрани удобства, допълващи усещането за живот край морето.
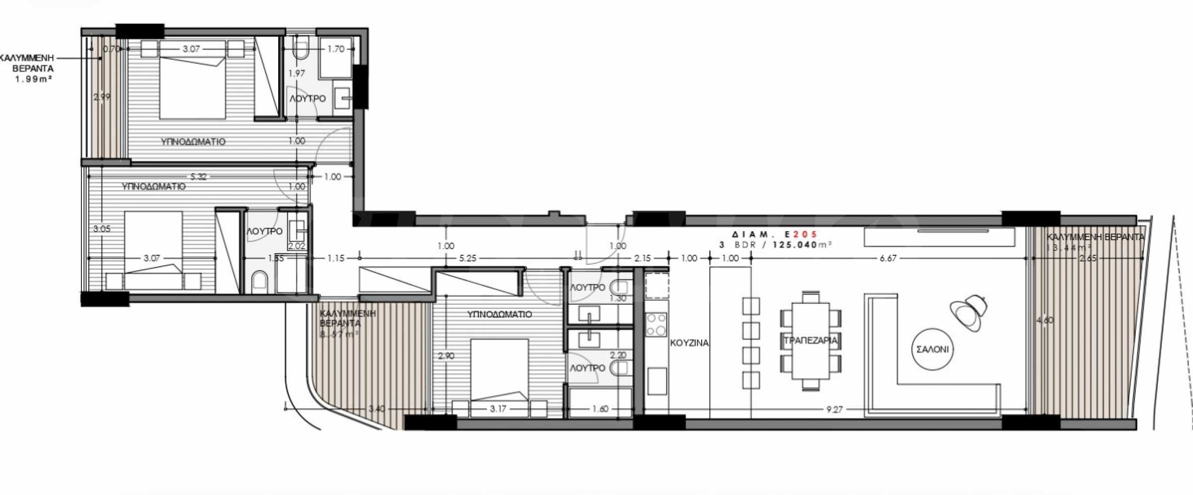
Апартаментът, който представяме, е с обща площ от 150.68 кв.м и се намира на четвъртия етаж. Разпределението включва светла и просторна дневна с кухня и трапезария, три спални, всяка със собствена баня, отделна тоалетна за гости, както и три тераси, предлагащи разнообразни гледки и възможности за отдих.
Престижна локация с голям потенциал
Кавала е очарователен крайбрежен град, който съчетава богато културно наследство, забележителна архитектура и живописна плажна ивица. Районът предлага едни от най-красивите плажове – Амос, Батис, Тоска и Палио, отличаващи се с кристални води и фин златист пясък. Крайбрежието е изпълнено с уютни заведения и ресторанти, предлагащи панорамни гледки, където можете да се насладите на прясна средиземноморска кухня или освежаващо гръцко фрапе.
Сградата е ситуирана на ключова централна локация, на по-малко от 100 метра от морето. Освен красиви гледки към крайбрежието, тя осигурява бърз достъп до централната градска част, както и до множество удобства – магазини, ресторанти, аптеки и търговски обекти, които правят ежедневието по-лесно и приятно.
Градът предлага богато разнообразие от културни и исторически забележителности, сред които впечатляващият Акведукт, автентичният Стар град и домът на Мохамед Али – всяка от тях носеща духа на различни исторически епохи. Кавала е не само предпочитана туристическа дестинация, но и отлично място за постоянно живеене, благодарение на добре развитата инфраструктура и целогодишно функциониращите услуги.
За Beyond
След цялостното обновяване сградата ще се отличава с изцяло нова, модерна визия, вдъхновена от съвременните архитектурни тенденции. Характерните извити линии и стилните декоративни елементи по фасадата ще придадат на проекта отличителен облик в крайбрежния силует. Вграденото фасадно осветление ще подчертава архитектурните детайли и ще създава впечатляваща атмосфера през нощта.
В сградата са проектирани тристайни, четиристайни и петстайни апартаменти с добре обмислени разпределения и изчистена визия, отговарящи на изискванията на съвременния начин на живот. Жилищата ще се предлагат завършени „до ключ“ – с висок клас врати, подови настилки, осветление, напълно оборудвани кухни и елегантно завършени бани. Използваните материали са с доказано качество и дълготрайност, като предоставят отлична основа за персонализиране на интериора според индивидуалния стил на бъдещите собственици.
Като допълнение към удобствата в жилищата, проектът предлага и селекция от общи пространства, създадени да обогатят усещането за комфорт и морски начин на живот. На разположение ще бъдат басейн със зони за релакс, обособени барбекю пространства и елегантни перголи с места за хранене на открито – идеални за споделени моменти с близки, съпроводени от морски гледки и свеж бриз.
Свържете се с нас за повече информация и професионална консултация.
Апартаментът, който представяме, е с обща площ от 150.68 кв.м и се намира на четвъртия етаж. Разпределението включва светла и просторна дневна с кухня и трапезария, три спални, всяка със собствена баня, отделна тоалетна за гости, както и три тераси, предлагащи разнообразни гледки и възможности за отдих.
Престижна локация с голям потенциал
Кавала е очарователен крайбрежен град, който съчетава богато културно наследство, забележителна архитектура и живописна плажна ивица. Районът предлага едни от най-красивите плажове – Амос, Батис, Тоска и Палио, отличаващи се с кристални води и фин златист пясък. Крайбрежието е изпълнено с уютни заведения и ресторанти, предлагащи панорамни гледки, където можете да се насладите на прясна средиземноморска кухня или освежаващо гръцко фрапе.
Сградата е ситуирана на ключова централна локация, на по-малко от 100 метра от морето. Освен красиви гледки към крайбрежието, тя осигурява бърз достъп до централната градска част, както и до множество удобства – магазини, ресторанти, аптеки и търговски обекти, които правят ежедневието по-лесно и приятно.
Градът предлага богато разнообразие от културни и исторически забележителности, сред които впечатляващият Акведукт, автентичният Стар град и домът на Мохамед Али – всяка от тях носеща духа на различни исторически епохи. Кавала е не само предпочитана туристическа дестинация, но и отлично място за постоянно живеене, благодарение на добре развитата инфраструктура и целогодишно функциониращите услуги.
За Beyond
След цялостното обновяване сградата ще се отличава с изцяло нова, модерна визия, вдъхновена от съвременните архитектурни тенденции. Характерните извити линии и стилните декоративни елементи по фасадата ще придадат на проекта отличителен облик в крайбрежния силует. Вграденото фасадно осветление ще подчертава архитектурните детайли и ще създава впечатляваща атмосфера през нощта.
В сградата са проектирани тристайни, четиристайни и петстайни апартаменти с добре обмислени разпределения и изчистена визия, отговарящи на изискванията на съвременния начин на живот. Жилищата ще се предлагат завършени „до ключ“ – с висок клас врати, подови настилки, осветление, напълно оборудвани кухни и елегантно завършени бани. Използваните материали са с доказано качество и дълготрайност, като предоставят отлична основа за персонализиране на интериора според индивидуалния стил на бъдещите собственици.
Като допълнение към удобствата в жилищата, проектът предлага и селекция от общи пространства, създадени да обогатят усещането за комфорт и морски начин на живот. На разположение ще бъдат басейн със зони за релакс, обособени барбекю пространства и елегантни перголи с места за хранене на открито – идеални за споделени моменти с близки, съпроводени от морски гледки и свеж бриз.
Свържете се с нас за повече информация и професионална консултация.
Виж текста на други езици (автоматичен превод)
Местоположение (приблизително)
На картата с червен маркер е указано приблизителното местоположение на имота/комплекса.
Нашите топ оферти за продажба в Kavala, Гърция

