Етажност на сградата
5
Етаж
4
Асансьор
да
Стаи
2
Спални
1
Бани
1
Площ на балконите (терасите)
3.31 м²
Балкони (тераси) бр.:
1
Мазе/склад
да
Мазе (площ)
3.05 м²

Обща площ
65.78 м²
Застроена площ
54.98 м²
Общи части
10.80 м²
Тераса
3.31 м²
Запитване за повече информация или оглед
Инфо пакет
Разстояния
Последна актуализация
09.12.2025 г.
Разстояния от имота до други важни обекти
- Център на града: 1.1 км
- Plovdiv (PDV): 15.2 км
Гледки от имота
- Гледка към града
Строителство
- Стоманобетонна конструкция
- Тухла
Административна информация за офертата
ГАЗИФИКАЦИЯ, ЕЛЕКТРИЧЕСТВО
- Електричество
ВОДОСНАБДЯВАНЕ
- Вода
- Водоснабдяване
АСАНСЬОРИ
- автоматични врати
- луксозни асансьори
КАНАЛИЗАЦИЯ
- Канализация
ФАСАДА
- вентилируема фасада
- външна изолация
САНИТАРНИ И СПОМАГАТЕЛНИ ПОМЕЩЕНИЯ
- Балкон
- Баня с тоалетна
ИЗОЛАЦИИ И ДОВЪРШИТЕЛНИ РАБОТИ
- Алуминиева дограма
- Блиндирана входна врата
- Външна изолация
- Вътрешна изолация
- На шпакловка и замазка
ЕКСТРИ В СГРАДАТА
- Асансьор
ДВОР И ГРАДИНА
- Поддържан двор
ДРУГИ
- Магазин за хранителни стоки в близост
Представяме двустаен апартамент ново строителство в центъра на Пловдив - кв. "Каменица 1". Отлично местоположение на пешеходно разстояние от Стария град, Капана и забележителностите на града. Интелигентен избор за всеки, който търси дом или имот с отлична локация, удобна инфраструктура.
Сградата е в процес на строеж, a Акт 16 e предвиден през 2027 г.
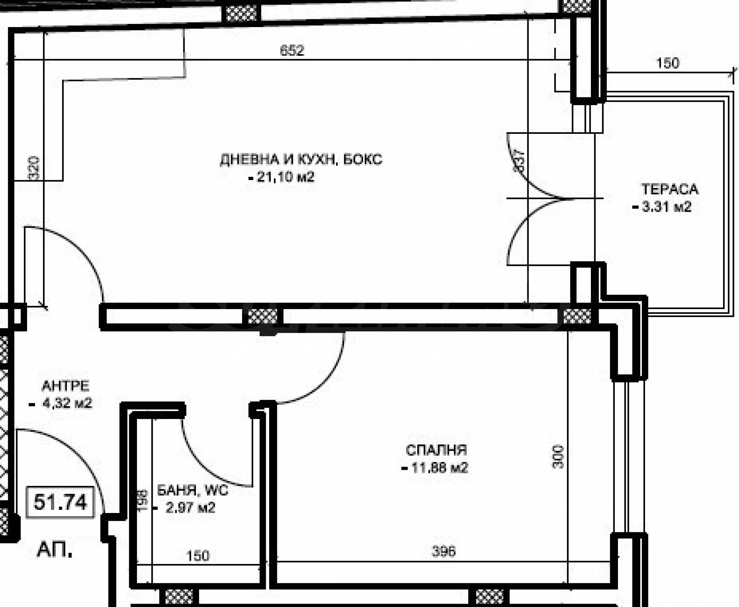
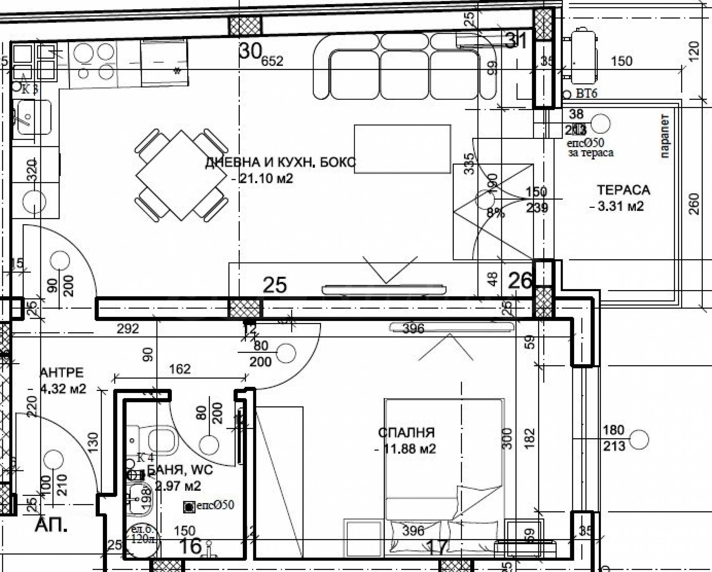
Имотът с обща площ от 65.78 кв.м се намира на 4-ти етаж от 5, с изложение изток и има следното разпределение:
• антре - 4.32 кв.м;
• всекидневна с кухненски бокс - 21.10 кв.м;
• спалня - 11.88 кв.м;
• баня и тоалетна - 2.97 кв.м;
• тераса - 3.31 кв.м.
• склад - 3.05 кв.м.
Предимства:
• топ локация в центъра на града;
• модерна сграда;
• отлична възможност за инвестиция или собствен дом.
Жилището се предава в степен на завършеност по БДС, спрямо най-добрия строителен стандарт и характеристики. Външният вид на сградата е с елегантен архитектурен облик, отговарящ на изискванията за съвременен дизайн и функционалност, с асансьор и контролиран достъп.
Технически характеристики:
• ефективна топлоизолация с плоскости от XPS и каменна вата с дебелина от 10 см;
• външна облицовка от широкоформатен гранитогрес и водоотблъскваща мазилка;
• машинно шпакловани стени и тавани - гипсова мазилка;
• подове - шумоизолация и циментова уравнителна замазка;
• Ел. и ВиК инсталации;
• окабеляване;
• фасадна дограма – висок клас луксозна алуминиева дограма с прекъснат термомост /марка Reynaers Aluminiumс или Schüco /, с 2 двукамерен стъклопакет с 3 три стъкла;
• тераси – под - гранитогрес, парапет – по проект;
• външна врата – монтирана метална /блиндирана/ входна врата с брава;
• висок клас луксозен безшумен пътнически асансьор марка Орона.
За повече информация, моля свържете се с нас.
Сградата е в процес на строеж, a Акт 16 e предвиден през 2027 г.
Имотът с обща площ от 65.78 кв.м се намира на 4-ти етаж от 5, с изложение изток и има следното разпределение:
• антре - 4.32 кв.м;
• всекидневна с кухненски бокс - 21.10 кв.м;
• спалня - 11.88 кв.м;
• баня и тоалетна - 2.97 кв.м;
• тераса - 3.31 кв.м.
• склад - 3.05 кв.м.
Предимства:
• топ локация в центъра на града;
• модерна сграда;
• отлична възможност за инвестиция или собствен дом.
Жилището се предава в степен на завършеност по БДС, спрямо най-добрия строителен стандарт и характеристики. Външният вид на сградата е с елегантен архитектурен облик, отговарящ на изискванията за съвременен дизайн и функционалност, с асансьор и контролиран достъп.
Технически характеристики:
• ефективна топлоизолация с плоскости от XPS и каменна вата с дебелина от 10 см;
• външна облицовка от широкоформатен гранитогрес и водоотблъскваща мазилка;
• машинно шпакловани стени и тавани - гипсова мазилка;
• подове - шумоизолация и циментова уравнителна замазка;
• Ел. и ВиК инсталации;
• окабеляване;
• фасадна дограма – висок клас луксозна алуминиева дограма с прекъснат термомост /марка Reynaers Aluminiumс или Schüco /, с 2 двукамерен стъклопакет с 3 три стъкла;
• тераси – под - гранитогрес, парапет – по проект;
• външна врата – монтирана метална /блиндирана/ входна врата с брава;
• висок клас луксозен безшумен пътнически асансьор марка Орона.
За повече информация, моля свържете се с нас.
Виж текста на други езици (автоматичен превод)
Местоположение (приблизително)
На картата с червен маркер е указано приблизителното местоположение на имота/комплекса.
Нашите топ оферти за продажба в Пловдив, България
Имоти по тип, Пловдив
- Тристайни апартаменти в Пловдив
- Двустайни апартаменти в Пловдив
- Апартаменти (различни типове) в Пловдив
- Четиристайни апартаменти в Пловдив
- Къщи в Пловдив
- Едностайни апартаменти в Пловдив
- Магазини в Пловдив
- Земеделски земи в Пловдив
- Петстайни апартаменти в Пловдив
- Парцели за инвестиция в Пловдив
Популярни търсения
- Селски къщи в България
- Имоти за продажба в Пловдив
- Имоти в Пловдив
- Имоти под наем в Пловдив
- Тристайни апартаменти за продажба в Пловдив
- Двустайни апартаменти за продажба в Пловдив
- Къщи за продажба в Пловдив
- Имоти за продажба в кв.Център, Пловдив
- Едностайни апартаменти за продажба в Пловдив
- Имоти за продажба в кв.Христо Смирненски, Пловдив


