Клас на сградата/комплекса
Стандартен
Етажност на сградата
9
Етаж
8
Асансьор
да
Стаи
3
Спални
2
Бани
2
Балкони (тераси) бр.:
1

Обща площ
100.01 м²
Застроена площ
86.56 м²
Общи части
13.45 м²
Състояние
Предварителни продажби
Планирано начало
Юни 2026
Очаквано завършване
Декември 2029

Цена
165 019 €
322 749 лв.
322 749 лв.
1 650 €/м²
3 227 лв./м²
3 227 лв./м²
Без комисиона от купувача
Запитване за повече информация или оглед
Инфо пакет
Разстояния
Последна актуализация
12.03.2026 г.
Разстояния от имота до други важни обекти
- Център на града: 7.5 км
- Sofia (SOF): 15.3 км
Строителство
- Стоманобетонна конструкция
Отопление
- ТЕЦ
Административна информация за офертата
САНИТАРНИ И СПОМАГАТЕЛНИ ПОМЕЩЕНИЯ
- Балкон
- Баня с тоалетна
ИЗОЛАЦИИ И ДОВЪРШИТЕЛНИ РАБОТИ
- PVC дограма
- Блиндирана входна врата
- Външна изолация
- На шпакловка и замазка
- Троен стъклопакет
ЕКСТРИ В СГРАДАТА
- Асансьор
Представяме панорамен тристаен апартамент в Mountain View Obelya - ексклузивен жилищен комплекс с концепция за функционалност, комфорт и достъпност, с широк избор от практични нови жилища в бързо развиващия се кв. "Обеля 1". Бъдещите собственици на имота ще се насладят на спокойна и добре организирана среда с отлична логистика и лесен достъп до ключови части на столицата, озеленен вътрешен двор и разнообразие от търговски обекти в самия комплекс.
Само на 35 метра от метростанция, локацията осигурява бърз и лесен достъп до центъра на София, както и до главните пътни артерии и спирки на градския транспорт. Районът предлага всички необходими удобства за комфортен живот – търговски обекти, училища, детски градини, спортни комплекси и здравни заведения в непосредствена близост.
ЕКСКЛУЗИВНИ ПРОДАЖБИ. БЕЗ КОМИСИОНА ОТ КУПУВАЧА!
Разрешение за строеж - в средата на лятото 2026 г.
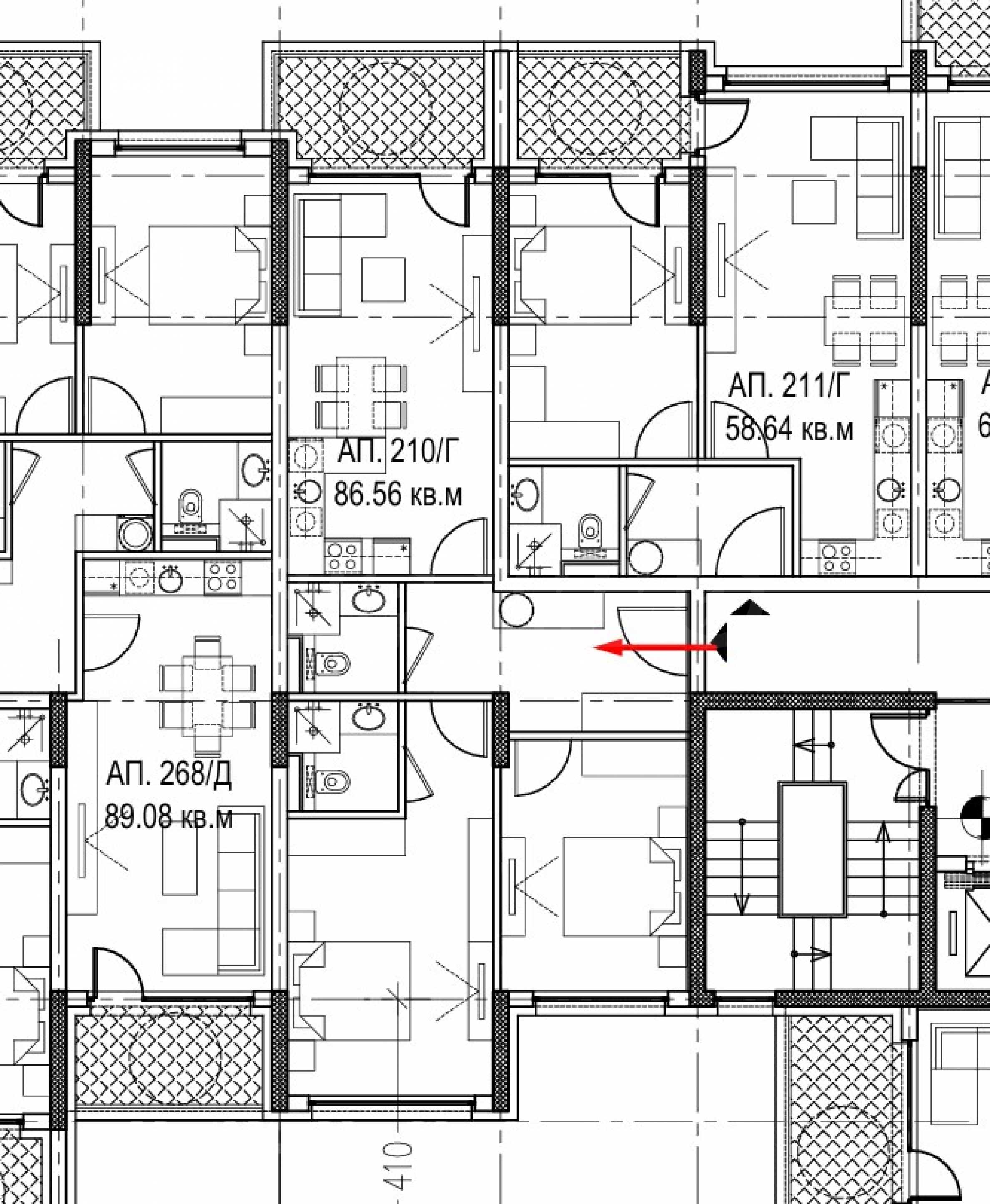
Имотът е разположен на 8-и етаж и е с обща площ 100.01 кв.м, чиста площ - 86.56 кв.м, върху които са разпределени: антре, баня с тоалетна, дневна с кухня и тераса, една спалня със собствена баня, втора спалня. Издава се в степен на завършеност по БДС, с петкамерна PVC дограма Rehau, с троен стъклопакет и блиндирана входна врата.
Има възможност за закупуването на гаражи на цени от 40 000 евро (78 233.20 лв.), както и външни паркоместа на цени от 18 000 евро (35 205 лв.)
Новият комплекс е с финансово предимство – без индексация на цените след подписване на договор, както и с възможност за избор между две схеми на плащане.
Депозит:
• Депозит за двустаен апартамент - 5 000 евро (9 779 лв.);
• Депозит за тристаен или четиристаен имот - 10 000 евро (19 558.30 лв.).
Схема 1:
• При подписване на договор: 40%;
• При кота 0: 20%;
• 20% на Акт 14;
• 10% на Акт 15;
• 10% на Акт 16.
Схема 2:
• При подписване на договор: 20%;
• При кота 0: 10%;
• 50% - чл.181;
• 10% на Акт 15;
• 10% на Акт 16.
Концепция
Проектът ще се отличава с модерна визия, функционална архитектура и отлично съчетание между градски комфорт и локация. Разработен е с мисъл за различните нужди на съвременните домакинства и предлага богато разнообразие от апартаменти - двустайни, тристайни и четиристайни жилища, разположени в общо 7 входа и на 9 етажа, с общ брой 415 имота в комплекса. Апартаментите са проектирани с оптимални разпределения, просторни дневни и светли помещения, а от по-високите етажи ще се откриват красиви панорамни гледки към Витоша.
Жителите на комплекса ще разполагат с богато озеленен вътрешен двор с площ от 1500 кв.м – пространство, създадено за отдих, игри и социални контакти. На територията ще има търговски обекти, хранителни магазини, аптека, салон за красота и други ежедневни удобства.
Инвеститорът е утвърдена компания с над 15 години опит и успешно реализирани проекти в столицата.
Етапи и срокове на изпълнението:
• Разрешение за строеж – 30.06.2026 г.
• Кота 0.00 – 30.01.2027 г.
• Акт 14 – 30.03.2028 г.
• Чл. 181 – 30.06.2028 г.
• Акт 15 – 30.09.2029 г.
• Акт 16 – 30.12.2029 г.
Технически характеристики:
• Вид строителство: монолитно, стоманобетонна рамкова конструкция с тухлени ограждащи и разпределителни стени;
• Фасада: топлоизолирана, с минерална мазилка и модерен архитектурен облик;
• Подови настилки: фина изравнителна замазка;
• Стени и тавани: фина гипсова мазилка;
• Общи части: с настилки от естествен камък – мрамор и травертин, парапети и осветителни тела по проект;
• Дограма: немска петкамерна PVC дограма Rehau с троен стъклопакет;
• Входни врати: блиндирани, фурнирован MDF;
• ВиК инсталация: изградена до тапа, с лични водомери и връзка към градската мрежа;
• Електроинсталация: напълно изградена, с ключове, контакти и узаконено електрическо табло;
• Отопление: ТЕЦ;
• Интернет: оптичен кабел до апартаментите;
• Вентилация: отвори и комини, изпълнени по проект;
• Сутерени и гаражи: подове с циментова замазка, стени с гладка мазилка, метални врати на гаражите и рампите.
Очакваме Вашето запитване
Ако желаете да организирате оглед на имот, който Ви интересува, или да посетите някой от нашите офиси, моля свържете се с нас. За да уговорите ден и час за среща или оглед, можете да се обадите на посочения в обявата телефон или да изпратите запитване чрез електронната поща. Нашият консултант ще Ви съдейства с всички необходими подробности и ще уговори удобно за Вас време.
Търсите подходящия за Вас имот?
Не се колебайте да се свържете с нас и да ни разкажете за Вашите нужди и предпочитания. Нашият екип ще проведе задълбочено проучване на пазара, за да Ви предложи имоти, които точно отговарят на Вашите критерии. Разполагаме с изключително портфолио от висококачествени и ексклузивни жилища, които са достъпни само за нашите клиенти. За да сте първите, които ще получите информация за тях – свържете се с нас.
Допълнителни услуги
Като ценен клиент на нашата компания, Вие ще имате привилегията да ползвате напълно безплатно услугите на нашия опитен юридически екип. В допълнение, предлагаме комплексни решения, включващи имуществена застраховка, безплатна финансова консултация, както и изгодни условия за финансиране. Нашите услуги се разпростират и в сферата на препродажбата, отдаването под наем и управлението на имоти. Осигуряваме висококачествени ремонтни дейности и обзавеждане чрез специализирани фирми, които са част от нашата корпоративна група и са наши дългогодишни професионални партньори.
Само на 35 метра от метростанция, локацията осигурява бърз и лесен достъп до центъра на София, както и до главните пътни артерии и спирки на градския транспорт. Районът предлага всички необходими удобства за комфортен живот – търговски обекти, училища, детски градини, спортни комплекси и здравни заведения в непосредствена близост.
ЕКСКЛУЗИВНИ ПРОДАЖБИ. БЕЗ КОМИСИОНА ОТ КУПУВАЧА!
Разрешение за строеж - в средата на лятото 2026 г.
Имотът е разположен на 8-и етаж и е с обща площ 100.01 кв.м, чиста площ - 86.56 кв.м, върху които са разпределени: антре, баня с тоалетна, дневна с кухня и тераса, една спалня със собствена баня, втора спалня. Издава се в степен на завършеност по БДС, с петкамерна PVC дограма Rehau, с троен стъклопакет и блиндирана входна врата.
Има възможност за закупуването на гаражи на цени от 40 000 евро (78 233.20 лв.), както и външни паркоместа на цени от 18 000 евро (35 205 лв.)
Новият комплекс е с финансово предимство – без индексация на цените след подписване на договор, както и с възможност за избор между две схеми на плащане.
Депозит:
• Депозит за двустаен апартамент - 5 000 евро (9 779 лв.);
• Депозит за тристаен или четиристаен имот - 10 000 евро (19 558.30 лв.).
Схема 1:
• При подписване на договор: 40%;
• При кота 0: 20%;
• 20% на Акт 14;
• 10% на Акт 15;
• 10% на Акт 16.
Схема 2:
• При подписване на договор: 20%;
• При кота 0: 10%;
• 50% - чл.181;
• 10% на Акт 15;
• 10% на Акт 16.
Концепция
Проектът ще се отличава с модерна визия, функционална архитектура и отлично съчетание между градски комфорт и локация. Разработен е с мисъл за различните нужди на съвременните домакинства и предлага богато разнообразие от апартаменти - двустайни, тристайни и четиристайни жилища, разположени в общо 7 входа и на 9 етажа, с общ брой 415 имота в комплекса. Апартаментите са проектирани с оптимални разпределения, просторни дневни и светли помещения, а от по-високите етажи ще се откриват красиви панорамни гледки към Витоша.
Жителите на комплекса ще разполагат с богато озеленен вътрешен двор с площ от 1500 кв.м – пространство, създадено за отдих, игри и социални контакти. На територията ще има търговски обекти, хранителни магазини, аптека, салон за красота и други ежедневни удобства.
Инвеститорът е утвърдена компания с над 15 години опит и успешно реализирани проекти в столицата.
Етапи и срокове на изпълнението:
• Разрешение за строеж – 30.06.2026 г.
• Кота 0.00 – 30.01.2027 г.
• Акт 14 – 30.03.2028 г.
• Чл. 181 – 30.06.2028 г.
• Акт 15 – 30.09.2029 г.
• Акт 16 – 30.12.2029 г.
Технически характеристики:
• Вид строителство: монолитно, стоманобетонна рамкова конструкция с тухлени ограждащи и разпределителни стени;
• Фасада: топлоизолирана, с минерална мазилка и модерен архитектурен облик;
• Подови настилки: фина изравнителна замазка;
• Стени и тавани: фина гипсова мазилка;
• Общи части: с настилки от естествен камък – мрамор и травертин, парапети и осветителни тела по проект;
• Дограма: немска петкамерна PVC дограма Rehau с троен стъклопакет;
• Входни врати: блиндирани, фурнирован MDF;
• ВиК инсталация: изградена до тапа, с лични водомери и връзка към градската мрежа;
• Електроинсталация: напълно изградена, с ключове, контакти и узаконено електрическо табло;
• Отопление: ТЕЦ;
• Интернет: оптичен кабел до апартаментите;
• Вентилация: отвори и комини, изпълнени по проект;
• Сутерени и гаражи: подове с циментова замазка, стени с гладка мазилка, метални врати на гаражите и рампите.
Очакваме Вашето запитване
Ако желаете да организирате оглед на имот, който Ви интересува, или да посетите някой от нашите офиси, моля свържете се с нас. За да уговорите ден и час за среща или оглед, можете да се обадите на посочения в обявата телефон или да изпратите запитване чрез електронната поща. Нашият консултант ще Ви съдейства с всички необходими подробности и ще уговори удобно за Вас време.
Търсите подходящия за Вас имот?
Не се колебайте да се свържете с нас и да ни разкажете за Вашите нужди и предпочитания. Нашият екип ще проведе задълбочено проучване на пазара, за да Ви предложи имоти, които точно отговарят на Вашите критерии. Разполагаме с изключително портфолио от висококачествени и ексклузивни жилища, които са достъпни само за нашите клиенти. За да сте първите, които ще получите информация за тях – свържете се с нас.
Допълнителни услуги
Като ценен клиент на нашата компания, Вие ще имате привилегията да ползвате напълно безплатно услугите на нашия опитен юридически екип. В допълнение, предлагаме комплексни решения, включващи имуществена застраховка, безплатна финансова консултация, както и изгодни условия за финансиране. Нашите услуги се разпростират и в сферата на препродажбата, отдаването под наем и управлението на имоти. Осигуряваме висококачествени ремонтни дейности и обзавеждане чрез специализирани фирми, които са част от нашата корпоративна група и са наши дългогодишни професионални партньори.
Виж текста на други езици (автоматичен превод)
Местоположение (приблизително)
На картата с червен маркер е указано приблизителното местоположение на имота/комплекса.
Видео
Нашите топ оферти за продажба в София, България
Популярни търсения
- Селски къщи в България
- Имоти за продажба в София
- Имоти в София
- Имоти под наем в София
- Тристайни апартаменти за продажба в София
- Къщи за продажба в София
- Двустайни апартаменти за продажба в София
- Апартаменти (различни типове) за продажба в София
- Едностайни апартаменти за продажба в София
- Двустайни апартаменти в София

