Етажност на сградата
4
Етаж
3
Асансьор
да
Стаи
3
Спални
2
Бани
1
Балкони (тераси) бр.:
2

Обща площ
106.12 м²
Застроена площ
90.05 м²
Общи части
16.07 м²
Състояние
В процес на строителство
Планирано завършване
Декември 2027

Цена
171 000 €
334 447 лв.
334 447 лв.
1 611 €/м²
3 152 лв./м²
3 152 лв./м²
Без такса поддръжка
Запитване за повече информация или оглед
Инфо пакет
Разстояния
Последна актуализация
02.01.2026 г.
Разстояния от имота до други важни обекти
- Морето: 500 м
- Burgas (BOJ): 44 км
Строителство
- Тухла
Административна информация за офертата
ГАЗИФИКАЦИЯ, ЕЛЕКТРИЧЕСТВО
- Електричество
ВОДОСНАБДЯВАНЕ
- Водоснабдяване
КАНАЛИЗАЦИЯ
- Канализация
САНИТАРНИ И СПОМАГАТЕЛНИ ПОМЕЩЕНИЯ
- Балкон
ИЗОЛАЦИИ И ДОВЪРШИТЕЛНИ РАБОТИ
- PVC дограма
- Блиндирана входна врата
- На шпакловка и замазка
Представяме за продажба тристаен апартамент със собствен двор в нова, атрактивна сграда с отлична локация в сърцето на новият квартал на Созопол – "Мисаря". На 500 метра от плаж "Хармани" и в непосредствена близост до Стадиона, новата бъдеща болница, училище, магазини, ресторанти и други удобства.
В процес на строителство. Очакван Акт 16 - декември 2027 г.
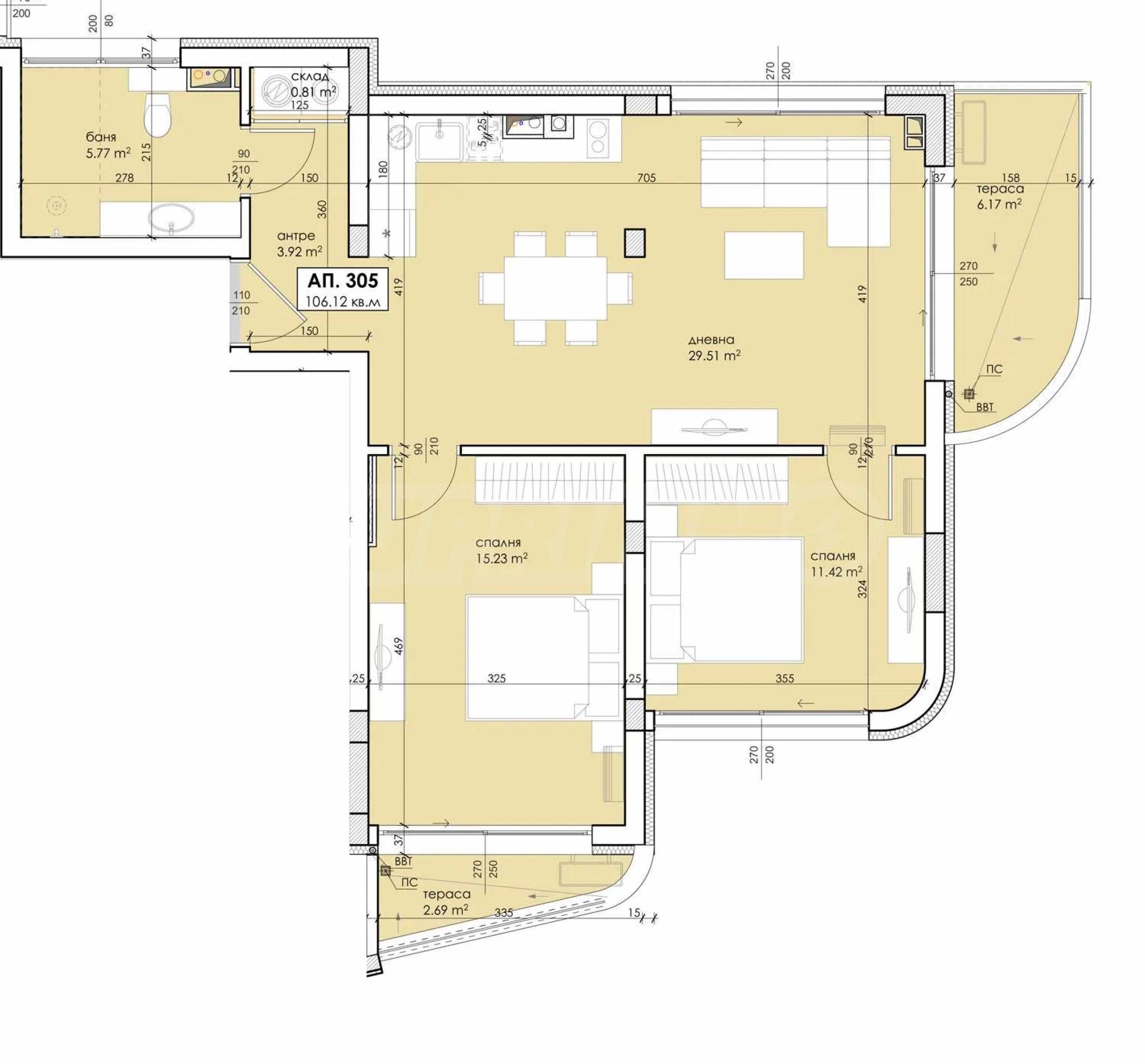
Имотът е разположен на трети етаж и предлага обща площ от 106,12 кв.м с изложение изток/север/юг.
Разпределение:
• антре/коридор;
• дневна с кухня;
• две спални;
• баня с тоалет;
• две тераси.
Жилището се издава в степен на завършеност по БДС:
• PVC дограма – SALAMANDER 76;
• подпрозоречни первази от естествен камък;
• противовзломни апартаментни входни врати;
• стени и тавани: варо-циментова мазилка с ъглови профили;
• подове: циментова замазка;
• балкон с фасадна мазилка и монтирани осветителни тела;
• хидроизолация газопламъчна битумна 3mm Venus и гранитогрес;
• парапет – съгласно проект.
Има възможност за довършване "до ключ", както и за мебелиране срещу допълнително заплащане.
Апартаментът е подходящ както за целогодишно живеене, така и за ваканционно ползване.
За сградата
Сградата е проектирана на 4 етажа с атрактивна визия, разполага с двустайни и тристайни жилища, и 18 паркоместа на надземно и подземно ниво. Входът на подземния гараж е проектиран с рампа през двора и улицата.
Технически характеристики:
• стълбища и общи части: гранитогрес или камък;
• стени и тавани: мазилка и латекс;
• парапети – по проект;
• монтирани хидравлични асансьори;
• покривна хидроизолация газопламъчна битумна 3mm Venus;
• топлоизолация – XPS 10 см.
• циментова замазка;
• под на паркоместа и гараж - шлайфан бетон;
• фасадни външни стени: тухла 25см – Wienerberger Тhermo;
• топлоизолация по тухлени зидове с ЕРS 10см – Baumit;
• фасадна мрежа шпаклована с лепило – Baumit;
• структорна полимерна мазилка – Baumit;
• топлоизолация по бетонови повърхности – XPS 10см;
• ВиК инсталация - полипропиленов водопровод на „тапа”;
• изградена силнотокова електро инсталация за осветление и контакти;
• монтирани електромери, апартаментно ел. табло;
• монтирани ключове и контакти;
• монтирани осветителни тела на балконите;
• звънчева и домофонна инсталация;
• вътрешни инсталации за интернет и ТV.
Очакваме Вашето запитване
Ако желаете да организирате оглед на имот, който Ви интересува, или да посетите някой от нашите офиси, моля свържете се с нас. За да уговорите ден и час за среща или оглед, можете да се обадите на посочения в обявата телефон или да изпратите запитване чрез електронната поща. Нашият консултант ще Ви съдейства с всички необходими подробности и ще уговори удобно за Вас време.
Търсите подходящия за Вас имот?
Не се колебайте да се свържете с нас и да ни разкажете за Вашите нужди и предпочитания. Нашият екип ще проведе задълбочено проучване на пазара, за да Ви предложи имоти, които точно отговарят на Вашите критерии. Разполагаме с изключително портфолио от висококачествени и ексклузивни жилища, които са достъпни само за нашите клиенти. За да сте първите, които ще получите информация за тях – свържете се с нас.
Допълнителни услуги
Като ценен клиент на нашата компания, Вие ще имате привилегията да ползвате напълно безплатно услугите на нашия опитен юридически екип. В допълнение, предлагаме комплексни решения, включващи имуществена застраховка, безплатна финансова консултация, както и изгодни условия за финансиране. Нашите услуги се разпростират и в сферата на препродажбата, отдаването под наем и управлението на имоти. Осигуряваме висококачествени ремонтни дейности и обзавеждане чрез специализирани фирми, които са част от нашата корпоративна група и са наши дългогодишни професионални партньори.
В процес на строителство. Очакван Акт 16 - декември 2027 г.
Имотът е разположен на трети етаж и предлага обща площ от 106,12 кв.м с изложение изток/север/юг.
Разпределение:
• антре/коридор;
• дневна с кухня;
• две спални;
• баня с тоалет;
• две тераси.
Жилището се издава в степен на завършеност по БДС:
• PVC дограма – SALAMANDER 76;
• подпрозоречни первази от естествен камък;
• противовзломни апартаментни входни врати;
• стени и тавани: варо-циментова мазилка с ъглови профили;
• подове: циментова замазка;
• балкон с фасадна мазилка и монтирани осветителни тела;
• хидроизолация газопламъчна битумна 3mm Venus и гранитогрес;
• парапет – съгласно проект.
Има възможност за довършване "до ключ", както и за мебелиране срещу допълнително заплащане.
Апартаментът е подходящ както за целогодишно живеене, така и за ваканционно ползване.
За сградата
Сградата е проектирана на 4 етажа с атрактивна визия, разполага с двустайни и тристайни жилища, и 18 паркоместа на надземно и подземно ниво. Входът на подземния гараж е проектиран с рампа през двора и улицата.
Технически характеристики:
• стълбища и общи части: гранитогрес или камък;
• стени и тавани: мазилка и латекс;
• парапети – по проект;
• монтирани хидравлични асансьори;
• покривна хидроизолация газопламъчна битумна 3mm Venus;
• топлоизолация – XPS 10 см.
• циментова замазка;
• под на паркоместа и гараж - шлайфан бетон;
• фасадни външни стени: тухла 25см – Wienerberger Тhermo;
• топлоизолация по тухлени зидове с ЕРS 10см – Baumit;
• фасадна мрежа шпаклована с лепило – Baumit;
• структорна полимерна мазилка – Baumit;
• топлоизолация по бетонови повърхности – XPS 10см;
• ВиК инсталация - полипропиленов водопровод на „тапа”;
• изградена силнотокова електро инсталация за осветление и контакти;
• монтирани електромери, апартаментно ел. табло;
• монтирани ключове и контакти;
• монтирани осветителни тела на балконите;
• звънчева и домофонна инсталация;
• вътрешни инсталации за интернет и ТV.
Очакваме Вашето запитване
Ако желаете да организирате оглед на имот, който Ви интересува, или да посетите някой от нашите офиси, моля свържете се с нас. За да уговорите ден и час за среща или оглед, можете да се обадите на посочения в обявата телефон или да изпратите запитване чрез електронната поща. Нашият консултант ще Ви съдейства с всички необходими подробности и ще уговори удобно за Вас време.
Търсите подходящия за Вас имот?
Не се колебайте да се свържете с нас и да ни разкажете за Вашите нужди и предпочитания. Нашият екип ще проведе задълбочено проучване на пазара, за да Ви предложи имоти, които точно отговарят на Вашите критерии. Разполагаме с изключително портфолио от висококачествени и ексклузивни жилища, които са достъпни само за нашите клиенти. За да сте първите, които ще получите информация за тях – свържете се с нас.
Допълнителни услуги
Като ценен клиент на нашата компания, Вие ще имате привилегията да ползвате напълно безплатно услугите на нашия опитен юридически екип. В допълнение, предлагаме комплексни решения, включващи имуществена застраховка, безплатна финансова консултация, както и изгодни условия за финансиране. Нашите услуги се разпростират и в сферата на препродажбата, отдаването под наем и управлението на имоти. Осигуряваме висококачествени ремонтни дейности и обзавеждане чрез специализирани фирми, които са част от нашата корпоративна група и са наши дългогодишни професионални партньори.
Виж текста на други езици (автоматичен превод)
Местоположение (приблизително)
На картата с червен маркер е указано приблизителното местоположение на имота/комплекса.
Нашите топ оферти за продажба в Созопол, България
Имоти по район
всички по град
Имоти по тип, Созопол
- Двустайни апартаменти в Созопол
- Тристайни апартаменти в Созопол
- Едностайни апартаменти в Созопол
- Къщи в Созопол
- Апартаменти (различни типове) в Созопол
- Парцели за инвестиция в Созопол
- Парцели в регулация в Созопол
- Многостайни апартаменти в Созопол
- Къщи-близнак в Созопол
- Редови къщи в Созопол

