Етажност на сградата
9
Етаж
9
Асансьор
да
Стаи
2
Спални
1
Бани
1
Балкони (тераси) бр.:
1

Обща площ
64.08 м²
Застроена площ
55.37 м²
Общи части
8.71 м²
Състояние
Предварителни продажби
Планирано начало
Декември 2025
Очаквано завършване
Юни 2028

Цена
90 000 €
176 025 лв.
176 025 лв.
1 404 €/м²
2 747 лв./м²
2 747 лв./м²
Без такса поддръжка
Без комисиона от купувача
Запитване за повече информация или оглед
Инфо пакет
Разстояния
Последна актуализация
03.11.2025 г.
Разстояния от имота до други важни обекти
- Морето: 4.6 км
- Център на града: 4.8 км
- Burgas (BOJ): 8.3 км
Гледки от имота
- Гледка към града
Строителство
- Тухла
Административна информация за офертата
ГАЗИФИКАЦИЯ, ЕЛЕКТРИЧЕСТВО
- Електричество
ВОДОСНАБДЯВАНЕ
- Водоснабдяване
КАНАЛИЗАЦИЯ
- Канализация
САНИТАРНИ И СПОМАГАТЕЛНИ ПОМЕЩЕНИЯ
- Балкон
ИЗОЛАЦИИ И ДОВЪРШИТЕЛНИ РАБОТИ
- На шпакловка и замазка
ЕКСТРИ В СГРАДАТА
- Асансьор
Представяме за продажба двустаен апартамент в най-новата 5-та фаза от успешна поредица съвременни жилищни сгради, част от иновативен комплекс, който вече преобрази облика на квартала, превръщайки го в едно от най-желаните места за живеене в Бургас. След реализацията на първите четири етапа, новият проект на комплекса - Сграда 5 продължава същата архитектурна линия, отличаваща се с модерен дизайн, високо качество на изпълнение и хармонична среда за живот.
Локация
Местоположението на комплекса е удобно и стратегическо: в най-атрактивната част на новоизграждащия се кв. "Хоризорт", в непосредствена близост до Mall Grand Plaza, Lidl, Kaufland и Decathlon. Ще има автобусна спирка на редовна градска линия в непосредствена близост до сградата.
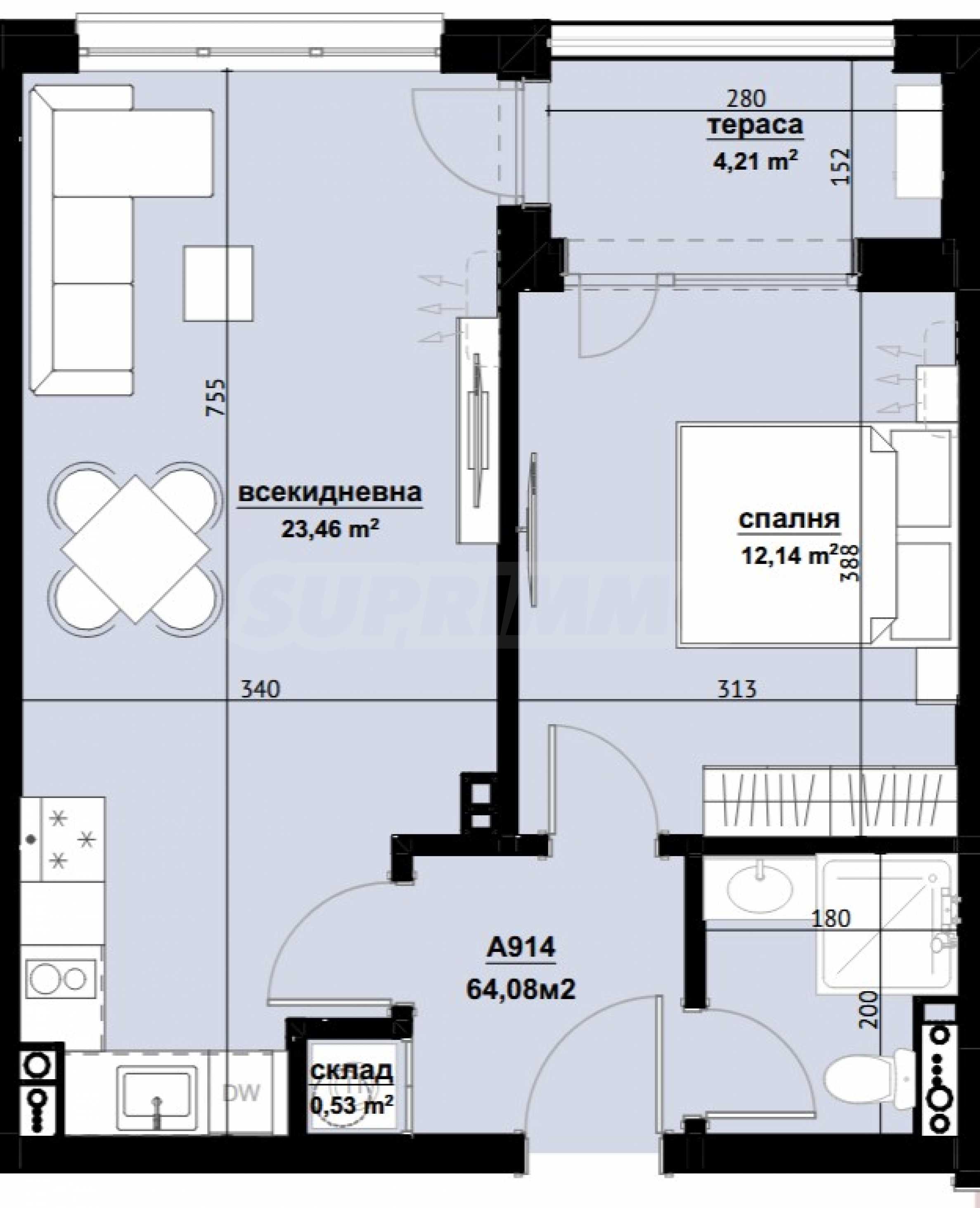
Имотът е с обща площ от 64,08 кв.м, разположен на 9-и етаж с изложение изток. Състои се от: антре, дневна с кухня, спалня, баня с тоалет, склад и тераса.
Жилището се предлага завършено по БДС:
• подови настилки – циментова замазка;
• тераси - гранитогрес;
• общи части на сградата: гранит и/или гранитогрес;
• външни стени с топлоизолация, съгласно Енергийната ефективност на проекта;
• вътрешни стени – машинна гипсова мазилка;
• общи части на сградата - стени с положена машинна гипсова мазилка и боядисани;
• тавани - бетонна плоча с положена конструкция от гипсокартон;
• петкамерна PVC дограма с 32 мм стъклопакет, външно стъкло от 4мм високоенергийно, двуосни механизми за отваряне;
• входни врати – метални блиндирани;
• ВиК инсталация - тръбна мрежа съгласно одобрен проект, свързана с ВиК мрежата на града;
• електрическа инсталация – изградена напълно с изводи за лампи, за електрически ключове и контакти;
• асансьори – завършена строителна част и монтирани машини и ел. част с необходимите изпитвания съобразно проекта;
• инсталационни шахти и комини, мълниезащита - по одобрен проект.
Характеристики на Етап 5:
• Планирано начало на строителни работи - 12.2025 г. Пусков срок - след 30 месеца.
• Състои се от две девететажни секции – А и Б, всяка със собствен вход.
• Проектирани с внимание към детайла и функционални разпределения, съобразени със съвременния начин на живот.
• Общият брой на жилищата е 223 апартамента, с налични разнообразни типове и планировки – двустайни и тристайни, създадени за комфорт и простор.
• Без такса поддръжка.
Паркиране:
• 31 бр. гаражи;
• 52 закрити паркоместа в подземен паркинг с удобен достъп по рампа;
• 142 открити паркоместа, разположени около сградите.
Удобства в Сграда 5:
• Детска площадка и мултифункционално спортно игрище;
• Фитнес зона на открито;
• Богато озеленени зони за отдих.
*Жителите на Сграда 5 ще се радват на достъп до луксозни допълнителни услуги в съседство, в Сграда 4 – ресторант, модерен фитнес, бизнес център и голям СПА център с вътрешен басейн, джакузи, термална зона и помещения за релакс и масажи.
Предимства на новия квартал
Това е най-активно развиващата се в момента зона, обещаваща да конкурира с останалите части на Бургас, с ред предимства:
• бърз и лесен достъп до основните пътни артерии;
• изцяло нова инфраструктура;
• висока степен на комфорт на живущите;
• повече зелени пространства и по-здравословна среда на живот;
• наличие на големи търговски обекти в непосредствена близост;
• само на метри се предвижда реализацията на проект на Община Бургас за Иновационен студентски и научен кампус.
Очакваме Вашето запитване
Ако желаете да организирате оглед на имот, който Ви интересува, или да посетите някой от нашите офиси, моля свържете се с нас. За да уговорите ден и час за среща или оглед, можете да се обадите на посочения в обявата телефон или да изпратите запитване чрез електронната поща. Нашият консултант ще Ви съдейства с всички необходими подробности и ще уговори удобно за Вас време.
Търсите подходящия за Вас имот?
Не се колебайте да се свържете с нас и да ни разкажете за Вашите нужди и предпочитания. Нашият екип ще проведе задълбочено проучване на пазара, за да Ви предложи имоти, които точно отговарят на Вашите критерии. Разполагаме с изключително портфолио от висококачествени и ексклузивни жилища, които са достъпни само за нашите клиенти. За да сте първите, които ще получите информация за тях – свържете се с нас.
Допълнителни услуги
Като ценен клиент на нашата компания, Вие ще имате привилегията да ползвате напълно безплатно услугите на нашия опитен юридически екип. В допълнение, предлагаме комплексни решения, включващи имуществена застраховка, безплатна финансова консултация, както и изгодни условия за финансиране. Нашите услуги се разпростират и в сферата на препродажбата, отдаването под наем и управлението на имоти. Осигуряваме висококачествени ремонтни дейности и обзавеждане чрез специализирани фирми, които са част от нашата корпоративна група и са наши дългогодишни професионални партньори.
Локация
Местоположението на комплекса е удобно и стратегическо: в най-атрактивната част на новоизграждащия се кв. "Хоризорт", в непосредствена близост до Mall Grand Plaza, Lidl, Kaufland и Decathlon. Ще има автобусна спирка на редовна градска линия в непосредствена близост до сградата.
Имотът е с обща площ от 64,08 кв.м, разположен на 9-и етаж с изложение изток. Състои се от: антре, дневна с кухня, спалня, баня с тоалет, склад и тераса.
Жилището се предлага завършено по БДС:
• подови настилки – циментова замазка;
• тераси - гранитогрес;
• общи части на сградата: гранит и/или гранитогрес;
• външни стени с топлоизолация, съгласно Енергийната ефективност на проекта;
• вътрешни стени – машинна гипсова мазилка;
• общи части на сградата - стени с положена машинна гипсова мазилка и боядисани;
• тавани - бетонна плоча с положена конструкция от гипсокартон;
• петкамерна PVC дограма с 32 мм стъклопакет, външно стъкло от 4мм високоенергийно, двуосни механизми за отваряне;
• входни врати – метални блиндирани;
• ВиК инсталация - тръбна мрежа съгласно одобрен проект, свързана с ВиК мрежата на града;
• електрическа инсталация – изградена напълно с изводи за лампи, за електрически ключове и контакти;
• асансьори – завършена строителна част и монтирани машини и ел. част с необходимите изпитвания съобразно проекта;
• инсталационни шахти и комини, мълниезащита - по одобрен проект.
Характеристики на Етап 5:
• Планирано начало на строителни работи - 12.2025 г. Пусков срок - след 30 месеца.
• Състои се от две девететажни секции – А и Б, всяка със собствен вход.
• Проектирани с внимание към детайла и функционални разпределения, съобразени със съвременния начин на живот.
• Общият брой на жилищата е 223 апартамента, с налични разнообразни типове и планировки – двустайни и тристайни, създадени за комфорт и простор.
• Без такса поддръжка.
Паркиране:
• 31 бр. гаражи;
• 52 закрити паркоместа в подземен паркинг с удобен достъп по рампа;
• 142 открити паркоместа, разположени около сградите.
Удобства в Сграда 5:
• Детска площадка и мултифункционално спортно игрище;
• Фитнес зона на открито;
• Богато озеленени зони за отдих.
*Жителите на Сграда 5 ще се радват на достъп до луксозни допълнителни услуги в съседство, в Сграда 4 – ресторант, модерен фитнес, бизнес център и голям СПА център с вътрешен басейн, джакузи, термална зона и помещения за релакс и масажи.
Предимства на новия квартал
Това е най-активно развиващата се в момента зона, обещаваща да конкурира с останалите части на Бургас, с ред предимства:
• бърз и лесен достъп до основните пътни артерии;
• изцяло нова инфраструктура;
• висока степен на комфорт на живущите;
• повече зелени пространства и по-здравословна среда на живот;
• наличие на големи търговски обекти в непосредствена близост;
• само на метри се предвижда реализацията на проект на Община Бургас за Иновационен студентски и научен кампус.
Очакваме Вашето запитване
Ако желаете да организирате оглед на имот, който Ви интересува, или да посетите някой от нашите офиси, моля свържете се с нас. За да уговорите ден и час за среща или оглед, можете да се обадите на посочения в обявата телефон или да изпратите запитване чрез електронната поща. Нашият консултант ще Ви съдейства с всички необходими подробности и ще уговори удобно за Вас време.
Търсите подходящия за Вас имот?
Не се колебайте да се свържете с нас и да ни разкажете за Вашите нужди и предпочитания. Нашият екип ще проведе задълбочено проучване на пазара, за да Ви предложи имоти, които точно отговарят на Вашите критерии. Разполагаме с изключително портфолио от висококачествени и ексклузивни жилища, които са достъпни само за нашите клиенти. За да сте първите, които ще получите информация за тях – свържете се с нас.
Допълнителни услуги
Като ценен клиент на нашата компания, Вие ще имате привилегията да ползвате напълно безплатно услугите на нашия опитен юридически екип. В допълнение, предлагаме комплексни решения, включващи имуществена застраховка, безплатна финансова консултация, както и изгодни условия за финансиране. Нашите услуги се разпростират и в сферата на препродажбата, отдаването под наем и управлението на имоти. Осигуряваме висококачествени ремонтни дейности и обзавеждане чрез специализирани фирми, които са част от нашата корпоративна група и са наши дългогодишни професионални партньори.
Виж текста на други езици (автоматичен превод)
Местоположение (приблизително)
На картата с червен маркер е указано приблизителното местоположение на имота/комплекса.
Нашите топ оферти за продажба в Бургас, България
Имоти по тип, Бургас
- Тристайни апартаменти в Бургас
- Двустайни апартаменти в Бургас
- Апартаменти (различни типове) в Бургас
- Къщи в Бургас
- Четиристайни апартаменти в Бургас
- Парцели за инвестиция в Бургас
- Парцели в регулация в Бургас
- Едностайни апартаменти в Бургас
- Земеделски земи в Бургас
- Многостайни апартаменти в Бургас
Популярни търсения
- Селски къщи в България
- Имоти за продажба в Бургас
- Имоти в Бургас
- Имоти под наем в Бургас
- Къщи за продажба в Бургас
- Двустайни апартаменти за продажба в Бургас
- Имоти в кв.Долно Езерово, Бургас
- Имоти за продажба в кв.Сарафово, Бургас
- Едностайни апартаменти за продажба в Бургас
- Апартаменти (различни типове) за продажба в Бургас

