Етажност на сградата
4
Етаж
4
Асансьор
да
Стаи
1
Бани
1
Балкони (тераси) бр.:
1

Обща площ
55.10 м²
Застроена площ
46.59 м²
Общи части
8.51 м²
Състояние
В процес на строителство
Планирано завършване
Март 2028

Цена
119 049 €
232 840 лв.
232 840 лв.
2 161 €/м²
4 226 лв./м²
4 226 лв./м²
Без комисиона от купувача
Запитване за повече информация или оглед
Инфо пакет
Състояние
БДС (на шпакловка и замазка)
Обзавеждане
Отопление
Климатици / Парно на газ / Парно на ток
Прозорци
PVC дограма
Разстояния
Последна актуализация
24.11.2025 г.
Разстояния от имота до други важни обекти
- Център на града: 7 км
- Sofia (SOF): 9.7 км
Строителство
- Стоманобетонна конструкция
Отопление
- Климатици
- Парно на газ
- Парно на ток
Административна информация за офертата
САНИТАРНИ И СПОМАГАТЕЛНИ ПОМЕЩЕНИЯ
- Балкон
- Баня с тоалетна
ИЗОЛАЦИИ И ДОВЪРШИТЕЛНИ РАБОТИ
- PVC дограма
- Външна изолация
- На шпакловка и замазка
- Троен стъклопакет
ЕКСТРИ В СГРАДАТА
- Асансьор
Представяме едностаен апартамент за продажба в модерен жилищен комплекс в един от най-перспективните квартали на София – "Малинова долина". Районът е динамично развиващ се, с отлична инфраструктура и бърз достъп до централната част на града, съчетаващ удобство, природа и висок инвестиционен потенциал.
Комплексът включва три свободностоящи жилищни сгради с подземен паркинг, уютни общи пространства и изцяло жилищна надземна част на три етажа и подпокривно ниво.
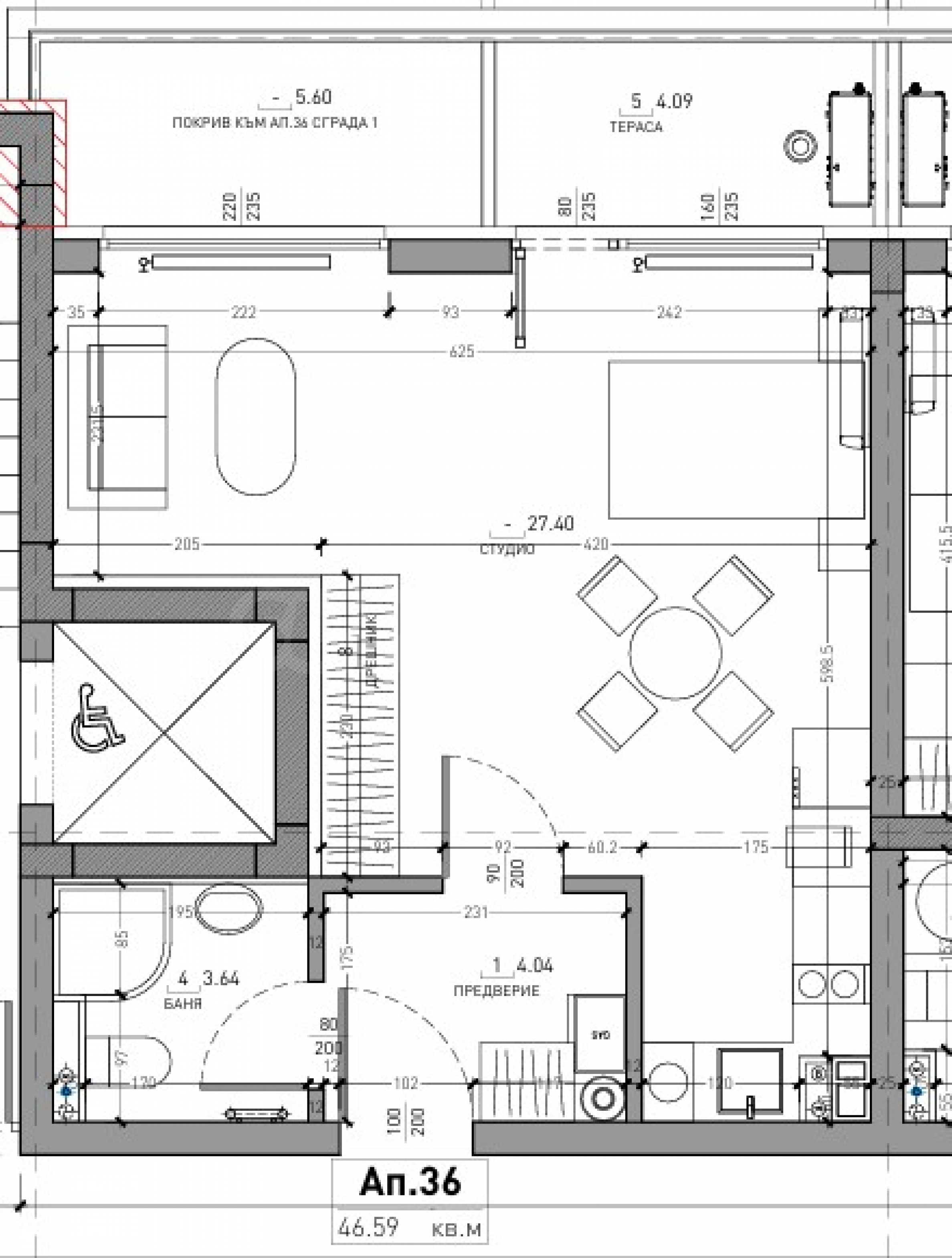
Апартаментът е разположен в Сграда 1, на 4-ти етаж и има обща площ 55.10 кв.м, чиста площ - 46.59 кв.м. Жилището се състои от антре, баня/тоалетна, дневна с кухня и тераса. Продава се в степен на завършеност по БДС.
*Офертната цена е по Схема на плащане - 1 (50%/30%/10%/10%).
Характеристики на Етап 1:
• Етап 1 е в процес на реализация с планирано завършване през март 2028 г.
• 132 функционални жилища – едностайни, двустайни и тристайни апартаменти;
• 134 подземни паркоместа и гаражи;
• Зелени площи и зони за отдих, детски площадки, безопасна и приятна семейна среда.
Стартирал е и Етап 2 от комплекса, от още три сгради. Двата етапа ще оформят съвременен жилищен ансамбъл в сърцето на "Малинова долина".
Качествено строителство:
• Стоманобетонна конструкция;
• Покриви с XPS топлоизолация;
• PVC дограма, троен стъклопакет със стъкло "четири сезона";
• Отопление на ток чрез климатици и на газ;
• Светла височина на жилищните помещения - 2.60 м;
• Тухлени зидарии 25 см.
Локация и предимства:
• Тих и зелен район, в подножието на Витоша;
• Непосредствена близост до бул. „Симеоновско шосе“ и Околовръстен път;
• До НСА, Студентски град, супермаркети, спортни центрове и заведения;
• Развиваща се инфраструктура и инвестиционен потенциал.
Гъвкави схеми на плащане - избор според бюджета и етапа на строителството:
Схема №1:
• 50% при предварителен договор;
• 30% при Акт 14;
• 10% при Акт 15;
• 10% при Акт 16.
Схема №2:
• 30% при предварителен договор;
• 30% при Акт 14;
• 30% при Акт 15;
• 10% при Акт 16.
Схема №3:
• 30% при предварителен договор;
• 70% при Акт 16.
Защо да изберете този проект:
• Съвременна архитектура и комфортни жилищни разпределения;
• Сигурна и зелена среда за живеене;
• Отлична инвестиция в бързо развиващ се район на София;
• Баланс между градски удобства и близост до природата.
Очакваме Вашето запитване
Ако желаете да организирате оглед на имот, който Ви интересува, или да посетите някой от нашите офиси, моля свържете се с нас. За да уговорите ден и час за среща или оглед, можете да се обадите на посочения в обявата телефон или да изпратите запитване чрез електронната поща. Нашият консултант ще Ви съдейства с всички необходими подробности и ще уговори удобно за Вас време.
Търсите подходящия за Вас имот?
Не се колебайте да се свържете с нас и да ни разкажете за Вашите нужди и предпочитания. Нашият екип ще проведе задълбочено проучване на пазара, за да Ви предложи имоти, които точно отговарят на Вашите критерии. Разполагаме с изключително портфолио от висококачествени и ексклузивни жилища, които са достъпни само за нашите клиенти. За да сте първите, които ще получите информация за тях – свържете се с нас.
Допълнителни услуги
Като ценен клиент на нашата компания, Вие ще имате привилегията да ползвате напълно безплатно услугите на нашия опитен юридически екип. В допълнение, предлагаме комплексни решения, включващи имуществена застраховка, безплатна финансова консултация, както и изгодни условия за финансиране. Нашите услуги се разпростират и в сферата на препродажбата, отдаването под наем и управлението на имоти. Осигуряваме висококачествени ремонтни дейности и обзавеждане чрез специализирани фирми, които са част от нашата корпоративна група и са наши дългогодишни професионални партньори.
Комплексът включва три свободностоящи жилищни сгради с подземен паркинг, уютни общи пространства и изцяло жилищна надземна част на три етажа и подпокривно ниво.
Апартаментът е разположен в Сграда 1, на 4-ти етаж и има обща площ 55.10 кв.м, чиста площ - 46.59 кв.м. Жилището се състои от антре, баня/тоалетна, дневна с кухня и тераса. Продава се в степен на завършеност по БДС.
*Офертната цена е по Схема на плащане - 1 (50%/30%/10%/10%).
Характеристики на Етап 1:
• Етап 1 е в процес на реализация с планирано завършване през март 2028 г.
• 132 функционални жилища – едностайни, двустайни и тристайни апартаменти;
• 134 подземни паркоместа и гаражи;
• Зелени площи и зони за отдих, детски площадки, безопасна и приятна семейна среда.
Стартирал е и Етап 2 от комплекса, от още три сгради. Двата етапа ще оформят съвременен жилищен ансамбъл в сърцето на "Малинова долина".
Качествено строителство:
• Стоманобетонна конструкция;
• Покриви с XPS топлоизолация;
• PVC дограма, троен стъклопакет със стъкло "четири сезона";
• Отопление на ток чрез климатици и на газ;
• Светла височина на жилищните помещения - 2.60 м;
• Тухлени зидарии 25 см.
Локация и предимства:
• Тих и зелен район, в подножието на Витоша;
• Непосредствена близост до бул. „Симеоновско шосе“ и Околовръстен път;
• До НСА, Студентски град, супермаркети, спортни центрове и заведения;
• Развиваща се инфраструктура и инвестиционен потенциал.
Гъвкави схеми на плащане - избор според бюджета и етапа на строителството:
Схема №1:
• 50% при предварителен договор;
• 30% при Акт 14;
• 10% при Акт 15;
• 10% при Акт 16.
Схема №2:
• 30% при предварителен договор;
• 30% при Акт 14;
• 30% при Акт 15;
• 10% при Акт 16.
Схема №3:
• 30% при предварителен договор;
• 70% при Акт 16.
Защо да изберете този проект:
• Съвременна архитектура и комфортни жилищни разпределения;
• Сигурна и зелена среда за живеене;
• Отлична инвестиция в бързо развиващ се район на София;
• Баланс между градски удобства и близост до природата.
Очакваме Вашето запитване
Ако желаете да организирате оглед на имот, който Ви интересува, или да посетите някой от нашите офиси, моля свържете се с нас. За да уговорите ден и час за среща или оглед, можете да се обадите на посочения в обявата телефон или да изпратите запитване чрез електронната поща. Нашият консултант ще Ви съдейства с всички необходими подробности и ще уговори удобно за Вас време.
Търсите подходящия за Вас имот?
Не се колебайте да се свържете с нас и да ни разкажете за Вашите нужди и предпочитания. Нашият екип ще проведе задълбочено проучване на пазара, за да Ви предложи имоти, които точно отговарят на Вашите критерии. Разполагаме с изключително портфолио от висококачествени и ексклузивни жилища, които са достъпни само за нашите клиенти. За да сте първите, които ще получите информация за тях – свържете се с нас.
Допълнителни услуги
Като ценен клиент на нашата компания, Вие ще имате привилегията да ползвате напълно безплатно услугите на нашия опитен юридически екип. В допълнение, предлагаме комплексни решения, включващи имуществена застраховка, безплатна финансова консултация, както и изгодни условия за финансиране. Нашите услуги се разпростират и в сферата на препродажбата, отдаването под наем и управлението на имоти. Осигуряваме висококачествени ремонтни дейности и обзавеждане чрез специализирани фирми, които са част от нашата корпоративна група и са наши дългогодишни професионални партньори.
Виж текста на други езици (автоматичен превод)
Местоположение (приблизително)
На картата с червен маркер е указано приблизителното местоположение на имота/комплекса.
Нашите топ оферти за продажба в София, България
Популярни търсения
- Селски къщи в България
- Имоти за продажба в София
- Имоти в София
- Имоти под наем в София
- Тристайни апартаменти за продажба в София
- Къщи за продажба в София
- Двустайни апартаменти за продажба в София
- Апартаменти (различни типове) за продажба в София
- Едностайни апартаменти за продажба в София
- Двустайни апартаменти в София

