Клас на сградата/комплекса
Висок стандарт
Етажност на сградата
4
Етаж
3
Мазе
да
Асансьор
да
Стаи
3
Спални
2
Бани
1
Балкони (тераси) бр.:
1
Тоалетни
1
Мазе/склад
да
Мазе (площ)
3.38 м²

Обща площ
102.44 м²
Застроена площ
86.62 м²
Общи части
15.82 м²
Състояние
В процес на строителство
Планирано завършване
Декември 2026

Цена
425 755 лв. (без ДДС)
4 156 лв./м² (без ДДС)
Без комисиона от купувача
Запитване за повече информация или оглед
Разстояния от имота до други важни обекти
- Център на града: 7 км
- Sofia (SOF): 7 км
Отопление
- Климатици
- Парно на газ
Административна информация за офертата
ГАЗИФИКАЦИЯ, ЕЛЕКТРИЧЕСТВО
- Газификация
- Електричество
ВОДОСНАБДЯВАНЕ
- Водоснабдяване
САНИТАРНИ И СПОМАГАТЕЛНИ ПОМЕЩЕНИЯ
- Балкон
- Баня с тоалетна
- Мазе
ИЗОЛАЦИИ И ДОВЪРШИТЕЛНИ РАБОТИ
- PVC дограма
- Външна изолация
- На шпакловка и замазка
- Троен стъклопакет
ЕКСТРИ В СГРАДАТА
- Асансьор
- Луксозни общи части
С АКТ 14! БЕЗ КОМИСИОНА ОТ КУПУВАЧА!
Планирано завършване - до края на 2026 г.
Посочената цена е без ДДС.
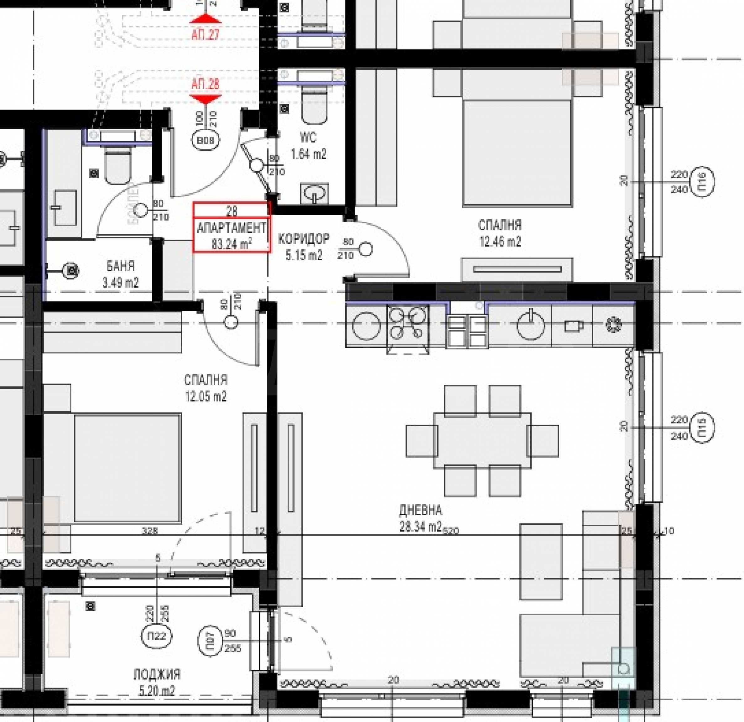
Апартамент №28 е разположен на 3-ти етаж в сградата и има застроена площ от 83.24 кв.м, с разпределение: коридор, баня/тоалетна, тоалетна, светла дневна с кухня и трапезария, две комфортни спални, тераса. Жилището е с включен в цената склад - 3.38 кв.м.
Имотът се издава в степен на завършеност по БДС (на шпакловка и замазка). Отоплението е на газ и климатици.
Има възможност за закупуване на подземни паркоместа на цени от 26 667 евро (52156,12 лв.) без ДДС или наземни паркоместа на цени от 20 000 евро (39116,6 лв.) без ДДС.
Локация
Новата жилищна сграда на ТАСКОВ & СТОЯНОВ от поредицата COMFORT RESIDENCE е разположена в новообразувания район на кв. "Малинова долина", в близост до Националната спортна академия "Васил Левски" (НСА). Проектът е дело на утвърденото и многократно награждавано архитектурно бюро STUDIO CREATIVE, с което инвеститорът сътрудничи дългосрочно.
Локацията е с отлична свързаност – близо до бъдеща метростанция в района, от линията "Надежда - Лозенец", до университетите на "Студентски град", НСА и Зимния дворец, с бърз достъп до "Симеоновско шосе" и Околовръстен път, Ring Mall, Бизнес парк София. Удобен е и достъпът до природен парк Витоша и централната част на столицата.
Жилищен комплекс "COMFORT RESIDENCE - Малинова долина II" е пример за модернистична архитектура, която съчетава естетика, функционалност и комфорт. Сградата е проектирана така, че да създава благоприятна жилищна среда, в която светлината, пространството и природата играят водеща роля. Проектът предлага устойчиво и висококачествено градско обитаване, отговарящо на най-новите тенденции в съвременната архитектура на световно ниво.
Строителството се изпълнява от лидера при луксозното строителство ELITE BUILDING COMPANY. Планирано е да се използват най-съвременни технологии, в комбинация с висок клас материали и оборудване от водещи световни производители:
• Тухли WIENERBERGER;
• Фасада и топлоизолационен пакет BAUMIT;
• 6-камерна PVC дограма DECEUNINCK. Профилната система е с широчина на касата 76 мм. Обков и аксесоари SIEGENIA. Стъклопакетът е с дебелина 44 мм, с две светли стъкла по флоат 4 мм и едно нискоемисийно К-стъкло 4 мм;
• 8-местни асансьори ORONA с елегантен финиш;
• Луксозно завършени общи части по дизайнерски интериорен проект, включително настилки от полиран естествен камък.
За сградата
Функционално сградата е проектирана на четири нива с последен терасовиден етаж, като всеки етаж е проектиран с максимален комфорт и оптимално разпределение на жилищата. Партерният (първи) етаж включва достъпни жилища с индивидуални зелени дворове, както и основен вход с модерен и приветлив дизайн. Типовите етажи предлагат апартаменти с просторни лоджии и френски прозорци, които увеличават връзката с външното пространство. Жилищата на последния етаж са оформени като луксозни пентхауси с панорамни тераси, предлагащи уникални гледки и ексклузивно обитаване. Вертикалната комуникация е решена с два асансьора и една стълбищна клетка, гарантиращи функционалност и удобство.
"COMFORT RESIDENCE - Малинова долина II" предлага общо 40 апартамента, 41 подземни паркоместа и 10 надземни (външни) паркоместа. На първия етаж са разположени апартаменти с прилежащи частни дворове, както и външните паркоместа.
Апартаментите в сградата са двустайни и тристайни жилища. Към всеки апартамент има склад, който е включен в цената и в общата площ.
Схемите на плащания освен по договаряне, което е възможно, са:
Схема 1 с банков кредит:
• 3912 лв. (2000 евро) депозит (стоп-капаро) за 2-стаен и 5868 лв. (3000 евро) за 3-стаен и 4-стаен апартамент. Подписва се депозитно споразумение с ангажимент за подписване на предварителен договор за покупко-продажба;
• 30% минус стоп-капарото при подписване на предварителен договор;
• 70% с банков кредит след Акт 14 (удостоверение по чл.181 от ЗУТ) на траншове.
Схема 2:
• 3912 лв. (2000 евро) евро депозит (стоп-капаро) за 2-стаен и 5868 лв. (3000 евро) за 3-стаен и 4-стаен апартамент. Подписва се депозитно споразумение с ангажимент за подписване на предварителен договор за покупко-продажба;
• 30% минус стоп-капарото при подписване на предварителен договор;
• 10% при достигнат втори етаж на сградата;
• 30% при издаден Акт 14;
• 10% при поставена фасада и дограма;
• 10% при издаден Акт 15;
• 10% при издаден Акт 16 (Разрешение за ползване).
Концепция
Архитектите и строителният предприемач отново са заложили на жилищен комплекс с най-съвременен дизайн, проектиран с акцент върху минималистичния стил, чистите линии и хармоничното взаимодействие между архитектурата и околната среда. Композицията съчетава функционалност и естетика, предлагайки открити пространства, обилно естествено осветление и модерни материали. Сградата има правоъгълна форма, с добре дефинирана модулна структура, която придава усещане за ред и ритъм. Разпределението на фасадата и прозорците създава балансирана визия, като същевременно предоставя оптимално осветление и гледки към заобикалящата среда и красивата планина.
Фасадната композиция и материалите съчетават светли и тъмни тонове, които създават елегантен и изчистен облик. Основният материал е светла минерална мазилка, която придава лекота и ефирност на сградата, докато акцентът в цвят Bronze на прозорците и зелените детайли внасят дълбочина и контраст. Стъклените парапети на терасите добавят модернистичност и прозрачност, подчертавайки връзката между интериорните и екстериорните пространства. Използването на големи стъклени прозорци (тип "френски") допълнително усилва този ефект, като позволява интериорът и екстериорът да се слеят в едно цяло. Покривната конструкция е проектирана така, че да създаде динамика и характер на силуета, но и реално да предпазва терасите.
Ландшафтното оформление е ключов елемент в цялостния дизайн на комплекса. Пространствата около сградата включват богата растителност, декоративни дървета, храсти и тревни площи, които създават усещане за хармония и природна среда. Специално внимание е отделено на зелените площи с интегрирани кътове за отдих пешеходни алеи, облицовани с декоративни настилки и външно LED осветление, което подчертава архитектурните детайли през нощта.
Предимства на "COMFORT RESIDENCE - Малинова долина II":
• До НСА и Зимен дворец, университетите на "Студентски град" - атрактивни имоти за инвестиция за отдаване под наем;
• Впечатляваща визия, луксозни общи части, безупречен дизайн;
• Оптимизирани жилища с комфортни и функционални разпределения;
• Отопление на газ;
• Висококачествено строителство и иновативни технологии;
• Инвеститор с богат опит и множество успешно реализирани сгради.
Очакваме Вашето запитване
Ако желаете да организирате оглед на имот, който Ви интересува, или да посетите някой от нашите офиси, моля свържете се с нас. За да уговорите ден и час за среща или оглед, можете да се обадите на посочения в обявата телефон или да изпратите запитване чрез електронната поща. Нашият консултант ще Ви съдейства с всички необходими подробности и ще уговори удобно за Вас време.
Търсите подходящия за Вас имот?
Не се колебайте да се свържете с нас и да ни разкажете за Вашите нужди и предпочитания. Нашият екип ще проведе задълбочено проучване на пазара, за да Ви предложи имоти, които точно отговарят на Вашите критерии. Разполагаме с изключително портфолио от висококачествени и ексклузивни жилища, които са достъпни само за нашите клиенти. За да сте първите, които ще получите информация за тях – свържете се с нас.
Допълнителни услуги
Като ценен клиент на нашата компания, Вие ще имате привилегията да ползвате напълно безплатно услугите на нашия опитен юридически екип. В допълнение, предлагаме комплексни решения, включващи имуществена застраховка, безплатна финансова консултация, както и изгодни условия за финансиране. Нашите услуги се разпростират и в сферата на препродажбата, отдаването под наем и управлението на имоти. Осигуряваме висококачествени ремонтни дейности и обзавеждане чрез специализирани фирми, които са част от нашата корпоративна група и са наши дългогодишни професионални партньори.
На картата с червен маркер е указано приблизителното местоположение на имота/комплекса.
Видео
Схемите на плащания освен по договаряне, което е възможно, са:
Схема 1 с банков кредит:
• 3912 лв. (2000 евро) депозит (стоп-капаро) за 2-стаен и 5868 лв. (3000 евро) за 3-стаен и 4-стаен апартамент. Подписва се депозитно споразумение с ангажимент за подписване на предварителен договор за покупко-продажба;
• 30% минус стоп-капарото при подписване на предварителен договор;
• 70% с банков кредит след Акт 14 (удостоверение по чл.181 от ЗУТ) на траншове.
Схема 2:
• 3912 лв. (2000 евро) евро депозит (стоп-капаро) за 2-стаен и 5868 лв. (3000 евро) за 3-стаен и 4-стаен апартамент. Подписва се депозитно споразумение с ангажимент за подписване на предварителен договор за покупко-продажба;
• 30% минус стоп-капарото при подписване на предварителен договор;
• 10% при достигнат втори етаж на сградата;
• 30% при издаден Акт 14;
• 10% при поставена фасада и дограма;
• 10% при издаден Акт 15;
• 10% при издаден Акт 16 (Разрешение за ползване).

