Етажност на сградата
8
Етаж
5
Асансьор
да
Стаи
4
Спални
3
Бани
2
Балкони (тераси) бр.:
1

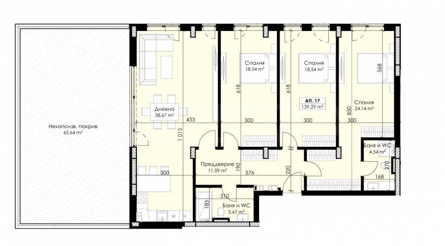
Обща площ
162.56 м²
Застроена площ
139.29 м²
Общи части
23.27 м²
Състояние
В процес на строителство
Планирано завършване
Декември 2027

Цена
268 224 €
524 601 лв.
524 601 лв.
1 650 €/м²
3 227 лв./м²
3 227 лв./м²
Без комисиона от купувача
Запитване за повече информация или оглед
Инфо пакет
Разстояния
Последна актуализация
27.10.2025 г.
Разстояния от имота до други важни обекти
- Център на града: 4.5 км
- Plovdiv (PDV): 18.7 км
Гледки от имота
- Гледка към града
Строителство
- Стоманобетонна конструкция
- Тухла
Отопление
- Климатици
Административна информация за офертата
ГАЗИФИКАЦИЯ, ЕЛЕКТРИЧЕСТВО
- Електричество
ВОДОСНАБДЯВАНЕ
- Вода
- Водоснабдяване
АСАНСЬОРИ
- автоматични врати
- луксозни асансьори
КАНАЛИЗАЦИЯ
- Канализация
ФАСАДА
- керамика
- окачена фасада
- тухли
ВИД НА ОБЩИТЕ ЧАСТИ
- гранитогресни плочки
- стени/боядисани с латекс
ПОКРИВ
- плосък покрив
- покривна изолация
САНИТАРНИ И СПОМАГАТЕЛНИ ПОМЕЩЕНИЯ
- Балкон
- Баня с тоалетна
ИЗОЛАЦИИ И ДОВЪРШИТЕЛНИ РАБОТИ
- Алуминиева дограма
- Блиндирана входна врата
- На шпакловка и замазка
- Тухлени стени
ЕКСТРИ В СГРАДАТА
- Асансьор
- Луксозни общи части
ДРУГИ
- Магазин за хранителни стоки в близост
Има сгради, които се строят, за да бъдат продадени. Има и такива, които се проектират, за да останат. Тази е от вторите!
Представяме четиристаен апартамент в нов бутиков комплекс в кв. "Христо Смирненски". В близост до супермаркет Лекси, МБАЛ Пълмед, УМБАЛ Св. Георги, Математическа гимназия, СУ "Св. Св. Кирил и Методий".
В процес на строителство, Акт 14 се очаква 30.06.2026 г., Акт 15 до 30.06.2027 г., а Акт 16 е предвиден до 30.12.2027 г.
БЕЗ КОМИСИОНА!
Проектът е замислен с идеята да не изглежда като нищо друго в квартала. Фасадата е вентилируема, с архитектурни детайли, които ще изглеждат актуални и след десет години.
Интериорът на общите части ще бъде изпълнен с материали от висок клас, естествени текстури и светлина, която променя усещането за пространство.
Сградата е с един вход и предлага само 27 апартамента - двустайни, тристайни и четиристайни.
Параметри на имота
Жилището с обща площ от 162,56 кв.м е разположено на 5-и етаж от 8.
Апартаментите се издават в степен на завършеност по БДС, на шпакловка и замазка:
• стени и тавани - турбозолна мазилка;
• под - на циментова замазка;
• монтирана входна врата - блиндирана;
• електро инсталация - до ключове и контакти;
• водопровод и канализация до тапа.
Технически характеристики:
• вентилеруема фасада;
• тухли - Wienerberger Porotherm 25 Profi - эа външни стени, Wienerberger Porotherm 12 Profi - за преградни стени;
• хидроизолация - 1 см - хидроизолация от два пласта битумна мушама 5 см, изравнителна циментова замазка, 1 см - пароизолация от полиетилелово фолио;
• топлоизолация - 10 см - топлоизолация на покрив с XPS плочи;
• шумоизилация в под и таван и между отделните апартаменти;
• светла височина на помещенията - 2,63 м;
• големи прозорци, триплекс стъклопакети и алуминиева дограма Reynaers MasterLine 8 HI – система от най-висок клас, осигуряваща топло-, шумо- и • ветроустойчивост на ниво бизнес сграда;
• ключове и контакти;
• общи части - луксозни с едроплощен гранитогрес.
Паркирането е осигурено над 100% с паркоместа и гаражи.
Това не е "още една сграда в Смирненски". Това е проект за хора, които знаят какво искат — качествено строителство, дискретен лукс и място, което се усеща правилно.
За повече информация и организиране на оглед, моля свържете се с отговорния брокер по офертата.
Представяме четиристаен апартамент в нов бутиков комплекс в кв. "Христо Смирненски". В близост до супермаркет Лекси, МБАЛ Пълмед, УМБАЛ Св. Георги, Математическа гимназия, СУ "Св. Св. Кирил и Методий".
В процес на строителство, Акт 14 се очаква 30.06.2026 г., Акт 15 до 30.06.2027 г., а Акт 16 е предвиден до 30.12.2027 г.
БЕЗ КОМИСИОНА!
Проектът е замислен с идеята да не изглежда като нищо друго в квартала. Фасадата е вентилируема, с архитектурни детайли, които ще изглеждат актуални и след десет години.
Интериорът на общите части ще бъде изпълнен с материали от висок клас, естествени текстури и светлина, която променя усещането за пространство.
Сградата е с един вход и предлага само 27 апартамента - двустайни, тристайни и четиристайни.
Параметри на имота
Жилището с обща площ от 162,56 кв.м е разположено на 5-и етаж от 8.
Апартаментите се издават в степен на завършеност по БДС, на шпакловка и замазка:
• стени и тавани - турбозолна мазилка;
• под - на циментова замазка;
• монтирана входна врата - блиндирана;
• електро инсталация - до ключове и контакти;
• водопровод и канализация до тапа.
Технически характеристики:
• вентилеруема фасада;
• тухли - Wienerberger Porotherm 25 Profi - эа външни стени, Wienerberger Porotherm 12 Profi - за преградни стени;
• хидроизолация - 1 см - хидроизолация от два пласта битумна мушама 5 см, изравнителна циментова замазка, 1 см - пароизолация от полиетилелово фолио;
• топлоизолация - 10 см - топлоизолация на покрив с XPS плочи;
• шумоизилация в под и таван и между отделните апартаменти;
• светла височина на помещенията - 2,63 м;
• големи прозорци, триплекс стъклопакети и алуминиева дограма Reynaers MasterLine 8 HI – система от най-висок клас, осигуряваща топло-, шумо- и • ветроустойчивост на ниво бизнес сграда;
• ключове и контакти;
• общи части - луксозни с едроплощен гранитогрес.
Паркирането е осигурено над 100% с паркоместа и гаражи.
Това не е "още една сграда в Смирненски". Това е проект за хора, които знаят какво искат — качествено строителство, дискретен лукс и място, което се усеща правилно.
За повече информация и организиране на оглед, моля свържете се с отговорния брокер по офертата.
Виж текста на други езици (автоматичен превод)
Местоположение (приблизително)
На картата с червен маркер е указано приблизителното местоположение на имота/комплекса.
Нашите топ оферти за продажба в Пловдив, България
Имоти по тип, Пловдив
- Тристайни апартаменти в Пловдив
- Двустайни апартаменти в Пловдив
- Апартаменти (различни типове) в Пловдив
- Четиристайни апартаменти в Пловдив
- Къщи в Пловдив
- Едностайни апартаменти в Пловдив
- Магазини в Пловдив
- Търговски имоти в Пловдив
- Земеделски земи в Пловдив
- Петстайни апартаменти в Пловдив
Популярни търсения
- Селски къщи в България
- Имоти за продажба в Пловдив
- Имоти в Пловдив
- Имоти под наем в Пловдив
- Тристайни апартаменти за продажба в Пловдив
- Двустайни апартаменти за продажба в Пловдив
- Къщи за продажба в Пловдив
- Имоти за продажба в кв.Център, Пловдив
- Едностайни апартаменти за продажба в Пловдив
- Имоти за продажба в кв.Христо Смирненски, Пловдив

