Клас на сградата/комплекса
Стандартен
Етажност на сградата
5
Етаж
2
Асансьор
да
Стаи
2
Спални
1
Бани
1
Балкони (тераси) бр.:
1

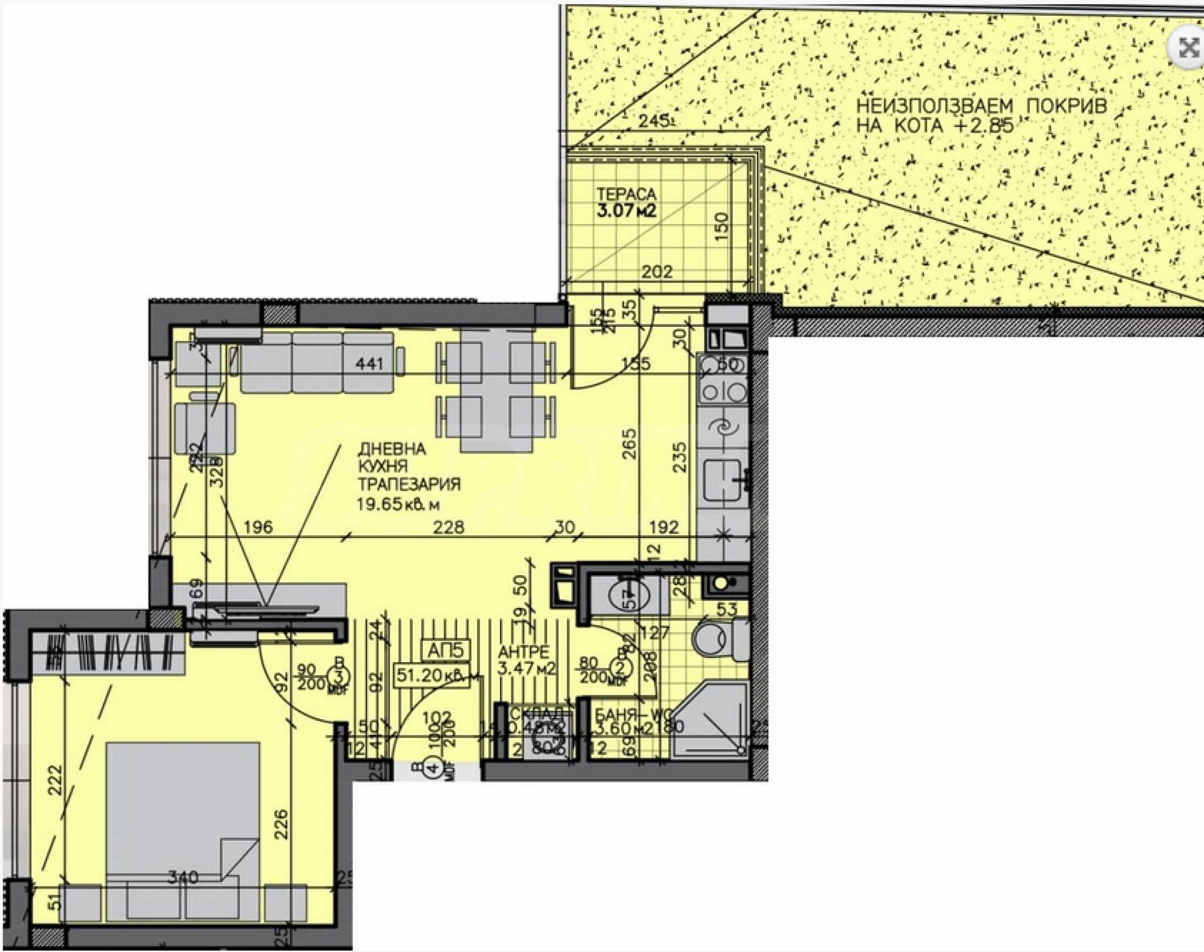
Обща площ
86.44 м²
Застроена площ
75.98 м²
Общи части
10.46 м²
Градина
24.67 м²
Състояние
В процес на строителство
Планирано завършване
Август 2027

Цена
146 942 €
287 394 лв.
287 394 лв.
1 700 €/м²
3 325 лв./м²
3 325 лв./м²
Без такса поддръжка
Без комисиона от купувача
Запитване за повече информация или оглед
Инфо пакет
Разстояния
Последна актуализация
31.12.2025 г.
Разстояния от имота до други важни обекти
- Burgas (BOJ): 8 км
Административна информация за офертата
ПОКРИВ
- остър покрив
САНИТАРНИ И СПОМАГАТЕЛНИ ПОМЕЩЕНИЯ
- Балкони
- Паркинг
ИЗОЛАЦИИ И ДОВЪРШИТЕЛНИ РАБОТИ
- PVC дограма
- Блиндирана входна врата
- На шпакловка и замазка
ЕКСТРИ В СГРАДАТА
- Асансьор
Представяме слънчев двустаен апартамент в нова, модерна сграда, съчетаваща стил, качество и комфорт, разположена в един от най-зелените и предпочитани квартали на Бургас – ж.к. „Зорница“. Локацията осигурява спокойна жилищна среда с отлична инфраструктура, съчетавайки близостта до морето и бързия достъп до всички удобства на града.
Етапи:
• В процес на строителство от 08.2025 г.
• Планирано завършване - след 24 месеца.
Локация и предимства:
• Сградата се намира в район с ограничени възможности за ново строителство, което гарантира устойчива стойност във времето.
• Местоположението предлага баланс между комуникативност и спокойствие – в близост са центърът на града, Морската градина, основни пътни артерии, детска градина, училище, спортна зала, спирки на градския транспорт и разнообразие от магазини и заведения.
• На пешеходно разстояние се намират клиника 4Life, поликлиника, детска клиника и здравни лаборатории, което прави района изключително подходящ за семейства и хора, търсещи комфорт и сигурност.
Характеристики на сградата:
• Пет жилищни етажа с двустайни и тристайни имоти, завършени по БДС.
• Сутерен с гаражи и паркоместа, осигуряващи удобство и безопасност за собствениците.
• Модерна архитектура и енергийно ефективни решения, гарантиращи ниски разходи за поддръжка и отопление.
• Висококачествени материали и прецизно строителство – стандарт, който осигурява дълготрайна стойност и комфорт.
Характеристики на имота
• Разположен на втори жилищен етаж;
• Обща площ: 86.44 кв.м;
• Общи части: 10.46 кв.м;
• Изложение: изток;
• Разпределение: просторна всекидневна с кухня и трапезария, комфортна спалня, баня с тоалетна и тераса;
• Жилището разполага с дворно пространство с площ 24.67 кв.м.
Предимства:
• Съвременна архитектура и елегантна фасада;
• Без такса поддръжка;
• Енергийна ефективност и модерни инсталации;
• Спокойна среда с развиваща се инфраструктура;
• Подходяща локация за целогодишно живеене;
• Атрактивни цени и гъвкави схеми на плащане.
Стандартна схема на плащане:
• 40% – до 7 дни след подписване на предварителен договор;
• 30% – при издаване на Акт 14;
• 20% – при Акт 15;
• 10% – при Акт 16.
*Възможно е изготвяне и на индивидуална схема на плащане според нуждите на клиента.
Очакваме Вашето запитване
Ако желаете да организирате оглед на имот, който Ви интересува, или да посетите някой от нашите офиси, моля свържете се с нас. За да уговорите ден и час за среща или оглед, можете да се обадите на посочения в обявата телефон или да изпратите запитване чрез електронната поща. Нашият консултант ще Ви съдейства с всички необходими подробности и ще уговори удобно за Вас време.
Търсите подходящия за Вас имот?
Не се колебайте да се свържете с нас и да ни разкажете за Вашите нужди и предпочитания. Нашият екип ще проведе задълбочено проучване на пазара, за да Ви предложи имоти, които точно отговарят на Вашите критерии. Разполагаме с изключително портфолио от висококачествени и ексклузивни жилища, които са достъпни само за нашите клиенти. За да сте първите, които ще получите информация за тях – свържете се с нас.
Допълнителни услуги
Като ценен клиент на нашата компания, Вие ще имате привилегията да ползвате напълно безплатно услугите на нашия опитен юридически екип. В допълнение, предлагаме комплексни решения, включващи имуществена застраховка, безплатна финансова консултация, както и изгодни условия за финансиране. Нашите услуги се разпростират и в сферата на препродажбата, отдаването под наем и управлението на имоти. Осигуряваме висококачествени ремонтни дейности и обзавеждане чрез специализирани фирми, които са част от нашата корпоративна група и са наши дългогодишни професионални партньори.
Етапи:
• В процес на строителство от 08.2025 г.
• Планирано завършване - след 24 месеца.
Локация и предимства:
• Сградата се намира в район с ограничени възможности за ново строителство, което гарантира устойчива стойност във времето.
• Местоположението предлага баланс между комуникативност и спокойствие – в близост са центърът на града, Морската градина, основни пътни артерии, детска градина, училище, спортна зала, спирки на градския транспорт и разнообразие от магазини и заведения.
• На пешеходно разстояние се намират клиника 4Life, поликлиника, детска клиника и здравни лаборатории, което прави района изключително подходящ за семейства и хора, търсещи комфорт и сигурност.
Характеристики на сградата:
• Пет жилищни етажа с двустайни и тристайни имоти, завършени по БДС.
• Сутерен с гаражи и паркоместа, осигуряващи удобство и безопасност за собствениците.
• Модерна архитектура и енергийно ефективни решения, гарантиращи ниски разходи за поддръжка и отопление.
• Висококачествени материали и прецизно строителство – стандарт, който осигурява дълготрайна стойност и комфорт.
Характеристики на имота
• Разположен на втори жилищен етаж;
• Обща площ: 86.44 кв.м;
• Общи части: 10.46 кв.м;
• Изложение: изток;
• Разпределение: просторна всекидневна с кухня и трапезария, комфортна спалня, баня с тоалетна и тераса;
• Жилището разполага с дворно пространство с площ 24.67 кв.м.
Предимства:
• Съвременна архитектура и елегантна фасада;
• Без такса поддръжка;
• Енергийна ефективност и модерни инсталации;
• Спокойна среда с развиваща се инфраструктура;
• Подходяща локация за целогодишно живеене;
• Атрактивни цени и гъвкави схеми на плащане.
Стандартна схема на плащане:
• 40% – до 7 дни след подписване на предварителен договор;
• 30% – при издаване на Акт 14;
• 20% – при Акт 15;
• 10% – при Акт 16.
*Възможно е изготвяне и на индивидуална схема на плащане според нуждите на клиента.
Очакваме Вашето запитване
Ако желаете да организирате оглед на имот, който Ви интересува, или да посетите някой от нашите офиси, моля свържете се с нас. За да уговорите ден и час за среща или оглед, можете да се обадите на посочения в обявата телефон или да изпратите запитване чрез електронната поща. Нашият консултант ще Ви съдейства с всички необходими подробности и ще уговори удобно за Вас време.
Търсите подходящия за Вас имот?
Не се колебайте да се свържете с нас и да ни разкажете за Вашите нужди и предпочитания. Нашият екип ще проведе задълбочено проучване на пазара, за да Ви предложи имоти, които точно отговарят на Вашите критерии. Разполагаме с изключително портфолио от висококачествени и ексклузивни жилища, които са достъпни само за нашите клиенти. За да сте първите, които ще получите информация за тях – свържете се с нас.
Допълнителни услуги
Като ценен клиент на нашата компания, Вие ще имате привилегията да ползвате напълно безплатно услугите на нашия опитен юридически екип. В допълнение, предлагаме комплексни решения, включващи имуществена застраховка, безплатна финансова консултация, както и изгодни условия за финансиране. Нашите услуги се разпростират и в сферата на препродажбата, отдаването под наем и управлението на имоти. Осигуряваме висококачествени ремонтни дейности и обзавеждане чрез специализирани фирми, които са част от нашата корпоративна група и са наши дългогодишни професионални партньори.
Виж текста на други езици (автоматичен превод)
Местоположение (приблизително)
На картата с червен маркер е указано приблизителното местоположение на имота/комплекса.
Нашите топ оферти за продажба в Бургас, България
Имоти по тип, Бургас
- Тристайни апартаменти в Бургас
- Двустайни апартаменти в Бургас
- Апартаменти (различни типове) в Бургас
- Къщи в Бургас
- Парцели за инвестиция в Бургас
- Четиристайни апартаменти в Бургас
- Парцели в регулация в Бургас
- Едностайни апартаменти в Бургас
- Земеделски земи в Бургас
- Многостайни апартаменти в Бургас
Популярни търсения
- Селски къщи в България
- Имоти за продажба в Бургас
- Имоти в Бургас
- Имоти под наем в Бургас
- Къщи за продажба в Бургас
- Двустайни апартаменти за продажба в Бургас
- Имоти в кв.Долно Езерово, Бургас
- Имоти за продажба в кв.Сарафово, Бургас
- Едностайни апартаменти за продажба в Бургас
- Апартаменти (различни типове) за продажба в Бургас

