Етажност на сградата
4
Етаж
1
Мазе
да
Стаи
2
Спални
1
Бани
1
Мазе/склад
да
Мазе (площ)
1.75 м²

Обща площ
71.08 м²
Застроена площ
60.04 м²
Общи части
11.04 м²
Градина
59.69 м²
Състояние
Предварителни продажби
Планирано начало
Януари 2025
Очаквано завършване
2027
Запитване за повече информация или оглед
Инфо пакет
Разстояния
Последна актуализация
01.12.2025 г.
Разстояния от имота до други важни обекти
- Център на града: 5 км
- Sofia (SOF): 14 км
Отопление
- Климатици
- Парно на ток
Административна информация за офертата
ГАЗИФИКАЦИЯ, ЕЛЕКТРИЧЕСТВО
- Електричество
ВОДОСНАБДЯВАНЕ
- Водоснабдяване
САНИТАРНИ И СПОМАГАТЕЛНИ ПОМЕЩЕНИЯ
- Баня с тоалетна
- Мазе
ИЗОЛАЦИИ И ДОВЪРШИТЕЛНИ РАБОТИ
- Външна изолация
- На шпакловка и замазка
ДВОР И ГРАДИНА
- Двор
Представяме двустаен апартамент за продажба в модерна нова сграда в близост до Южния парк и с чудесна гледка към планина Витоша, в процес на предварителни продажби, която предлага двустайни и тристайни апартаменти, с предвиден срок на изпълнение - 24 месеца и планиран Акт 16 в началото на 2027 г.
Концепцията на сградата съчетава елегантност и функционалност – просторни дневни, богата естествена светлина през целия ден и модерни архитектурни решения. Входните фоайета и общите части ще бъдат изпълнени с висок клас материали, с просторни коридори и естествено осветление.
Жилищата се продават завършени по БДС. Имотите на първото ниво ще притежават собствен двор.
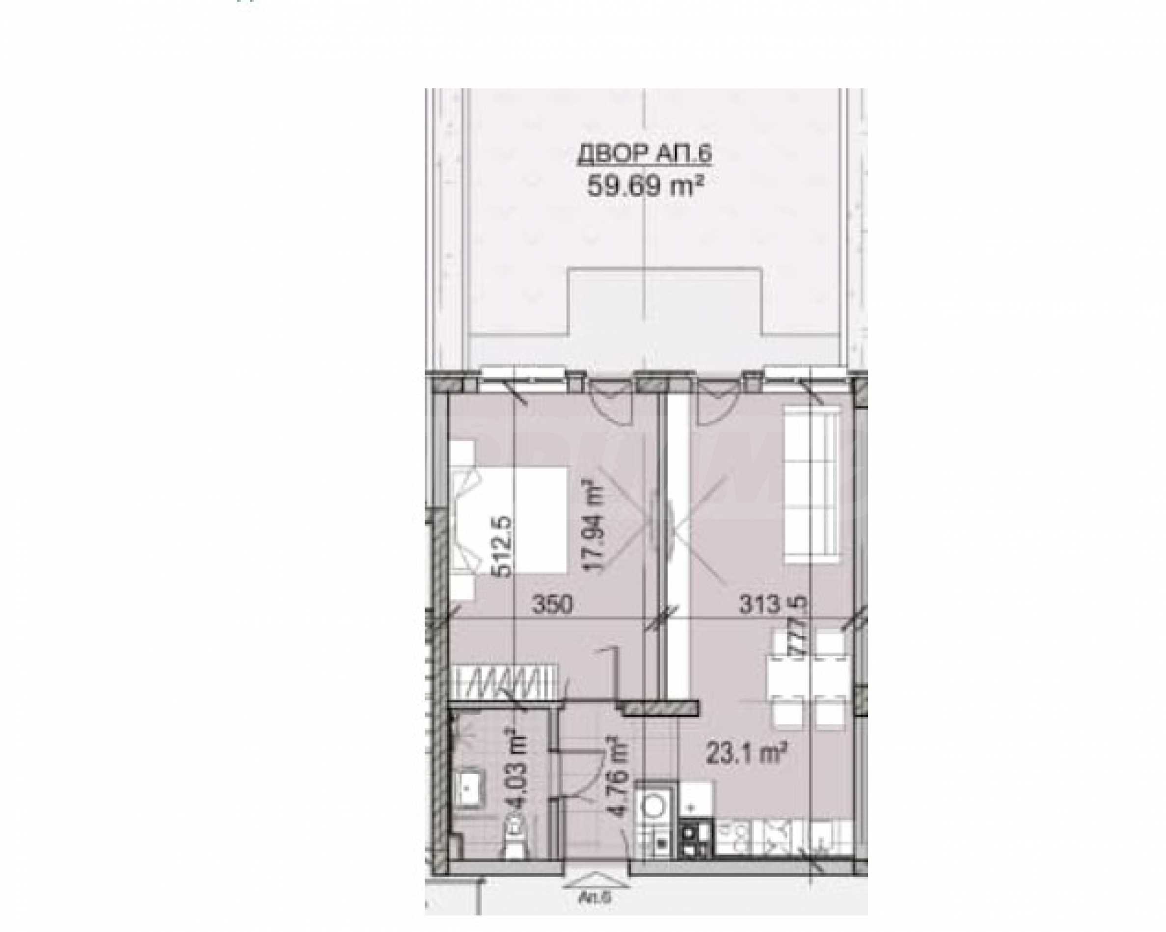
Разпределение на имота
Апартамент №6 е разположен на първи етаж и има обща площ 71.08 кв.м, чиста площ - 58.29 кв.м, двор - 59.69 кв.м, склад - 1.75 кв.м.
Жилището се състои от антре, баня/тоалетна, дневна с кухня и една спалня, с излаз в градината на имота от двете стаи.
Има опция за закупуването на външно паркомясто на цена от 25 000 евро (48 896 лв.) и гаражи - от 35 000 евро (68 454 лв.).
Локация
Сградата е разположена на тиха и озеленена улица, с лесен достъп до бул. „България“ и Околовръстния път. Районът е предпочитан заради зелената си среда и развитата инфраструктура, предлагаща всичко необходимо за съвременен начин на живот.
Отстояния:
• Бул. „България“ – само на 2–3 минути с автомобил;
• Центърът на София – около 15 минути път;
• В радиус от 2 минути – супермаркети Kaufland, болница „Св. София“ и разнообразие от магазини;
• В непосредствена близост – ресторанти, кафенета, спортни и медицински центрове.
Очакваме Вашето запитване
Ако желаете да организирате оглед на имот, който Ви интересува, или да посетите някой от нашите офиси, моля свържете се с нас. За да уговорите ден и час за среща или оглед, можете да се обадите на посочения в обявата телефон или да изпратите запитване чрез електронната поща. Нашият консултант ще Ви съдейства с всички необходими подробности и ще уговори удобно за Вас време.
Търсите подходящия за Вас имот?
Не се колебайте да се свържете с нас и да ни разкажете за Вашите нужди и предпочитания. Нашият екип ще проведе задълбочено проучване на пазара, за да Ви предложи имоти, които точно отговарят на Вашите критерии. Разполагаме с изключително портфолио от висококачествени и ексклузивни жилища, които са достъпни само за нашите клиенти. За да сте първите, които ще получите информация за тях – свържете се с нас.
Допълнителни услуги
Като ценен клиент на нашата компания, Вие ще имате привилегията да ползвате напълно безплатно услугите на нашия опитен юридически екип. В допълнение, предлагаме комплексни решения, включващи имуществена застраховка, безплатна финансова консултация, както и изгодни условия за финансиране. Нашите услуги се разпростират и в сферата на препродажбата, отдаването под наем и управлението на имоти. Осигуряваме висококачествени ремонтни дейности и обзавеждане чрез специализирани фирми, които са част от нашата корпоративна група и са наши дългогодишни професионални партньори.
Концепцията на сградата съчетава елегантност и функционалност – просторни дневни, богата естествена светлина през целия ден и модерни архитектурни решения. Входните фоайета и общите части ще бъдат изпълнени с висок клас материали, с просторни коридори и естествено осветление.
Жилищата се продават завършени по БДС. Имотите на първото ниво ще притежават собствен двор.
Разпределение на имота
Апартамент №6 е разположен на първи етаж и има обща площ 71.08 кв.м, чиста площ - 58.29 кв.м, двор - 59.69 кв.м, склад - 1.75 кв.м.
Жилището се състои от антре, баня/тоалетна, дневна с кухня и една спалня, с излаз в градината на имота от двете стаи.
Има опция за закупуването на външно паркомясто на цена от 25 000 евро (48 896 лв.) и гаражи - от 35 000 евро (68 454 лв.).
Локация
Сградата е разположена на тиха и озеленена улица, с лесен достъп до бул. „България“ и Околовръстния път. Районът е предпочитан заради зелената си среда и развитата инфраструктура, предлагаща всичко необходимо за съвременен начин на живот.
Отстояния:
• Бул. „България“ – само на 2–3 минути с автомобил;
• Центърът на София – около 15 минути път;
• В радиус от 2 минути – супермаркети Kaufland, болница „Св. София“ и разнообразие от магазини;
• В непосредствена близост – ресторанти, кафенета, спортни и медицински центрове.
Очакваме Вашето запитване
Ако желаете да организирате оглед на имот, който Ви интересува, или да посетите някой от нашите офиси, моля свържете се с нас. За да уговорите ден и час за среща или оглед, можете да се обадите на посочения в обявата телефон или да изпратите запитване чрез електронната поща. Нашият консултант ще Ви съдейства с всички необходими подробности и ще уговори удобно за Вас време.
Търсите подходящия за Вас имот?
Не се колебайте да се свържете с нас и да ни разкажете за Вашите нужди и предпочитания. Нашият екип ще проведе задълбочено проучване на пазара, за да Ви предложи имоти, които точно отговарят на Вашите критерии. Разполагаме с изключително портфолио от висококачествени и ексклузивни жилища, които са достъпни само за нашите клиенти. За да сте първите, които ще получите информация за тях – свържете се с нас.
Допълнителни услуги
Като ценен клиент на нашата компания, Вие ще имате привилегията да ползвате напълно безплатно услугите на нашия опитен юридически екип. В допълнение, предлагаме комплексни решения, включващи имуществена застраховка, безплатна финансова консултация, както и изгодни условия за финансиране. Нашите услуги се разпростират и в сферата на препродажбата, отдаването под наем и управлението на имоти. Осигуряваме висококачествени ремонтни дейности и обзавеждане чрез специализирани фирми, които са част от нашата корпоративна група и са наши дългогодишни професионални партньори.
Виж текста на други езици (автоматичен превод)
Местоположение (приблизително)
На картата с червен маркер е указано приблизителното местоположение на имота/комплекса.
Нашите топ оферти за продажба в София, България
Популярни търсения
- Селски къщи в България
- Имоти за продажба в София
- Имоти в София
- Имоти под наем в София
- Тристайни апартаменти за продажба в София
- Къщи за продажба в София
- Двустайни апартаменти за продажба в София
- Апартаменти (различни типове) за продажба в София
- Едностайни апартаменти за продажба в София
- Двустайни апартаменти в София


