Етажност на сградата
5
Етаж
3
Асансьор
да
Стаи
3
Спални
2
Бани
2
Балкони (тераси) бр.:
2

Обща площ
130.54 м²
Застроена площ
117.72 м²
Общи части
12.82 м²
Получен Акт 16
Запитване за повече информация или оглед
Инфо пакет
Разстояния
Последна актуализация
23.12.2025 г.
Брой запитвания
1 бр. (за последните 30 дни)
Разстояния от имота до други важни обекти
- Център на града: 8 км
- Sofia (SOF): 9 км
Гледки от имота
- Гледка към града
- Гледка към планината
Строителство
- Тухла
Отопление
- Електрически конвектори
Административна информация за офертата
ГАЗИФИКАЦИЯ, ЕЛЕКТРИЧЕСТВО
- Електричество
САНИТАРНИ И СПОМАГАТЕЛНИ ПОМЕЩЕНИЯ
- Балкони
- Баня с тоалетна
- Дрешник
ИЗОЛАЦИИ И ДОВЪРШИТЕЛНИ РАБОТИ
- На шпакловка и замазка
ЕКСТРИ В СГРАДАТА
- Асансьор
- Затворен комплекс
Ексклузивно представяме югозападен апартамент с две спални и великолепна панорама към Витоша, за продажба в нов затворен комплекс в столицата.
Локацията е в кв. "Витоша", в близост до комплекс "Макси" и има изключително бърз достъп към Околовръстен път и бул. "Симеоновско шосе", както и до бъдеща метростанция, магазин Фантастико и Кауфланд. С удобен достъп до центъра и южните райони на София, районът предлага спокойна и зелена среда – идеална за семейства, млади професионалисти и хора, търсещи баланс между градския живот и природата. Кварталът се утвърди като един от най-предпочитаните столични райони. Развитието на новата инфраструктура и близостта до ключови локации в столицата го правят изключително атрактивен както за живеене, така и за инвестиция.
С АКТ 16!
Комплексът предлага качествено модерно строителство и богато озеленена градина със зони за отдих.
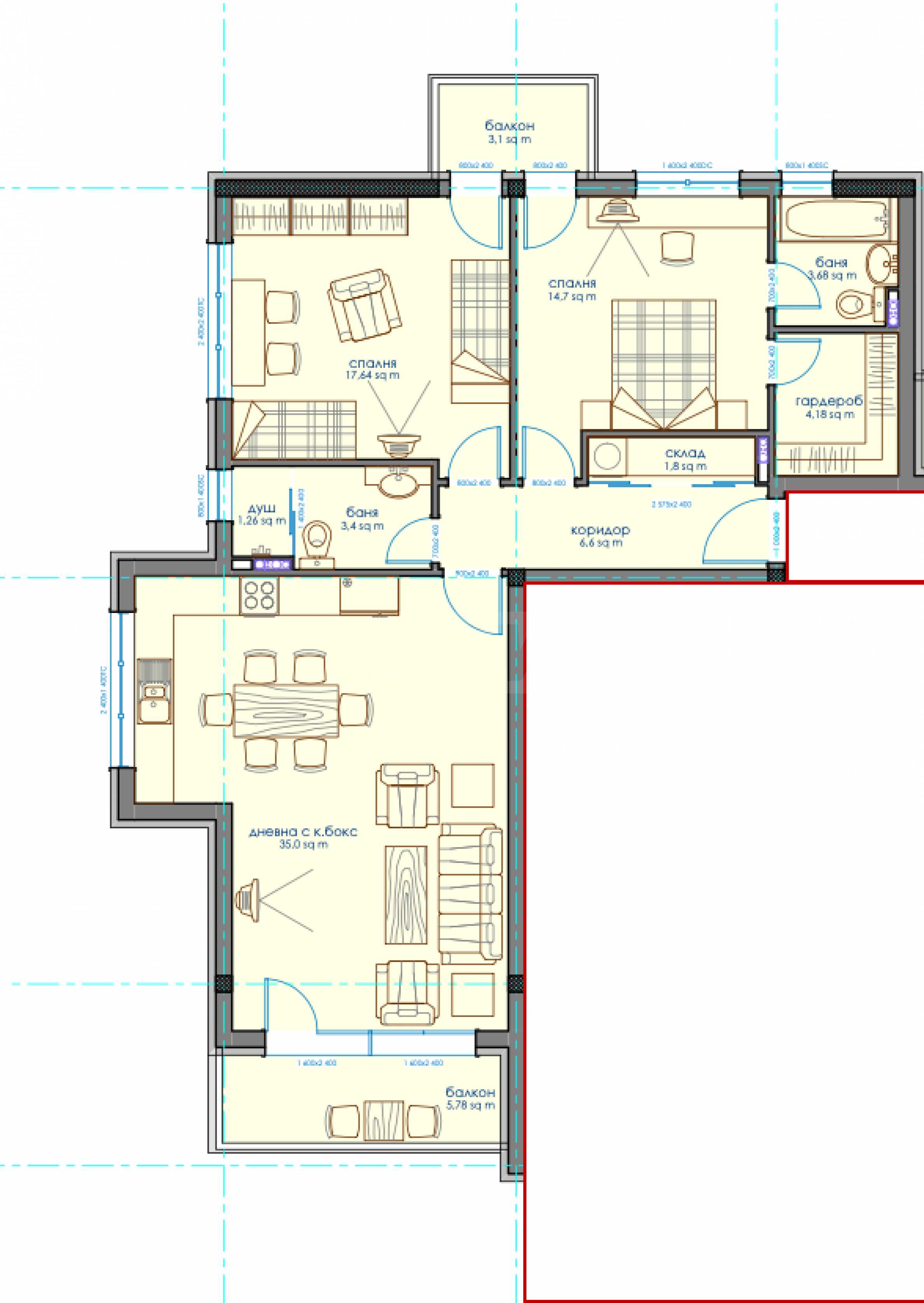
Апартаментът е разположен на 3-ти етаж от 5 и има обща площ 130.54 кв.м. Предлага се "по БДС" - на шпакловка и замазка. Отоплението е на електричество.
Разпределение:
• удобен коридор;
• баня с тоалетна;
• спалня 17.64 кв.м, със собствена баня и дрешник;
• втора спалня 14.70 кв.м;
• тераса към двете спални;
• просторна дневна 35 кв.м, с кухня и собствен балкон.
Има възможност за закупуване на подземно паркомясто.
Очакваме Вашето запитване
Ако желаете да организирате оглед на имот, който Ви интересува, или да посетите някой от нашите офиси, моля свържете се с нас. За да уговорите ден и час за среща или оглед, можете да се обадите на посочения в обявата телефон или да изпратите запитване чрез електронната поща. Нашият консултант ще Ви съдейства с всички необходими подробности и ще уговори удобно за Вас време.
Търсите подходящия за Вас имот?
Не се колебайте да се свържете с нас и да ни разкажете за Вашите нужди и предпочитания. Нашият екип ще проведе задълбочено проучване на пазара, за да Ви предложи имоти, които точно отговарят на Вашите критерии. Разполагаме с изключително портфолио от висококачествени и ексклузивни жилища, които са достъпни само за нашите клиенти. За да сте първите, които ще получите информация за тях – свържете се с нас.
Допълнителни услуги
Като ценен клиент на нашата компания, Вие ще имате привилегията да ползвате напълно безплатно услугите на нашия опитен юридически екип. В допълнение, предлагаме комплексни решения, включващи имуществена застраховка, безплатна финансова консултация, както и изгодни условия за финансиране. Нашите услуги се разпростират и в сферата на препродажбата, отдаването под наем и управлението на имоти. Осигуряваме висококачествени ремонтни дейности и обзавеждане чрез специализирани фирми, които са част от нашата корпоративна група и са наши дългогодишни професионални партньори.
Локацията е в кв. "Витоша", в близост до комплекс "Макси" и има изключително бърз достъп към Околовръстен път и бул. "Симеоновско шосе", както и до бъдеща метростанция, магазин Фантастико и Кауфланд. С удобен достъп до центъра и южните райони на София, районът предлага спокойна и зелена среда – идеална за семейства, млади професионалисти и хора, търсещи баланс между градския живот и природата. Кварталът се утвърди като един от най-предпочитаните столични райони. Развитието на новата инфраструктура и близостта до ключови локации в столицата го правят изключително атрактивен както за живеене, така и за инвестиция.
С АКТ 16!
Комплексът предлага качествено модерно строителство и богато озеленена градина със зони за отдих.
Апартаментът е разположен на 3-ти етаж от 5 и има обща площ 130.54 кв.м. Предлага се "по БДС" - на шпакловка и замазка. Отоплението е на електричество.
Разпределение:
• удобен коридор;
• баня с тоалетна;
• спалня 17.64 кв.м, със собствена баня и дрешник;
• втора спалня 14.70 кв.м;
• тераса към двете спални;
• просторна дневна 35 кв.м, с кухня и собствен балкон.
Има възможност за закупуване на подземно паркомясто.
Очакваме Вашето запитване
Ако желаете да организирате оглед на имот, който Ви интересува, или да посетите някой от нашите офиси, моля свържете се с нас. За да уговорите ден и час за среща или оглед, можете да се обадите на посочения в обявата телефон или да изпратите запитване чрез електронната поща. Нашият консултант ще Ви съдейства с всички необходими подробности и ще уговори удобно за Вас време.
Търсите подходящия за Вас имот?
Не се колебайте да се свържете с нас и да ни разкажете за Вашите нужди и предпочитания. Нашият екип ще проведе задълбочено проучване на пазара, за да Ви предложи имоти, които точно отговарят на Вашите критерии. Разполагаме с изключително портфолио от висококачествени и ексклузивни жилища, които са достъпни само за нашите клиенти. За да сте първите, които ще получите информация за тях – свържете се с нас.
Допълнителни услуги
Като ценен клиент на нашата компания, Вие ще имате привилегията да ползвате напълно безплатно услугите на нашия опитен юридически екип. В допълнение, предлагаме комплексни решения, включващи имуществена застраховка, безплатна финансова консултация, както и изгодни условия за финансиране. Нашите услуги се разпростират и в сферата на препродажбата, отдаването под наем и управлението на имоти. Осигуряваме висококачествени ремонтни дейности и обзавеждане чрез специализирани фирми, които са част от нашата корпоративна група и са наши дългогодишни професионални партньори.
Виж текста на други езици (автоматичен превод)
Местоположение (приблизително)
На картата с червен маркер е указано приблизителното местоположение на имота/комплекса.
Нашите топ оферти за продажба в София, България
Популярни търсения
- Селски къщи в България
- Имоти за продажба в София
- Имоти в София
- Имоти под наем в София
- Тристайни апартаменти за продажба в София
- Къщи за продажба в София
- Двустайни апартаменти за продажба в София
- Апартаменти (различни типове) за продажба в София
- Едностайни апартаменти за продажба в София
- Двустайни апартаменти в София


