Етажност на сградата
7
Етаж
1
Асансьор
да
Стаи
3
Спални
2
Бани
1
Балкони (тераси) бр.:
1
Тоалетни
1

Обща площ
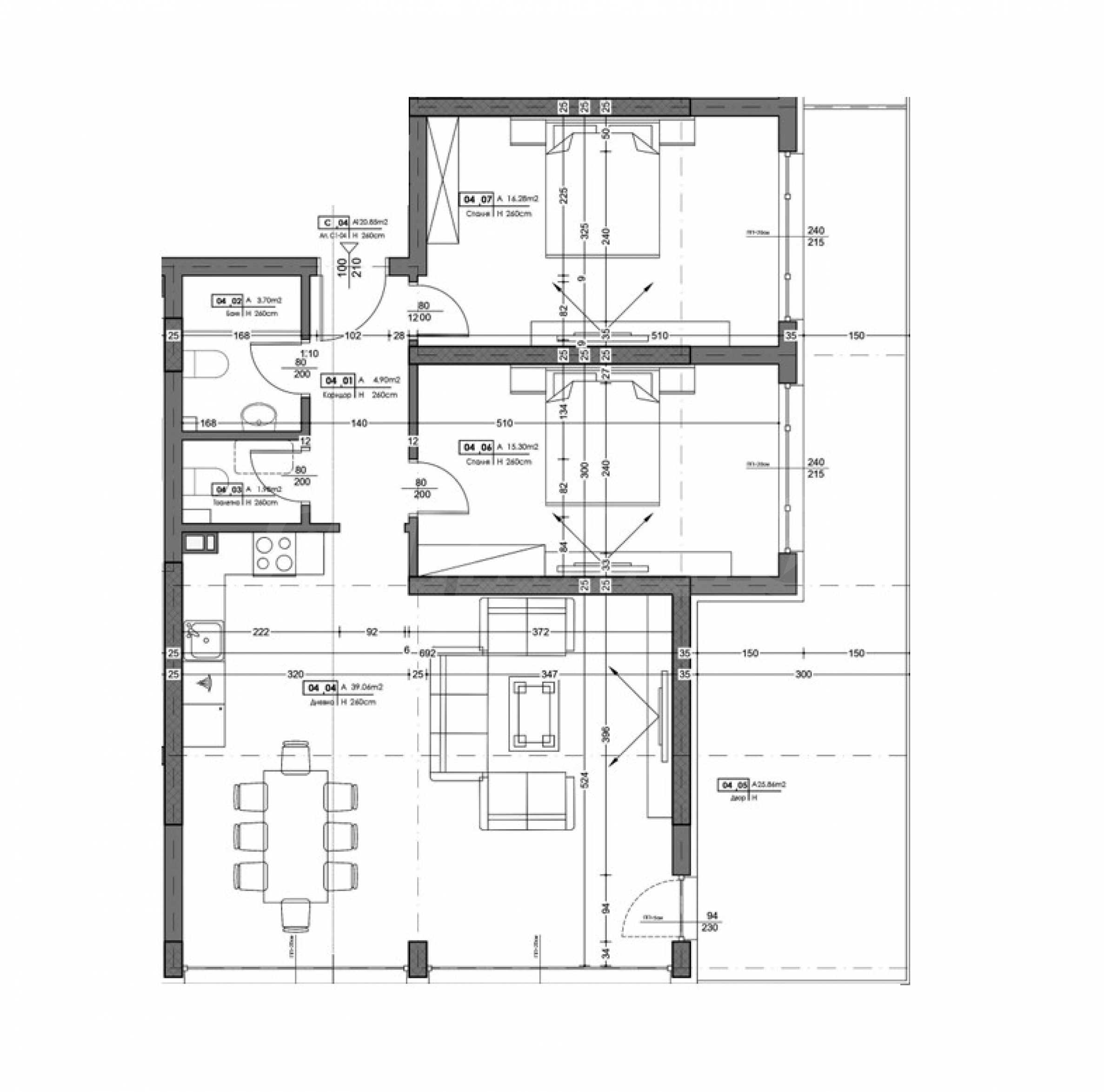
140.81 м²
Застроена площ
120.85 м²
Общи части
19.96 м²
Състояние
В процес на строителство
Планирано завършване
Декември 2027

Запитване за повече информация или оглед
Инфо пакет
Разстояния
Последна актуализация
08.12.2025 г.
Разстояния от имота до други важни обекти
- Център на града: 2.2 км
- Plovdiv (PDV): 15.8 км
Гледки от имота
- Гледка към града
Строителство
- Стоманобетонна конструкция
- Тухла
Административна информация за офертата
ГАЗИФИКАЦИЯ, ЕЛЕКТРИЧЕСТВО
- Електричество
ВОДОСНАБДЯВАНЕ
- Вода
КАНАЛИЗАЦИЯ
- Канализация
САНИТАРНИ И СПОМАГАТЕЛНИ ПОМЕЩЕНИЯ
- Балкон
- Баня с тоалетна
ИЗОЛАЦИИ И ДОВЪРШИТЕЛНИ РАБОТИ
- PVC дограма
- На шпакловка и замазка
ЕКСТРИ В СГРАДАТА
- Асансьор
ДРУГИ
- Магазин за хранителни стоки в близост
Представяме страхотен просторен тристаен апартамент в нов комплекс, в кв. "Кършияка", Пловдив. Отлична локация в близост до река Марица, Гребния канал, УМБАЛ Пловдив - Университетска Многопрофилна болница, Пловдивския университет, езиковите гимназии, магазин Алати и комплекс Марица Гардънс.
БЕЗ КОМИСИОНА!
Проектът се състои от 2 сгради и четири жилищни секции. Жилищните секции са типизирани - огледални и повтаряеми. Предлага студиа, двустайни, тристайни, четиристайни апартаменти, гаражни клетки и паркоместа, реализирани изцяло в подземен гараж, паркова среда с два детски къта - 5500 кв.м, фитнес на открито и водно огледало.
Имотът с обща площ от 140,81 кв.м е разположен на 1-ви етаж от 7.
Жилищата се предават в степен на завършеност по БДС:
БЕЗ КОМИСИОНА!
Проектът се състои от 2 сгради и четири жилищни секции. Жилищните секции са типизирани - огледални и повтаряеми. Предлага студиа, двустайни, тристайни, четиристайни апартаменти, гаражни клетки и паркоместа, реализирани изцяло в подземен гараж, паркова среда с два детски къта - 5500 кв.м, фитнес на открито и водно огледало.
Имотът с обща площ от 140,81 кв.м е разположен на 1-ви етаж от 7.
Жилищата се предават в степен на завършеност по БДС:
- висококачествена петкамерна дограма с троен стъклопакет;
- подготовка за smart home решения в жилищата;
- шумоизилация по подовете.
- фотоволтаична инсталация на покривите - за обезпечаване на общата консумация - общи части, парково осветление и др;
- 24 h видеонаблюдение;
- зарядни станции за електромобили - 22 kw;
- централна инсталация за филтриране и декалциране на питейната вода;
- инсталация за използване на дъждовните води за поливни нужди с резервоар.
- 30% предварителен договор;
- 50% при Акт 14;
- 20% при Акт 15.
Виж текста на други езици (автоматичен превод)
Местоположение (приблизително)
На картата с червен маркер е указано приблизителното местоположение на имота/комплекса.
Имоти по тип, Пловдив
- Тристайни апартаменти в Пловдив
- Двустайни апартаменти в Пловдив
- Апартаменти (различни типове) в Пловдив
- Четиристайни апартаменти в Пловдив
- Къщи в Пловдив
- Едностайни апартаменти в Пловдив
- Магазини в Пловдив
- Земеделски земи в Пловдив
- Петстайни апартаменти в Пловдив
- Парцели за инвестиция в Пловдив
Популярни търсения
- Селски къщи в България
- Имоти за продажба в Пловдив
- Имоти в Пловдив
- Имоти под наем в Пловдив
- Тристайни апартаменти за продажба в Пловдив
- Двустайни апартаменти за продажба в Пловдив
- Къщи за продажба в Пловдив
- Имоти за продажба в кв.Център, Пловдив
- Едностайни апартаменти за продажба в Пловдив
- Имоти за продажба в кв.Христо Смирненски, Пловдив

