Етажност на сградата
9
Етаж
8
Асансьор
да
Стаи
3
Спални
2
Бани
2
Площ на балконите (терасите)
44.69 м²
Балкони (тераси) бр.:
1

Обща площ
97.52 м²
Застроена площ
78.30 м²
Общи части
19.22 м²
Тераса
44.69 м²
Състояние
В процес на строителство
Планирано завършване
Декември 2025

Запитване за повече информация или оглед
Инфо пакет
Разстояния
Последна актуализация
16.10.2025 г.
Разстояния от имота до други важни обекти
- Sofia (SOF): 8 км
Административна информация за офертата
ГАЗИФИКАЦИЯ, ЕЛЕКТРИЧЕСТВО
- Електричество
ВОДОСНАБДЯВАНЕ
- Водоснабдяване
АСАНСЬОРИ
- автоматични врати
ИЗОЛАЦИИ И ДОВЪРШИТЕЛНИ РАБОТИ
- PVC дограма
- На шпакловка и замазка
- Троен стъклопакет
Представяме тристаен апартамент за продажба, част от нов жилищен комплекс с изключително комуникативно местоположение в кв. "Младост 4". Комплексът предлага спокойна жилищна атмосфера и лесен достъп до центъра и всички точки на столицата. В близост са разположени метростанция "Бизнес Парк", магазини "Кауфланд", "Фантастико", "Технополис", "Спорт Депо", "КОМО".
В процес на строителство. Очаквано завършване - септември 2025 г.
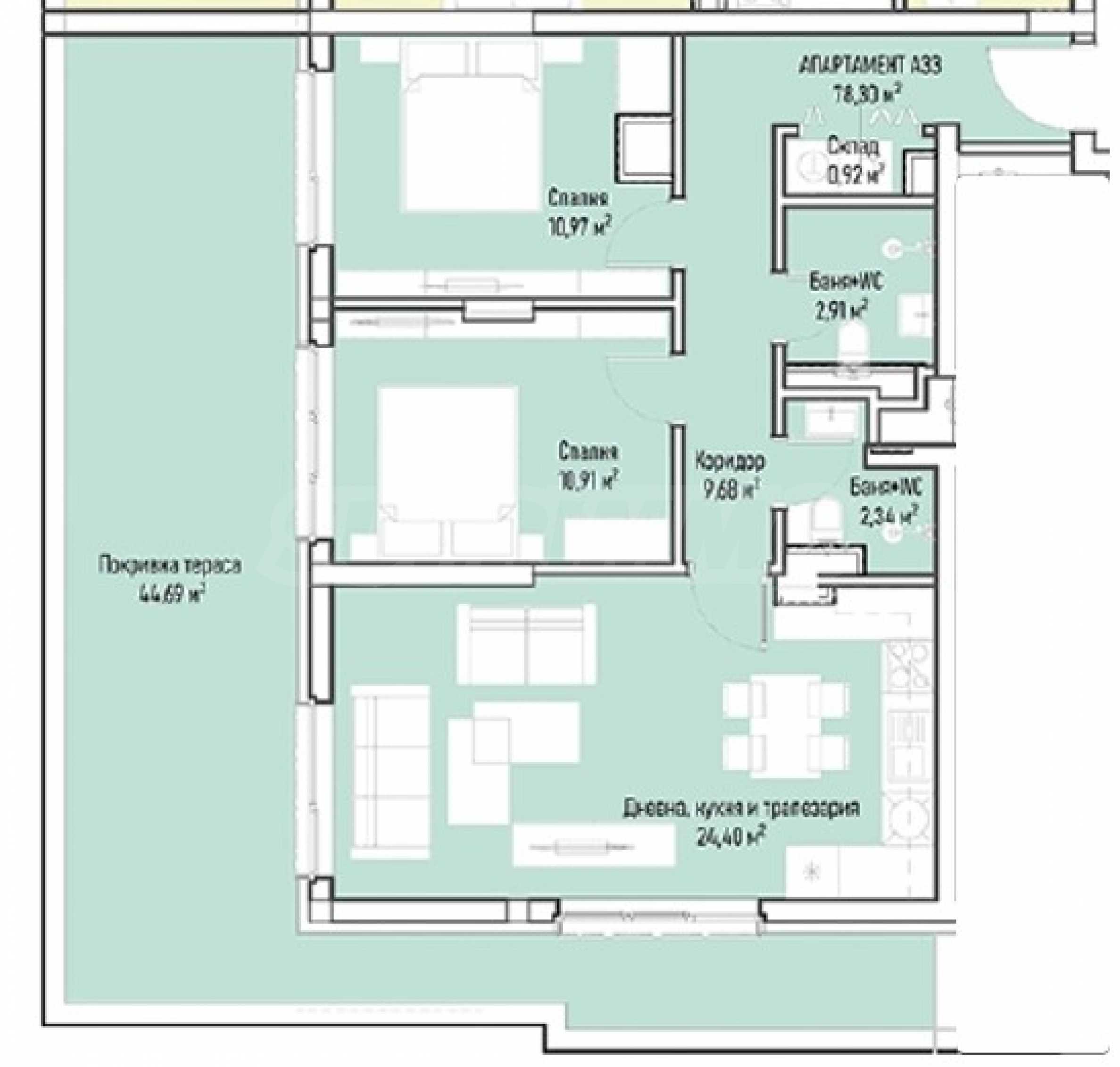
Имотът е разположен на 8-и етаж, предлага 97,52 кв.м обща площ и се състои от антре, всекидневна, две спални, две бани с тоалетна, склад, просторна тераса.
Проектът се състои от 3 входа с 9 надземни и 2 подземни нива с паркоместа, гаражи и складови помещения. Има избор от едностайни, двустайни, тристайни и четиристайни апартаменти за продажба, които се характеризират с просторни помещения, благоприятни изложения и функционални разпределения. За комфорт и сигурност на собствениците се предвижда денонощна жива охрана и видеонаблюдение.
Жилищата се издават в степен на завършеност по БДС, с 5-камерна PVC дограма, троен стъклопакет, всесезонни стъкла, цвят графит и климатична инсталация във всички помещения. Отоплението е на ТЕЦ.
Има възможност за закупуване на подземни паркоместа и гаражи, складови помещения и паркоместа на терен.
Посочената цена е без ДДС.
Месечната такса за поддръжка и управление в комплекса:
Схема на плащане при ползване на ипотечен кредит:
Схема на плащане със собствени средства:
За допълнителна информация и организиране на оглед, моля свържете се с отговорния брокер по офертата.
В процес на строителство. Очаквано завършване - септември 2025 г.
Имотът е разположен на 8-и етаж, предлага 97,52 кв.м обща площ и се състои от антре, всекидневна, две спални, две бани с тоалетна, склад, просторна тераса.
Проектът се състои от 3 входа с 9 надземни и 2 подземни нива с паркоместа, гаражи и складови помещения. Има избор от едностайни, двустайни, тристайни и четиристайни апартаменти за продажба, които се характеризират с просторни помещения, благоприятни изложения и функционални разпределения. За комфорт и сигурност на собствениците се предвижда денонощна жива охрана и видеонаблюдение.
Жилищата се издават в степен на завършеност по БДС, с 5-камерна PVC дограма, троен стъклопакет, всесезонни стъкла, цвят графит и климатична инсталация във всички помещения. Отоплението е на ТЕЦ.
Има възможност за закупуване на подземни паркоместа и гаражи, складови помещения и паркоместа на терен.
Посочената цена е без ДДС.
Месечната такса за поддръжка и управление в комплекса:
- 1,20 лв без ДДС/ кв.м - за апартаменти;
- 0,60 лв без ДДС/ кв.м - за паркоместа и гаражи.
Схема на плащане при ползване на ипотечен кредит:
- 2 000 лв - депозит за стопиране на имота от продажба;
- 20% - при подписване на Предварителен договор минус 2 000 лв (платеният депозит);
- 40% - при снабдяване с Акт 14;
- 30% - при снабдяване с Акт 15;
- 10% - при снабдяване с Акт 16.
Схема на плащане със собствени средства:
- 2 000 лв - депозит за стопиране на имота от продажба;
- 25% - при подписване на Предварителен договор минус 2 000 лв (платеният депозит);
- 45% - при снабдяване с Акт 14;
- 20% - при снабдяване с Акт 15;
- 10% - при снабдяване с Акт 16.
За допълнителна информация и организиране на оглед, моля свържете се с отговорния брокер по офертата.
Виж текста на други езици (автоматичен превод)
Местоположение (приблизително)
На картата с червен маркер е указано приблизителното местоположение на имота/комплекса.
Популярни търсения
- Селски къщи в България
- Имоти за продажба в София
- Имоти в София
- Имоти под наем в София
- Тристайни апартаменти за продажба в София
- Къщи за продажба в София
- Двустайни апартаменти за продажба в София
- Апартаменти (различни типове) за продажба в София
- Едностайни апартаменти за продажба в София
- Двустайни апартаменти в София

