Етажност на сградата
9
Етаж
4
Асансьор
да
Стаи
3
Спални
2
Бани
1
Балкони (тераси) бр.:
1

Обща площ
78.04 м²
Застроена площ
67.37 м²
Общи части
10.67 м²
Състояние
В процес на строителство
Планирано завършване
Септември 2027

Запитване за повече информация или оглед
Инфо пакет
Разстояния
Последна актуализация
03.06.2025 г.
Разстояния от имота до други важни обекти
Гледки от имота
- Гледка към града
Строителство
- Тухла
Административна информация за офертата
ГАЗИФИКАЦИЯ, ЕЛЕКТРИЧЕСТВО
- Електричество
ВОДОСНАБДЯВАНЕ
- Водоснабдяване
КАНАЛИЗАЦИЯ
- Канализация
САНИТАРНИ И СПОМАГАТЕЛНИ ПОМЕЩЕНИЯ
- Балкон
ИЗОЛАЦИИ И ДОВЪРШИТЕЛНИ РАБОТИ
- На шпакловка и замазка
Стартирало строителство!
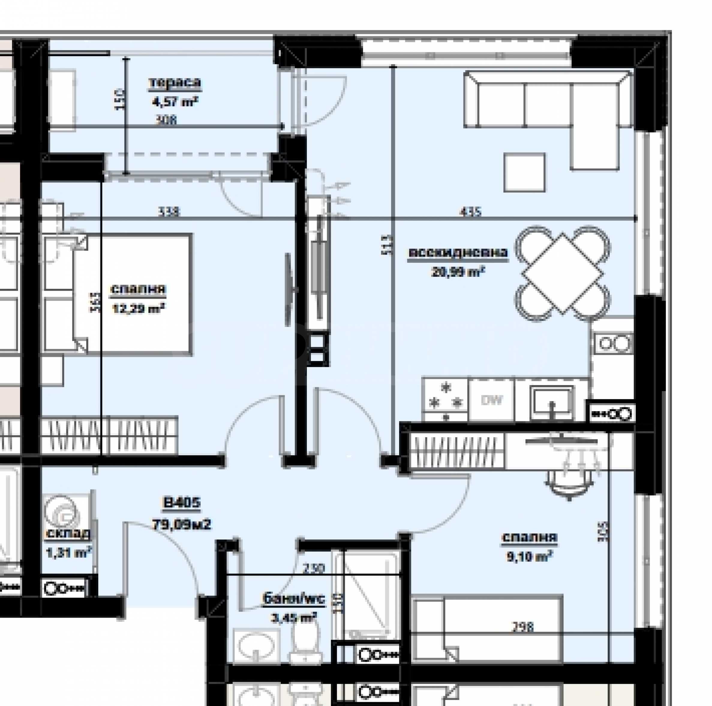
Представяме за продажба тристаен апартамент от 78,04 кв.м, в нова девететажна сграда на модерен комплекс, качествено ново строителство в Бургас.
В концепцията на комплекса са заложени принципи на качествен и комфортен живот, с удобства за нуждите на едно съвременно семейство, в спокойна и озеленена среда за обитаване.
Имотът е разположен на 4-ти етаж с фукционално разпределение:
Типове жилища
Общото количество на имотите е 255, разделени в 3 входа, всеки с по два високоскоростни асансьора.
Всички обекти са внимателно проектирани: с правилни форми и максимално функционално разпределение на помещенията.
По-големите размери на сградата и удобното ѝ разположение на терена позволяват обособяването на разнообразие от типове и планировки на апартаментите:
Локация
Местоположението на комплекса е удобно и стратегическо: в кв. "Изгрев", близо до Mall Plaza и Kaufland. Това е най-активно развиващата се в момента зона, обещаваща да конкурира с останалите части на Бургас с ред предимства: бърз и лесен достъп до основните пътни артерии, изцяло нова инфраструктура, висока степен на комфорт на живущите, нови технологии, повече зелени пространства и по-здравословна околна среда.
Сградата е със смесено предназначение.
Модерната сграда е с разгъната застроена площ от 22 000 кв.м, разположена на обширната територия от 11 000 кв.м. Проектирана е под максимално допустимите параметри, с цел да осигури оптимални отстояния от съседните сгради, достатъчно пространство и светлина, както и обширна територия за общо ползване с множество удобства за живущите.
Очакваме Вашето запитване
Ако желаете да организирате оглед на имот, който Ви интересува, или да посетите някой от нашите офиси, моля свържете се с нас. За да уговорите ден и час за среща или оглед, можете да се обадите на посочения в обявата телефон или да изпратите запитване чрез електронната поща. Нашият консултант ще Ви съдейства с всички необходими подробности и ще уговори удобно за Вас време.
Търсите подходящия за Вас имот?
Не се колебайте да се свържете с нас и да ни разкажете за Вашите нужди и предпочитания. Нашият екип ще проведе задълбочено проучване на пазара, за да Ви предложи имоти, които точно отговарят на Вашите критерии. Разполагаме с изключително портфолио от висококачествени и ексклузивни жилища, които са достъпни само за нашите клиенти. За да сте първите, които ще получите информация за тях – свържете се с нас.
Допълнителни услуги
Като ценен клиент на нашата компания, Вие ще имате привилегията да ползвате напълно безплатно услугите на нашия опитен юридически екип. В допълнение, предлагаме комплексни решения, включващи имуществена застраховка, безплатна финансова консултация, както и изгодни условия за финансиране. Нашите услуги се разпростират и в сферата на препродажбата, отдаването под наем и управлението на имоти. Осигуряваме висококачествени ремонтни дейности и обзавеждане чрез специализирани фирми, които са част от нашата корпоративна група и са наши дългогодишни професионални партньори.
- Очакван Акт 16 - септември 2027 г.
- Без такса поддръжка!
Представяме за продажба тристаен апартамент от 78,04 кв.м, в нова девететажна сграда на модерен комплекс, качествено ново строителство в Бургас.
В концепцията на комплекса са заложени принципи на качествен и комфортен живот, с удобства за нуждите на едно съвременно семейство, в спокойна и озеленена среда за обитаване.
Имотът е разположен на 4-ти етаж с фукционално разпределение:
- антре;
- дневна с кухня;
- две спални;
- баня с тоалет;
- склад;
- тераса.
Типове жилища
Общото количество на имотите е 255, разделени в 3 входа, всеки с по два високоскоростни асансьора.
Всички обекти са внимателно проектирани: с правилни форми и максимално функционално разпределение на помещенията.
По-големите размери на сградата и удобното ѝ разположение на терена позволяват обособяването на разнообразие от типове и планировки на апартаментите:
- двустайни апартаменти с площ между 60 и 70 кв.м.
- тристайни апартаменти с площ между 72 и 145 кв.м.
Локация
Местоположението на комплекса е удобно и стратегическо: в кв. "Изгрев", близо до Mall Plaza и Kaufland. Това е най-активно развиващата се в момента зона, обещаваща да конкурира с останалите части на Бургас с ред предимства: бърз и лесен достъп до основните пътни артерии, изцяло нова инфраструктура, висока степен на комфорт на живущите, нови технологии, повече зелени пространства и по-здравословна околна среда.
Сградата е със смесено предназначение.
Модерната сграда е с разгъната застроена площ от 22 000 кв.м, разположена на обширната територия от 11 000 кв.м. Проектирана е под максимално допустимите параметри, с цел да осигури оптимални отстояния от съседните сгради, достатъчно пространство и светлина, както и обширна територия за общо ползване с множество удобства за живущите.
Очакваме Вашето запитване
Ако желаете да организирате оглед на имот, който Ви интересува, или да посетите някой от нашите офиси, моля свържете се с нас. За да уговорите ден и час за среща или оглед, можете да се обадите на посочения в обявата телефон или да изпратите запитване чрез електронната поща. Нашият консултант ще Ви съдейства с всички необходими подробности и ще уговори удобно за Вас време.
Търсите подходящия за Вас имот?
Не се колебайте да се свържете с нас и да ни разкажете за Вашите нужди и предпочитания. Нашият екип ще проведе задълбочено проучване на пазара, за да Ви предложи имоти, които точно отговарят на Вашите критерии. Разполагаме с изключително портфолио от висококачествени и ексклузивни жилища, които са достъпни само за нашите клиенти. За да сте първите, които ще получите информация за тях – свържете се с нас.
Допълнителни услуги
Като ценен клиент на нашата компания, Вие ще имате привилегията да ползвате напълно безплатно услугите на нашия опитен юридически екип. В допълнение, предлагаме комплексни решения, включващи имуществена застраховка, безплатна финансова консултация, както и изгодни условия за финансиране. Нашите услуги се разпростират и в сферата на препродажбата, отдаването под наем и управлението на имоти. Осигуряваме висококачествени ремонтни дейности и обзавеждане чрез специализирани фирми, които са част от нашата корпоративна група и са наши дългогодишни професионални партньори.
Виж текста на други езици (автоматичен превод)
Местоположение (приблизително)
На картата с червен маркер е указано приблизителното местоположение на имота/комплекса.

