
Ценова листа
183 761 – 263 777 €
359 405 – 515 903 лв.
359 405 – 515 903 лв.
1 950 €/м² – 2 150 €/м²
3 814 лв./м² – 4 205 лв./м²
3 814 лв./м² – 4 205 лв./м²
Без комисиона от купувача
Запитване за повече информация или оглед
Инфо пакет
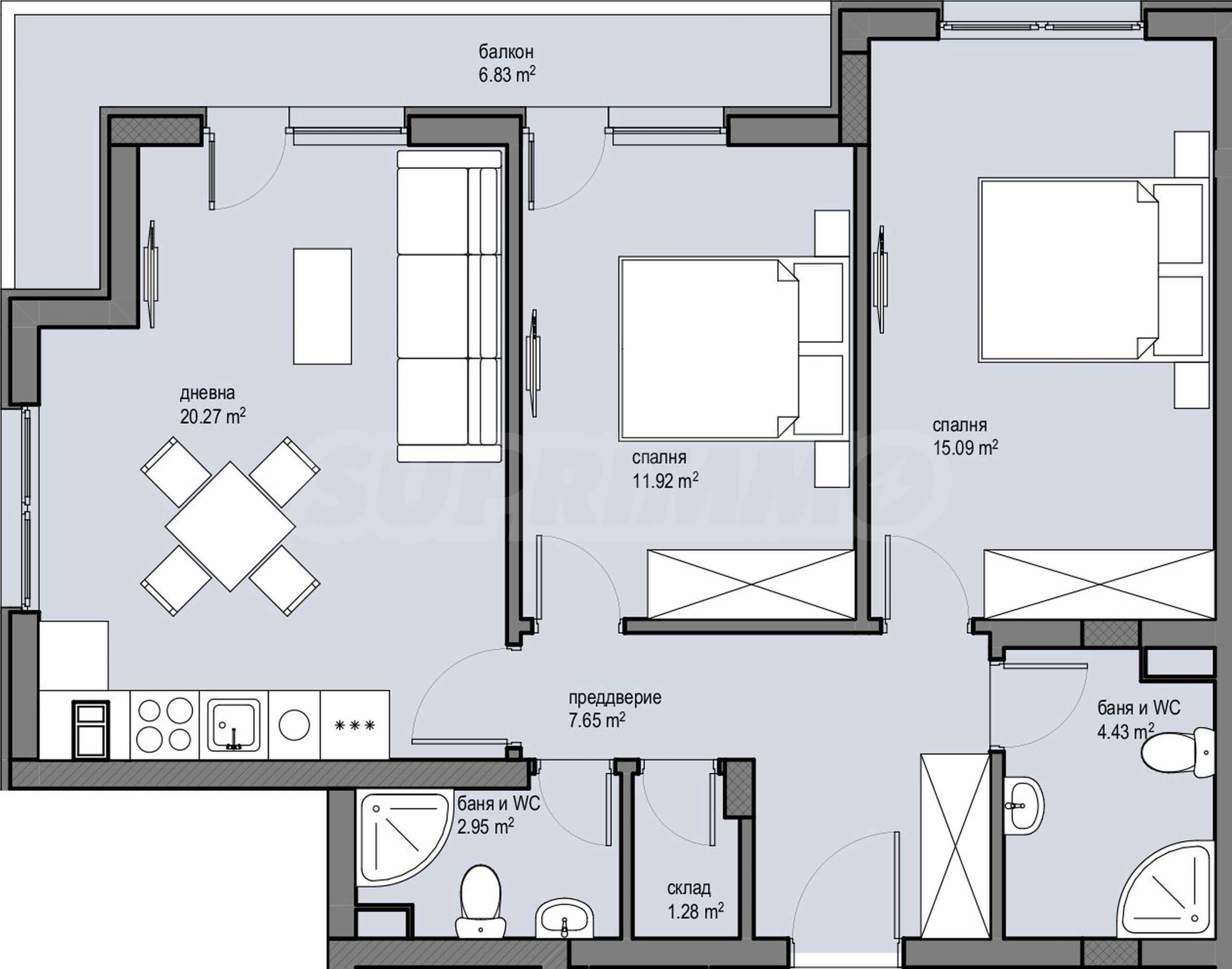
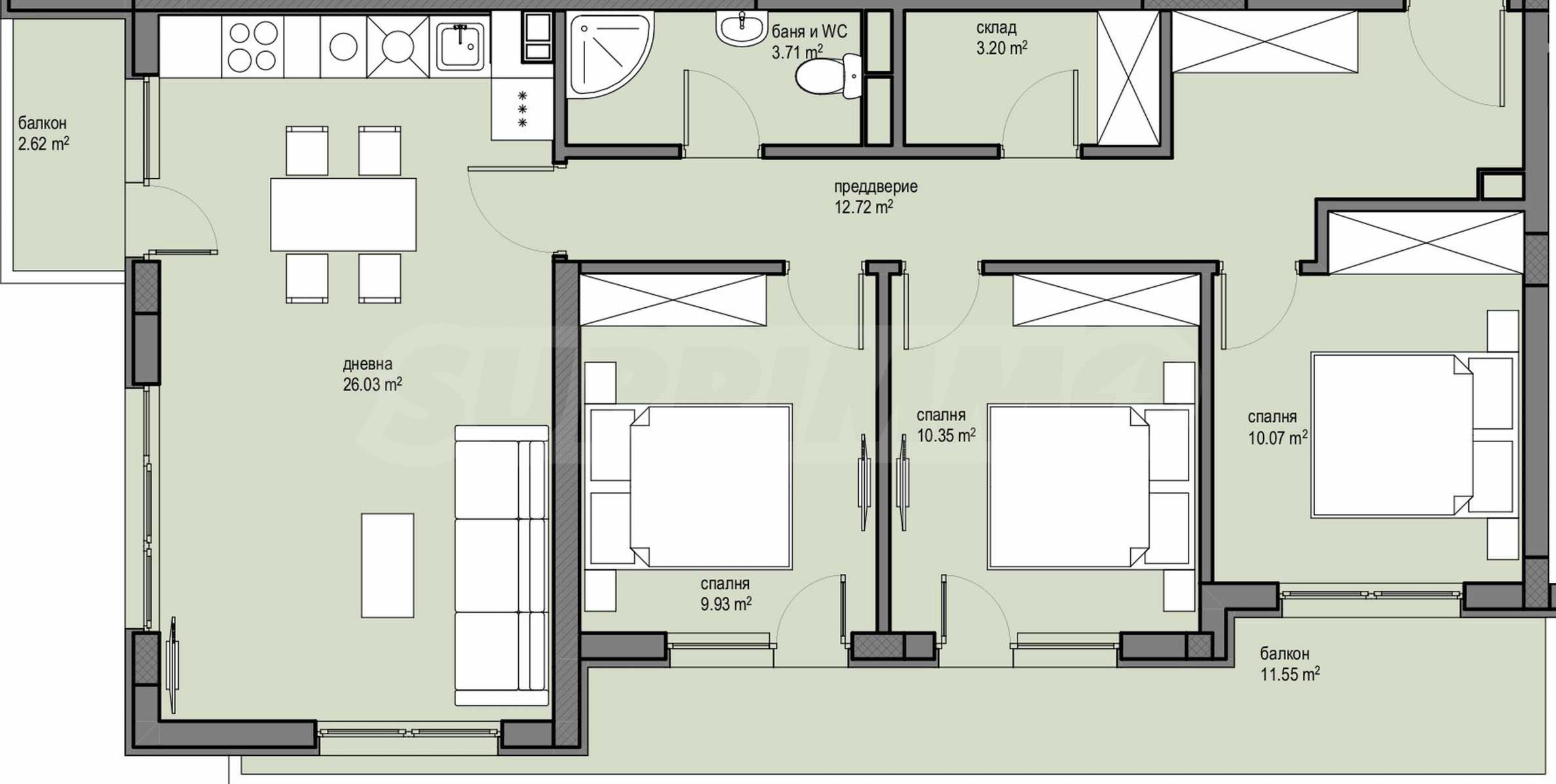
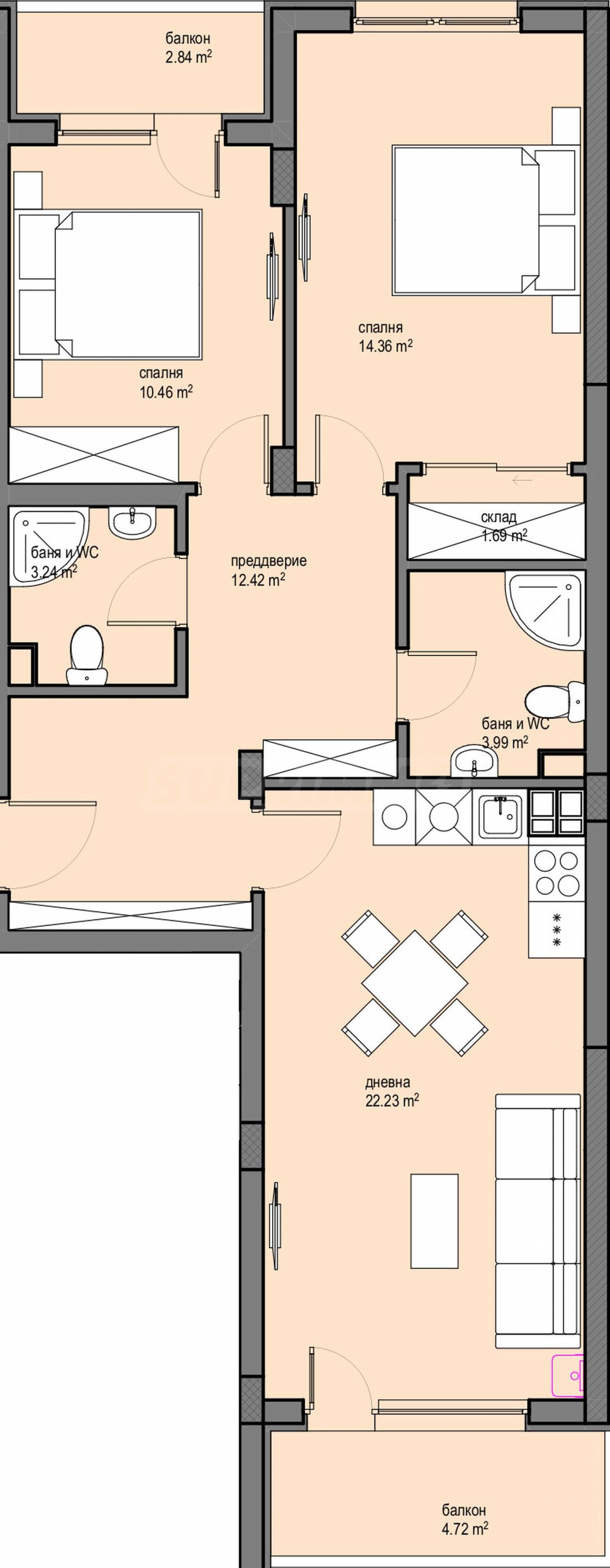
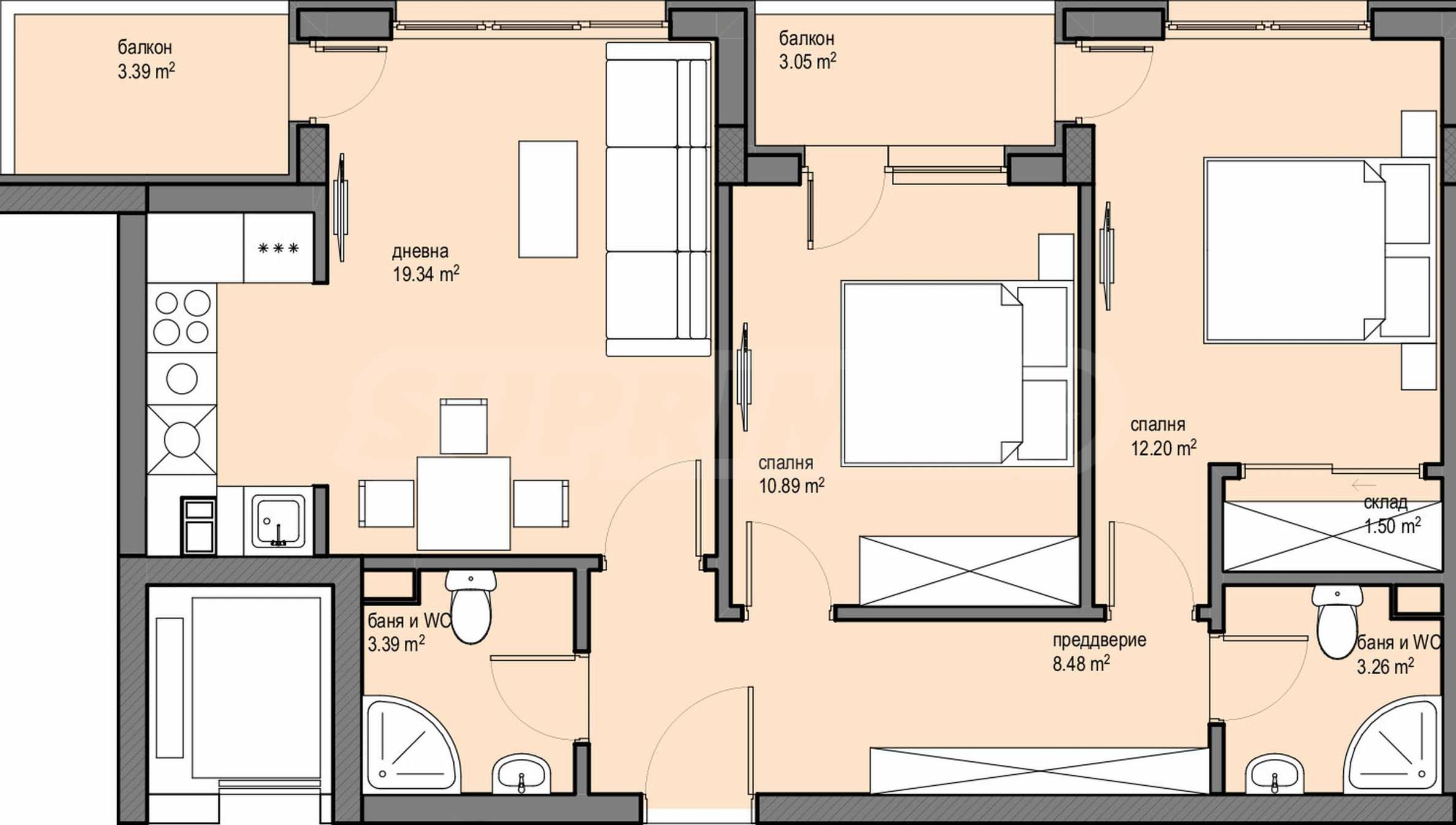
Състояние
БДС (на шпакловка и замазка)
Обзавеждане
Отопление
Парно на газ
Прозорци
PVC дограма
Разстояния
Последна актуализация
30.12.2025 г.
Разстояния от имота до други важни обекти
- Център на града: 5.4 км
- Sofia (SOF): 15 км
Гледки от имота
- Гледка към града
Строителство
- Стоманобетонна конструкция
Отопление
- Парно на газ
Административна информация за офертата
ГАЗИФИКАЦИЯ, ЕЛЕКТРИЧЕСТВО
- Газификация
- Електричество
ВОДОСНАБДЯВАНЕ
- Водоснабдяване
ФАСАДА
- външна изолация
- минерална мазилка
- тухли
ВИД НА ОБЩИТЕ ЧАСТИ
- гранитогресни плочки
САНИТАРНИ И СПОМАГАТЕЛНИ ПОМЕЩЕНИЯ
- Балкони
ИЗОЛАЦИИ И ДОВЪРШИТЕЛНИ РАБОТИ
- PVC дограма
- Блиндирана входна врата
- На шпакловка и замазка
- Троен стъклопакет
ЕКСТРИ В СГРАДАТА
- Асансьор
Представяме комфортни жилища за продажба в модерна нова сграда в кв. "Красна поляна 2".
Без комисиона от купувача!
Сградата е на етап "груб строеж", с планирано завършване - юни 2026 г.
Намира се в югозападната част на София, в оптимална близост до новата метростанция "Овча Купел", което улеснява придвижването до някои основни висши учебни заведения като НБУ и Софийския университет.
В близост до сградата има различи вериги супермаркети, фитнеси, болница МБАЛ Надежда, пазар "Росица", училища и детски градини - ПГ в 123 СУ "Стефан Стамболов", 51 СДЯ, ДГ №126 Тинтява, ПГ в 136 ОУ "Любен Kаравелов" и ПГ 147. В близост до района се намират още Стадион Септември и Славия, Западен парк, парк Св. Св. Петър и Павел, конна база "Хан Аспарух", картинг Красна Поляна и др.
Кварталът е с добре изградена транспортна инфраструктура и се обслужва от всички видове градски транспорт: метростанция, трамваи 4, 11, 22 и автобуси 11, 60 и 83.
8-етажната сграда с 3 входа ще има атрактивна фасада с клинкер, предлага общо 131 бр. апартаменти, като наличните жилища за продажба са лимитиран брой тристайни и четиристайни имоти, с функционални планировки и просторни помещения.
Апартаментите се издават в степен на завършеност по БДС:
Ако желаете да организирате оглед на имот, който Ви интересува, или да посетите някой от нашите офиси, моля свържете се с нас. За да уговорите ден и час за среща или оглед, можете да се обадите на посочения в обявата телефон или да изпратите запитване чрез електронната поща. Нашият консултант ще Ви съдейства с всички необходими подробности и ще уговори удобно за Вас време.
Търсите подходящия за Вас имот?
Не се колебайте да се свържете с нас и да ни разкажете за Вашите нужди и предпочитания. Нашият екип ще проведе задълбочено проучване на пазара, за да Ви предложи имоти, които точно отговарят на Вашите критерии. Разполагаме с изключително портфолио от висококачествени и ексклузивни жилища, които са достъпни само за нашите клиенти. За да сте първите, които ще получите информация за тях – свържете се с нас.
Допълнителни услуги
Като ценен клиент на нашата компания, Вие ще имате привилегията да ползвате напълно безплатно услугите на нашия опитен юридически екип. В допълнение, предлагаме комплексни решения, включващи имуществена застраховка, безплатна финансова консултация, както и изгодни условия за финансиране. Нашите услуги се разпростират и в сферата на препродажбата, отдаването под наем и управлението на имоти. Осигуряваме висококачествени ремонтни дейности и обзавеждане чрез специализирани фирми, които са част от нашата корпоративна група и са наши дългогодишни професионални партньори.
Без комисиона от купувача!
Сградата е на етап "груб строеж", с планирано завършване - юни 2026 г.
Намира се в югозападната част на София, в оптимална близост до новата метростанция "Овча Купел", което улеснява придвижването до някои основни висши учебни заведения като НБУ и Софийския университет.
В близост до сградата има различи вериги супермаркети, фитнеси, болница МБАЛ Надежда, пазар "Росица", училища и детски градини - ПГ в 123 СУ "Стефан Стамболов", 51 СДЯ, ДГ №126 Тинтява, ПГ в 136 ОУ "Любен Kаравелов" и ПГ 147. В близост до района се намират още Стадион Септември и Славия, Западен парк, парк Св. Св. Петър и Павел, конна база "Хан Аспарух", картинг Красна Поляна и др.
Кварталът е с добре изградена транспортна инфраструктура и се обслужва от всички видове градски транспорт: метростанция, трамваи 4, 11, 22 и автобуси 11, 60 и 83.
8-етажната сграда с 3 входа ще има атрактивна фасада с клинкер, предлага общо 131 бр. апартаменти, като наличните жилища за продажба са лимитиран брой тристайни и четиристайни имоти, с функционални планировки и просторни помещения.
Апартаментите се издават в степен на завършеност по БДС:
- PVC дограма с шесткамерен, немски профил с троен стъклопакет, с едно нискоемисионно стъкло;
- входна апартаментна врата - блиндирана, с висок клас секретна брава;
- отопление - газ;
- завършени стени и тавани до гипсова мазилка с положени в ръбовете алуминиеви ъглопротектори; тавани на неотопляеми помещения, които граничат с отопляеми, с положена топлоизолация от XPS екструдиран пенополистирен; в баните, тоалетни и мокри помещения с изпълнена варо-циментова мазилка;
- циментова замазка по пода; тераси с настилка от гранитогрес;
- монтирано апартаментно табло, разположено в близост до входната врата на жилището;
- слаботокови инсталации – изпълнена по проект с монтирана слаботокова кутия при входната врата;
- окабеляване за СОТ във всеки апартамент;
- видеодомофонна инсталация - изпълнено окабеляване, видеодомофони в апартаментите и монтирано видеодомофонно табло до входната врата;
- монтирани електромери.
- монолитна, стоманобетонна безгредова конструкция на фундаментна плоча;
- с хидроизолации на основите на сградата - система Kryton international Inc. Krystol Waterstop System;
- зидарии с керамични тухли на WIENERBERGER;
- външни ограждащи стени - керамични тухли Porotherm 25 см и топлоизолационна система /пенополистирол EPS/;
- за вътрешни тухлени стени - керамични тухли Porotherm 12 см, с шумоизолация между апартаментите;
- плосък покрив с положени пластове по детайл - пароизолация, топлоизолация от екструдиран пенополистирол - XPS, армирана замазка с наклон, два пласта рулонна битумна хидроизолация; без термомостове по конструктивните елементи;
- общи части - гранитогрес или естествен камък;
- асансьори с луксозни кабини с автоматични врати.
Ако желаете да организирате оглед на имот, който Ви интересува, или да посетите някой от нашите офиси, моля свържете се с нас. За да уговорите ден и час за среща или оглед, можете да се обадите на посочения в обявата телефон или да изпратите запитване чрез електронната поща. Нашият консултант ще Ви съдейства с всички необходими подробности и ще уговори удобно за Вас време.
Търсите подходящия за Вас имот?
Не се колебайте да се свържете с нас и да ни разкажете за Вашите нужди и предпочитания. Нашият екип ще проведе задълбочено проучване на пазара, за да Ви предложи имоти, които точно отговарят на Вашите критерии. Разполагаме с изключително портфолио от висококачествени и ексклузивни жилища, които са достъпни само за нашите клиенти. За да сте първите, които ще получите информация за тях – свържете се с нас.
Допълнителни услуги
Като ценен клиент на нашата компания, Вие ще имате привилегията да ползвате напълно безплатно услугите на нашия опитен юридически екип. В допълнение, предлагаме комплексни решения, включващи имуществена застраховка, безплатна финансова консултация, както и изгодни условия за финансиране. Нашите услуги се разпростират и в сферата на препродажбата, отдаването под наем и управлението на имоти. Осигуряваме висококачествени ремонтни дейности и обзавеждане чрез специализирани фирми, които са част от нашата корпоративна група и са наши дългогодишни професионални партньори.
Виж текста на други езици (автоматичен превод)
Местоположение (приблизително)
На картата с червен маркер е указано приблизителното местоположение на имота/комплекса.
Нашите топ оферти за продажба в София, България
Популярни търсения
- Селски къщи в България
- Имоти за продажба в София
- Имоти в София
- Имоти под наем в София
- Тристайни апартаменти за продажба в София
- Къщи за продажба в София
- Двустайни апартаменти за продажба в София
- Апартаменти (различни типове) за продажба в София
- Едностайни апартаменти за продажба в София
- Двустайни апартаменти в София


