Етажност на сградата
8
Етаж
5
Асансьор
да
Стаи
2
Спални
1
Бани
1
Балкони (тераси) бр.:
1

Обща площ
81.55 м²
Застроена площ
69.94 м²
Общи части
11.61 м²
Получен Акт 16

Запитване за повече информация или оглед
Инфо пакет
Състояние
БДС (на шпакловка и замазка)
Обзавеждане
Отопление
Климатици
Прозорци
PVC дограма
Разстояния
Последна актуализация
23.12.2025 г.
Разстояния от имота до други важни обекти
- Център на града: 5.7 км
- Plovdiv (PDV): 16.8 км
- Магазин за хранителни стоки: 200 м
- Спирка: 100 м
- Болница: 500 м
- Училище: 500 м
Гледки от имота
- Гледка към града
Строителство
- Стоманобетонна конструкция
- Тухла
Отопление
- Климатици
Административна информация за офертата
ГАЗИФИКАЦИЯ, ЕЛЕКТРИЧЕСТВО
- Електричество
ВОДОСНАБДЯВАНЕ
- Вода
- Водоснабдяване
АСАНСЬОРИ
- автоматични врати
- луксозни асансьори
КАНАЛИЗАЦИЯ
- Канализация
- Канализация
ФАСАДА
- външна изолация
ВИД НА ОБЩИТЕ ЧАСТИ
- естествен камък
- мрамор
ПОКРИВ
- плосък покрив
- покривна изолация
САНИТАРНИ И СПОМАГАТЕЛНИ ПОМЕЩЕНИЯ
- Балкон
- Баня с тоалетна
- Килер
ИЗОЛАЦИИ И ДОВЪРШИТЕЛНИ РАБОТИ
- PVC дограма
- Блиндирана входна врата
- Външна изолация
- Двоен стъклопакет
- На шпакловка и замазка
ЕКСТРИ В СГРАДАТА
- Асансьор
- Луксозни общи части
ДОСТЪП ДО ИМОТА И ТЕЛЕКОМУНИКАЦИИ
- Wi-Fi интернет
- Асфалтиран път
- Вътрешно окабеляване аудио и видео система
- Интернет
- Кабелна телевизия
ДРУГИ
- В жилищна сграда
- Магазин за хранителни стоки в близост
Представяме двустаен апартамент за продажба, в модерен нов комплекс с Акт 16, в кв. "Христо Смирненски" в Пловдив.
Топ локация
Комплексът се намира в спокоен район, на пешеходно разстояние от парк "Отдих и култура" и Гребната база, с бърз достъп до центъра на града. В непосредствена близост се намират Mall Plovdiv, големите супермаркети - Lidl, Kaufland, Лекси, Триумф, УМБАЛ "Св. Георги" и "Пълмед", както и училища и детски градини.
Параметри на имота
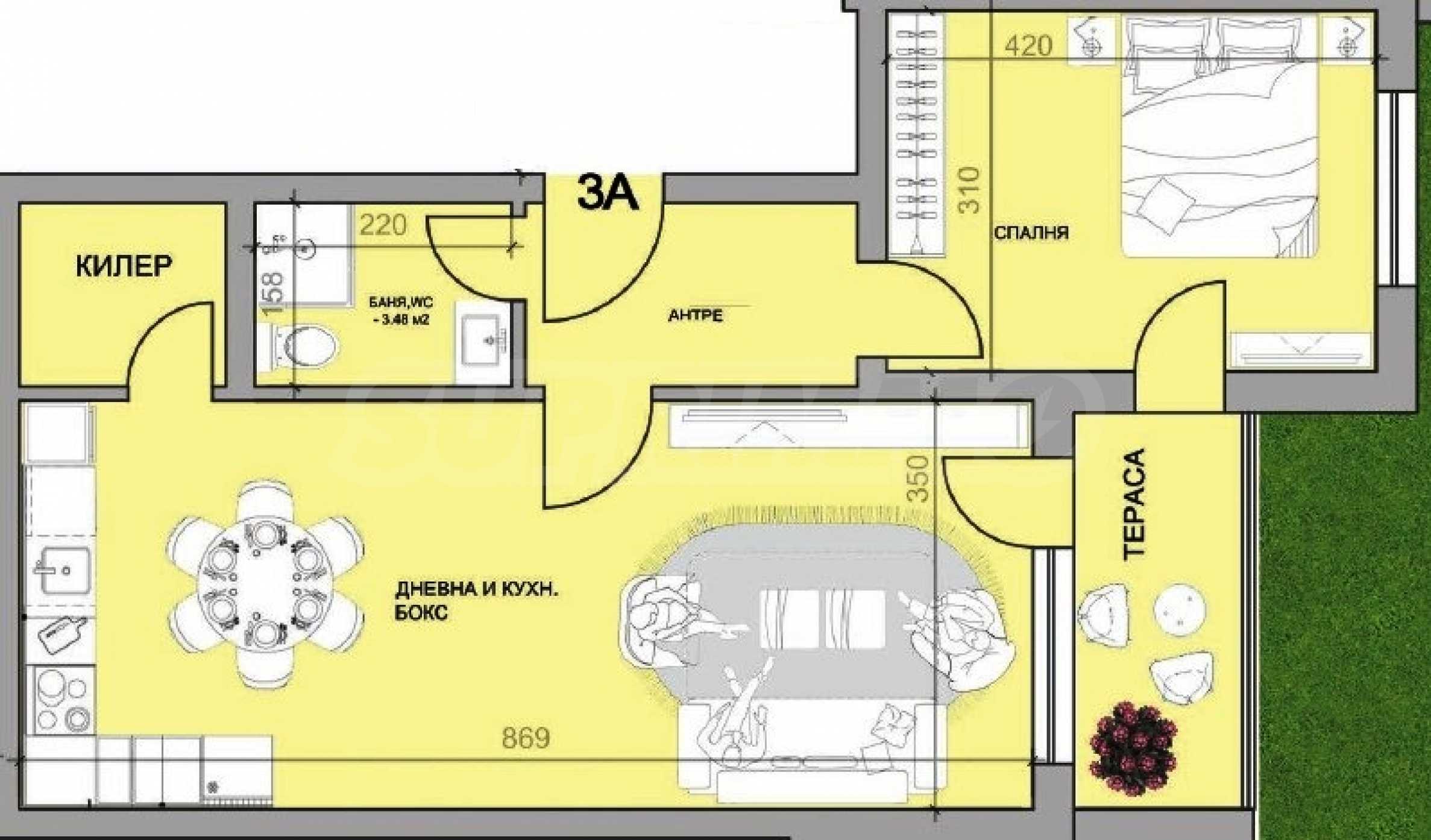
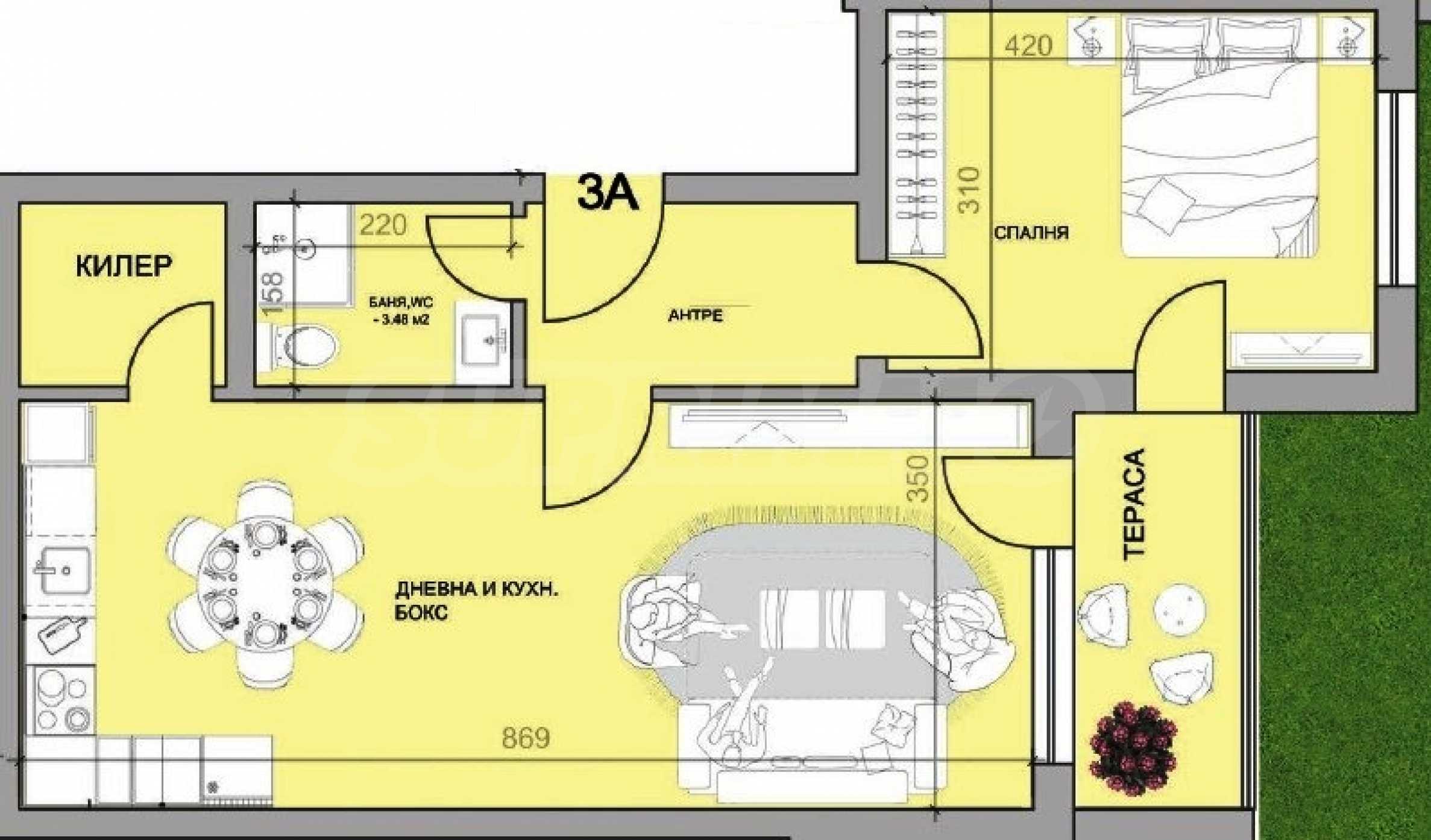
Имотът с обща площ от 81.55 кв.м е разположен на 5-и етаж, с източно изложение и има следното разпределение:
Удобства на територията:
Ако желаете да организирате оглед на имот, който Ви интересува, или да посетите някой от нашите офиси, моля свържете се с нас. За да уговорите ден и час за среща или оглед, можете да се обадите на посочения в обявата телефон или да изпратите запитване чрез електронната поща. Нашият консултант ще Ви съдейства с всички необходими подробности и ще уговори удобно за Вас време.
Търсите подходящия за Вас имот?
Не се колебайте да се свържете с нас и да ни разкажете за Вашите нужди и предпочитания. Нашият екип ще проведе задълбочено проучване на пазара, за да Ви предложи имоти, които точно отговарят на Вашите критерии. Разполагаме с изключително портфолио от висококачествени и ексклузивни жилища, които са достъпни само за нашите клиенти. За да сте първите, които ще получите информация за тях – свържете се с нас.
Допълнителни услуги
Като ценен клиент на нашата компания, Вие ще имате привилегията да ползвате напълно безплатно услугите на нашия опитен юридически екип. В допълнение, предлагаме комплексни решения, включващи имуществена застраховка, безплатна финансова консултация, както и изгодни условия за финансиране. Нашите услуги се разпростират и в сферата на препродажбата, отдаването под наем и управлението на имоти. Осигуряваме висококачествени ремонтни дейности и обзавеждане чрез специализирани фирми, които са част от нашата корпоративна група и са наши дългогодишни професионални партньори.
Топ локация
Комплексът се намира в спокоен район, на пешеходно разстояние от парк "Отдих и култура" и Гребната база, с бърз достъп до центъра на града. В непосредствена близост се намират Mall Plovdiv, големите супермаркети - Lidl, Kaufland, Лекси, Триумф, УМБАЛ "Св. Георги" и "Пълмед", както и училища и детски градини.
Параметри на имота
Имотът с обща площ от 81.55 кв.м е разположен на 5-и етаж, с източно изложение и има следното разпределение:
- антре;
- баня/тоалетна;
- спалня;
- дневна с кухня и килер;
- тераса с излаз от двете стаи.
- входна врата - метална, блиндирана;
- под - ламиниран паркет;
- стени и тавани - латекс;
- дограма - PVC - 5-камерна с двоен стъклопакет;
- под на тераса – гранитогрес;
- структурно окабеляване - за Интернет, кабелна телевизия, телефон.
Удобства на територията:
- охраняем подземен и външен паркинг;
- две детски площадки, детски кът;
- ресторант, кафе-сладкарница;
- фитнес зала;
- зони за отдих с пейки и беседки;
- салон за красота (фризьорство и козметика);
- магазин за хранителни стоки;
- аптека.
Ако желаете да организирате оглед на имот, който Ви интересува, или да посетите някой от нашите офиси, моля свържете се с нас. За да уговорите ден и час за среща или оглед, можете да се обадите на посочения в обявата телефон или да изпратите запитване чрез електронната поща. Нашият консултант ще Ви съдейства с всички необходими подробности и ще уговори удобно за Вас време.
Търсите подходящия за Вас имот?
Не се колебайте да се свържете с нас и да ни разкажете за Вашите нужди и предпочитания. Нашият екип ще проведе задълбочено проучване на пазара, за да Ви предложи имоти, които точно отговарят на Вашите критерии. Разполагаме с изключително портфолио от висококачествени и ексклузивни жилища, които са достъпни само за нашите клиенти. За да сте първите, които ще получите информация за тях – свържете се с нас.
Допълнителни услуги
Като ценен клиент на нашата компания, Вие ще имате привилегията да ползвате напълно безплатно услугите на нашия опитен юридически екип. В допълнение, предлагаме комплексни решения, включващи имуществена застраховка, безплатна финансова консултация, както и изгодни условия за финансиране. Нашите услуги се разпростират и в сферата на препродажбата, отдаването под наем и управлението на имоти. Осигуряваме висококачествени ремонтни дейности и обзавеждане чрез специализирани фирми, които са част от нашата корпоративна група и са наши дългогодишни професионални партньори.
Виж текста на други езици (автоматичен превод)
Местоположение (приблизително)
На картата с червен маркер е указано приблизителното местоположение на имота/комплекса.
Имоти по тип, Пловдив
- Тристайни апартаменти в Пловдив
- Двустайни апартаменти в Пловдив
- Апартаменти (различни типове) в Пловдив
- Четиристайни апартаменти в Пловдив
- Къщи в Пловдив
- Едностайни апартаменти в Пловдив
- Магазини в Пловдив
- Земеделски земи в Пловдив
- Петстайни апартаменти в Пловдив
- Парцели за инвестиция в Пловдив
Популярни търсения
- Селски къщи в България
- Имоти за продажба в Пловдив
- Имоти в Пловдив
- Имоти под наем в Пловдив
- Тристайни апартаменти за продажба в Пловдив
- Двустайни апартаменти за продажба в Пловдив
- Къщи за продажба в Пловдив
- Имоти за продажба в кв.Център, Пловдив
- Едностайни апартаменти за продажба в Пловдив
- Имоти за продажба в кв.Христо Смирненски, Пловдив

