Клас на сградата/комплекса
Стандартен
Етажност на сградата
5
Етаж
2
Асансьор
да
Стаи
3
Спални
2
Бани
2
Балкони (тераси) бр.:
2
Мазе/склад
не

Обща площ
127.18 м²
Застроена площ
106.71 м²
Общи части
20.47 м²
Получен Акт 16

Запитване за повече информация или оглед
Инфо пакет
Състояние
БДС (на шпакловка и замазка)
Обзавеждане
Отопление
Климатици
Прозорци
PVC дограма
Разстояния
Последна актуализация
29.09.2025 г.
Разстояния от имота до други важни обекти
- Център на града: 5.2 км
- Plovdiv (PDV): 17.6 км
Гледки от имота
- Гледка към града
Строителство
- Стоманобетонна конструкция
- Тухла
Отопление
- Климатици
Административна информация за офертата
ГАЗИФИКАЦИЯ, ЕЛЕКТРИЧЕСТВО
- Електричество
ВОДОСНАБДЯВАНЕ
- Вода
АСАНСЬОРИ
- луксозни асансьори
КАНАЛИЗАЦИЯ
- Канализация
ВИД НА ОБЩИТЕ ЧАСТИ
- гранитогресни плочки
САНИТАРНИ И СПОМАГАТЕЛНИ ПОМЕЩЕНИЯ
- Балкони
- Баня с тоалетна
- Паркинг
- Паркомясто
ИЗОЛАЦИИ И ДОВЪРШИТЕЛНИ РАБОТИ
- PVC дограма
- Блиндирана входна врата
- Външна изолация
- На шпакловка и замазка
ЕКСТРИ В СГРАДАТА
- Асансьор
- Затворен комплекс
- Луксозни общи части
ДВОР И ГРАДИНА
- Двор
- Поддържан двор
- Цветна градина
ДОСТЪП ДО ИМОТА И ТЕЛЕКОМУНИКАЦИИ
- Wi-Fi интернет
- Асфалтиран път
- Вътрешно окабеляване аудио и видео система
- Интернет
- Кабелна телевизия
ДРУГИ
- Магазин за хранителни стоки в близост
Представяме тристаен апартамент в нов комплекс, в един от най-зелените и спокойни райони - кв. "Христо Смирненски" на град Пловдив, само на 50 м от Гребна база.
Комплексът е с Акт 16.
БЕЗ КОМИСИОНА!
Параметри на имота
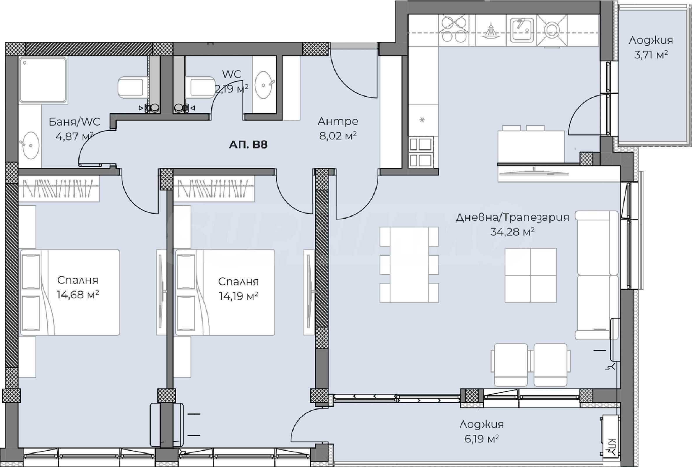
Жилището с площ от 127.18 кв.м е разположено на 2-ри етаж и има следното разпределение:
Комплексът е от затворен тип и се състои от общо 84 апартамента, разположени в 3 секции на 5-етажна сграда, проектирана в модерен архитектурен стил с изчистени форми, носещи очарованието на едно съвременно стилно място за живеене. Трите секции на комплекса обграждат красива градина с площ от 3000 кв.м, който формира вътрешното пространство. Освен зеленина ще има фонтани, пешеходни алеи, зони за отдих и детски площадки. Разполага и с уютна кафетерия, а за допълнителен комфорт на живущите в комплекса във всяка от секциите са предвидени специални помещения за детски колички и велосипеди, също така и камери за видеонаблюдение в целия комплекс. За живущите е осигурено професионално управление и поддръжка на общите части от висококвалифицирани специалисти.
Очакваме Вашето запитване
Ако желаете да организирате оглед на имот, който Ви интересува, или да посетите някой от нашите офиси, моля свържете се с нас. За да уговорите ден и час за среща или оглед, можете да се обадите на посочения в обявата телефон или да изпратите запитване чрез електронната поща. Нашият консултант ще Ви съдейства с всички необходими подробности и ще уговори удобно за Вас време.
Търсите подходящия за Вас имот?
Не се колебайте да се свържете с нас и да ни разкажете за Вашите нужди и предпочитания. Нашият екип ще проведе задълбочено проучване на пазара, за да Ви предложи имоти, които точно отговарят на Вашите критерии. Разполагаме с изключително портфолио от висококачествени и ексклузивни жилища, които са достъпни само за нашите клиенти. За да сте първите, които ще получите информация за тях – свържете се с нас.
Допълнителни услуги
Като ценен клиент на нашата компания, Вие ще имате привилегията да ползвате напълно безплатно услугите на нашия опитен юридически екип. В допълнение, предлагаме комплексни решения, включващи имуществена застраховка, безплатна финансова консултация, както и изгодни условия за финансиране. Нашите услуги се разпростират и в сферата на препродажбата, отдаването под наем и управлението на имоти. Осигуряваме висококачествени ремонтни дейности и обзавеждане чрез специализирани фирми, които са част от нашата корпоративна група и са наши дългогодишни професионални партньори.
Комплексът е с Акт 16.
БЕЗ КОМИСИОНА!
Параметри на имота
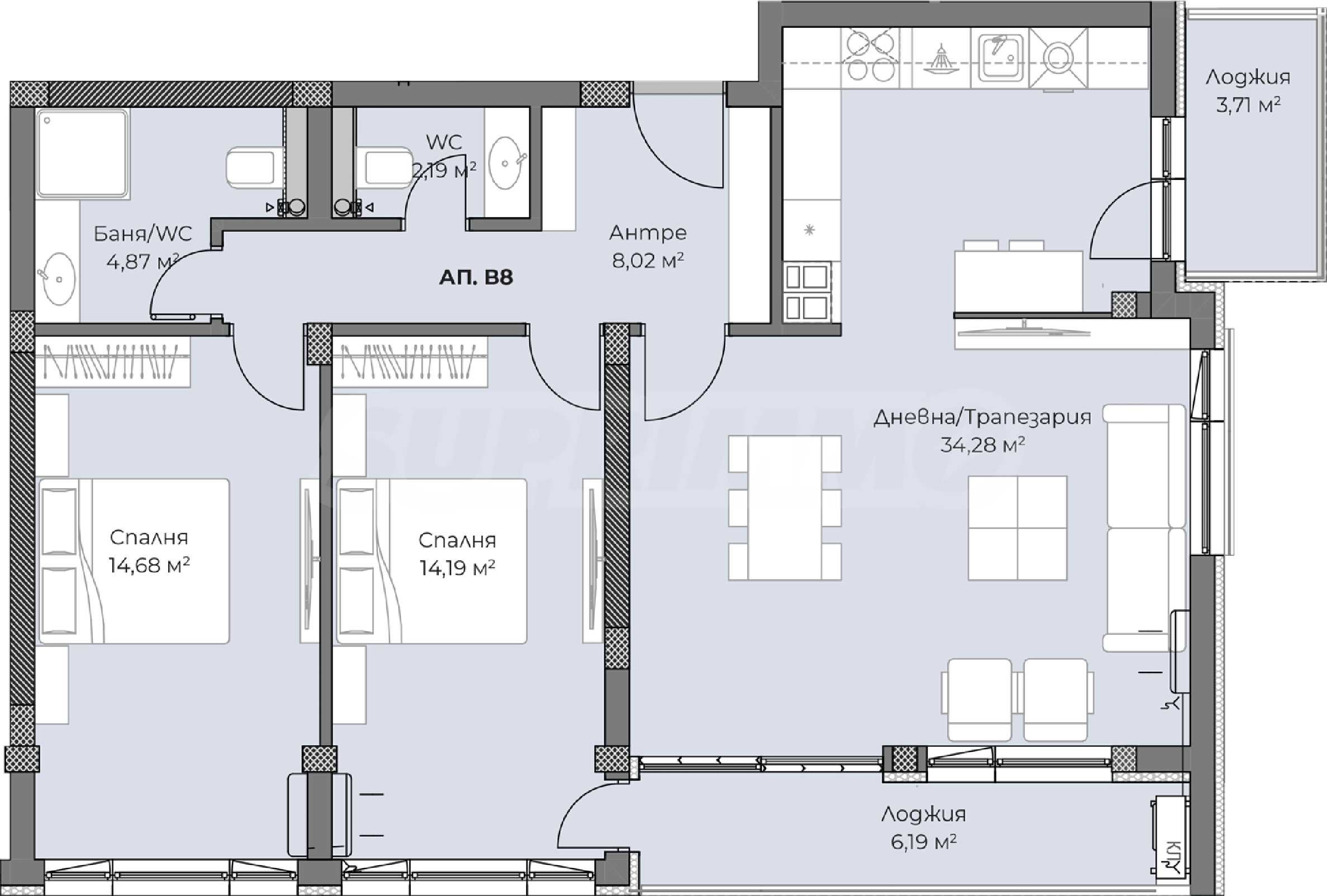
Жилището с площ от 127.18 кв.м е разположено на 2-ри етаж и има следното разпределение:
- входно антре;
- дневна с кухненски кът и трапезария;
- две спални;
- килер;
- два санитарни възела;
- две тераси.
Комплексът е от затворен тип и се състои от общо 84 апартамента, разположени в 3 секции на 5-етажна сграда, проектирана в модерен архитектурен стил с изчистени форми, носещи очарованието на едно съвременно стилно място за живеене. Трите секции на комплекса обграждат красива градина с площ от 3000 кв.м, който формира вътрешното пространство. Освен зеленина ще има фонтани, пешеходни алеи, зони за отдих и детски площадки. Разполага и с уютна кафетерия, а за допълнителен комфорт на живущите в комплекса във всяка от секциите са предвидени специални помещения за детски колички и велосипеди, също така и камери за видеонаблюдение в целия комплекс. За живущите е осигурено професионално управление и поддръжка на общите части от висококвалифицирани специалисти.
Очакваме Вашето запитване
Ако желаете да организирате оглед на имот, който Ви интересува, или да посетите някой от нашите офиси, моля свържете се с нас. За да уговорите ден и час за среща или оглед, можете да се обадите на посочения в обявата телефон или да изпратите запитване чрез електронната поща. Нашият консултант ще Ви съдейства с всички необходими подробности и ще уговори удобно за Вас време.
Търсите подходящия за Вас имот?
Не се колебайте да се свържете с нас и да ни разкажете за Вашите нужди и предпочитания. Нашият екип ще проведе задълбочено проучване на пазара, за да Ви предложи имоти, които точно отговарят на Вашите критерии. Разполагаме с изключително портфолио от висококачествени и ексклузивни жилища, които са достъпни само за нашите клиенти. За да сте първите, които ще получите информация за тях – свържете се с нас.
Допълнителни услуги
Като ценен клиент на нашата компания, Вие ще имате привилегията да ползвате напълно безплатно услугите на нашия опитен юридически екип. В допълнение, предлагаме комплексни решения, включващи имуществена застраховка, безплатна финансова консултация, както и изгодни условия за финансиране. Нашите услуги се разпростират и в сферата на препродажбата, отдаването под наем и управлението на имоти. Осигуряваме висококачествени ремонтни дейности и обзавеждане чрез специализирани фирми, които са част от нашата корпоративна група и са наши дългогодишни професионални партньори.
Виж текста на други езици (автоматичен превод)
Местоположение (приблизително)
На картата с червен маркер е указано приблизителното местоположение на имота/комплекса.
Имоти по тип, Пловдив
- Тристайни апартаменти в Пловдив
- Двустайни апартаменти в Пловдив
- Апартаменти (различни типове) в Пловдив
- Четиристайни апартаменти в Пловдив
- Къщи в Пловдив
- Едностайни апартаменти в Пловдив
- Магазини в Пловдив
- Земеделски земи в Пловдив
- Петстайни апартаменти в Пловдив
- Парцели за инвестиция в Пловдив
Популярни търсения
- Селски къщи в България
- Имоти за продажба в Пловдив
- Имоти в Пловдив
- Имоти под наем в Пловдив
- Тристайни апартаменти за продажба в Пловдив
- Двустайни апартаменти за продажба в Пловдив
- Къщи за продажба в Пловдив
- Имоти за продажба в кв.Център, Пловдив
- Едностайни апартаменти за продажба в Пловдив
- Имоти за продажба в кв.Христо Смирненски, Пловдив

