Етажност на сградата
2
Стаи
4
Спални
3
Бани
2
Паркоместа на открито
1
Площ на балконите (терасите)
20.60 м²
Балкони (тераси) бр.:
2
Тоалетни
1

Обща площ
199.60 м²
Тераса
20.60 м²
Състояние
В процес на строителство
Планирано завършване
Декември 2025

Цена
285 000 €
557 412 лв.
557 412 лв.
1 428 €/м²
2 793 лв./м²
2 793 лв./м²
Без такса поддръжка
Без комисиона от купувача
Запитване за повече информация или оглед
Инфо пакет
Състояние
БДС (на шпакловка и замазка)
Обзавеждане
Необзаведен
Разстояния
Последна актуализация
16.09.2025 г.
Разстояния от имота до други важни обекти
- Plovdiv (PDV): 11 км
Строителство
- Тухла
Административна информация за офертата
ГАЗИФИКАЦИЯ, ЕЛЕКТРИЧЕСТВО
- Електричество
ВОДОСНАБДЯВАНЕ
- Водоснабдяване
КАНАЛИЗАЦИЯ
- Канализация
ФАСАДА
- външна изолация
ПОКРИВ
- керемиди
- покривна изолация
САНИТАРНИ И СПОМАГАТЕЛНИ ПОМЕЩЕНИЯ
- Балкони
- Веранда
- Вътрешно стълбище
ИЗОЛАЦИИ И ДОВЪРШИТЕЛНИ РАБОТИ
- На шпакловка и замазка
ДВОР И ГРАДИНА
- Двор
- Поддържан двор
ДРУГИ
- Магазин за хранителни стоки в близост
Къща-близнак в нов комплекс с панорамни гледки – село Белащица, до Пловдив!
Представяме стилна къща-близнак, част от нов модерен комплекс, разположен в подножието на Родопите, само на няколко минути от Пловдив. Имотът съчетава спокойствието на природата с удобствата на градския живот, което го прави отличен избор както за постоянен дом.
Сградата е с издаден Акт 14!
Параметри на имота
За комплекса:
Проектът включва 22 къщи с контролиран достъп, просторно междублоково пространство, отлична инфраструктура и панорамни гледки към планината и града.
Село Белащица се утвърждава като една от най-предпочитаните зони около Пловдив, благодарение на красивата природа, бързия достъп до града и потенциала си за развитие като елитна вилна зона. Само на 3 км от Околовръстното шосе и с отлична свързаност с Марково и останалите крайградски райони.
Очакваме Вашето запитване
Ако желаете да организирате оглед на имот, който Ви интересува, или да посетите някой от нашите офиси, моля свържете се с нас. За да уговорите ден и час за среща или оглед, можете да се обадите на посочения в обявата телефон или да изпратите запитване чрез електронната поща. Нашият консултант ще Ви съдейства с всички необходими подробности и ще уговори удобно за Вас време.
Търсите подходящия за Вас имот?
Не се колебайте да се свържете с нас и да ни разкажете за Вашите нужди и предпочитания. Нашият екип ще проведе задълбочено проучване на пазара, за да Ви предложи имоти, които точно отговарят на Вашите критерии. Разполагаме с изключително портфолио от висококачествени и ексклузивни жилища, които са достъпни само за нашите клиенти. За да сте първите, които ще получите информация за тях – свържете се с нас.
Допълнителни услуги
Като ценен клиент на нашата компания, Вие ще имате привилегията да ползвате напълно безплатно услугите на нашия опитен юридически екип. В допълнение, предлагаме комплексни решения, включващи имуществена застраховка, безплатна финансова консултация, както и изгодни условия за финансиране. Нашите услуги се разпростират и в сферата на препродажбата, отдаването под наем и управлението на имоти. Осигуряваме висококачествени ремонтни дейности и обзавеждане чрез специализирани фирми, които са част от нашата корпоративна група и са наши дългогодишни професионални партньори.
Представяме стилна къща-близнак, част от нов модерен комплекс, разположен в подножието на Родопите, само на няколко минути от Пловдив. Имотът съчетава спокойствието на природата с удобствата на градския живот, което го прави отличен избор както за постоянен дом.
Сградата е с издаден Акт 14!
Параметри на имота
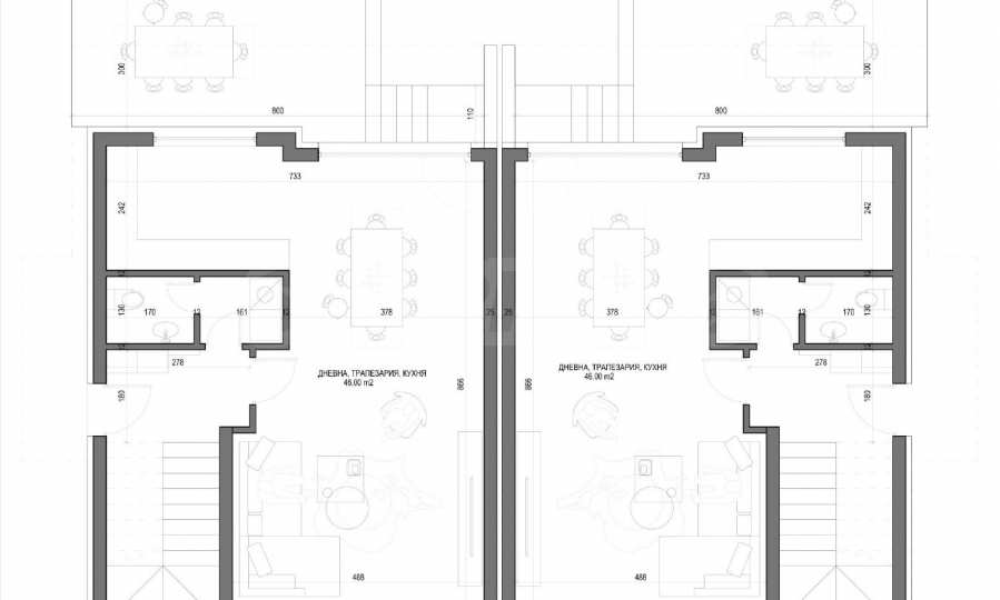
- застроена площ - 199,60 кв.м;
- идеални части от земята и включено паркомясто.
- първи етаж - антре/коридор, просторна дневна с кухня, санитарно помещение, веранда;
- втори етаж - три спални, две бани с тоалетна, дрешник, тераса.
За комплекса:
Проектът включва 22 къщи с контролиран достъп, просторно междублоково пространство, отлична инфраструктура и панорамни гледки към планината и града.
- височина на таваните - 3.20 м на първия и 3.00 м на втория етаж;
- асфалтов частен път – 10 м широк, с дължина 160 м.
- немски тухли Wienerberger;
- керемиди Bramac;
- външна топлоизолация – 10 см;
- 7-камерна PVC дограма с троен стъклопакет;
- подготвена инсталация за термопомпа и конвектори;
- пълно окабеляване до ключ: видеонаблюдение, СОТ, интернет, TV, външно осветление;
- озеленяване и автоматизирана поливна система в проекта.
Село Белащица се утвърждава като една от най-предпочитаните зони около Пловдив, благодарение на красивата природа, бързия достъп до града и потенциала си за развитие като елитна вилна зона. Само на 3 км от Околовръстното шосе и с отлична свързаност с Марково и останалите крайградски райони.
Очакваме Вашето запитване
Ако желаете да организирате оглед на имот, който Ви интересува, или да посетите някой от нашите офиси, моля свържете се с нас. За да уговорите ден и час за среща или оглед, можете да се обадите на посочения в обявата телефон или да изпратите запитване чрез електронната поща. Нашият консултант ще Ви съдейства с всички необходими подробности и ще уговори удобно за Вас време.
Търсите подходящия за Вас имот?
Не се колебайте да се свържете с нас и да ни разкажете за Вашите нужди и предпочитания. Нашият екип ще проведе задълбочено проучване на пазара, за да Ви предложи имоти, които точно отговарят на Вашите критерии. Разполагаме с изключително портфолио от висококачествени и ексклузивни жилища, които са достъпни само за нашите клиенти. За да сте първите, които ще получите информация за тях – свържете се с нас.
Допълнителни услуги
Като ценен клиент на нашата компания, Вие ще имате привилегията да ползвате напълно безплатно услугите на нашия опитен юридически екип. В допълнение, предлагаме комплексни решения, включващи имуществена застраховка, безплатна финансова консултация, както и изгодни условия за финансиране. Нашите услуги се разпростират и в сферата на препродажбата, отдаването под наем и управлението на имоти. Осигуряваме висококачествени ремонтни дейности и обзавеждане чрез специализирани фирми, които са част от нашата корпоративна група и са наши дългогодишни професионални партньори.
Виж текста на други езици (автоматичен превод)
Местоположение (приблизително)
На картата с червен маркер е указано приблизителното местоположение на имота/комплекса.
Нашите топ оферти за продажба в Белащица, България

