
Обща площ
115.55 м²
Застроена площ
97.55 м²
Общи части
18 м²
Състояние
В процес на строителство
Планирано завършване
Октомври 2026
Запитване за повече информация или оглед
Инфо пакет
Състояние
БДС (на шпакловка и замазка)
Отопление
ТЕЦ
Разстояния
Последна актуализация
06.04.2026 г.
Разстояния от имота до други важни обекти
- Център на града: 1 км
- Sofia (SOF): 15 км
- Магазин за хранителни стоки: 400 м
- Спирка: 300 м
- Болница: 200 м
- Училище: 1 км
Строителство
- Тухла
Отопление
- ТЕЦ
Административна информация за офертата
ГАЗИФИКАЦИЯ, ЕЛЕКТРИЧЕСТВО
- Електричество
ВОДОСНАБДЯВАНЕ
- Вода
- Водоснабдяване
АСАНСЬОРИ
- автоматични врати
- луксозни асансьори
КАНАЛИЗАЦИЯ
- Канализация
- Канализация
Представяме Ви новострояща се жилищна сграда на шест етажа с достигнат етап на строителство АКТ 14, разположена на метри от площад „Сточна гара“, предоставя изключителна възможност за живот или инвестиция в центъра на София. Локацията предлага удобен достъп до ключови точки на града и до летището.
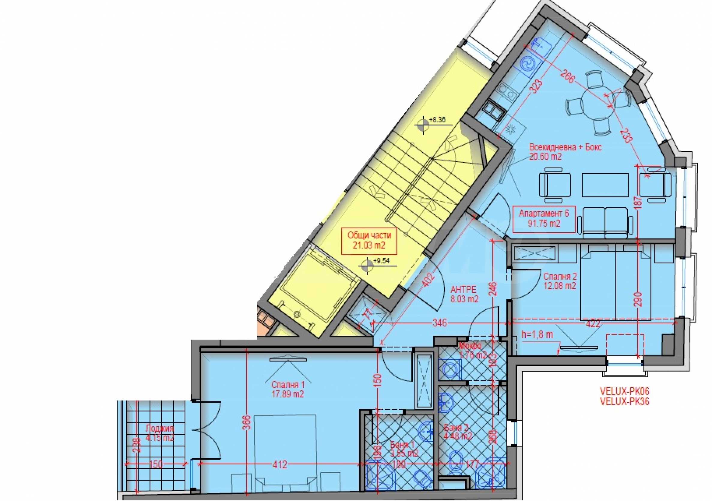
Конкретната оферта е за тристаен апартамент № 6, намиращ се на четвърти етаж с площ от 110.71 м2 - мазе 4.84 м2 и следното разпределение- входно антре, всекидневна с кухненски бокс, спалня, втора спалня със собствен санитарен възел и излаз към балкон, мокро помещение и втора баня с тоалетна.
Основни характеристики:
Етажност: 6 етажа;
Общ брой апартаменти: 9;
Свободни апартаменти: 4;
Отопление на ТЕЦ;
Площ на най-малкия свободен апартамент: 95.02 кв.м;
Площ на най-големия свободен апартамент: 171.36 кв.м;
Най-ниска цена: €228,048 (без ДДС);
Най-висока цена: €411,264 (без ДДС);
Разгъната застроена площ (РЗП): 1030 кв.м;
Очакван Акт 16: Октомври 2026
Схема на плащане:
60% при подписване на предварителен договор;
30% при Акт 15;
10% при Акт 16.
или изготвяне на индивидуална схема на плащане
Основни предимства на локацията:
Централно разположение: Намира се в непосредствена близост до идеалния център на София, с лесен достъп до административни сгради, банки, магазини и заведения.
Транспортни връзки: Само на няколко минути пеша от спирки на градски транспорт (трамваи, автобуси) и удобен достъп до метростанции.
Разстояния:
На 1.5 км от идеалния център на града (площад „Александър Батенберг“).
На около 10 км от Летище София, достъпно за около 20 минути с автомобил.
Инфраструктура: Близост до основни булеварди като бул. „Дондуков“ и бул. „Васил Левски“, които осигуряват лесен достъп до останалата част от града.
Културна среда: Районът е заобиколен от исторически забележителности, като Храм-паметника „Св. Александър Невски“, Народното събрание и Софийския университет, които са на кратко разстояние.
Това е проект със стратегическа локация и ограничен брой апартаменти, които предоставят възможност за комфортен и модерен живот в центъра на града. Свържете се за повече информация или огледи.
Очакваме Вашето запитване
Ако желаете да организирате оглед на имот, който Ви интересува, или да посетите някой от нашите офиси, моля свържете се с нас. За да уговорите ден и час за среща или оглед, можете да се обадите на посочения в обявата телефон или да изпратите запитване чрез електронната поща. Нашият консултант ще Ви съдейства с всички необходими подробности и ще уговори удобно за Вас време.
Търсите подходящия за Вас имот?
Не се колебайте да се свържете с нас и да ни разкажете за Вашите нужди и предпочитания. Нашият екип ще проведе задълбочено проучване на пазара, за да Ви предложи имоти, които точно отговарят на Вашите критерии. Разполагаме с изключително портфолио от висококачествени и ексклузивни жилища, които са достъпни само за нашите клиенти. За да сте първите, които ще получите информация за тях – свържете се с нас.
Допълнителни услуги
Като ценен клиент на нашата компания, Вие ще имате привилегията да ползвате напълно безплатно услугите на нашия опитен юридически екип. В допълнение, предлагаме комплексни решения, включващи имуществена застраховка, безплатна финансова консултация, както и изгодни условия за финансиране. Нашите услуги се разпростират и в сферата на препродажбата, отдаването под наем и управлението на имоти. Осигуряваме висококачествени ремонтни дейности и обзавеждане чрез специализирани фирми, които са част от нашата корпоративна група и са наши дългогодишни професионални партньори.
Конкретната оферта е за тристаен апартамент № 6, намиращ се на четвърти етаж с площ от 110.71 м2 - мазе 4.84 м2 и следното разпределение- входно антре, всекидневна с кухненски бокс, спалня, втора спалня със собствен санитарен възел и излаз към балкон, мокро помещение и втора баня с тоалетна.
Основни характеристики:
Схема на плащане:
или изготвяне на индивидуална схема на плащане
Основни предимства на локацията:
Това е проект със стратегическа локация и ограничен брой апартаменти, които предоставят възможност за комфортен и модерен живот в центъра на града. Свържете се за повече информация или огледи.
Очакваме Вашето запитване
Ако желаете да организирате оглед на имот, който Ви интересува, или да посетите някой от нашите офиси, моля свържете се с нас. За да уговорите ден и час за среща или оглед, можете да се обадите на посочения в обявата телефон или да изпратите запитване чрез електронната поща. Нашият консултант ще Ви съдейства с всички необходими подробности и ще уговори удобно за Вас време.
Търсите подходящия за Вас имот?
Не се колебайте да се свържете с нас и да ни разкажете за Вашите нужди и предпочитания. Нашият екип ще проведе задълбочено проучване на пазара, за да Ви предложи имоти, които точно отговарят на Вашите критерии. Разполагаме с изключително портфолио от висококачествени и ексклузивни жилища, които са достъпни само за нашите клиенти. За да сте първите, които ще получите информация за тях – свържете се с нас.
Допълнителни услуги
Като ценен клиент на нашата компания, Вие ще имате привилегията да ползвате напълно безплатно услугите на нашия опитен юридически екип. В допълнение, предлагаме комплексни решения, включващи имуществена застраховка, безплатна финансова консултация, както и изгодни условия за финансиране. Нашите услуги се разпростират и в сферата на препродажбата, отдаването под наем и управлението на имоти. Осигуряваме висококачествени ремонтни дейности и обзавеждане чрез специализирани фирми, които са част от нашата корпоративна група и са наши дългогодишни професионални партньори.
Виж текста на други езици (автоматичен превод)
Местоположение (приблизително)
На картата с червен маркер е указано приблизителното местоположение на имота/комплекса.
Архитектурни планове
Ще Ви бъде необходимо приложение за разчитане на файлове във формат .PDF. Ако нямате инсталирано такова, можете да свалите Acrobat Reader от тук.
Нашите топ оферти за продажба в София, България


