Етажност на сградата
4
Етаж
3
Асансьор
да
Стаи
4
Спални
3
Бани
2
Балкони (тераси) бр.:
2

Обща площ
152.87 м²
Застроена площ
125.23 м²
Общи части
27.64 м²

Запитване за повече информация или оглед
Инфо пакет
Разстояния
Последна актуализация
12.02.2026 г.
Разстояния от имота до други важни обекти
- Център на града: 7.7 км
- Sofia (SOF): 7 км
Отопление
- Термопомпа
Административна информация за офертата
ГАЗИФИКАЦИЯ, ЕЛЕКТРИЧЕСТВО
- Електричество
ВОДОСНАБДЯВАНЕ
- Водоснабдяване
АСАНСЬОРИ
- автоматични врати
САНИТАРНИ И СПОМАГАТЕЛНИ ПОМЕЩЕНИЯ
- Баня с тоалетна
- Дрешник
- Килер
ИЗОЛАЦИИ И ДОВЪРШИТЕЛНИ РАБОТИ
- На шпакловка и замазка
ЕКСТРИ В СГРАДАТА
- Затворен комплекс
Представяме апартамент с три спални за продажба, в нов жилищен комплекс от затворен тип, с парк и стилна архитектурна визия, в кв. "Малинова долина".
Местоположението е комуникативно, в близост до ул. "Проф. Крикор Азарян", която осигурява достъп до бул. "Симеоновско шосе" и бул. "Климент Охридски", а от там и до всички точки на столицата. На пешеходно разстояние се намират Зимния дворец на спорта, Национална Спортна Академия, парк "Въртопо" и всички удобства на Студентски град.
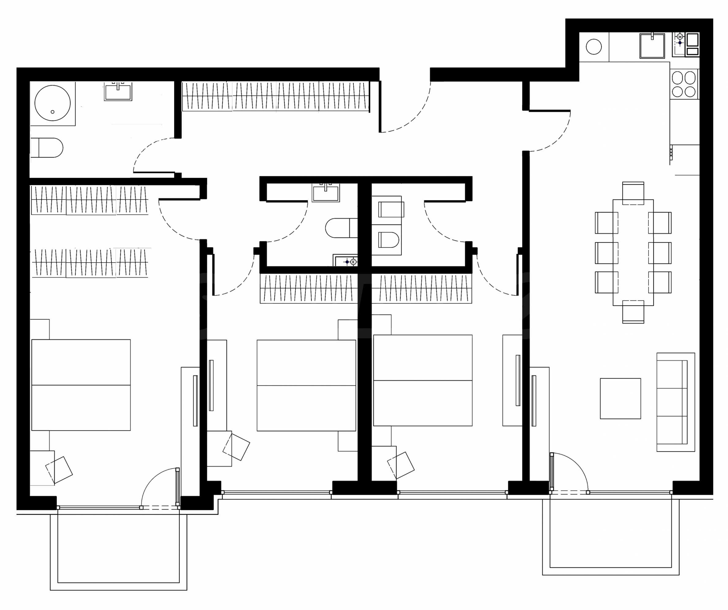
Имотът е ситуиран на 3-ти етаж от общо 4, ориентиран е на изток и предлага 152.87 кв.м обща площ.
Разпределение:
За комплекса
Състои се от три 4-етажни сгради и собствен парк с площ 1 500 кв.м, с богато озеленяване и без автомобилен трафик, които ще осигурят на живущите спокойна атмосфера на живот.
Налични за продажба са мезонети с двор, двустайни, тристайни и четиристайни жилища, като са предвидени различни възможности за обединение на съседни имоти. Апартаментите са с функционални разпределения и благоприятни изложения, като голяма част от тях предлагат гледки към Витоша.
Паркирането е решено с подземни паркоместа и гаражи, с опция за закупуването на цени от 22 000 евро.
Технически характеристики:
Жилищата ще разполагат с индивидуална система за рекуперация, която осигурява обмен на въздуха, като това позволява постоянен поток от чист и свеж въздух. Използва се както през студения, така и през топлия сезон.
Отстояния:
За допълнителна информация относно интересуващия Ви тип имот, моля свържете се с отговорния брокер по офертата.
Местоположението е комуникативно, в близост до ул. "Проф. Крикор Азарян", която осигурява достъп до бул. "Симеоновско шосе" и бул. "Климент Охридски", а от там и до всички точки на столицата. На пешеходно разстояние се намират Зимния дворец на спорта, Национална Спортна Академия, парк "Въртопо" и всички удобства на Студентски град.
Имотът е ситуиран на 3-ти етаж от общо 4, ориентиран е на изток и предлага 152.87 кв.м обща площ.
Разпределение:
- антре/коридор - 15.84 кв.м, баня - 4.77 кв.м,
- всекидневна с кухня и трапезария - 29.12 кв.м, с тераса - 4.05 кв.м,
- спалня - 12.77 кв.м със склад - 3.15 кв.м,
- спалня - 12.37 кв.м, с баня - 3.24 кв.м,
- спалня - 21.28 кв.м, с дрешник и с тераса от 4.05 кв.м.
За комплекса
Състои се от три 4-етажни сгради и собствен парк с площ 1 500 кв.м, с богато озеленяване и без автомобилен трафик, които ще осигурят на живущите спокойна атмосфера на живот.
Налични за продажба са мезонети с двор, двустайни, тристайни и четиристайни жилища, като са предвидени различни възможности за обединение на съседни имоти. Апартаментите са с функционални разпределения и благоприятни изложения, като голяма част от тях предлагат гледки към Витоша.
Паркирането е решено с подземни паркоместа и гаражи, с опция за закупуването на цени от 22 000 евро.
Технически характеристики:
- конструкция - стоманобетонна, монолитна конструкция;
- хидроизолационна система в целия сутерен, както и на тавани и тераси;
- топлоизолация на фасадата - 12 см EPS с декоративна облицовка от системата Caparol Meldorfer (клинкерни тухли);
- покривна изолация 12 см XPS;
- общи части с настилки от гранитогрес във вид на естествен камък, тавани - гипсокартон с LED осветление;
- асансьори - Orona;
- металопластмасова 6-камерна дограма Deceuninck, троен стъклопакет;
- домофонна система за контролиран достъп;
- отопление на ток с предвидена инсталация за термопомпа.
Жилищата ще разполагат с индивидуална система за рекуперация, която осигурява обмен на въздуха, като това позволява постоянен поток от чист и свеж въздух. Използва се както през студения, така и през топлия сезон.
Отстояния:
- 1.6 км от най-големия търговски център в столицата - Ring Mall Sofia;
- 300 м от парк "Въртопо" II;
- 2 км от парк "Студентски";
- 500 м от автобусна спирка;
- 3 км от метростанция "Младост";
- в района има магазини Фантастико, Кауфланд, LIDL;
- множество магазини, кафенета и заведения за хранене в кв. "Студентски град", който е в близост до обекта.
За допълнителна информация относно интересуващия Ви тип имот, моля свържете се с отговорния брокер по офертата.
Виж текста на други езици (автоматичен превод)
Местоположение (приблизително)
На картата с червен маркер е указано приблизителното местоположение на имота/комплекса.
Популярни търсения
- Селски къщи в България
- Имоти за продажба в София
- Имоти в София
- Имоти под наем в София
- Тристайни апартаменти за продажба в София
- Къщи за продажба в София
- Двустайни апартаменти за продажба в София
- Апартаменти (различни типове) за продажба в София
- Едностайни апартаменти за продажба в София
- Двустайни апартаменти в София

