Клас на сградата/комплекса
Висок стандарт
Етажност на сградата
9
Етаж
2
Мазе
да
Асансьор
да
Стаи
3
Спални
2
Бани
1
Балкони (тераси) бр.:
1
Тоалетни
1
Мазе/склад
да
Мазе (площ)
3.42 м²

Обща площ
115.91 м²
Застроена площ
91.76 м²
Общи части
24.15 м²
Получен Акт 16

Запитване за повече информация или оглед
Разстояния от имота до други важни обекти
- Център на града: 6 км
- Sofia (SOF): 12 км
Гледки от имота
- Гледка към града
Административна информация за офертата
ГАЗИФИКАЦИЯ, ЕЛЕКТРИЧЕСТВО
- Газификация
- Електричество
ВОДОСНАБДЯВАНЕ
- Водоснабдяване
АСАНСЬОРИ
- автоматични врати
- луксозни асансьори
КАНАЛИЗАЦИЯ
- Канализация
ФАСАДА
- външна изолация
- еталбонд (алуминиеви панели)
- окачена фасада
ВИД НА ОБЩИТЕ ЧАСТИ
- гранитогресни плочки
- окачен таван
САНИТАРНИ И СПОМАГАТЕЛНИ ПОМЕЩЕНИЯ
- Балкон
- Баня с тоалетна
- Мазе
ИЗОЛАЦИИ И ДОВЪРШИТЕЛНИ РАБОТИ
- Алуминиева дограма
- Блиндирана входна врата
- Външна изолация
- На шпакловка и замазка
- Троен стъклопакет
ЕКСТРИ В СГРАДАТА
- Асансьор
- Луксозни общи части
ДРУГИ
- Магазин за хранителни стоки в близост
Получен Акт 14! Продажба директно от инвеститор, без комисиона от купувача!
Цената на предлагания имот "до ключ" - €217,331 без ДДС.
Healthy building концепция - оптимално здравословна среда с чист въздух и вода в градски условия. "Здравословното строителство" е разумното решение за всички предизвикателства на околната среда и промени в климата. То позволява да живеем на един остров на спасението, който гарантира качествено пребиваване в домовете ни, редуцирайки здравословните рискове и месечните разходи на имота.
Удобно и ключово местоположение
Сградата ще бъде построена в кв. "Малинова долина", в съседство с един от най-големите магазини от водещата верига "Фантастико". OKINAWA Boutique Residence e разположена на втора линия от бул. "Симеоновско шосе", който е основна пътна артерия на столицата София, свързвайки пряко центъра на града с кв. "Симеоново". Сградата е удобно разположена в близост до спирка на градски транспорт, бъдеща станция на метро, университетите на Студентски град, "Околовръстното шосе", търговски център Sofia Ring Mall и Paradise Center, Бизнес парк София, природен парк Витошa, детски градини и училища.
Планирано завършване - март 2025 г.
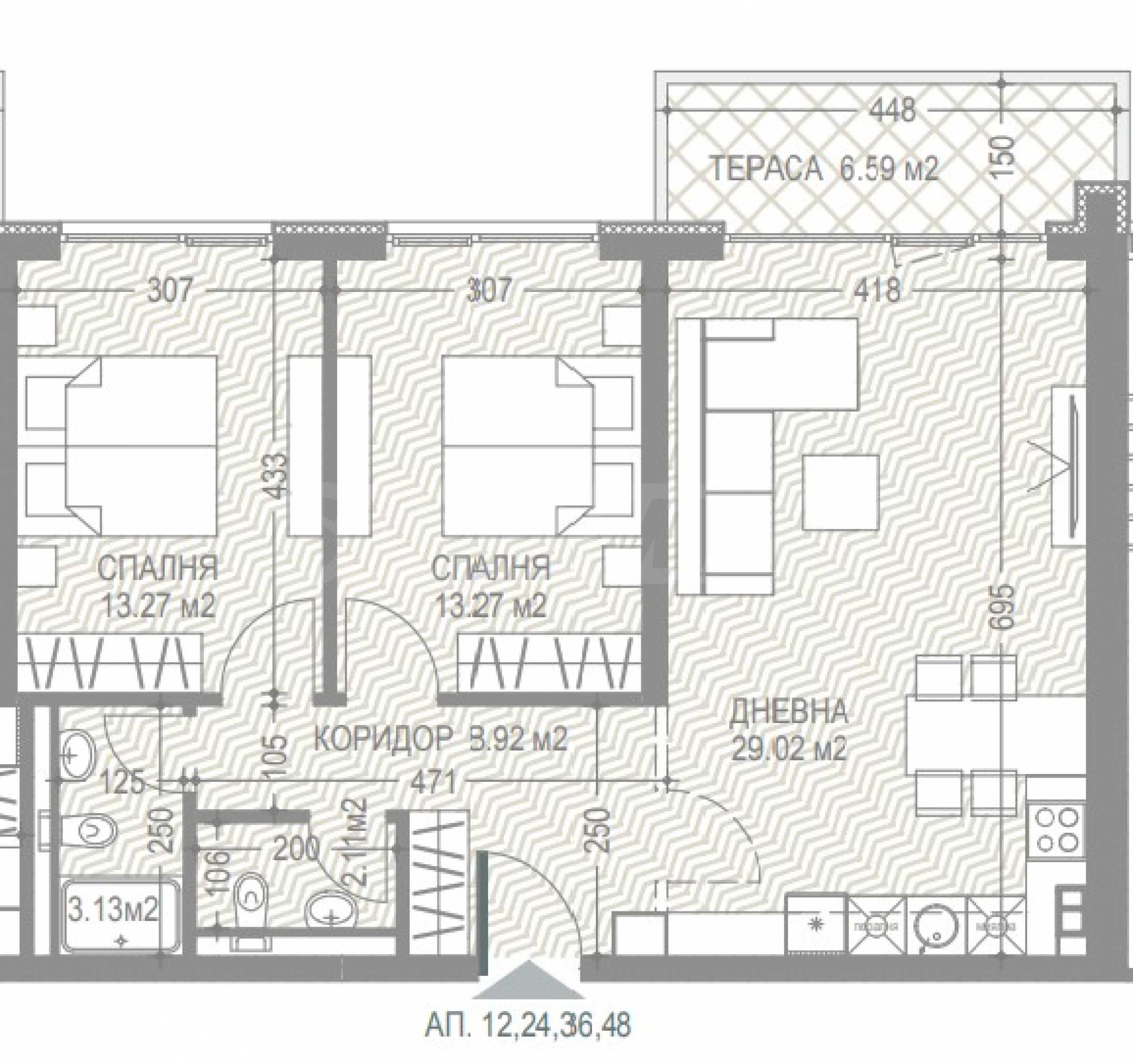
Апартамент №24 с обща площ 115.91 кв.м е разположен на 2-ри етаж и се състои от антре/коридор, дневна с трапезария и кухня, две спални, тераса, баня с тоалетна и отделна тоалетна. В посочената цена и площ е включено мазе с чиста площ 3.42 кв.м.
Степен на завършеност на апартаментите - "до ключ" (напълно завършени и готови за обзавеждане) или по БДС ("на шпакловка и замазка"), според предпочитанията на купувача
Всички апартаменти в сградата се издават стандартно на купувачите, според тяхното желание - завършени "до ключ" или по БДС, тоест на т. нар. ниво ''шпакловка и замазка''.
• Апартаментите, завършени "до ключ" се издават с материали от висок клас - настилки от гранитогресни плочи или ламиниран паркет, фино шпакловани и боядисани с латекс стени и тавани, поставени ключове и контакти, поставени интериорни врати, напълно завършени бани и тоалетни с фаянс и всички аксесоари в т.ч. душ кабини, тоалетни чинии с вградена структура, мивки и т.н. Не са включени осветителни тела и мебели.
• Апартаментите, завършени по БДС се издават в следния вид: всички инсталации в жилището са изградени и положени, в т.ч. електрическа инсталация, ВиК, тръбни разводки за отопление и климатизация на индивидуални газов котел, термопомпа или мултисплит система с фреонови климатици, според предпочитанията на купувача. Ще бъдат монтирани стойки за външните тела на предварително определени за това, дискретни места по балконите, с цел запазване на външната естетика на сградата и нейната фасада. Поставени са контакти и ключове от Schneider Electric. Включена е стандартно блиндирана врата, а вътрешни интериорни врати не са включени.
Посочената цена е без ДДС.
OKINAWA Boutique Residence запазва оптимизма, изисква любопитство към технологиите на бъдещето и начина, по който една сграда оказва влияние върху едно човешко тяло. Една концепция, подчинена на устрема към устойчив живот в градска среда и много личен диалог с нея, целящ правилното позициониране на модерния човек в нея.
А ето и как ще бъдат постигнати част от решенията за по-здравословен начин на живот в OKINAWA Boutique Residence:
• Японска градина - място за медитация и релаксация
Японските градини са един от доказаните методи, които имат изключително високо ниво на въздействие върху психичното здраве и устойчивост на човек. Чрез характерния минимализъм символично е представена цялата вселена в ограничено пространство, но без силно контрастните изразни средства, които са характерни за западните култури в градинарството. Използвани са отделни елементи, които помагат за изграждане на връзки между индивида, неговия вътрешен свят и вселената.
• Филтрирана вода
Сградата ще бъде снабдена с централен самопромивен филтър, който ще гарантира снабдяването на апартаментите с вода за питейни нужди, пречистена до най-високата степен.
• Първокласна дограма
Дограмата е от водещата европейска марка Alumil, от серията М 11 500 Aluterm Super Plus — алуминиева система с широк прекъснат термомост. Отговаря на най-високия клас по европейските спецификации по отношение на топло- и шумоизолация, въздухо- и водонепропускливост, според тестовете на института ift Rosenheim (Uf = 1,9 W/M2K). Тази система също е тествана и сертифицирана и от лабораторията EKANAL, официално оторизирана по стандартите на ЕС.
• Фасада
Високотехнологична, дишаща фасада, представляваща комбинация от топлоизолационна система на Baumit с минерална мазилка по архитектурен детайл от експандиран полистирол EPS 10 см и вентилируема, окачена върху алуминиева конструкция, облицована с керамични плочи на водещия италиански производител Laminam, от колекцията Seta, със златист мотив. Плочите Laminam запазват своите спецификации, дори когато са изложени на топлина, UV лъчи и замръзване. Също така са устойчиви на удари, петна и драскотини. В окачения фасаден пакет ще бъде вградена изолация от 10 см каширана каменно-минерална вата, марка ROCKWOOL с пародифузна и ветрозащитна мембрана, която има плътност 50 кг/м³, минимални топлозагуби - λ = 0,035 W/mK. Вентилируемата фасада осигурява отлична топлоизолация и паропропускливост, задържа влагата извън сградата, намалява топлинните загуби през зимата и проникването на горещ въздух през лятото, повишава хидроизолацията и шумоизолацията, защитата срещу сняг, дъжд и конденз откъм вътрешните страни на стените на сградата.
Фасадната част, покрита с Baumit, е самопочистващата се и с ниска склонност към замърсяване. Мазилката е минерална и силно паропропусклива, с най-висока степен на защита от задържане на мръсотия по повърхността на сградата.
• Общи части
Завършването на стените и таваните в общите части и апартаментите е с варова мазилка Baumit KlimaWhite.
Крайното покритие на стените и таваните в общите части е Баумит КлимаКолор - паропропусклива, еднокомпонентна, силикатна боя с добра покривност, почти без мирис, без емисии, разтворители и консерванти. Избягваме широко използваните в повечето сгради мазилки на циментова основа. Такива няма да бъдат полагани в OKINAWA Boutique Residence, поради множеството негативни ефекти върху вътрешния микроклимат на помещенията и здравето на обитателите, като плътно запечатване и невъзможност мазилката да диша, емисии на летливи органични съединения, неприятни миризми и дразнещи изпарения, замърсяващи домашния въздух. Продуктите Баумит Клима съдържат вар. Варта има превантивен ефект, тъй като е алкална.
Подовата замазка над подово отопление съдържа специални добавки, които да подобрят топлоотдаването и топлопреминаването.
Ние използваме сулфосинтетичен водоразтвор на полимерна основа. Той дава възможност да се подготвят висококачествени REO-пластични подови замазки, не само заради тяхната висока механична устойчивост, но също за тяхната висока топлопроводимост, непромокаемост, твърдост и стабилност на размерите (висока еластичност, ниска свиваемост и деформация). Под подовата замазка за подово отопление се поставя изолация, която да спре разпространяването на топлината надолу. Подложката на подовото отопление има и звукоизолираща функция. Замазката няма нужда от допълнително армиране.
Настилките по общите части на сградата, фоайе, коридори и стълбища ще са изпълнени с плочи от естествен камък — полиран гранит. Стълбищните парапети са ажурни от алуминий, по архитектурен детайл, видим в интериорните 3D визуализации на сградата. Ще бъдат предвидени стъклени врати към етажните площадки, които са димоуплътнени, самозатварящи се. За настилките на балконите и лоджиите сме избрали италиански гранитогрес, осигурен срещу хлъзгане. Откритите тераси ще са с изграден двоен под и подови настилки от италиански керамични плочи.
• Асансьори SCHINDLER.
Има възможност за закупуването и на подземни паркоместа.
Осигурени са изключително изгодни цени и за обзавеждане по поръчка от дъщерната мебелна компания на инвеститора - Фърниш БГ.
Освен по договаряне, инвеститорът предоставя и 2 стандартни плана на плащане.
Свържете се с отговорния брокер за професионална консултация относно интересуващия Ви тип имот в OKINAWA Boutique Residence.
Това е абсолютно точното местоположение на имота/комплекса. Можете да увеличите или намалите мащаба на картата, както и да се движите по нея, използвайки мишката или контролите, разположени върху самата карта.
Видео
Гъвкаво решение за отопление и климатизация
Предвидена е изцяло гъвкава схема за изграждане на съответните системи за отопление и климатизация на жилищата, изцяло според предпочитанията и избора на новодомците, закупили апартамент в сградата. Нашето гъвкаво решение е организирано по следния начин:
1. Във всяко жилище ще бъде изградена система за подово отопление (с възможност за охлаждане) чрез тръбна разводка от световния лидер Rehau, която ще може да се захрани посредством индивидуални термопомпа въздух-вода или газов котел по избор на купувача.
В цената на жилището е включена инсталацията за подово отопление, но не са включени термопомпа и конвектори за стенен монтаж. Всеки клиент може да закупи и да си инсталира термопомпата и конвекторите по собствен избор, при интериорното завършването на своето жилище.
2. Във всеки апартамент ще бъде изградена вътрешна газова инсталация за захранване на индивидуален газов котел, а чрез него и за подаване на гореща вода към подовото отопление. Газовият котел ще може да захранва цялото жилище и с топла вода за битови нужди.
В цената на жилището е включена тръбната инсталация за подовото отопление, но не е включен газов котел. Всеки клиент може да закупи и да инсталира газов котел по собствен избор, при интериорното завършване на своето жилище.
3. Изградена инсталация за мултисплит климатична система на фреон с едно външно и няколко вътрешни тела, при която вътрешните тела в спалните ще са за високостенен монтаж, а в дневните ще са за стенен приземен монтаж.
В цената на жилището е включена инсталацията, но не е включена климатичната техника (външно тяло и вътрешни тела-конвектори). Всеки клиент може да закупи и да инсталира климатична техника по собствен избор.
Във всеки апартамент ще има и свободни изводи за електрически бойлер, в случай че клиентите предпочетат този вид източник за захранване с топлата вода за битови нужди.
Термопомпа
При избор на термопомпата и завършване на подовата настилка с камък или керамични плочи, същата тръбна разводка за подовото отопление ще може да се ползва и за охлаждане. Охлаждане и отопление чрез термопомпа въздух-вода може да се постига както посредством тръбите на подовото отопление, а така също и със стенни вентилаторни конвектори (Fan coil), свързани с термопомпата посредством предварително изградената от нас тръбна разводка. Изследванията показват, че отоплението посредством подова тръбна мрежа (подово отопление) е не само по-здравословно и комфортно за обитателите, но и също е с около 40% по-ефективно като топлоотдаване и разходи в сравнение от конвекционалните радиатори с гореща вода.
Входна врата DIERRE
Блиндираната врата DIERRE от серията Sparta 8 умело съчетава красив италиански дизайн със сигурност, чрез революционни технологии и патентовани защитни механизми.
• 3D регулируеми панти MICRON;
• Механизъм OPEN VIEW ограничител на отварянето;
• Система NО SLAM контролирано отваряне и затваряне на вратата;
• Анкерна конструкция (черна каса);
• Патентовани системи за заключване;
• Вратите DIERRE притежават CE маркировка.
Крилото и касата на вратите са изработени от профилирана, електропоцинкована стомана. Всяка врата се монтира с контракаса. Класът на сигурност е 2 EN 1627/30 и клас на корозия 3 UNI ЕН1670.
Крилото е покрито с две ламинирани МДФ плоскости, позволяващи индивидуалност на цвета и дизайна на вътрешната страна на вратата. Обкантващият профил на крилото е от пластифицирана стомана, така блиндираната врата става ударо- и взломоустойчива.
Коефициентът на топлопреминаване e 1.8 W/m2, а минералната вата подпомага шумоизолацията на вратата - 39 dB RW.
Системата на заключване е лостова в 6 точки, като всяка врата има автоматичен праг, лимитатор на отваряне, 4 броя пасивни шипове откъм пантите и 1 девиатор.
Патронната брава е с патрон NEOS с 5 ключа + 1 работен ключ, обковът е бронз (дръжка + топка).
Покрив
Покривът на сградата е тип плосък покрив. Технологията на изграждане на покрива предвижда полагане на 14 см слой XPS, след което се прави армирана замазка за отвеждане на водата чрез воронки. Над нея се изгражда пародренаж с материал Gemini Vapor (парна бариера) за по-добра пропускливост на въздух и отвеждане в атмосферата на остатъчната влага. Следва полагане на TPO мембрана Köster. Kато завършек на покрива ще бъде положен чакъл oт обли камъни за подобрена топлоизолация и дълготрайност.
Освен по договаряне, инвеститорът предоставя и 2 стандартни плана на плащане:
Схема 1 с банков кредит:
- 2000 евро депозит (стоп-капаро) за резервация на 1-стаен и 2-стаен апартамент и 3000 евро депозит (стоп-капаро) за 3-стаен апартамент. Подписва се депозитно споразумение с ангажимент за подписване на предварителен договор за покупко-продажба;
- 20% минус стоп-капарото при подписване на предварителен договор;
- 80% с банков кредит след Акт 14 на траншове.
Схема 2:
- 2000 евро депозит (стоп-капаро) за резервация на 1-стаен и 2-стаен апартамент и 3000 евро депозит (стоп-капаро) за 3-стаен апартамент. Подписва се депозитно споразумение с ангажимент за подписване на предварителен договор за покупко-продажба;
- 20% минус стоп-капарото при подписване на предварителен договор;
- 80% на вноски по договаряне.
- Селски къщи в България
- Имоти за продажба в София
- Имоти в София
- Имоти под наем в София
- Тристайни апартаменти за продажба в София
- Къщи за продажба в София
- Двустайни апартаменти за продажба в София
- Апартаменти (различни типове) за продажба в София
- Едностайни апартаменти за продажба в София
- Двустайни апартаменти в София

