Етажност на сградата
8
Етаж
8
Асансьор
да
Стаи
4
Спални
3
Бани
1
Балкони (тераси) бр.:
1

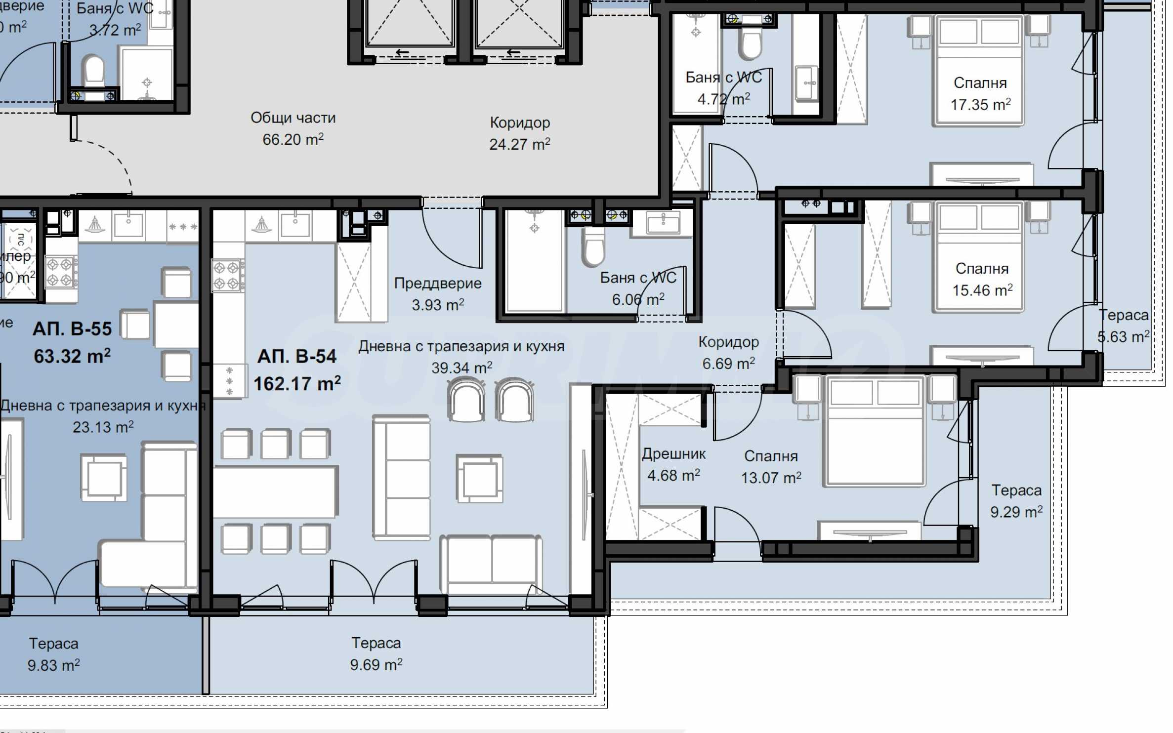
Обща площ
199.17 м²
Застроена площ
166.01 м²
Общи части
33.16 м²
Състояние
В процес на строителство
Планирано завършване
Септември 2027
Запитване за повече информация или оглед
Инфо пакет
Разстояния
Последна актуализация
30.11.2025 г.
Разстояния от имота до други важни обекти
- Център на града: 5.2 км
- Plovdiv (PDV): 19.2 км
Гледки от имота
- Гледка към града
Строителство
- Стоманобетонна конструкция
- Тухла
Административна информация за офертата
ГАЗИФИКАЦИЯ, ЕЛЕКТРИЧЕСТВО
- Електричество
ВОДОСНАБДЯВАНЕ
- Вода
КАНАЛИЗАЦИЯ
- Канализация
САНИТАРНИ И СПОМАГАТЕЛНИ ПОМЕЩЕНИЯ
- Балкон
- Баня с тоалетна
- Паркинг
ИЗОЛАЦИИ И ДОВЪРШИТЕЛНИ РАБОТИ
- Алуминиева дограма
- Блиндирана входна врата
- На шпакловка и замазка
ЕКСТРИ В СГРАДАТА
- Асансьор
ДВОР И ГРАДИНА
- Двор
- Поддържан двор
- Цветна градина
ДРУГИ
- Магазин за хранителни стоки в близост
Представяме четиристаен апартамент в един от най-новите и луксозни комплекси от затворен тип, в град Пловдив, където пространството съчетава уединението на собствения дом със сигурността и удобството на социално комуникативната среда. Перфектна локация в близост до парк "Отдих и култура", с бърз достъп до магазини, Mall Plovdiv, детски градини, училища и обществен транспорт.
Строителството стартира края на септември 2024 г., а Акт 16 се очаква до края на септември 2027 г.
Комплексът разполага с 6000 кв.м озеленени площи, проектирани детски площадки, алейна мрежа с растителност, зони за отдих, площадни пространства. На територията на комплекса ще намерите още търговски комплекс, аптека, дентален център, фитнес, ресторант и голям хранителен магазин, което ще направи живота Ви по-удобен и комфортен. Предлага едностайни, двустайни, тристайни и четиристайни апартаменти. Паркирането е 100% осигурено с надземни и подземни паркоместа, което е удобство за всички жители.
Имотът с обща площ от 199.17 кв.м е разположен на 8-и етаж от 8.
Жилищата се предават в степен на завършеност по БДС:
• гипсова мазилка на стени и тавани;
• подово покритие с циментова замазка;
• алуминиевата дограма, гарантираща перфектна шумо- и топлоизолация на всеки апартамент;
• входна блиндирана врата.
За тези, които търсят повече пространство предлагаме възможност за обединяване на жилища и луксозни довършителни работи.
Технически характеристики:
• монолитна стоманено-бетонна конструкция, енергийно ефективни тухли и окачена вентилируема фасадна система, осигуряваща висока техническа устойчивост;
• зарядни станции за електрическите автомобили, чудесно допълнение за стабилно и приятно живеене;
• подготовка за умен дом и подово отопление, което ще осигури комфорт и уют;
• луксозно изпълнение на общите части - използваните материали са гранит, мрамор, желязо и дървен фурнир;
• контролиран достъп и видеонаблюдение 24/7, предлагащи допълнителна сигурност и спокойствие за Вас и Вашето семейство;
• всеки вход е оборудван с високотехнологични електрически асансьори;
• видеодомофон за управление на електрическата брава на входната врата на сградата;
• предвидено място за поставяне на външно климатично тяло и безшумни канализациони тръби.
Схема на плащане:
• 2500 евро капаро;
• предварителен договор - 20%;
• Акт 15 - 70%;
• Акт 16 - 10%.
Има възможност и за други варианти на схеми на плащане.
Очакваме Вашето запитване
Ако желаете да организирате оглед на имот, който Ви интересува, или да посетите някой от нашите офиси, моля свържете се с нас. За да уговорите ден и час за среща или оглед, можете да се обадите на посочения в обявата телефон или да изпратите запитване чрез електронната поща. Нашият консултант ще Ви съдейства с всички необходими подробности и ще уговори удобно за Вас време.
Търсите подходящия за Вас имот?
Не се колебайте да се свържете с нас и да ни разкажете за Вашите нужди и предпочитания. Нашият екип ще проведе задълбочено проучване на пазара, за да Ви предложи имоти, които точно отговарят на Вашите критерии. Разполагаме с изключително портфолио от висококачествени и ексклузивни жилища, които са достъпни само за нашите клиенти. За да сте първите, които ще получите информация за тях – свържете се с нас.
Допълнителни услуги
Като ценен клиент на нашата компания, Вие ще имате привилегията да ползвате напълно безплатно услугите на нашия опитен юридически екип. В допълнение, предлагаме комплексни решения, включващи имуществена застраховка, безплатна финансова консултация, както и изгодни условия за финансиране. Нашите услуги се разпростират и в сферата на препродажбата, отдаването под наем и управлението на имоти. Осигуряваме висококачествени ремонтни дейности и обзавеждане чрез специализирани фирми, които са част от нашата корпоративна група и са наши дългогодишни професионални партньори.
Строителството стартира края на септември 2024 г., а Акт 16 се очаква до края на септември 2027 г.
Комплексът разполага с 6000 кв.м озеленени площи, проектирани детски площадки, алейна мрежа с растителност, зони за отдих, площадни пространства. На територията на комплекса ще намерите още търговски комплекс, аптека, дентален център, фитнес, ресторант и голям хранителен магазин, което ще направи живота Ви по-удобен и комфортен. Предлага едностайни, двустайни, тристайни и четиристайни апартаменти. Паркирането е 100% осигурено с надземни и подземни паркоместа, което е удобство за всички жители.
Имотът с обща площ от 199.17 кв.м е разположен на 8-и етаж от 8.
Жилищата се предават в степен на завършеност по БДС:
• гипсова мазилка на стени и тавани;
• подово покритие с циментова замазка;
• алуминиевата дограма, гарантираща перфектна шумо- и топлоизолация на всеки апартамент;
• входна блиндирана врата.
За тези, които търсят повече пространство предлагаме възможност за обединяване на жилища и луксозни довършителни работи.
Технически характеристики:
• монолитна стоманено-бетонна конструкция, енергийно ефективни тухли и окачена вентилируема фасадна система, осигуряваща висока техническа устойчивост;
• зарядни станции за електрическите автомобили, чудесно допълнение за стабилно и приятно живеене;
• подготовка за умен дом и подово отопление, което ще осигури комфорт и уют;
• луксозно изпълнение на общите части - използваните материали са гранит, мрамор, желязо и дървен фурнир;
• контролиран достъп и видеонаблюдение 24/7, предлагащи допълнителна сигурност и спокойствие за Вас и Вашето семейство;
• всеки вход е оборудван с високотехнологични електрически асансьори;
• видеодомофон за управление на електрическата брава на входната врата на сградата;
• предвидено място за поставяне на външно климатично тяло и безшумни канализациони тръби.
Схема на плащане:
• 2500 евро капаро;
• предварителен договор - 20%;
• Акт 15 - 70%;
• Акт 16 - 10%.
Има възможност и за други варианти на схеми на плащане.
Очакваме Вашето запитване
Ако желаете да организирате оглед на имот, който Ви интересува, или да посетите някой от нашите офиси, моля свържете се с нас. За да уговорите ден и час за среща или оглед, можете да се обадите на посочения в обявата телефон или да изпратите запитване чрез електронната поща. Нашият консултант ще Ви съдейства с всички необходими подробности и ще уговори удобно за Вас време.
Търсите подходящия за Вас имот?
Не се колебайте да се свържете с нас и да ни разкажете за Вашите нужди и предпочитания. Нашият екип ще проведе задълбочено проучване на пазара, за да Ви предложи имоти, които точно отговарят на Вашите критерии. Разполагаме с изключително портфолио от висококачествени и ексклузивни жилища, които са достъпни само за нашите клиенти. За да сте първите, които ще получите информация за тях – свържете се с нас.
Допълнителни услуги
Като ценен клиент на нашата компания, Вие ще имате привилегията да ползвате напълно безплатно услугите на нашия опитен юридически екип. В допълнение, предлагаме комплексни решения, включващи имуществена застраховка, безплатна финансова консултация, както и изгодни условия за финансиране. Нашите услуги се разпростират и в сферата на препродажбата, отдаването под наем и управлението на имоти. Осигуряваме висококачествени ремонтни дейности и обзавеждане чрез специализирани фирми, които са част от нашата корпоративна група и са наши дългогодишни професионални партньори.
Виж текста на други езици (автоматичен превод)
Местоположение (приблизително)
На картата с червен маркер е указано приблизителното местоположение на имота/комплекса.
Нашите топ оферти за продажба в Пловдив, България
Имоти по тип, Пловдив
- Тристайни апартаменти в Пловдив
- Двустайни апартаменти в Пловдив
- Апартаменти (различни типове) в Пловдив
- Четиристайни апартаменти в Пловдив
- Къщи в Пловдив
- Едностайни апартаменти в Пловдив
- Магазини в Пловдив
- Земеделски земи в Пловдив
- Петстайни апартаменти в Пловдив
- Парцели за инвестиция в Пловдив
Популярни търсения
- Селски къщи в България
- Имоти за продажба в Пловдив
- Имоти в Пловдив
- Имоти под наем в Пловдив
- Тристайни апартаменти за продажба в Пловдив
- Двустайни апартаменти за продажба в Пловдив
- Къщи за продажба в Пловдив
- Имоти за продажба в кв.Център, Пловдив
- Едностайни апартаменти за продажба в Пловдив
- Имоти за продажба в кв.Христо Смирненски, Пловдив


