Клас на сградата/комплекса
Висок стандарт
Етажност на сградата
11
Етаж
9
Асансьор
да
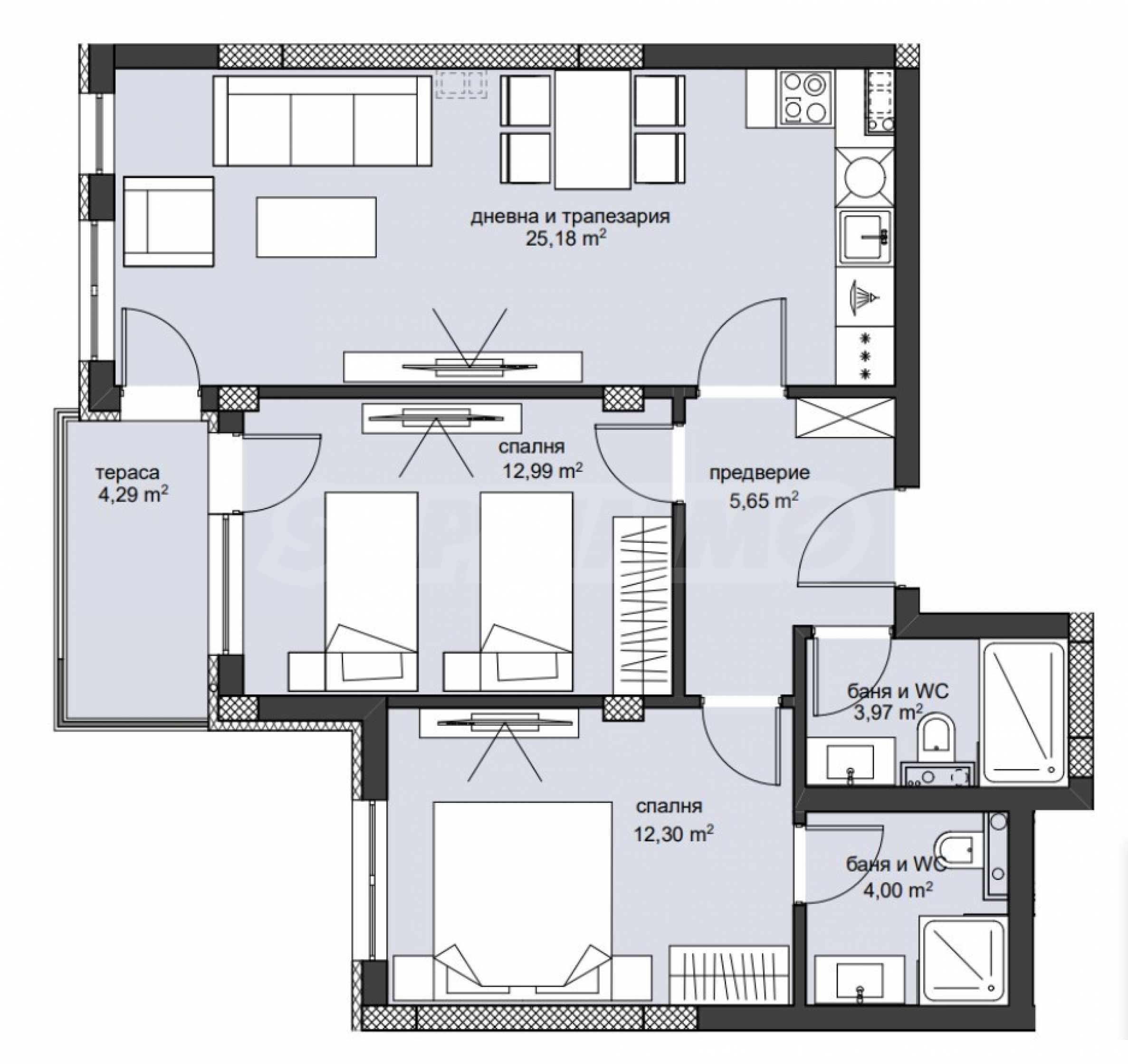
Стаи
3
Спални
2
Бани
2
Балкони (тераси) бр.:
1

Обща площ
101.62 м²
Застроена площ
83.70 м²
Общи части
17.92 м²
Получен Акт 16
Запитване за повече информация или оглед
Инфо пакет
Разстояния
Последна актуализация
09.12.2025 г.
Разстояния от имота до други важни обекти
- Plovdiv (PDV): 18.7 км
Гледки от имота
- Гледка към града
Строителство
- Стоманобетонна конструкция
- Тухла
Административна информация за офертата
ГАЗИФИКАЦИЯ, ЕЛЕКТРИЧЕСТВО
- Електричество
ВОДОСНАБДЯВАНЕ
- Вода
КАНАЛИЗАЦИЯ
- Канализация
САНИТАРНИ И СПОМАГАТЕЛНИ ПОМЕЩЕНИЯ
- Балкон
- Баня с тоалетна
ИЗОЛАЦИИ И ДОВЪРШИТЕЛНИ РАБОТИ
- PVC дограма
- На шпакловка и замазка
ЕКСТРИ В СГРАДАТА
- Асансьор
- Луксозни общи части
ДРУГИ
- Магазин за хранителни стоки в близост
Представяме комфортен тристаен апартамент в новостроящ се комплекс, в кв. "Христо Смирненски". Местоположението на сградата е много удобно - в непосредствена близост е Гребната база, а също така училища, детски градини, модерни лечебни заведения. От тук има лесен и бърз достъп до центъра на града, основните булеварди и автомагистрала "Тракия".
БЕЗ КОМИСИОНА!
Сградата е въведена в експлоатация (с Акт 16).
Комплексът със своите забележителни 51 метра височина ще се извисява над останалите сгради, което дава усещането за простор и възможност за панорамна гледка към Родопи планина и емблематичното тепе на гр. Пловдив - "Младежки хълм".
Една сграда от най-ново поколение, съчетаваща модерна архитектура, енергоефективност и най-високо качество.
Комплексът ще се състои от 4 секции, с общо 241 апартамента, с от 3 до 6 студиа, двустайни и тристайни апартамента на етаж. Всяка секция ще бъде с индивидуален вход, с прилежащ към него асансьор, който осигурява топла връзка с подземния паркинг на сградата. Общите части ще са луксозно завършени с висококачествени материали и неповторим дизайн. Жилищата са с функционални разпределения, което прави стаите светли и просторни. На партерен етаж са ситуирани търговски и офис площи.
Имотът с площ от 101.62 кв.м е разположен на 9-и етаж от 11.
Апартаментите се издават в степен на завършеност по БДС, на шпакловка и замазка.
Паркирането е 100% осигурено с надземни и подземни паркоместа, както и гаражи.
Технически характеристики:
• дограма - 6-камерна алуминиева Етем, 2-ен стъклопакет, 4 сезона;
• асансьори - 8 местни Orona;
• общи части - настилка от мрамор, облечени асансьори с гранит, алуминиеви черни парапети;
• фасада - окачена фасадата съчетание от Laminam, HPL и Etalbond;
• входни врати – Everest.
Схема на плащане:
• 2000 евро - стоп капаро;
• 10% при подписване на предварителен договор;
• 20% при кота 0,00;
• 10% при достигане на котата на апартамента;
• 10% при покривна плоча;
• 20% при поставяне на Ел. и ВиК;
• 10% при Акт 15.
Проектът е дело на доказан инвеститор с над 10 реализирани проекта на пазара.
За повече информация, моля свържете се с отговорния брокер по офертата.
БЕЗ КОМИСИОНА!
Сградата е въведена в експлоатация (с Акт 16).
Комплексът със своите забележителни 51 метра височина ще се извисява над останалите сгради, което дава усещането за простор и възможност за панорамна гледка към Родопи планина и емблематичното тепе на гр. Пловдив - "Младежки хълм".
Една сграда от най-ново поколение, съчетаваща модерна архитектура, енергоефективност и най-високо качество.
Комплексът ще се състои от 4 секции, с общо 241 апартамента, с от 3 до 6 студиа, двустайни и тристайни апартамента на етаж. Всяка секция ще бъде с индивидуален вход, с прилежащ към него асансьор, който осигурява топла връзка с подземния паркинг на сградата. Общите части ще са луксозно завършени с висококачествени материали и неповторим дизайн. Жилищата са с функционални разпределения, което прави стаите светли и просторни. На партерен етаж са ситуирани търговски и офис площи.
Имотът с площ от 101.62 кв.м е разположен на 9-и етаж от 11.
Апартаментите се издават в степен на завършеност по БДС, на шпакловка и замазка.
Паркирането е 100% осигурено с надземни и подземни паркоместа, както и гаражи.
Технически характеристики:
• дограма - 6-камерна алуминиева Етем, 2-ен стъклопакет, 4 сезона;
• асансьори - 8 местни Orona;
• общи части - настилка от мрамор, облечени асансьори с гранит, алуминиеви черни парапети;
• фасада - окачена фасадата съчетание от Laminam, HPL и Etalbond;
• входни врати – Everest.
Схема на плащане:
• 2000 евро - стоп капаро;
• 10% при подписване на предварителен договор;
• 20% при кота 0,00;
• 10% при достигане на котата на апартамента;
• 10% при покривна плоча;
• 20% при поставяне на Ел. и ВиК;
• 10% при Акт 15.
Проектът е дело на доказан инвеститор с над 10 реализирани проекта на пазара.
За повече информация, моля свържете се с отговорния брокер по офертата.
Виж текста на други езици (автоматичен превод)
Местоположение (приблизително)
На картата с червен маркер е указано приблизителното местоположение на имота/комплекса.
Нашите топ оферти за продажба в Пловдив, България
Имоти по тип, Пловдив
- Тристайни апартаменти в Пловдив
- Двустайни апартаменти в Пловдив
- Апартаменти (различни типове) в Пловдив
- Четиристайни апартаменти в Пловдив
- Къщи в Пловдив
- Едностайни апартаменти в Пловдив
- Магазини в Пловдив
- Земеделски земи в Пловдив
- Петстайни апартаменти в Пловдив
- Парцели за инвестиция в Пловдив
Популярни търсения
- Селски къщи в България
- Имоти за продажба в Пловдив
- Имоти в Пловдив
- Имоти под наем в Пловдив
- Тристайни апартаменти за продажба в Пловдив
- Двустайни апартаменти за продажба в Пловдив
- Къщи за продажба в Пловдив
- Имоти за продажба в кв.Център, Пловдив
- Едностайни апартаменти за продажба в Пловдив
- Имоти за продажба в кв.Христо Смирненски, Пловдив


