Етажност на сградата
10
Етаж
9
Асансьор
да
Стаи
3
Спални
2
Бани
1

Обща площ
109.74 м²
Застроена площ
99.50 м²
Общи части
10.24 м²
Състояние
В процес на строителство
Планирано завършване
Октомври 2026
Запитване за повече информация или оглед
Инфо пакет
Състояние
БДС (на шпакловка и замазка)
Обзавеждане
Отопление
Парно на газ
Климатик
Климатици стандартни, Мултисплит система
Разстояния
Последна актуализация
21.01.2026 г.
Разстояния от имота до други важни обекти
- Sofia (SOF): 22 км
Отопление
- Парно на газ
Климатизация
- Климатици стандартни
- Мултисплит система
Административна информация за офертата
ГАЗИФИКАЦИЯ, ЕЛЕКТРИЧЕСТВО
- Газификация
- Електричество
ВОДОСНАБДЯВАНЕ
- Водоснабдяване
ВИД НА ОБЩИТЕ ЧАСТИ
- гранитогресни плочки
САНИТАРНИ И СПОМАГАТЕЛНИ ПОМЕЩЕНИЯ
- Балкон
- Баня с тоалетна
- Килер
ИЗОЛАЦИИ И ДОВЪРШИТЕЛНИ РАБОТИ
- PVC дограма
- Блиндирана входна врата
- Външна изолация
ЕКСТРИ В СГРАДАТА
- Асансьор
ДРУГИ
- Магазин за хранителни стоки в близост
Представяме за продажба тристаен апартамент в нова сграда с еко концепция, с уникални вертикални градини към всяка тераса, на удобна локация до най-новия квартал на столицата, в кв. "Овча купел". Сградата се намира в югозападната част на София, на границата между три квартала - "Лагера", "Овча купел" и "Красна поляна", в новоизграждащ се, нов емблематичен жилищен квартал.
В концепцията на сградата е заложено екологично строителство, с грижа за утрешния ден, вертикални градини към всяка тераса, с капково напояване и умно управление. Проектът е със стремеж буквално да озелени фасадите, които ще превърне в една вертикална, вечнозелена градина, с контролиран растеж, без нужда от специални градинарски грижи - поддържана чрез автоматични, водоспестяващи поливни системи. Градините (цветарници) се изпълняват с вечнозелени, широколистни и иглолистни растения, което създава целогодишна зелена среда за собствениците. Вечнозелените градини и цялостното озеленяване на комплекса филтрират въздуха, поглъщат вредните емисии и защитават от слънчева радиация и градски шум. Покривната градина придава допълнителен зелен облик на сградата и допринася за нейната цветна еко-естетика.
Характеристики на имота:
Имотът се продава в степен на завършеност по БДС. Цената е според Вариант 1.
Общите части в сградата са само 10%.
Жилищата в сградата са изключително светли, със светла височина от 2,65 м и 3,30 м на последен етаж, с френски прозорци, 5-камерна немска дограма, троен стъклопакет, нискоемисионно К-стъкло.
Общи технически параметри на сградата:
Сградата предлага супер атрактивна локация на 6 минути от центъра, на 6 минути от Околовръстен път, на 2 минути (800 м) от метростанция "Овча купел", до трамваи №4, 11, 22 и автобуси №11, 60 и 83, до детска градина, градски транспорт, с прекрасна гледка към Витоша планина.
Сградата се намира точно срещу бъдещия нов квартал на София - ''Галакси'', който ще се изгради на площ от 200 000 кв.м, което в краткосрочен план ще вдигне цените в района с минимум 30-40%. Кварталът ще е с Ритейл център, в който ще са позиционирани Кауфланд, Практикер и Технополис, а в дълбочина ще е разположен жилищен квартал с офиси, хотел и детска градина, с обща застроена площ от 700 000 кв.м.
В района до:
В концепцията на сградата е заложено екологично строителство, с грижа за утрешния ден, вертикални градини към всяка тераса, с капково напояване и умно управление. Проектът е със стремеж буквално да озелени фасадите, които ще превърне в една вертикална, вечнозелена градина, с контролиран растеж, без нужда от специални градинарски грижи - поддържана чрез автоматични, водоспестяващи поливни системи. Градините (цветарници) се изпълняват с вечнозелени, широколистни и иглолистни растения, което създава целогодишна зелена среда за собствениците. Вечнозелените градини и цялостното озеленяване на комплекса филтрират въздуха, поглъщат вредните емисии и защитават от слънчева радиация и градски шум. Покривната градина придава допълнителен зелен облик на сградата и допринася за нейната цветна еко-естетика.
Характеристики на имота:
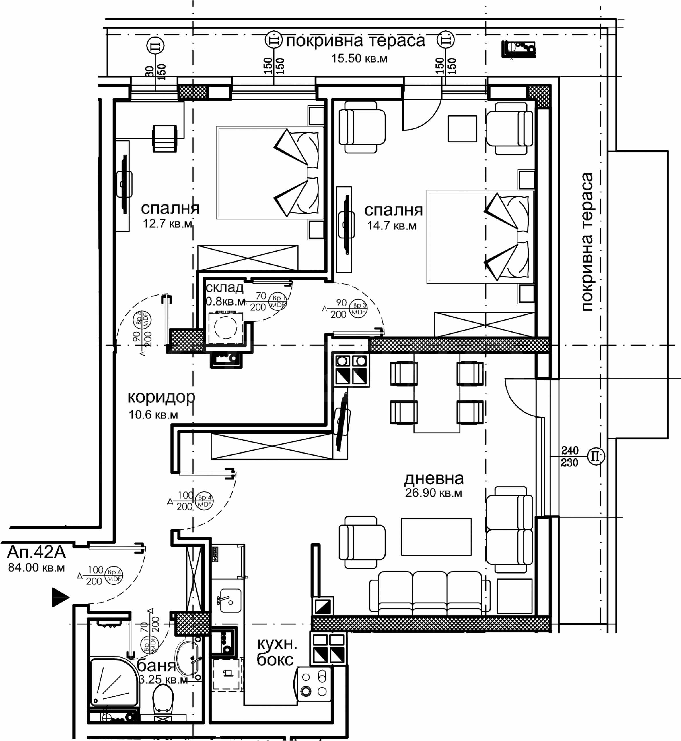
- Етаж: 9 от 10;
- Обща площ (ЗП+общи части+тераса) - 109,74 кв.м;
- Общи части - 10,24 кв.м;
- Покривна тераса: 15,50 кв.м;
- Изложение - благоприятно, югоизток.
Имотът се продава в степен на завършеност по БДС. Цената е според Вариант 1.
Общите части в сградата са само 10%.
Жилищата в сградата са изключително светли, със светла височина от 2,65 м и 3,30 м на последен етаж, с френски прозорци, 5-камерна немска дограма, троен стъклопакет, нискоемисионно К-стъкло.
Общи технически параметри на сградата:
- Конструкция: монолитна стоманобетонна;
- Външни и преградни стени: зидария с висок клас енергоефективна керамична тухла, топлоизолация -10 см каменна вата;
- Фасада: гравирани алуминиеви архитектурни детайли с меден цвят и висок клас немска минерална мазилка CAPAROL /или еквивалент/;
- Дограма: 5-камерна, PVC, немска, с троен, подсилен шумоизолационен стъклопакет, слънцезащитно покритие - 4 сезона, флоат, ниско емисионно К-стъкло, топъл дистанционер;
- Входни врати: блиндирани, с касова брава, външна, пожароустойчива;
- Стени и тавани: машинно-гипсова мазилка;
- Завишена шумоизолация на преградните стени между отделните апартаменти;
- Под: с допълнителна шумоизолация под плаваща замазка;
- Балкони: първокачествен мразоустойчив гранитогрес, полиуретанова хидроизолация гравирани алуминиеви детайли;
- Общи части: настилки – гранитогрес/гранит; парапети – по проект; стени и тавани – латекс;
- Асансьори: от сертифициран европейски производител - висок клас, просторни, с осигурен достъп на хора с увреждания;
- Ел. инсталация: изцяло изградена с монтирани прекъсвачи, ключове, контакти, монтирано апартаментно табло;
- Слаботокови инсталации: изградено окабеляване за кабелна телевизия, Интернет и звънчева и домофонна инсталация;
- Отоплителна инсталация: изградена сградна газова инсталация; инсталирани изводи за монтаж на климатици и монтирана кутия за климатик;
- Вертикална планировка: изградена, съгласно утвърден проект за паркоустройство и благоустройство с богато озеленяване;
- Автоматична пожароизвестяваща и пожарогасяща инсталация със собствен резервоар и помпена станция.
- Обезопасен подземен и надземен паркинг/гаражи, включително и за велосипеди;
- Множество зарядни станции за електрически автомобили;
- Детска площадка;
- Детска градина;
- Кулинария и Bar and Grill;
- Офис на Еконт и EasyPay;
- Аптека;
- Осигурен удобен, самостоятелен достъп за хора с увреждания за цялата сграда.
Сградата предлага супер атрактивна локация на 6 минути от центъра, на 6 минути от Околовръстен път, на 2 минути (800 м) от метростанция "Овча купел", до трамваи №4, 11, 22 и автобуси №11, 60 и 83, до детска градина, градски транспорт, с прекрасна гледка към Витоша планина.
Сградата се намира точно срещу бъдещия нов квартал на София - ''Галакси'', който ще се изгради на площ от 200 000 кв.м, което в краткосрочен план ще вдигне цените в района с минимум 30-40%. Кварталът ще е с Ритейл център, в който ще са позиционирани Кауфланд, Практикер и Технополис, а в дълбочина ще е разположен жилищен квартал с офиси, хотел и детска градина, с обща застроена площ от 700 000 кв.м.
В района до:
- училища и детски градини – ДГ №196 "Шарл Перо", ДГ №126 "Тинтява", ДГ №187 "Жар птица". В близост до учебни заведения – 92 ОУ "Димитър Талев", 28 СОУ "Алеко Константинов" и ПГ по битова и електротранспортна техника.
- В близост до болница МБАЛ Надежда, пазар "Росица", стадион "Септември", Западен парк, парк "Св. Св. Петър и Павел", конна база "Хан Аспарух", картинг "Красна Поляна".
Виж текста на други езици (автоматичен превод)
Местоположение (приблизително)
На картата с червен маркер е указано приблизителното местоположение на имота/комплекса.
Нашите топ оферти за продажба в София, България
Популярни търсения
- Селски къщи в България
- Имоти за продажба в София
- Имоти в София
- Имоти под наем в София
- Тристайни апартаменти за продажба в София
- Къщи за продажба в София
- Двустайни апартаменти за продажба в София
- Апартаменти (различни типове) за продажба в София
- Едностайни апартаменти за продажба в София
- Двустайни апартаменти в София


