Етажност на сградата
7
Етаж
2
Асансьор
да
Стаи
2
Спални
1
Бани
1
Балкони (тераси) бр.:
1

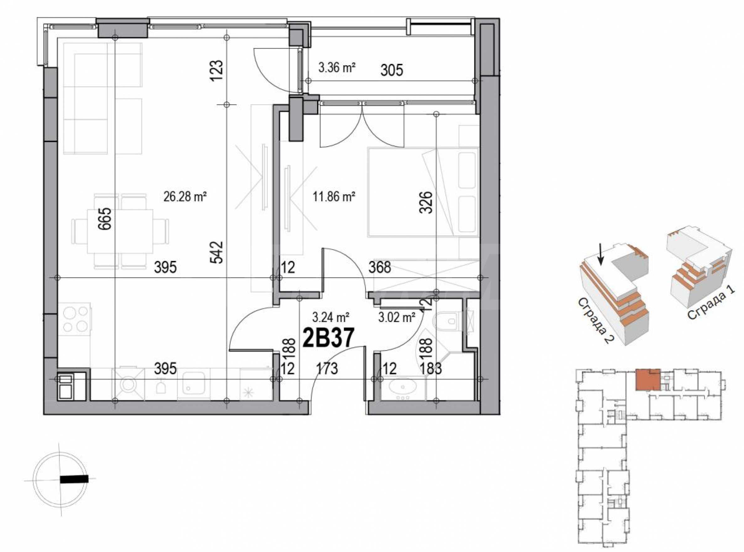
Обща площ
66.28 м²
Състояние
В процес на строителство
Планирано завършване
Март 2026

Запитване за повече информация или оглед
Инфо пакет
Разстояния
Последна актуализация
01.12.2025 г.
Разстояния от имота до други важни обекти
- Център на града: 3.8 км
- Plovdiv (PDV): 16.7 км
Гледки от имота
- Гледка към града
- Гледка към парк
Строителство
- Тухла
Отопление
- ТЕЦ
Административна информация за офертата
ГАЗИФИКАЦИЯ, ЕЛЕКТРИЧЕСТВО
- Електричество
ВОДОСНАБДЯВАНЕ
- Вода
- Водоснабдяване
КАНАЛИЗАЦИЯ
- Канализация
САНИТАРНИ И СПОМАГАТЕЛНИ ПОМЕЩЕНИЯ
- Балкон
- Баня с тоалетна
- Гараж
- Паркинг
- Тоалетна
ЕКСТРИ В СГРАДАТА
- Асансьор
- Затворен комплекс
- Луксозни общи части
ДВОР И ГРАДИНА
- Двор
- Поддържан двор
- Цветна градина
ДРУГИ
- Магазин за хранителни стоки в близост
Дом от пръв поглед! Представяме двустаен апартамент в новата фаза на популярен жилищен комплекс от затворен тип до Mall Plovdiv и парк Отдих и култура, в кв. "Христо Смирненски" на град Пловдив.
Жилищен комплекс с награда на най-престижния национален конкурс „Сграда на годината“.
Строителството стартира през януари 2024 г., Акт 14 се очаква март 2025 г., а Акт 16 през март 2026 г.
Отличното разположение осигурява оптимален простор и осветеност на жилищата, и оформяне на градина с максимална площ. Входовете и алеите са проектирани така, че да предоставят лесен достъп и връзка с околните пространства. Сградите се отличават с индивидуални архитектурни елементи и големи стъпаловидни тераси, в светли натурални тонове. Апартаментите са разположени на седем жилищни етажа.
БЕЗ КОМИСИОНА ОТ КУПУВАЧА!
Комплексът се състои от 2 сгради с по 7 жилищни етажа, 168 апартамента с 2.80 м светла височина, 18 паркоместа със зарядни станции, 202 паркоместа и гаражи, както и 6.0 м високи луксозни фоайета.
Разполага с прекрасна и обширна градина от 2600 кв.м, проектирана така, че освен да изпълнява декоративни функции, дава възможност за отглеждане на различни видове растения. Предвидените места за отдих създават невероятно усещане за живот сред природата. За най-малките обитатели са обособени кътове за игра и детска площадка.
Имотът с обща площ от 66.28 кв.м е разположен на 2-ри етаж от 7.
Апартаменти се предават в степен на завършеност по БДС.
В строителството са заложени висококачествени материали, които гарантират устойчивост във времето.
Характеристики:
Сградите в жилищния парк разполагат с различни типове комфортни апартаменти, позиционирани така, че да се осигури оптимален простор и функционалност на помещенията. Светлата им височина е 2.85 м. Обширните тераси са разположени в югоизточната част на сградите, с гледки към тепето Младежки хълм и към парка.
Стандартна схема на плащане:
За повече информация, моля свържете се с нас.
Жилищен комплекс с награда на най-престижния национален конкурс „Сграда на годината“.
Строителството стартира през януари 2024 г., Акт 14 се очаква март 2025 г., а Акт 16 през март 2026 г.
Отличното разположение осигурява оптимален простор и осветеност на жилищата, и оформяне на градина с максимална площ. Входовете и алеите са проектирани така, че да предоставят лесен достъп и връзка с околните пространства. Сградите се отличават с индивидуални архитектурни елементи и големи стъпаловидни тераси, в светли натурални тонове. Апартаментите са разположени на седем жилищни етажа.
БЕЗ КОМИСИОНА ОТ КУПУВАЧА!
Комплексът се състои от 2 сгради с по 7 жилищни етажа, 168 апартамента с 2.80 м светла височина, 18 паркоместа със зарядни станции, 202 паркоместа и гаражи, както и 6.0 м високи луксозни фоайета.
Разполага с прекрасна и обширна градина от 2600 кв.м, проектирана така, че освен да изпълнява декоративни функции, дава възможност за отглеждане на различни видове растения. Предвидените места за отдих създават невероятно усещане за живот сред природата. За най-малките обитатели са обособени кътове за игра и детска площадка.
Имотът с обща площ от 66.28 кв.м е разположен на 2-ри етаж от 7.
Апартаменти се предават в степен на завършеност по БДС.
В строителството са заложени висококачествени материали, които гарантират устойчивост във времето.
Характеристики:
- скелетна-безгредова конструктивната схема с плоски покриви, монолитно строителство;
- ефективни топлоизолационни материали,шумоизолация в пода;
- Алуминиева дограма;
- Отопление - ТЕЦ и допълнителна възможност за резервно захранване с индивидуални бойлери;
- Допълнително окабеляване за „умен дом“;
- Системи за пречистване на питейната вода и за превенция от наводнения;
- Вентилируема фасада от HPL (последните два етажа);
- Вентилационна разводка (за многостайните апартаменти).
Сградите в жилищния парк разполагат с различни типове комфортни апартаменти, позиционирани така, че да се осигури оптимален простор и функционалност на помещенията. Светлата им височина е 2.85 м. Обширните тераси са разположени в югоизточната част на сградите, с гледки към тепето Младежки хълм и към парка.
Стандартна схема на плащане:
- Депозит за резервация на апартамента - 3% от цената на имота;
- 30% - при подписване на предварителен договор;
- 20% - 8 месеца след подписване на предварителен договор;
- 30% - 8 месеца след втора вноска;
- 20% - след Акт 16.
За повече информация, моля свържете се с нас.
Виж текста на други езици (автоматичен превод)
Местоположение (приблизително)
На картата с червен маркер е указано приблизителното местоположение на имота/комплекса.
Имоти по тип, Пловдив
- Тристайни апартаменти в Пловдив
- Двустайни апартаменти в Пловдив
- Апартаменти (различни типове) в Пловдив
- Четиристайни апартаменти в Пловдив
- Къщи в Пловдив
- Едностайни апартаменти в Пловдив
- Магазини в Пловдив
- Земеделски земи в Пловдив
- Петстайни апартаменти в Пловдив
- Парцели за инвестиция в Пловдив
Популярни търсения
- Селски къщи в България
- Имоти за продажба в Пловдив
- Имоти в Пловдив
- Имоти под наем в Пловдив
- Тристайни апартаменти за продажба в Пловдив
- Двустайни апартаменти за продажба в Пловдив
- Къщи за продажба в Пловдив
- Имоти за продажба в кв.Център, Пловдив
- Едностайни апартаменти за продажба в Пловдив
- Имоти за продажба в кв.Христо Смирненски, Пловдив

