Клас на сградата/комплекса
Стандартен
Етажност на сградата
10
Етаж
8
Асансьор
да
Стаи
3
Спални
2
Бани
2
Балкони (тераси) бр.:
2

Обща площ
119.71 м²
Застроена площ
101.90 м²
Общи части
17.81 м²
Състояние
В процес на строителство
Планирано завършване
Декември 2025

Запитване за повече информация или оглед
Инфо пакет
Състояние
БДС (на шпакловка и замазка)
Обзавеждане
Отопление
Парно на газ
Прозорци
PVC дограма
Разстояния
Последна актуализация
06.11.2025 г.
Разстояния от имота до други важни обекти
- Център на града: 8 км
- Sofia (SOF): 20 км
Отопление
- Парно на газ
Административна информация за офертата
ГАЗИФИКАЦИЯ, ЕЛЕКТРИЧЕСТВО
- Газификация
- Електричество
ВОДОСНАБДЯВАНЕ
- Водоснабдяване
КАНАЛИЗАЦИЯ
- Канализация
ФАСАДА
- външна изолация
САНИТАРНИ И СПОМАГАТЕЛНИ ПОМЕЩЕНИЯ
- Балкон
- Баня с тоалетна
- Килер
ИЗОЛАЦИИ И ДОВЪРШИТЕЛНИ РАБОТИ
- PVC дограма
- На шпакловка и замазка
ДРУГИ
- Магазин за хранителни стоки в близост
Представяме тристаен апартамент за продажба, в новострояща се сграда в кв. "Овча купел 2".
Има Акт 14! Очаквано завършване - юни 2025 г.
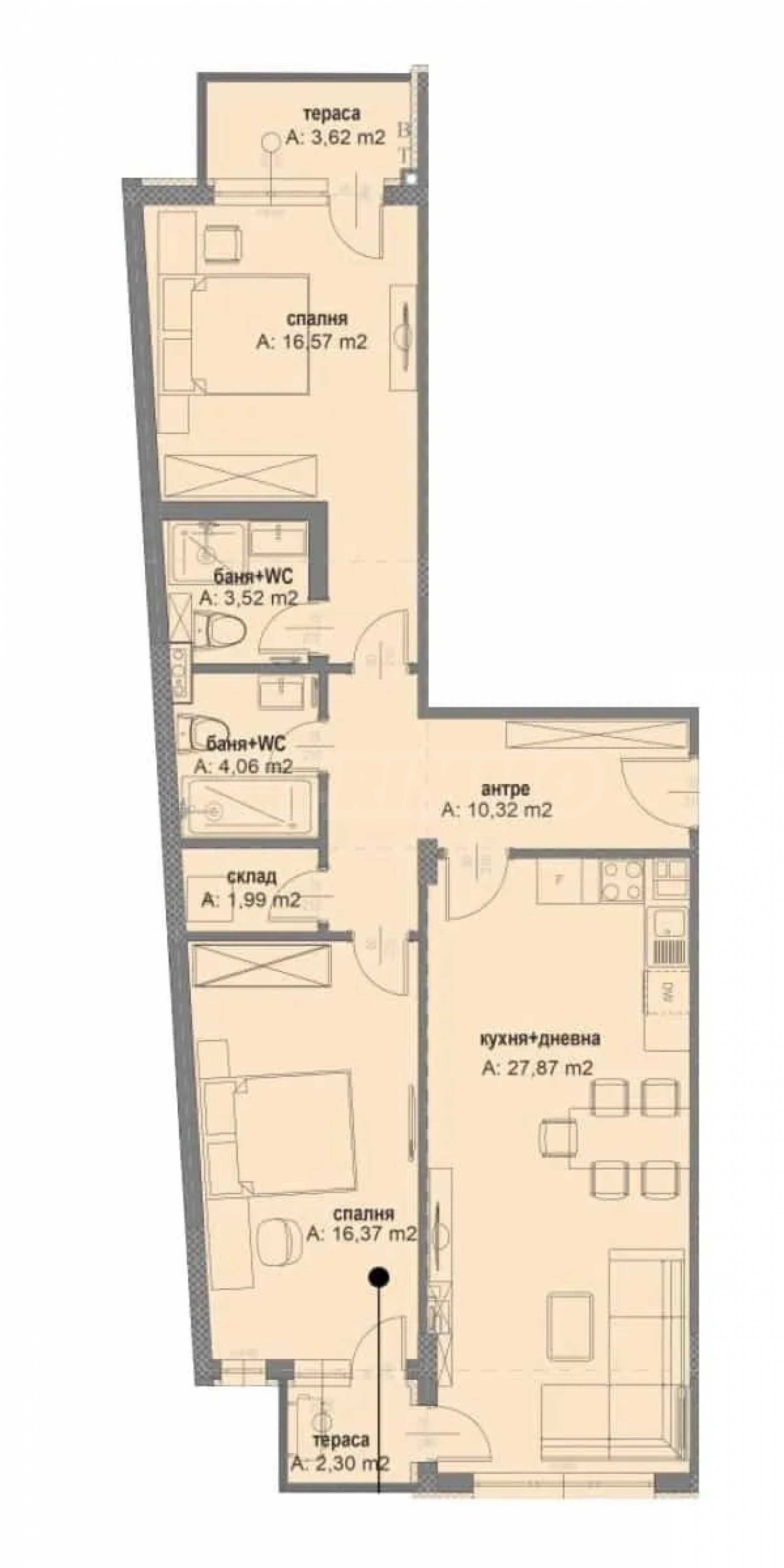
Имотът е разположен на 8-и от общо 10 етажа и има 119.71 кв.м обща площ.
Предлага се в степен на завършеност по БДС.
Разпределение:
Районът е с бърз и лесен достъп до центъра и всички точки на града посредством главни пътни булеварди. На пешеходно разстояние са ситуирани спирки на градски транспорт, метростанция "Горна баня", супермаркети, медицински заведения, училища, детски градини и Нов български университет.
Проектът се състои от две сгради - А и Б:
Технически характеристики:
Има Акт 14! Очаквано завършване - юни 2025 г.
Имотът е разположен на 8-и от общо 10 етажа и има 119.71 кв.м обща площ.
Предлага се в степен на завършеност по БДС.
Разпределение:
- антре, склад, две бани с тоалетни;
- всекидневна с кухненска част;
- спалня;
- тераса с излаз от двете стаи;
- втора спалня със самостоятелна тераса.
Районът е с бърз и лесен достъп до центъра и всички точки на града посредством главни пътни булеварди. На пешеходно разстояние са ситуирани спирки на градски транспорт, метростанция "Горна баня", супермаркети, медицински заведения, училища, детски градини и Нов български университет.
Проектът се състои от две сгради - А и Б:
- Сграда А е жилищна, разпределена на 10 етажа с общо 44 апартамента с функционални и просторни помещения. На ниво партер разполага с 2 магазина.
- Сграда Б е проектирана на 5 нива, с 9 офиса с площ под 100 кв.м и един офис-мезонет с площ над 100 кв.м.
Технически характеристики:
- стоманобетонна конструкция от смесен тип - безгредова и гредова;
- плоски покриви с хидро- и топлоизолация;
- ограждащи стени с 25 см тухли и преградни стени с 12 см тухли;
- отопление на газ;
- 5-камерна PVC дограма с прекъснат термостат и стъклопакети от нискоемисионно стъкло.
Виж текста на други езици (автоматичен превод)
Местоположение (приблизително)
На картата с червен маркер е указано приблизителното местоположение на имота/комплекса.
Популярни търсения
- Селски къщи в България
- Имоти за продажба в София
- Имоти в София
- Имоти под наем в София
- Тристайни апартаменти за продажба в София
- Къщи за продажба в София
- Двустайни апартаменти за продажба в София
- Апартаменти (различни типове) за продажба в София
- Едностайни апартаменти за продажба в София
- Двустайни апартаменти в София

