REF#AP 119517 / Къща / кв. м-т Камбаните / гр. София / Софийска област / България / Продажба На картата
Етажност на сградата
2
Стаи
4
Спални
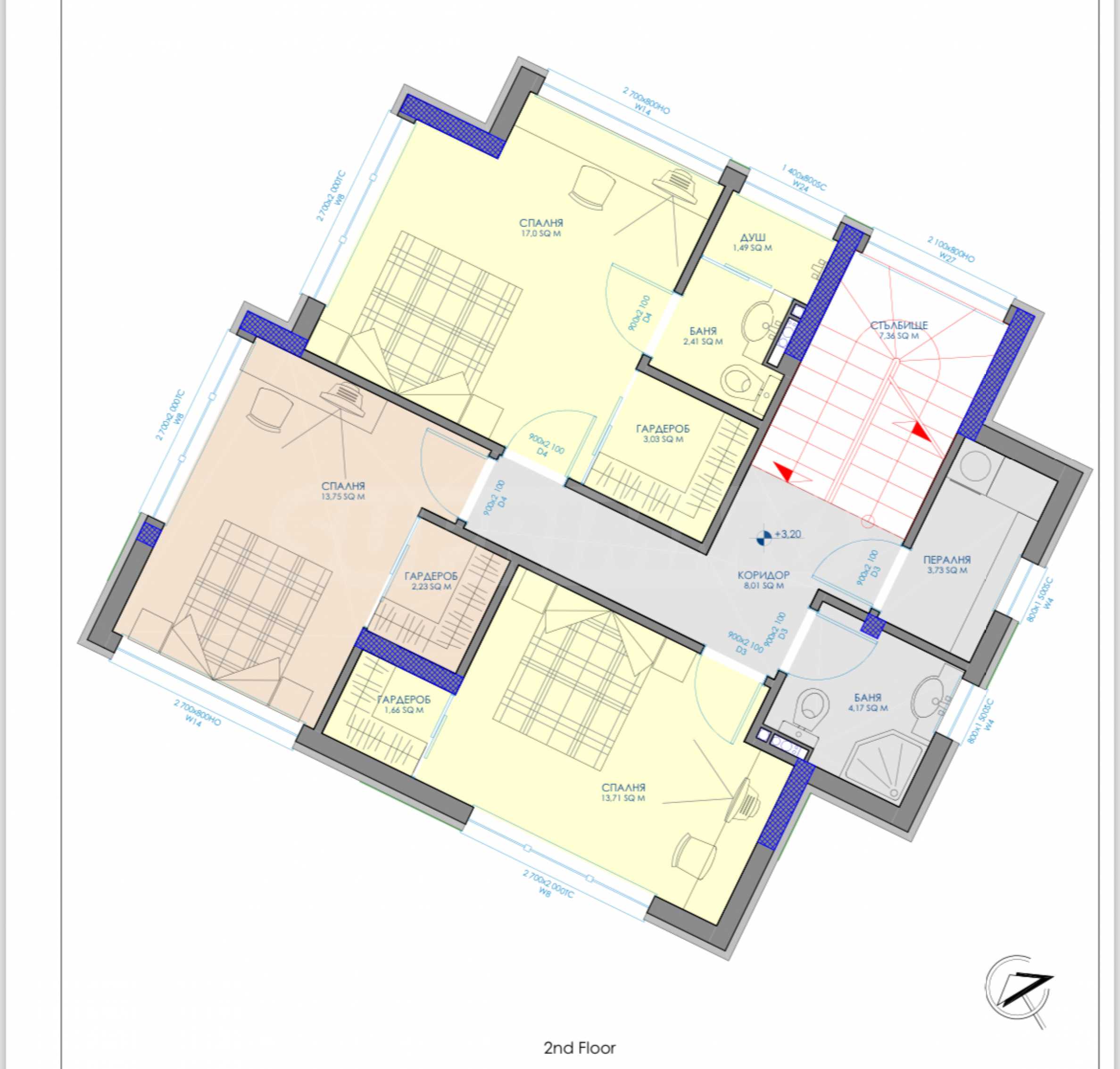
3
Бани
2
Паркоместа на открито
2
Тоалетни
3

Площ на сградата
260 м²
Площ на парцела
296 м²
Запитване за повече информация или оглед
Инфо пакет
Състояние
БДС (на шпакловка и замазка)
Обзавеждане
Необзаведен
Отопление
Парно на газ / Подово отопление / Термопомпа
Разстояния
Последна актуализация
10.11.2025 г.
Разстояния от имота до други важни обекти
- Морето: 370 км
- Планински лифт: 2 км
- Център на града: 9 км
- Sofia (SOF): 8 км
Гледки от имота
- Гледка към града
- Гледка към планината
Отопление
- Парно на газ
- Подово отопление
- Термопомпа
Административна информация за офертата
ГАЗИФИКАЦИЯ, ЕЛЕКТРИЧЕСТВО
- Газификация
- Електричество
ВОДОСНАБДЯВАНЕ
- Водоснабдяване
КАНАЛИЗАЦИЯ
- Локална пречиствателна станция
ИЗОЛАЦИИ И ДОВЪРШИТЕЛНИ РАБОТИ
- На шпакловка и замазка
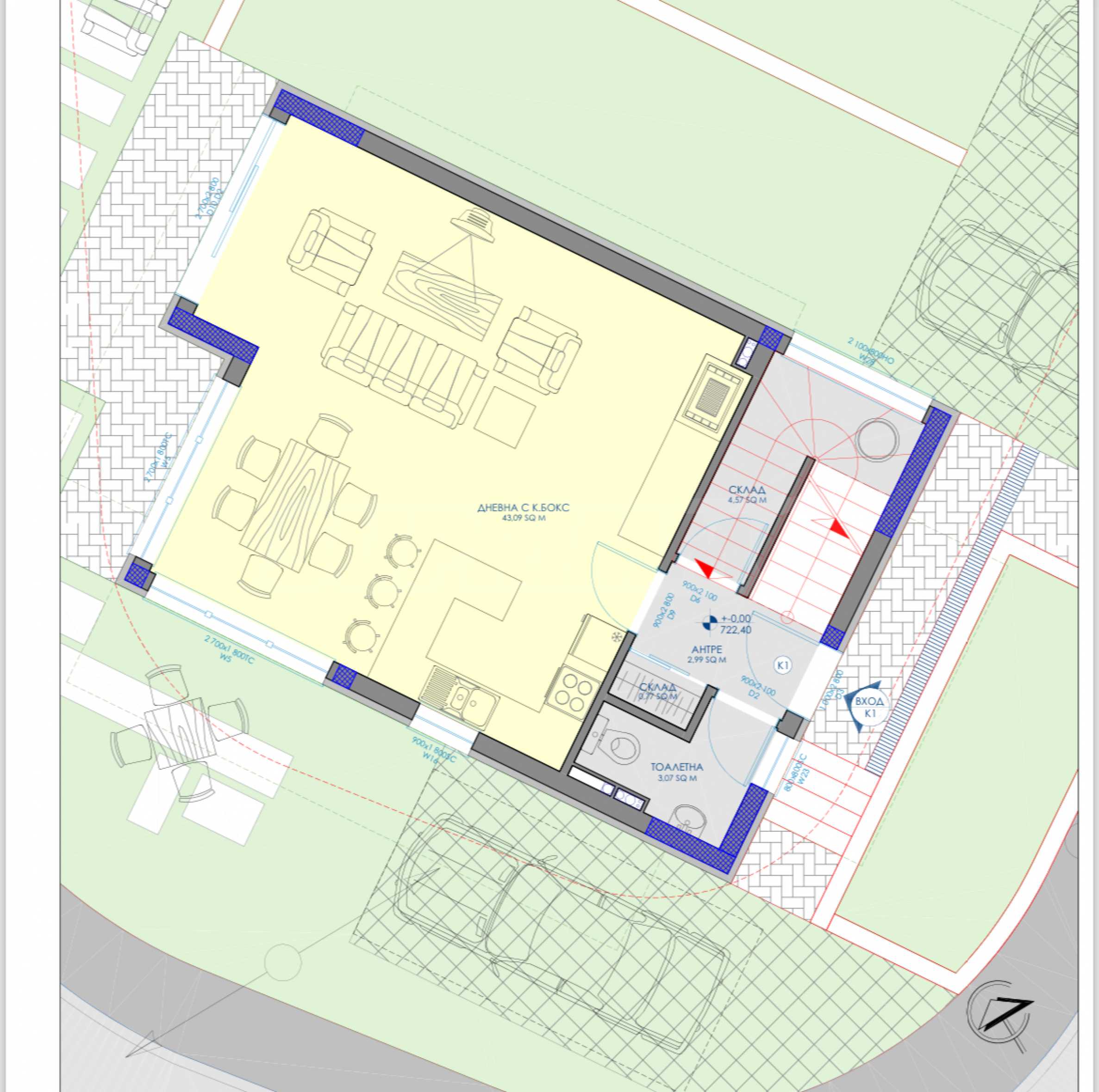
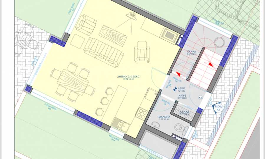
Представяме за продажба четири самостоятелни къщи с модерна визия, в затворен комплекс в местност Камбаните.
Получен Акт 15! Акт 16 - до 12.2025 г.
Обявената цена е за една къща със собствен двор, с вкл. ДДС.
Имотите са изключително светли, просторни и функционални. Районът е бързо развиващ се и много желан и атрактивен, благодарение на непосредствена близост с планината и чистия въздух.
Всяка една къща е самостоятелна, със собствен озеленен двор и две външни паркоместа. Предвидени са висококачествени строителни материални.
За удобство на живущите ще бъде изградена подготовка на система за отопление, която е приспособима както за термопомпа, така и за газово котле. Всяка къща ще бъде със самостоятелна химическа пречиствателна станция.
Параметри:
Получен Акт 15! Акт 16 - до 12.2025 г.
Обявената цена е за една къща със собствен двор, с вкл. ДДС.
Имотите са изключително светли, просторни и функционални. Районът е бързо развиващ се и много желан и атрактивен, благодарение на непосредствена близост с планината и чистия въздух.
Всяка една къща е самостоятелна, със собствен озеленен двор и две външни паркоместа. Предвидени са висококачествени строителни материални.
За удобство на живущите ще бъде изградена подготовка на система за отопление, която е приспособима както за термопомпа, така и за газово котле. Всяка къща ще бъде със самостоятелна химическа пречиствателна станция.
Параметри:
- Къща 1: РЗП 183,15 кв.м и прилежащ двор: 257,83 кв.м.
- Къща 2: Продадена!
- Къща 3: РЗП 177,89 кв.м и прилежащ двор: 220,04 кв.м.
- Къща 4: Продадена!
Очакваме Вашето запитване
Ако желаете да организирате оглед на имот, който Ви интересува, или да посетите някой от нашите офиси, моля свържете се с нас. За да уговорите ден и час за среща или оглед, можете да се обадите на посочения в обявата телефон или да изпратите запитване чрез електронната поща. Нашият консултант ще Ви съдейства с всички необходими подробности и ще уговори удобно за Вас време.
Търсите подходящия за Вас имот?
Не се колебайте да се свържете с нас и да ни разкажете за Вашите нужди и предпочитания. Нашият екип ще проведе задълбочено проучване на пазара, за да Ви предложи имоти, които точно отговарят на Вашите критерии. Разполагаме с изключително портфолио от висококачествени и ексклузивни жилища, които са достъпни само за нашите клиенти. За да сте първите, които ще получите информация за тях – свържете се с нас.
Допълнителни услуги
Като ценен клиент на нашата компания, Вие ще имате привилегията да ползвате напълно безплатно услугите на нашия опитен юридически екип. В допълнение, предлагаме комплексни решения, включващи имуществена застраховка, безплатна финансова консултация, както и изгодни условия за финансиране. Нашите услуги се разпростират и в сферата на препродажбата, отдаването под наем и управлението на имоти. Осигуряваме висококачествени ремонтни дейности и обзавеждане чрез специализирани фирми, които са част от нашата корпоративна група и са наши дългогодишни професионални партньори.
Виж текста на други езици (автоматичен превод)
Местоположение (приблизително)
На картата с червен маркер е указано приблизителното местоположение на имота/комплекса.
Нашите топ оферти за продажба в София, България
Популярни търсения
- Селски къщи в България
- Имоти за продажба в София
- Имоти в София
- Имоти под наем в София
- Тристайни апартаменти за продажба в София
- Къщи за продажба в София
- Двустайни апартаменти за продажба в София
- Апартаменти (различни типове) за продажба в София
- Едностайни апартаменти за продажба в София
- Двустайни апартаменти в София


