Светъл тристаен апартамент в новострояща се сграда в кв. "Виница", Варна
Неактуална оферта
Неактуална оферта
Неактуална оферта
Неактуална оферта
Неактуална оферта
Неактуална оферта
REF#VAR-117935 / Тристаен апартамент / кв. Виница / гр. Варна / Варненска област / България / Продажба На картата
Етажност на сградата
4
Етаж
1
Асансьор
да
Стаи
3
Спални
2
Бани
1
Мазе/склад
не

Обща площ
101.17 м²
Застроена площ
76.83 м²
Общи части
24.34 м²

Запитване за повече информация или оглед
Инфо пакет
Обзавеждане
Разстояния
Последна актуализация
03.10.2025 г.
Разстояния от имота до други важни обекти
- Морето: 3 км
- Varna (VAR): 17 км
Административна информация за офертата
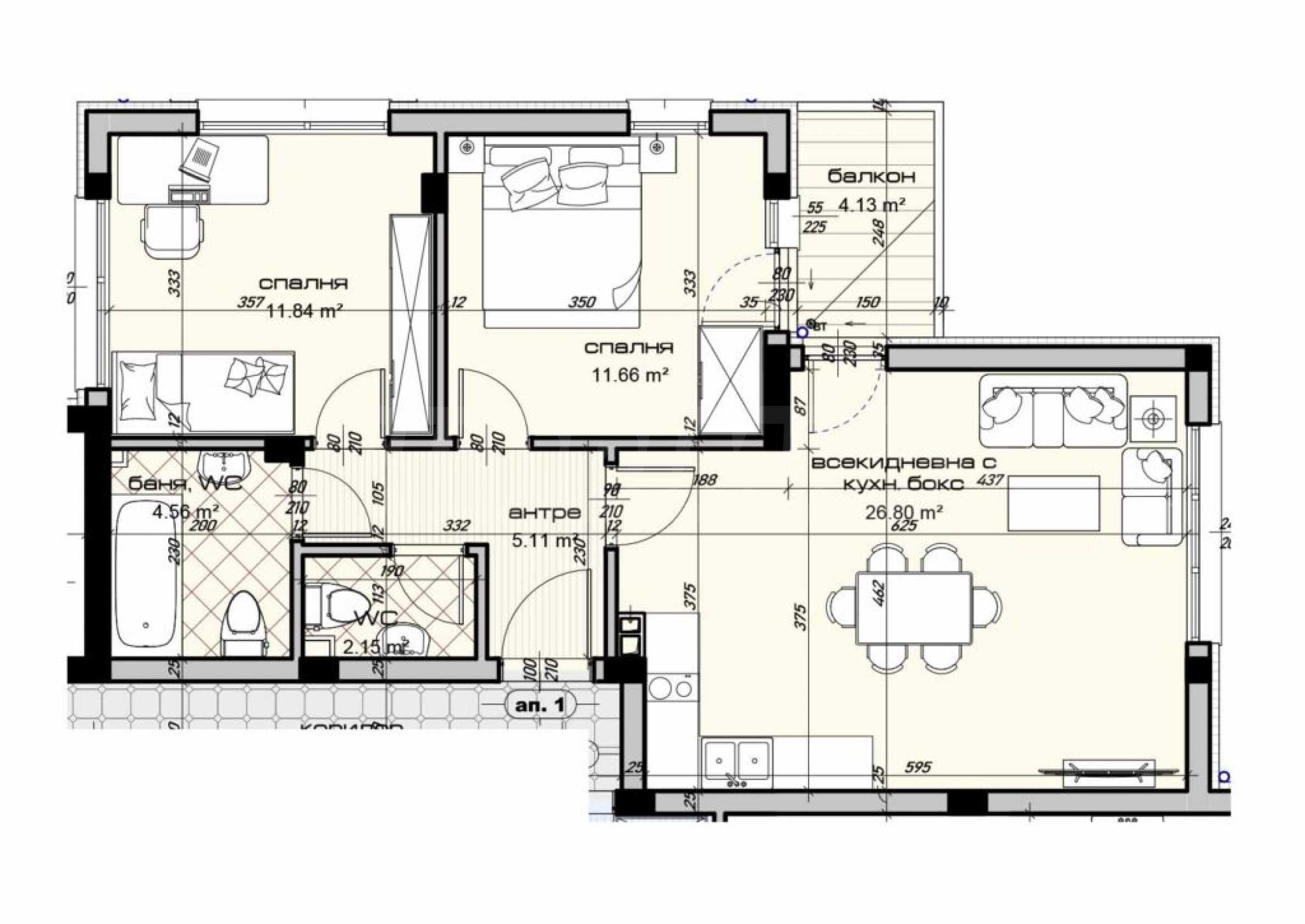
Представяме за продажба светъл тристаен апартамент в новострояща се сграда в кв. "Виница", Варна.
Имотът е с обща площ от 86,58 кв.м, разположен на 3-ти етаж и има следното разпределение:
На 3 км от курорта Свети Св. Константин и Елена, застрояването в района е предимно с къщи и нови кооперации, а имотите тук са с голямо търсене за отдаване под наем.
Сградата е разположена на тихо и спокойно място. Кварталът е с отлично изградена инфраструктура: супермаркети, магазини, ресторанти, училище, детска градина, паркове и детски площадки, 2 медицински центъра, ветеринарна лечебница, аптеки, бензиностанции, кметство, клон на банка, конна база, множество хотели.
Сградата е предвидена с общо 23 броя апартаменти, разположени на 4 етажа:
Има възможност за закупуване на открито паркомясто на цена от 8000 евро.
Степен на завършеност:
Планирано завършване през 2025 г.
За повече информация и огледи, моля свържете се с нас!
Имотът е с обща площ от 86,58 кв.м, разположен на 3-ти етаж и има следното разпределение:
- коридор;
- всекидневна с кухненски бокс;
- две спални;
- тераса;
- баня с тоалет.
На 3 км от курорта Свети Св. Константин и Елена, застрояването в района е предимно с къщи и нови кооперации, а имотите тук са с голямо търсене за отдаване под наем.
Сградата е разположена на тихо и спокойно място. Кварталът е с отлично изградена инфраструктура: супермаркети, магазини, ресторанти, училище, детска градина, паркове и детски площадки, 2 медицински центъра, ветеринарна лечебница, аптеки, бензиностанции, кметство, клон на банка, конна база, множество хотели.
Сградата е предвидена с общо 23 броя апартаменти, разположени на 4 етажа:
- етаж 1, 2 и 3 са с типови жилища - 4 броя двустайни и 3 броя тристайни;
- етаж 4 са 2 броя тристайни апартамента;
- ниво сутерен са 7 броя гаражи и 21 броя открити паркоместа.
Има възможност за закупуване на открито паркомясто на цена от 8000 евро.
Степен на завършеност:
- общи части с гранитогрес;
- коридор, кухня и стаи с циментова замазка на пода;
- стени – бяла гипсова мазилка, таван – гипсова шпакловка;
- санитарен възел на мазилка, без санитарно обзавеждане;
- вътрешна и външна ел.инсталация и поставен електромер;
- вътрешна ВиК инсталация – на тапа;
- дограма с профили Rehau, Euro Design, 70 мм, 5 камери, стъклопакет – 24 мм 4 мм Бяло + 4 мм Енерджи;
- блиндирана външна врата;
- монтирани изводи за климатици във всички стаи.
Планирано завършване през 2025 г.
За повече информация и огледи, моля свържете се с нас!
Виж текста на други езици (автоматичен превод)
Местоположение (абсолютно точно)
Това е абсолютно точното местоположение на имота/комплекса. Можете да увеличите или намалите мащаба на картата, както и да се движите по нея, използвайки мишката или контролите, разположени върху самата карта.

