Етажност на сградата
6
Етаж
5
Асансьор
да
Стаи
2
Спални
1
Бани
1
Площ на балконите (терасите)
3.96 м²
Балкони (тераси) бр.:
1
Мазе/склад
да
Мазе (площ)
2.71 м²

Обща площ
71.39 м²
Застроена площ
62.12 м²
Общи части
9.27 м²
Тераса
3.96 м²
Състояние
В процес на строителство
Планирано завършване
Декември 2026

Цена
96 380 €
188 503 лв.
188 503 лв.
1 350 €/м²
2 640 лв./м²
2 640 лв./м²
Без комисиона от купувача
Запитване за повече информация или оглед
Инфо пакет
Състояние
БДС (на шпакловка и замазка)
Обзавеждане
Отопление
Климатици
Климатик
Климатици инверторни, Климатици стандартни
Разстояния
Последна актуализация
15.10.2025 г.
Брой запитвания
2 бр. (за последните 30 дни)
Разстояния от имота до други важни обекти
- Център на града: 2.2 км
- : 15.8 км
- Магазин за хранителни стоки: 400 м
- Спирка: 100 м
- Болница: 200 м
- Училище: 300 м
Гледки от имота
- Гледка към вътрешен двор
- Гледка към града
Строителство
- Стоманобетонна конструкция
- Тухла
Отопление
- Климатици
Климатизация
- Климатици инверторни
- Климатици стандартни
Административна информация за офертата
ГАЗИФИКАЦИЯ, ЕЛЕКТРИЧЕСТВО
- Електричество
ВОДОСНАБДЯВАНЕ
- Вода
- Водоснабдяване
АСАНСЬОРИ
- автоматични врати
- луксозни асансьори
КАНАЛИЗАЦИЯ
- Канализация
- Канализация
ФАСАДА
- външна изолация
- естествен камък
- еталбонд (алуминиеви панели)
ВИД НА ОБЩИТЕ ЧАСТИ
- естествен камък
- мрамор
- стени/боядисани с латекс
ПОКРИВ
- плосък покрив
- покривна изолация
САНИТАРНИ И СПОМАГАТЕЛНИ ПОМЕЩЕНИЯ
- Балкон
- Баня с тоалетна
- Килер
ИЗОЛАЦИИ И ДОВЪРШИТЕЛНИ РАБОТИ
- Алуминиева дограма
- Блиндирана входна врата
- Външна изолация
- Масивни стени
- На шпакловка и замазка
ЕКСТРИ В СГРАДАТА
- Асансьор
- Луксозни общи части
ДВОР И ГРАДИНА
- Цветна градина
ДОСТЪП ДО ИМОТА И ТЕЛЕКОМУНИКАЦИИ
- Wi-Fi интернет
- Асфалтиран път
- Интернет
ДРУГИ
- В жилищна сграда
- Магазин за хранителни стоки в близост
Представяме нов, двустаен апартамент в модерeн комплекс, в кв. "Кършияка" на град Пловдив. Удобна локация в непосредствена близост до главен булевард, Околовръстен път, автобусни спирки, хранителни магазини, училища, университет и болница. Зоната разполага със спортен комплекс в близост и велоалеи.
БЕЗ КОМИСИОНА!
Комплексът е в процес на строеж, а Акт 16 се очаква до края на 2026 г.
Състои се две секции, всяка от които с 6 етажа и предлага едностайни, двустайни и тристайни жилища, а на партерно ниво има кафене, ресторант и офис пространство. Разполага и с паркинг и зелени площи, като е предвидено озеленяване под формата на тревиста растителност с разнообразни растителни видове.
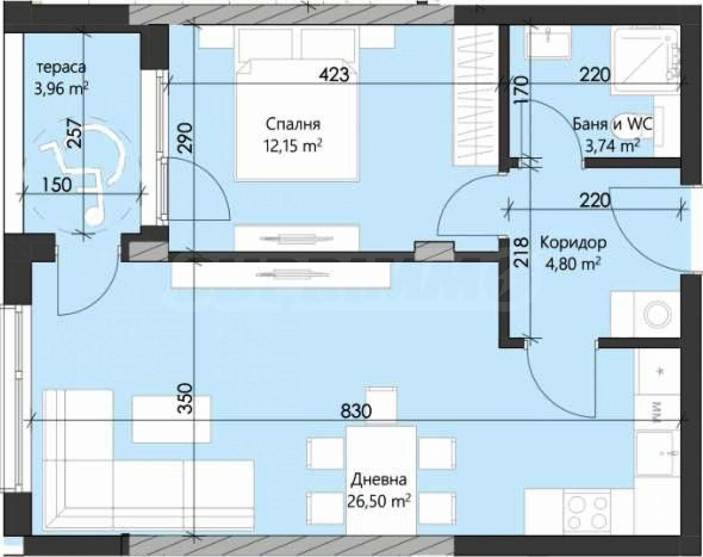
Имотът с обща площ 71.39 кв.м е разположен на 5-ти етаж от 6, с изложение запад-юг.
Състои се от:
Жилището се предава в степен на завършеност по БДС:
За израждането на комплекса се използват само висококачествени материали и технологии, отговарящи на изискванията и предпочитанията на модерното жилищно строителство.
Технически характеристики:
Паркирането е 100% осигурено.
Предлагат се индивидуални схеми на плащане.
За оглед и консултация, моля свържете се с отговорния брокер по офертата.
БЕЗ КОМИСИОНА!
Комплексът е в процес на строеж, а Акт 16 се очаква до края на 2026 г.
Състои се две секции, всяка от които с 6 етажа и предлага едностайни, двустайни и тристайни жилища, а на партерно ниво има кафене, ресторант и офис пространство. Разполага и с паркинг и зелени площи, като е предвидено озеленяване под формата на тревиста растителност с разнообразни растителни видове.
Имотът с обща площ 71.39 кв.м е разположен на 5-ти етаж от 6, с изложение запад-юг.
Състои се от:
- всекидневна с трапезария и кухненски бокс - 26.50 кв.м;
- спалня - 12.15 кв.м;
- антре - 4.80 кв.м;
- баня с тоалетна - 3.74 кв.м;
- тераса- 3.96 кв.м;
- изба - 2.71 кв.м.
Жилището се предава в степен на завършеност по БДС:
- блиндирана входна врата;
- стени и тавани - гипсова мазилка;
- под - циментова замазка;
- ел. инсталация до ключ и контакт;
- ВиК - тръбни разводки на тапа;
- PVC дограма, стъклопакет с четирисезонно стъкло;
- напълно завършени тераси;
- асансьор;
- луксозни общи части;
- контролиран достъп.
За израждането на комплекса се използват само висококачествени материали и технологии, отговарящи на изискванията и предпочитанията на модерното жилищно строителство.
Технически характеристики:
- вентилируема фасада от панели - дърво, облицовка от каменни плочи;
- топлоизолационна система на "Baumit" с 10 см минерална вата;
- бяла екстериорна мазилка - "Baumit";
- тъмносива екстериорна мазилка - "Baumit";
- висококачествени тухли “Porotherm” на фирма Wienerberger;
- вътрешни гипсови мазилки - “ROFIX”;
- стълбищата и общите части - гранитни плочи и стъпала от цели гранитни плоскости;
- за стълбищните и балконни парапети сме използвали профили от неръждаема стомана и стъкла триплекс, ковано желязо;
- стени и тавани - гипсова мазилка;
- PVC дограма с термоемисионен двоен стъклопакет;
- под в санитарни помещения - циментрова замазка;
- стени в санитарни помещения - вароциментова мазилка;
- асансьори - високотехнологични, нови и тихи електрически асансьори с автоматични врати.
Паркирането е 100% осигурено.
Предлагат се индивидуални схеми на плащане.
За оглед и консултация, моля свържете се с отговорния брокер по офертата.
Виж текста на други езици (автоматичен превод)
Местоположение (приблизително)
На картата с червен маркер е указано приблизителното местоположение на имота/комплекса.
Видео
Нашите топ оферти за продажба в Пловдив, България
Имоти по тип, Пловдив
- Тристайни апартаменти в Пловдив
- Двустайни апартаменти в Пловдив
- Апартаменти (различни типове) в Пловдив
- Четиристайни апартаменти в Пловдив
- Къщи в Пловдив
- Едностайни апартаменти в Пловдив
- Магазини в Пловдив
- Търговски имоти в Пловдив
- Земеделски земи в Пловдив
- Петстайни апартаменти в Пловдив
Популярни търсения
- Селски къщи в България
- Имоти за продажба в Пловдив
- Имоти в Пловдив
- Имоти под наем в Пловдив
- Тристайни апартаменти за продажба в Пловдив
- Двустайни апартаменти за продажба в Пловдив
- Къщи за продажба в Пловдив
- Имоти за продажба в кв.Център, Пловдив
- Едностайни апартаменти за продажба в Пловдив
- Имоти за продажба в кв.Христо Смирненски, Пловдив

