Четири терена с разрешение за строеж в с. Гурмазово
Неактуална оферта
Неактуална оферта
Неактуална оферта
Неактуална оферта
Неактуална оферта
Неактуална оферта
REF#Kbs 115890 / Парцел в регулация / с. Гурмазово / Софийска област / България / Продажба На картата

Обща площ
1930 м²

Запитване за повече информация или оглед
Инфо пакет
Обзавеждане
Необзаведен
Разстояния
Последна актуализация
23.05.2025 г.
Разстояния от имота до други важни обекти
Гледки от имота
- Гледка към града
- Гледка към планината
- Гледка към поляни
- Гледка към хълмове
Административна информация за офертата
ГАЗИФИКАЦИЯ, ЕЛЕКТРИЧЕСТВО
- Електричество
ВОДОСНАБДЯВАНЕ
- Кладенец
- Собствен водоизточник
- Сондаж
Предлагаме на Вашето внимание четири терена с разрешение за строеж в един от най-бързо развиващите се райони до София. Локацията на терена е подходяща за целогодишно живеене, в близост до пътен възел за АМ Струма, ЦГЧ на Перник.
Имотите са със следните идентификатори:
18174.18.313
18174.18.314
18174.18.315
18174.18.316
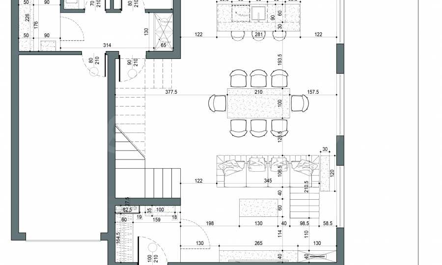
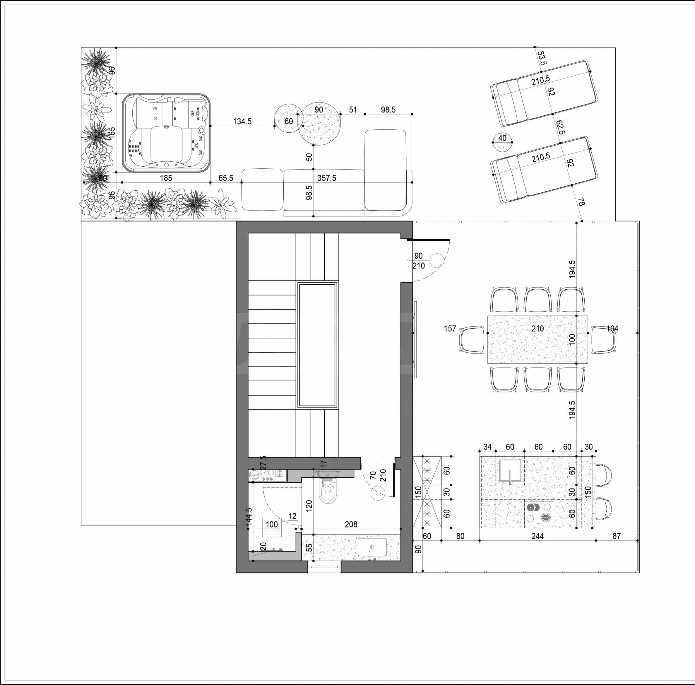
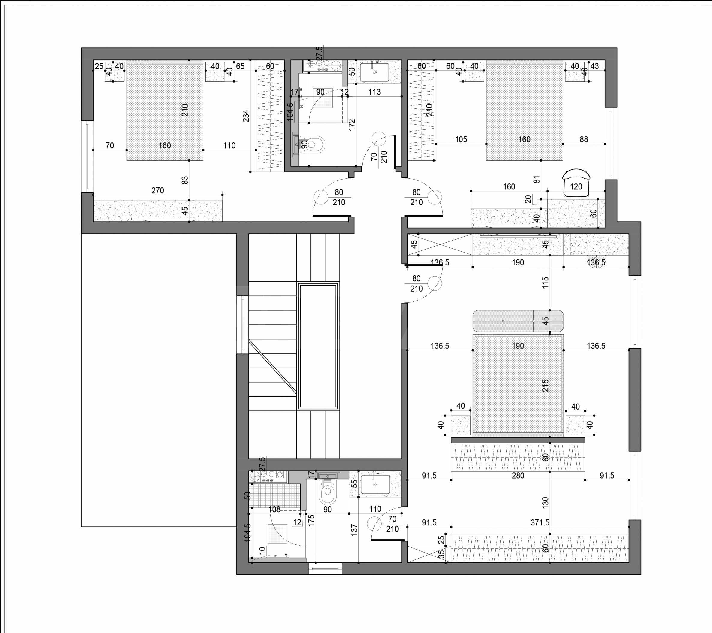
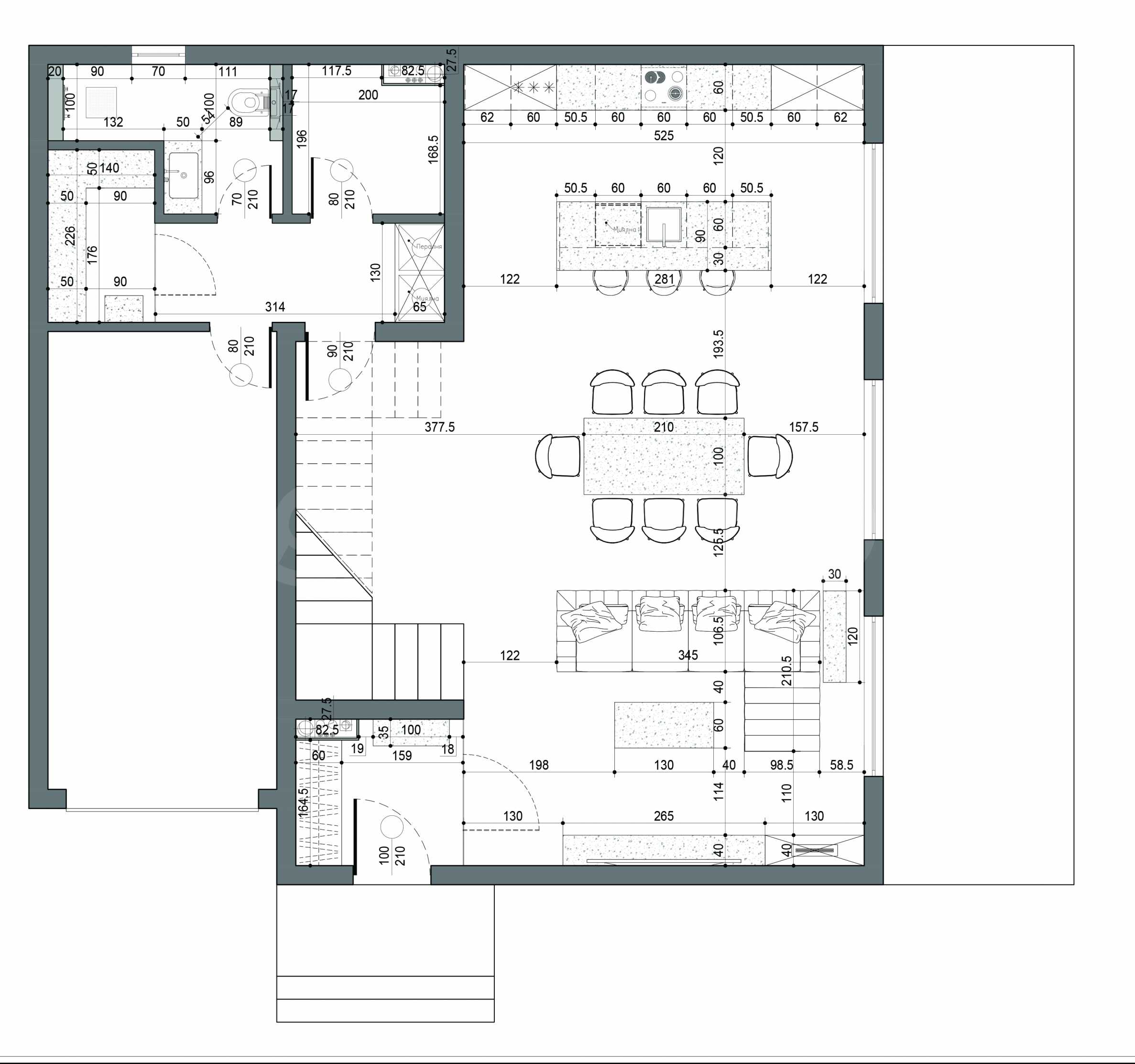
Изключително подходяща инвестиция за изграждането на малък комплекс или сгради за обществено обслужване. Разрешенията за строеж са от 07.2022 за двуетажна жилищна сграда къща с РЗП 328 м2.
Разпределението е както следва:
Първи етаж:
входно антре,
дневна с кухненска част,
тоалетна,
складово ппомещение.
Втори етаж:
две спални,
родителска стая с собствена баня,
баня.
Трети етаж:
лятна кухня.
Покупката на четирите имота заедно не е задължителна.
Имотите са със следните идентификатори:
Изключително подходяща инвестиция за изграждането на малък комплекс или сгради за обществено обслужване. Разрешенията за строеж са от 07.2022 за двуетажна жилищна сграда къща с РЗП 328 м2.
Разпределението е както следва:
Първи етаж:
Втори етаж:
Трети етаж:
Покупката на четирите имота заедно не е задължителна.
Виж текста на други езици (автоматичен превод)
Местоположение (абсолютно точно)
Това е абсолютно точното местоположение на имота/комплекса. Можете да увеличите или намалите мащаба на картата, както и да се движите по нея, използвайки мишката или контролите, разположени върху самата карта.

