Етажност на сградата
7
Етаж
2
Асансьор
да
Стаи
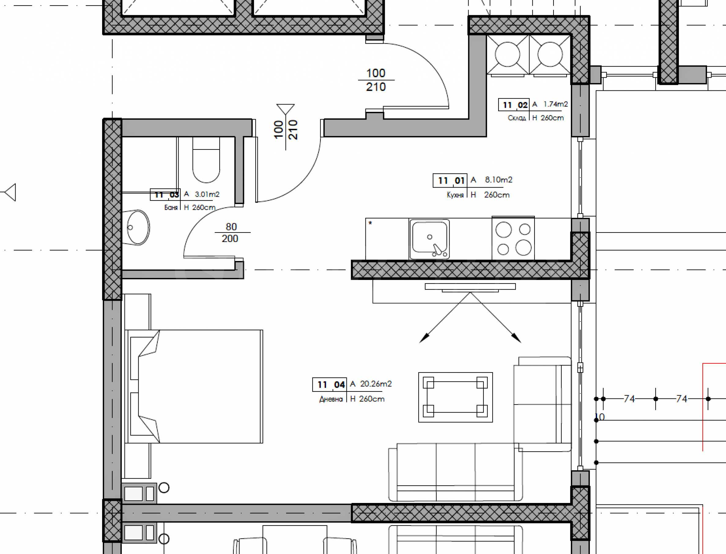
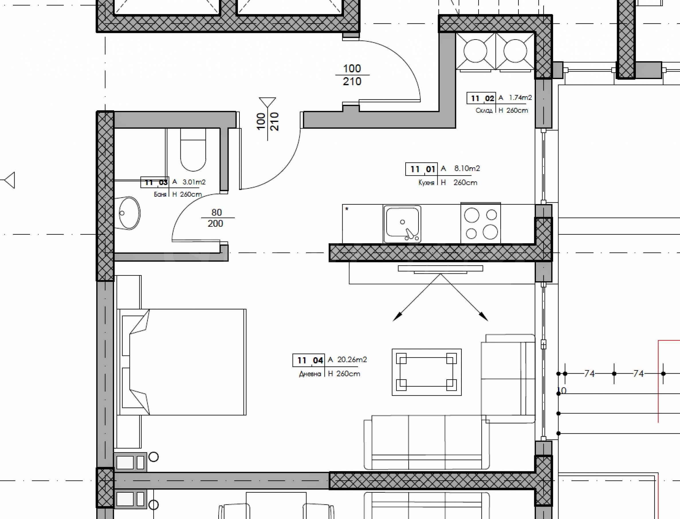
1
Бани
1
Балкони (тераси) бр.:
1

Обща площ
45 м²
Застроена площ
39 м²
Общи части
6 м²
Състояние
В процес на строителство
Планирано завършване
Август 2027

Запитване за повече информация или оглед
Инфо пакет
Разстояния
Последна актуализация
16.03.2026 г.
Разстояния от имота до други важни обекти
- Център на града: 2.2 км
- Plovdiv (PDV): 15.8 км
Гледки от имота
- Гледка към града
Строителство
- Стоманобетонна конструкция
- Тухла
Административна информация за офертата
ГАЗИФИКАЦИЯ, ЕЛЕКТРИЧЕСТВО
- Електричество
ВОДОСНАБДЯВАНЕ
- Вода
КАНАЛИЗАЦИЯ
- Канализация
САНИТАРНИ И СПОМАГАТЕЛНИ ПОМЕЩЕНИЯ
- Балкон
- Баня с тоалетна
ИЗОЛАЦИИ И ДОВЪРШИТЕЛНИ РАБОТИ
- PVC дограма
- На шпакловка и замазка
ЕКСТРИ В СГРАДАТА
- Асансьор
ДРУГИ
- Магазин за хранителни стоки в близост
Предварителни продажби!
Представяме студио в нов комплекс, в кв. "Кършияка" на град Пловдив. Отлична локация в близост до река Марица, Гребния канал, УМБАЛ Пловдив - Университетска Многопрофилна болница, Пловдивския университет, езиковите гимназии, магазин Алати и комплекс Марица Гардънс.
БЕЗ КОМИСИОНА!
Имотът с обща площ от 44.71 кв.м е разположен на 2-ри етаж от 7.
Строителството стартира в началото на 2024 г., а Акт 16 е предвиден до 24 месеца. Проектите са два:
Първият проект се състои от 2 сгради и четири жилищни секции - нискоетажно застрояване с кота корниз 10 м. Жилищните секции са типизирани - огледални и повтаряеми. Предлага двустайни, тристайни, четиристайни апартаменти, гаражни клетки и паркоместа, реализирани изцяло в подземен гараж, паркова среда с два детски къта - 5500 кв.м, фитнес на открито и водно огледало.
Вторият проект се състои от 2 сгради и четири жилищни секции - средноетажно застрояване с кота корниз 15 м с Г- образна форма. Предлага студио, двустайни, тристайни и четиристайни апартаменти, гаражни клетки и паркоместа, реализирани в подземен гараж и наземни паркоместа, паркова среда с детски кът и фитнес на открито - 3000 кв.м.
Жилищата се предават в степен на завършеност по БДС:
Допълнителни удобства, които предвиждат проектите:
Стандартна схема на плащане:
За повече информация, моля свържете се с отговорния брокер по офертата.
Представяме студио в нов комплекс, в кв. "Кършияка" на град Пловдив. Отлична локация в близост до река Марица, Гребния канал, УМБАЛ Пловдив - Университетска Многопрофилна болница, Пловдивския университет, езиковите гимназии, магазин Алати и комплекс Марица Гардънс.
БЕЗ КОМИСИОНА!
Имотът с обща площ от 44.71 кв.м е разположен на 2-ри етаж от 7.
Строителството стартира в началото на 2024 г., а Акт 16 е предвиден до 24 месеца. Проектите са два:
Първият проект се състои от 2 сгради и четири жилищни секции - нискоетажно застрояване с кота корниз 10 м. Жилищните секции са типизирани - огледални и повтаряеми. Предлага двустайни, тристайни, четиристайни апартаменти, гаражни клетки и паркоместа, реализирани изцяло в подземен гараж, паркова среда с два детски къта - 5500 кв.м, фитнес на открито и водно огледало.
Вторият проект се състои от 2 сгради и четири жилищни секции - средноетажно застрояване с кота корниз 15 м с Г- образна форма. Предлага студио, двустайни, тристайни и четиристайни апартаменти, гаражни клетки и паркоместа, реализирани в подземен гараж и наземни паркоместа, паркова среда с детски кът и фитнес на открито - 3000 кв.м.
Жилищата се предават в степен на завършеност по БДС:
- висококачествена седемкамерна дограма с троен стъклопакет;
- подготовка за smart home решения в жилищата;
- подготовка за подово отопление с възможност за термопомпена инсталация;
- шумоизилация по подовете.
Допълнителни удобства, които предвиждат проектите:
- фотоволтаична инсталация на покривите - за обезпечаване на общата консумация - общи части, парково осветление и др;
- 24 h видеонаблюдение;
- зарядни станции за ЕПС - 22 kw;
- централна инсталация за филтриране и декалциране на питейната вода;
- инсталация за използване на дъждовните води за поливни нужди с резервоар.
Стандартна схема на плащане:
- предварителен договор - 30%;
- Акт 14 - 30%;
- Акт 15 - 30%;
- Акт 16 - 10%.
За повече информация, моля свържете се с отговорния брокер по офертата.
Виж текста на други езици (автоматичен превод)
Местоположение (приблизително)
На картата с червен маркер е указано приблизителното местоположение на имота/комплекса.
Имоти по тип, Пловдив
- Тристайни апартаменти в Пловдив
- Двустайни апартаменти в Пловдив
- Апартаменти (различни типове) в Пловдив
- Четиристайни апартаменти в Пловдив
- Къщи в Пловдив
- Едностайни апартаменти в Пловдив
- Магазини в Пловдив
- Парцели в регулация в Пловдив
- Земеделски земи в Пловдив
- Парцели за инвестиция в Пловдив
Популярни търсения
- Селски къщи в България
- Имоти за продажба в Пловдив
- Имоти в Пловдив
- Имоти под наем в Пловдив
- Тристайни апартаменти за продажба в Пловдив
- Двустайни апартаменти за продажба в Пловдив
- Къщи за продажба в Пловдив
- Имоти за продажба в кв.Център, Пловдив
- Едностайни апартаменти за продажба в Пловдив
- Имоти за продажба в кв.Христо Смирненски, Пловдив

