Етажност на сградата
6
Етаж
1
Асансьор
да
Стаи
2
Спални
1
Бани
1
Балкони (тераси) бр.:
20

Обща площ
57.54 м²
Застроена площ
49.32 м²
Общи части
8.22 м²
Състояние
В процес на строителство
Планирано завършване
Октомври 2026

Запитване за повече информация или оглед
Инфо пакет
Разстояния
Последна актуализация
03.10.2025 г.
Разстояния от имота до други важни обекти
- Център на града: 4.7 км
- Plovdiv (PDV): 16.4 км
Гледки от имота
- Гледка към града
Строителство
- Стоманобетонна конструкция
- Тухла
Административна информация за офертата
ГАЗИФИКАЦИЯ, ЕЛЕКТРИЧЕСТВО
- Електричество
ВОДОСНАБДЯВАНЕ
- Вода
АСАНСЬОРИ
- автоматични врати
- луксозни асансьори
КАНАЛИЗАЦИЯ
- Канализация
САНИТАРНИ И СПОМАГАТЕЛНИ ПОМЕЩЕНИЯ
- Баня с тоалетна
- Веранда
ИЗОЛАЦИИ И ДОВЪРШИТЕЛНИ РАБОТИ
- PVC дограма
- Блиндирана входна врата
- На шпакловка и замазка
ЕКСТРИ В СГРАДАТА
- Асансьор
- Луксозни общи части
ДВОР И ГРАДИНА
- Поддържан двор
- Цветна градина
ДРУГИ
- Магазин за хранителни стоки в близост
Представяме двустаен апартамент с веранда в нов проект, в кв. "Коматевски възел" на град Пловдив, в който ще откриете зеленина, въздух, модерни екстри и комфорт, вписани в един градски комплекс. Една добре планирана и модерна градска среда, която съчетава комфорт, енергийна ефективност и удобства. Отлична локация до Коматевски възел, Ритейл парк, болница Каспела, до пробива МОДАР – ЦАРЕВЕЦ, на минути от Mall Plovdiv и Гребната база.
БЕЗ КОМИСИОНА!
Комплексът е с Акт 14, а Акт 16 се очаква през октомври 2026 г.
Състои се от общо 8 жилищни секции с двустайни, тристайни и четиристайни апартаменти - от 5 до 8 на етаж, офис сграда клас “А”, отделена от основната жилищна част и 5000 кв.м паркова среда. Ще бъдат изградени зелена зона за отдих, без паркиране, с пейки и масово озеленяване, ритейл парк с магазини, които ще бъдат перфектно заредени, и търговска площ, която ще предлага първокачествени услуги за новодомците.
В момента са в продажба само секции Б, Г, Д и Е.
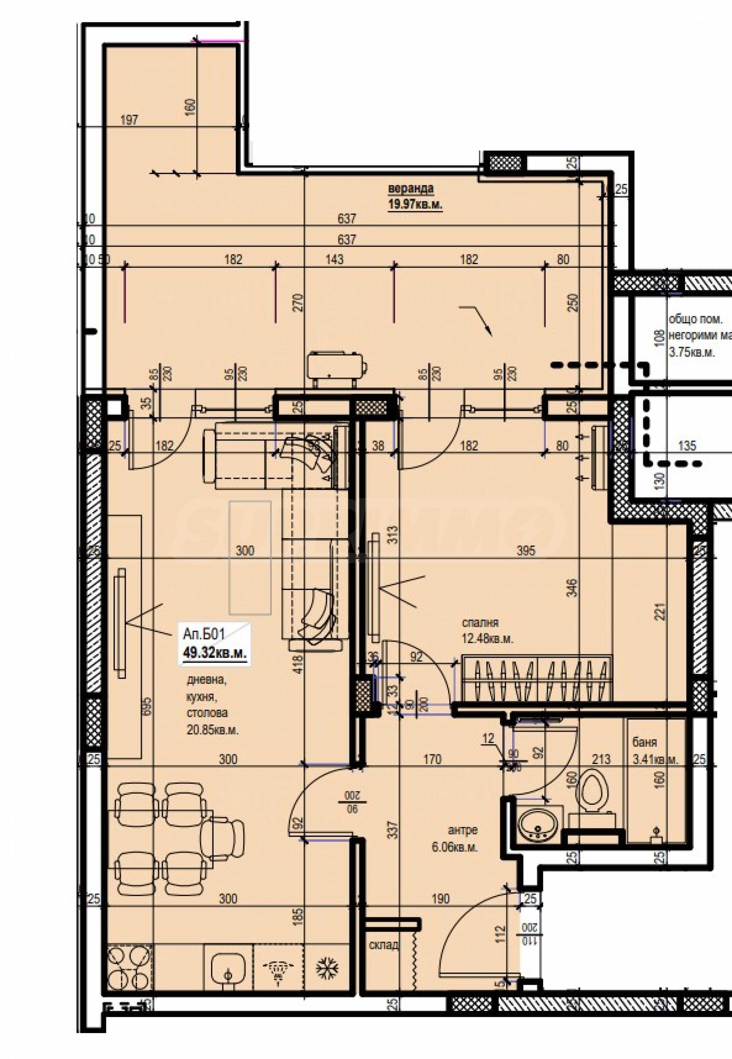
Жилището с обща площ от 57.54 кв.м и веранда 19,97 кв. м. е разположено на 1-ви етаж от 6.
Имотите се предават в степен на завършеност по БДС.
Паркирането е 110% осигурено с подземни, надземни паркоместа и партерни гаражи с автоматизирани немски гаражни врати.
Технически характеристики:
Проектът е дело на доказан инвеститор с 10 години опит на пазара с имоти и 8 реализирани проекта.
Стандартна схема на плащане:
За повече информация, моля свържете се с отговорния брокер по офертата.
БЕЗ КОМИСИОНА!
Комплексът е с Акт 14, а Акт 16 се очаква през октомври 2026 г.
Състои се от общо 8 жилищни секции с двустайни, тристайни и четиристайни апартаменти - от 5 до 8 на етаж, офис сграда клас “А”, отделена от основната жилищна част и 5000 кв.м паркова среда. Ще бъдат изградени зелена зона за отдих, без паркиране, с пейки и масово озеленяване, ритейл парк с магазини, които ще бъдат перфектно заредени, и търговска площ, която ще предлага първокачествени услуги за новодомците.
В момента са в продажба само секции Б, Г, Д и Е.
Жилището с обща площ от 57.54 кв.м и веранда 19,97 кв. м. е разположено на 1-ви етаж от 6.
Имотите се предават в степен на завършеност по БДС.
Паркирането е 110% осигурено с подземни, надземни паркоместа и партерни гаражи с автоматизирани немски гаражни врати.
Технически характеристики:
- безплатен ток от солари;
- осветление, асансьори, хидрофор, вентилация, камери и други в общите части на комплекса ще бъдат захранвани от безплатен соларен ток;
- проектира се и окабеляване на всеки един имот за “умен дом”, давайки възможност за контрол на температурата и осветлението;
- залагат се тръби, разпределителна кутия и топлоизолация на марката Rehau, които ще осигурят равномерна топлина, ниски сметки за отопление и по-малко прах;
- зарядни станции за електромобили с енергия на преференциална цена;
- алуминиева дограма с троен стъклопакет;
- вносна алуминиева дограма, с троен стъклопакет и стъкло четири сезона, и австрийски обков;
- висококачествена шумоизолация на пода, под замазката на всеки апартамент;
- последно поколение система за филтриране на чистата вода, която ще отделя тежки метали и твърди частици;
- камери за видеонаблюдение – умни камери, които дават възможност да бъдат засечени съмнителни лица, пожар, наводнение или човек в беда.
Проектът е дело на доказан инвеститор с 10 години опит на пазара с имоти и 8 реализирани проекта.
Стандартна схема на плащане:
- 25% първоначална вноска;
- 25% на Акт 14;
- 25% на Акт 15;
- 25% на Акт 16.
За повече информация, моля свържете се с отговорния брокер по офертата.
Виж текста на други езици (автоматичен превод)
Местоположение (приблизително)
На картата с червен маркер е указано приблизителното местоположение на имота/комплекса.
Имоти по тип, Пловдив
- Тристайни апартаменти в Пловдив
- Двустайни апартаменти в Пловдив
- Апартаменти (различни типове) в Пловдив
- Четиристайни апартаменти в Пловдив
- Къщи в Пловдив
- Едностайни апартаменти в Пловдив
- Магазини в Пловдив
- Земеделски земи в Пловдив
- Петстайни апартаменти в Пловдив
- Парцели за инвестиция в Пловдив
Популярни търсения
- Селски къщи в България
- Имоти за продажба в Пловдив
- Имоти в Пловдив
- Имоти под наем в Пловдив
- Тристайни апартаменти за продажба в Пловдив
- Двустайни апартаменти за продажба в Пловдив
- Къщи за продажба в Пловдив
- Имоти за продажба в кв.Център, Пловдив
- Едностайни апартаменти за продажба в Пловдив
- Имоти за продажба в кв.Христо Смирненски, Пловдив

