Само за
частни лица!
частни лица!
Еднофамилна къща в нов комплекс в Пловдив
Неактуална оферта
Неактуална оферта
Неактуална оферта
Неактуална оферта
Неактуална оферта
Неактуална оферта
REF#PLV-114650 / Къща / кв. Беломорски / гр. Пловдив / Пловдивска област / България / Продажба На картата
Етажност на сградата
2
Стаи
4
Спални
3
Бани
2
Балкони (тераси) бр.:
3

Площ на сградата
179 м²
Площ на парцела
195 м²

Запитване за повече информация или оглед
Инфо пакет
Състояние
БДС (на шпакловка и замазка)
Обзавеждане
Необзаведен
Отопление
Камина / Климатици
Прозорци
PVC дограма
Разстояния
Последна актуализация
27.07.2025 г.
Разстояния от имота до други важни обекти
- Център на града: 7 км
- Plovdiv (PDV): 16.4 км
Гледки от имота
- Гледка към вътрешен двор
- Гледка към града
- Гледка към планината
Строителство
- Стоманобетонна конструкция
- Тухла
Отопление
- Камина
- Климатици
Административна информация за офертата
ГАЗИФИКАЦИЯ, ЕЛЕКТРИЧЕСТВО
- Електричество
ВОДОСНАБДЯВАНЕ
- Водоснабдяване
ФАСАДА
- външна изолация
ПОКРИВ
- остър покрив
САНИТАРНИ И СПОМАГАТЕЛНИ ПОМЕЩЕНИЯ
- Балкон
- Балкони
- Баня
- Баня с тоалетна
- Веранда
- Вътрешно стълбище
- Паркомясто
ИЗОЛАЦИИ И ДОВЪРШИТЕЛНИ РАБОТИ
- PVC дограма
- Блиндирана входна врата
- На шпакловка и замазка
ДВОР И ГРАДИНА
- Двор
ДРУГИ
- Магазин за хранителни стоки в близост
Предварителна продажба!
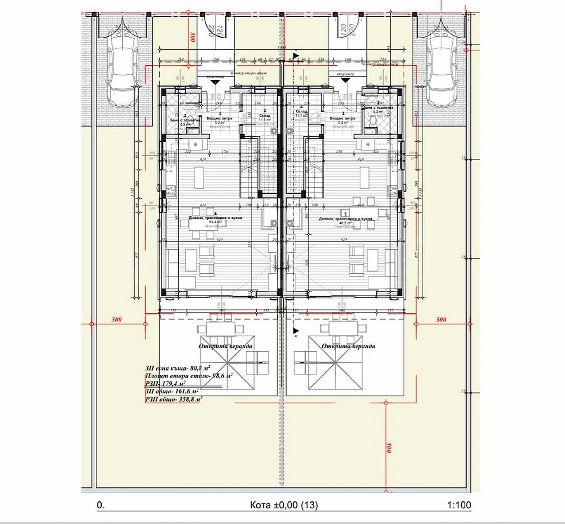
Представяме еднофамилна къща в малък нов комплекс, на който предстои да започне изграждането, в кв. "Беломорски" на град Пловдив.
Къщите от комплекса ще са на калкан с разделна двойна стена и разделени преден и заден двор, като всяка от тях е с РЗП от 179 кв.м и дворно място от 195 кв.м.
Разпределение:
Дворното място предлага възможност за барбекю, като имота разполага и с паркомясто.
Къщите се намират в квартал, застроен само с нови къщи.
За повече информация, моля свържете се с нас.
Представяме еднофамилна къща в малък нов комплекс, на който предстои да започне изграждането, в кв. "Беломорски" на град Пловдив.
Къщите от комплекса ще са на калкан с разделна двойна стена и разделени преден и заден двор, като всяка от тях е с РЗП от 179 кв.м и дворно място от 195 кв.м.
Разпределение:
- първи етаж - антре, складово помещение с възможност за пелетен котел и комин, баня с тоалетна, стълби, камина, дневна, трапезария и кухня, които водят към голяма веранда в задния двор;
- втори етаж - 3 спални (непреходни), от които две са с площ от 12 кв.м, а третата - 15 кв.м, всяка с тераса, 2 бани с тоалетни и перално помещение.
Дворното място предлага възможност за барбекю, като имота разполага и с паркомясто.
Къщите се намират в квартал, застроен само с нови къщи.
За повече информация, моля свържете се с нас.
Виж текста на други езици (автоматичен превод)
Местоположение (приблизително)
На картата с червен маркер е указано приблизителното местоположение на имота/комплекса.
Имоти по тип, Пловдив
- Тристайни апартаменти в Пловдив
- Двустайни апартаменти в Пловдив
- Апартаменти (различни типове) в Пловдив
- Четиристайни апартаменти в Пловдив
- Къщи в Пловдив
- Едностайни апартаменти в Пловдив
- Магазини в Пловдив
- Земеделски земи в Пловдив
- Петстайни апартаменти в Пловдив
- Парцели за инвестиция в Пловдив
Популярни търсения
- Селски къщи в България
- Имоти за продажба в Пловдив
- Имоти в Пловдив
- Имоти под наем в Пловдив
- Тристайни апартаменти за продажба в Пловдив
- Двустайни апартаменти за продажба в Пловдив
- Къщи за продажба в Пловдив
- Имоти за продажба в кв.Център, Пловдив
- Едностайни апартаменти за продажба в Пловдив
- Имоти за продажба в кв.Христо Смирненски, Пловдив

