Етажност на сградата
11
Етаж
5
Асансьор
да
Стаи
2
Спални
1
Бани
1

Обща площ
62.04 м²
Застроена площ
52.94 м²
Общи части
9.10 м²
Състояние
В процес на строителство
Планирано завършване
Март 2027
Запитване за повече информация или оглед
Инфо пакет
Разстояния
Последна актуализация
05.11.2025 г.
Разстояния от имота до други важни обекти
- Sofia (SOF): 10 км
Отопление
- ТЕЦ
Административна информация за офертата
ГАЗИФИКАЦИЯ, ЕЛЕКТРИЧЕСТВО
- Електричество
ВОДОСНАБДЯВАНЕ
- Водоснабдяване
АСАНСЬОРИ
- автоматични врати
ИЗОЛАЦИИ И ДОВЪРШИТЕЛНИ РАБОТИ
- PVC дограма
- На шпакловка и замазка
- Троен стъклопакет
ЕКСТРИ В СГРАДАТА
- Асансьор
ДРУГИ
- В жилищна сграда
- Магазин за хранителни стоки в близост
Представяме двустаен апартамент в нова жилищна сграда в кв. "Младост 4". Местоположението е в близост до Бизнес Парк София, метростанция "Бизнес Парк", спирки на градски транспорт, магазини "Кауфланд", "Фантастико" и "Технополис", заведения, детски градини, парк и други удобства. Локацията е в близост до бул. "Александър Малинов" и Околовръстен път, които осигуряват бърз достъп с другите части на столицата.
Старт на строителството - октомври 2023 г. Срок за завършване - 2.5 години.
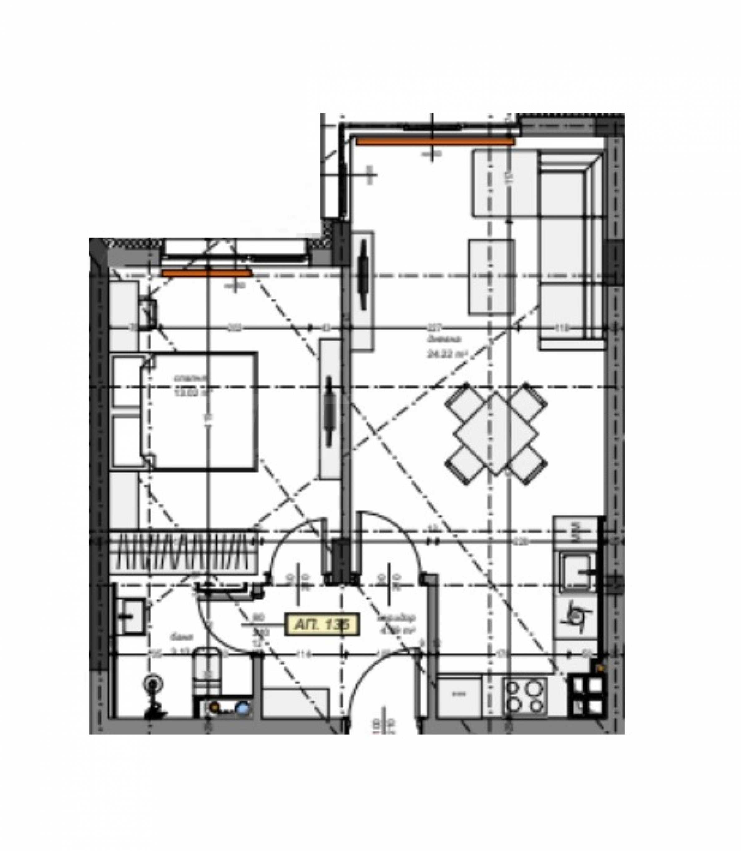
Имотът е ситуиран на 5-и етаж от общо 11, предлага 62.04 кв.м обща площ. Състои се от антре, всекидневна, спалня, баня с тоалетна. Предлага се в степен на завършеност по БДС.
Сградата е със съвременна, модерна архитектурна визия, разпределена е на 11 етажа, с планирани двустайни, тристайни и четиристайни имоти, с площи от 49 до 195 кв.м. На ниво партер са предвидени магазини и ресторант, а паркирането е решено с паркоместа и гаражи на подземно ниво и ниво партер, и открити паркоместа.
Имотите са проектирани с функционални разпределения и благоприятни изложения, осигуряващи комфортно обитаване.
Технически характеристики:
Има възможност за закупуване на складови помещения.
Схеми на плащане
Вариант 1 (- 100 евро/кв.м):
Вариант 2: (- 50 евро/кв.м):
Вариант 3 (стандартна схема):
Вариант 4 (+ 80 евро/кв.м):
Вариант 5 (+ 250 евро/кв.м):
За допълнителна информация и организиране на оглед, моля свържете се с отговорния брокер по офертата.
Старт на строителството - октомври 2023 г. Срок за завършване - 2.5 години.
Имотът е ситуиран на 5-и етаж от общо 11, предлага 62.04 кв.м обща площ. Състои се от антре, всекидневна, спалня, баня с тоалетна. Предлага се в степен на завършеност по БДС.
Сградата е със съвременна, модерна архитектурна визия, разпределена е на 11 етажа, с планирани двустайни, тристайни и четиристайни имоти, с площи от 49 до 195 кв.м. На ниво партер са предвидени магазини и ресторант, а паркирането е решено с паркоместа и гаражи на подземно ниво и ниво партер, и открити паркоместа.
Имотите са проектирани с функционални разпределения и благоприятни изложения, осигуряващи комфортно обитаване.
Технически характеристики:
- стени и тавани с гипсова мазилка, подове с циментова мазилка;
- PVC дограма, 5-камерен профил с троен стъклопакет;
- блиндирана входна врата с патронна брава;
- стени в бани и тоалетна с варова мазилка;
- модерна фасада с топлоизолация и полимерна силикатна мазилка, плътни и/или ажурни парапети;
- общи части с подова настилка от гранит, стени на латекс, иноксови или ажурни парапети;
- ВиК и ел. инсталации;
- отопление на ТЕЦ и изводи за климатици.
Има възможност за закупуване на складови помещения.
Схеми на плащане
Вариант 1 (- 100 евро/кв.м):
- 90% - Предварителен договор;
- 10% - Акт 16.
Вариант 2: (- 50 евро/кв.м):
- 60% - Предварителен договор;
- 20% - Акт 14;
- 10% - Акт 15;
- 10% - Акт 16.
Вариант 3 (стандартна схема):
- 30% - Предварителен договор;
- 20% - Акт 14;
- 20% - Удостоверение по чл. 181;
- 20% - Акт 15;
- 10% - Акт 16.
Вариант 4 (+ 80 евро/кв.м):
- 10% - Предварителен договор;
- 30% - Акт 14;
- 30% - Удостоверение по чл. 181;
- 20% - Акт 15;
- 10% - Акт 16.
Вариант 5 (+ 250 евро/кв.м):
- 10% - Предварителен договор;
- 90% - Акт 16.
За допълнителна информация и организиране на оглед, моля свържете се с отговорния брокер по офертата.
Виж текста на други езици (автоматичен превод)
Местоположение (приблизително)
На картата с червен маркер е указано приблизителното местоположение на имота/комплекса.
Популярни търсения
- Селски къщи в България
- Имоти за продажба в София
- Имоти в София
- Имоти под наем в София
- Тристайни апартаменти за продажба в София
- Къщи за продажба в София
- Двустайни апартаменти за продажба в София
- Апартаменти (различни типове) за продажба в София
- Едностайни апартаменти за продажба в София
- Двустайни апартаменти в София


