Етажност на сградата
2
Стаи
5
Спални
4
Бани
4
Балкони (тераси) бр.:
1
Тоалетни
1

Площ на сградата
200.10 м²
Площ на парцела
Без земя

Запитване за повече информация или оглед
Инфо пакет
Състояние
до ключ (с настилки и боядисан)
Обзавеждане
Необзаведен
Бани
Оборудвана баня
Отопление
Климатици
Разстояния
Последна актуализация
11.04.2025 г.
Разстояния от имота до други важни обекти
- Burgas (BOJ): 35 км
Гледки от имота
- Гледка към вътрешен двор
- Гледка към гора
- Гледка към града
- Гледка към морето
Строителство
- Гредоред
- Тухла
Отопление
- Климатици
Административна информация за офертата
ГАЗИФИКАЦИЯ, ЕЛЕКТРИЧЕСТВО
- Електричество
ВОДОСНАБДЯВАНЕ
- Водоснабдяване
ФАСАДА
- външна изолация
- дърво
- естествен камък
ПОКРИВ
- покривна изолация
САНИТАРНИ И СПОМАГАТЕЛНИ ПОМЕЩЕНИЯ
- Баня с тоалетна
- Веранда
ИЗОЛАЦИИ И ДОВЪРШИТЕЛНИ РАБОТИ
- PVC дограма
ОБЗАВЕЖДАНЕ И ОБОРУДВАНЕ
- Оборудвана баня
ЕКСТРИ В СГРАДАТА
- Затворен комплекс
ДВОР И ГРАДИНА
- Двор
Представяме къща с четири спални, разположена в еко-комолекс с отлична локация, в подножието на Стара планина и край брега на морето в Свети Влас.
Къщата е част от втори етап на строителство на комплекса. Очаквано завършване - декември 2024 г.
Къщата е в стил "стара Българска къща", с обща площ 199.30 кв.м, предлага прекрасен панорамен изглед към морето и вдъхновяващи гледки към гората.
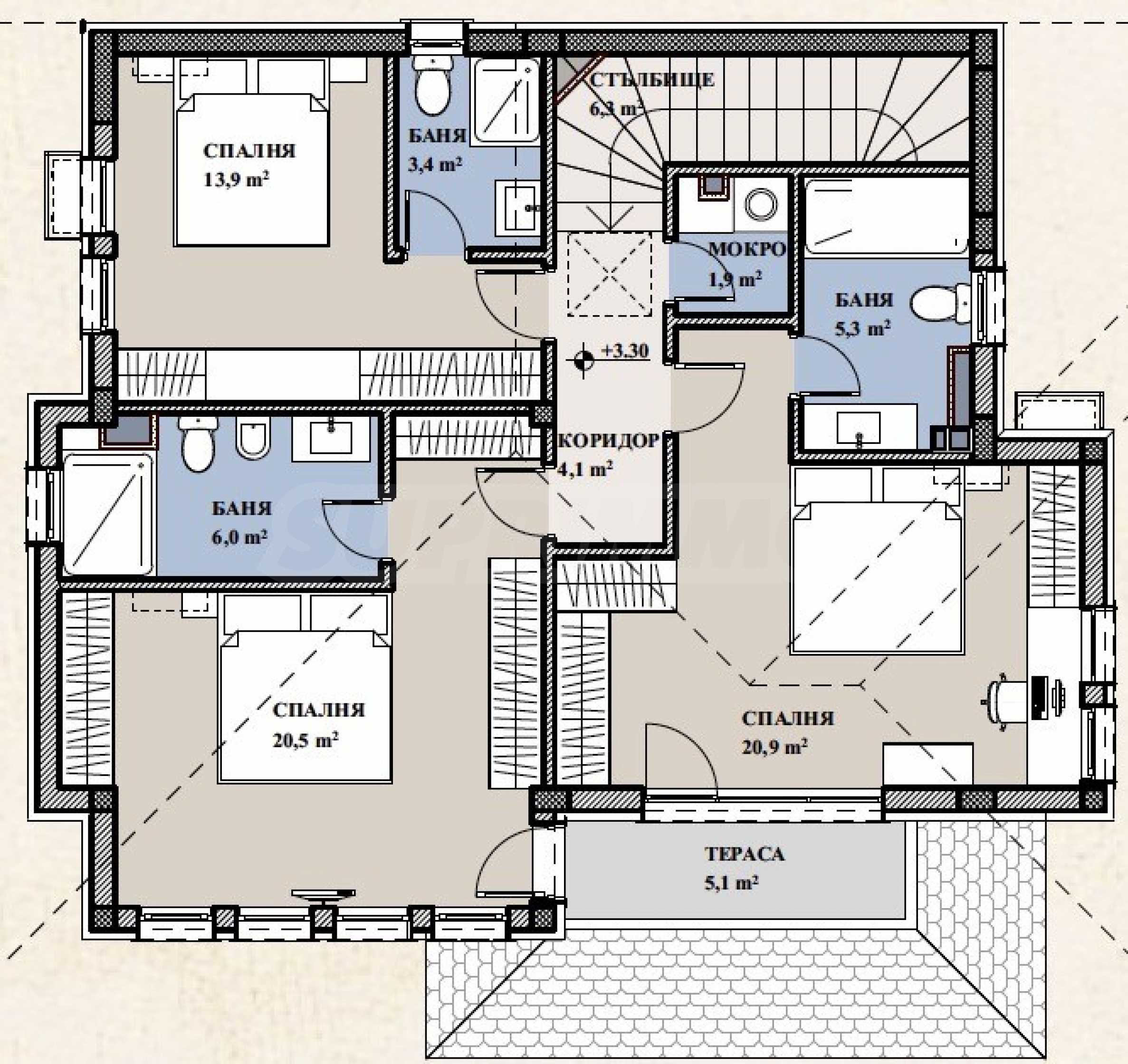
Разпределение:
Имотът ще бъде завършен "до ключ", без обзавеждане.
Посочената цена е без ДДС.
Комплексът ще се развие в рамките на три етапа, в които са предвидени изграждането на жилищни къщи, апартхотел, обществен център с много зеленина и вътрешни алейни мрежи. Първият етап на строителството на еко-комплекса стартира в началото на 2020 г. и вече е завършен. Състои се от 36 къщи (30 единични и 6 къщи-близнак), вътрешна алейна мрежа, тротоари, алеи, паркинги. Вторият етап се състои от 29 къщи (21 единични и 8 къщи-близнак) с очаквано завършване - края на 2024 г.
Архитектурният образ на къщите може да се отнесе към възрожденската архитектура. На лице са характерните за този стил материали и визия с еркери и изнесени стрехи на покрива. Първото ниво на сградата е решено с облицовка от камък. Вторият етаж е с бяла минерална мазилка и дъсчена обшивка. Присъстват и характерните кантирания на ъглите, стените и рамките на прозорците със сантрачи и дървен материал. Покривът е скатен с дървена конструкция и декоративни елементи.
Всички използвани материали са природосъобразни, екосертифицирани от висок клас, като обликът на комплекса е в унисон със заобикалящата го горска среда, което в съчетание с близостта на морето, планината и престижната локация напълно оправдава инвестицията в закупуване на къща в комплекса.
Всяка спалня е със собствена баня/WC. От всички нива на всяка къща ще има прекрасна панорама към морето, гората и курорта. Покривът на имотите е скатен, с дървена конструкция и декоративни елементи. При строителството са използвани природосъобразни материали, с уникална концепция, къщите да се слеят в едно със заобикалящата ги горска среда. Проектираните къщи осигуряват комфортна среда на обитателите, в която могат да преживеят неповторимостта на гората и морето в едновременност.
Прекрасна морска панорама с подчертан наклон на юг.
Разработената градоустройствена концепция допринася за романтичната визия на целия комплекс, като от всички нива на всяка къща има панорама към морето и гората.
Комплексът се състои от:
В непосредствена близост до комплекса, се намират всички удобства и забележителности – плажове, яхтено пристанище, магазини, ресторанти, кафенета, центрове за красота и СПА, Амфитеатър и много други.
Местоположението е в района до 90 км еко-мрежа, обхваща подножието на източна Стара планина
По пътя туристите имат възможност да видят редки и защитени растителни и животински видове. Някои от които са включени в Червената книга на България, чешми с изворна вода, беседки и заслони, каменни параклиси с икони на православни светци по протежението на цялата екопътека, което прави разходката изключително интересна и опознавателна.
Годишната такса поддръжка е в размер на 15 евро/кв.м.
Разстояния:
За допълнителна информация и организиране на оглед, моля свържете се с отговорния брокер по офертата.
Къщата е част от втори етап на строителство на комплекса. Очаквано завършване - декември 2024 г.
Къщата е в стил "стара Българска къща", с обща площ 199.30 кв.м, предлага прекрасен панорамен изглед към морето и вдъхновяващи гледки към гората.
Разпределение:
- първи етаж - дневна с кухненски бокс и трапезария, тоалетна, спалня с баня с тоалетна, веранда;
- втори етаж - три спални със собствени бани с тоалетна, мокро помещение, тераса;
Имотът ще бъде завършен "до ключ", без обзавеждане.
Посочената цена е без ДДС.
Комплексът ще се развие в рамките на три етапа, в които са предвидени изграждането на жилищни къщи, апартхотел, обществен център с много зеленина и вътрешни алейни мрежи. Първият етап на строителството на еко-комплекса стартира в началото на 2020 г. и вече е завършен. Състои се от 36 къщи (30 единични и 6 къщи-близнак), вътрешна алейна мрежа, тротоари, алеи, паркинги. Вторият етап се състои от 29 къщи (21 единични и 8 къщи-близнак) с очаквано завършване - края на 2024 г.
Архитектурният образ на къщите може да се отнесе към възрожденската архитектура. На лице са характерните за този стил материали и визия с еркери и изнесени стрехи на покрива. Първото ниво на сградата е решено с облицовка от камък. Вторият етаж е с бяла минерална мазилка и дъсчена обшивка. Присъстват и характерните кантирания на ъглите, стените и рамките на прозорците със сантрачи и дървен материал. Покривът е скатен с дървена конструкция и декоративни елементи.
Всички използвани материали са природосъобразни, екосертифицирани от висок клас, като обликът на комплекса е в унисон със заобикалящата го горска среда, което в съчетание с близостта на морето, планината и престижната локация напълно оправдава инвестицията в закупуване на къща в комплекса.
Всяка спалня е със собствена баня/WC. От всички нива на всяка къща ще има прекрасна панорама към морето, гората и курорта. Покривът на имотите е скатен, с дървена конструкция и декоративни елементи. При строителството са използвани природосъобразни материали, с уникална концепция, къщите да се слеят в едно със заобикалящата ги горска среда. Проектираните къщи осигуряват комфортна среда на обитателите, в която могат да преживеят неповторимостта на гората и морето в едновременност.
Прекрасна морска панорама с подчертан наклон на юг.
Разработената градоустройствена концепция допринася за романтичната визия на целия комплекс, като от всички нива на всяка къща има панорама към морето и гората.
Комплексът се състои от:
- еднофамилни жилищни сгради, двуфамилни жилищни сгради (къщи-близнак) и редови къщи;
- свободно средно застрояване за обществено обслужване (апартхотел и параклис), които не възпрепятстват видимостта към морето на къщите.
- два тенис корта, басейн за възрастни и деца, апартхотел, параклис,паркинг, изключително живописна и хармонична с природата вътрешна инфраструктура.
В непосредствена близост до комплекса, се намират всички удобства и забележителности – плажове, яхтено пристанище, магазини, ресторанти, кафенета, центрове за красота и СПА, Амфитеатър и много други.
Местоположението е в района до 90 км еко-мрежа, обхваща подножието на източна Стара планина
По пътя туристите имат възможност да видят редки и защитени растителни и животински видове. Някои от които са включени в Червената книга на България, чешми с изворна вода, беседки и заслони, каменни параклиси с икони на православни светци по протежението на цялата екопътека, което прави разходката изключително интересна и опознавателна.
Годишната такса поддръжка е в размер на 15 евро/кв.м.
Разстояния:
- Летище Бургас – 40 км;
- Центърът на Свети Влас - 1 км;
- Автобусна спирка - на 5 минути пеша.
За допълнителна информация и организиране на оглед, моля свържете се с отговорния брокер по офертата.
Виж текста на други езици (автоматичен превод)
Местоположение (приблизително)
На картата с червен маркер е указано приблизителното местоположение на имота/комплекса.
Имоти по район
всички по град
Имоти по тип, Свети Влас
- Двустайни апартаменти в Свети Влас
- Тристайни апартаменти в Свети Влас
- Къщи в Свети Влас
- Едностайни апартаменти в Свети Влас
- Четиристайни апартаменти в Свети Влас
- Многостайни апартаменти в Свети Влас
- Апартаменти (различни типове) в Свети Влас
- Пентхауси в Свети Влас
- Мезонети в Свети Влас
- Парцели в регулация в Свети Влас

