Етажност на сградата
4
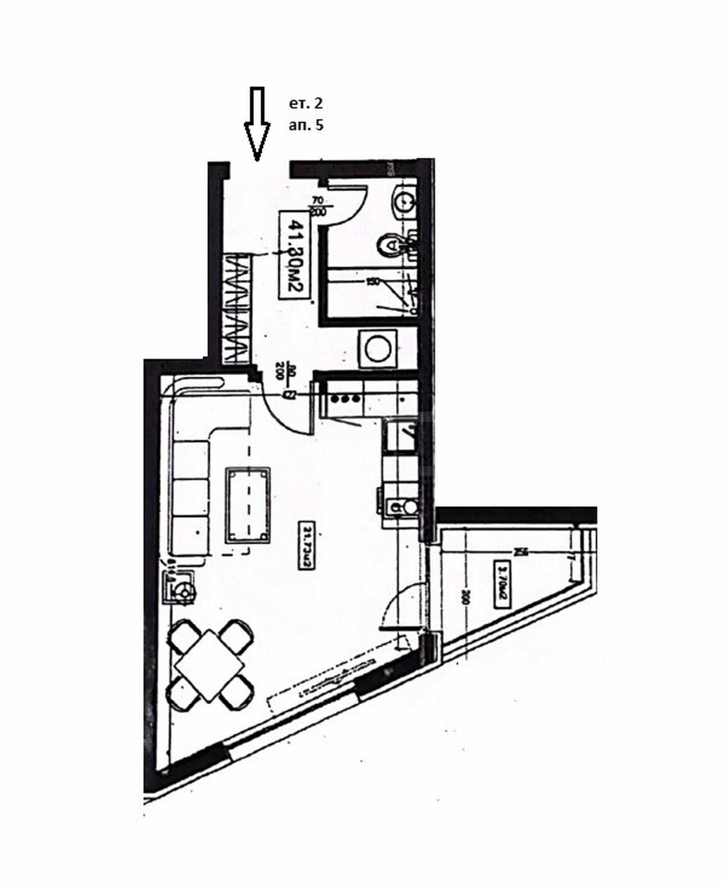
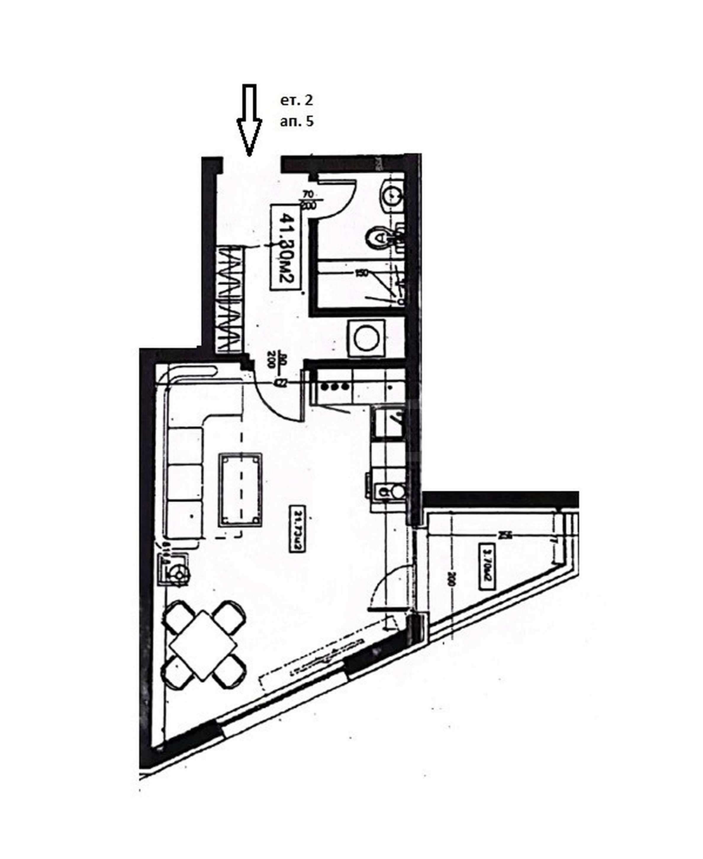
Етаж
2
Стаи
1
Бани
1
Балкони (тераси) бр.:
1

Обща площ
49.81 м²
Застроена площ
44.43 м²
Общи части
5.38 м²
Получен Акт 16

Запитване за повече информация или оглед
Инфо пакет
Разстояния
Последна актуализация
01.10.2025 г.
Разстояния от имота до други важни обекти
- Burgas (BOJ): 76 км
Гледки от имота
- Гледка към града
Строителство
- Тухла
Административна информация за офертата
ГАЗИФИКАЦИЯ, ЕЛЕКТРИЧЕСТВО
- Електричество
ВОДОСНАБДЯВАНЕ
- Вода
САНИТАРНИ И СПОМАГАТЕЛНИ ПОМЕЩЕНИЯ
- Балкон
- Баня с тоалетна
ИЗОЛАЦИИ И ДОВЪРШИТЕЛНИ РАБОТИ
- На шпакловка и замазка
ДРУГИ
- В жилищна сграда
- Магазин за хранителни стоки в близост
Представяме студио с обща площ 49.81 кв.м за продажба в Царево.
Имотът е разположен на втори етаж в строяща се, нова жилищна сграда в района до плаж Нестинарка в кв. "Василико".
Състои се от входно антре, просторна дневна с кухненски бокс, баня с тоалетна и тераса.
Апартаментът се предлага в степен на завършеност БДС, с възможност за довършване "до ключ".
Районът предлага отлично съчетание на планина, плаж и море, подходящ е както за постоянно живеене, така и за летуване и инвестиция.
Сградата ще бъде завършена още тази година, 2023 г.
Свържете се с нас за професионална консултация!
Имотът е разположен на втори етаж в строяща се, нова жилищна сграда в района до плаж Нестинарка в кв. "Василико".
Състои се от входно антре, просторна дневна с кухненски бокс, баня с тоалетна и тераса.
Апартаментът се предлага в степен на завършеност БДС, с възможност за довършване "до ключ".
Районът предлага отлично съчетание на планина, плаж и море, подходящ е както за постоянно живеене, така и за летуване и инвестиция.
Сградата ще бъде завършена още тази година, 2023 г.
Свържете се с нас за професионална консултация!
Виж текста на други езици (автоматичен превод)
Местоположение (приблизително)
На картата с червен маркер е указано приблизителното местоположение на имота/комплекса.
Имоти по район
всички по град
Имоти по тип, Царево
- Двустайни апартаменти в Царево
- Тристайни апартаменти в Царево
- Къщи в Царево
- Едностайни апартаменти в Царево
- Парцели в регулация в Царево
- Апартаменти (различни типове) в Царево
- Парцели за инвестиция в Царево
- Парцели с проект в Царево
- Промишлени сгради в Царево
- Бизнеси в Царево

