Клас на сградата/комплекса
Луксозен
Етажност на сградата
15
Етаж
5
Асансьор
да
Стаи
1
Бани
1

Обща площ
46.03 м²
Застроена площ
37.71 м²
Общи части
8.32 м²
Състояние
В процес на строителство
Планирано завършване
Септември 2027

Запитване за повече информация или оглед
Инфо пакет
Разстояния
Последна актуализация
01.12.2025 г.
Разстояния от имота до други важни обекти
- Sofia (SOF): 8 км
Строителство
- Стоманобетонна конструкция
- Тухла
Отопление
- Климатици
- ТЕЦ
Административна информация за офертата
ГАЗИФИКАЦИЯ, ЕЛЕКТРИЧЕСТВО
- Електричество
ВОДОСНАБДЯВАНЕ
- Водоснабдяване
АСАНСЬОРИ
- автоматични врати
- луксозни асансьори
КАНАЛИЗАЦИЯ
- Канализация
ФАСАДА
- окачена фасада
- стъкло
САНИТАРНИ И СПОМАГАТЕЛНИ ПОМЕЩЕНИЯ
- Паркинг
- Паркомясто
- Подземен гараж
ИЗОЛАЦИИ И ДОВЪРШИТЕЛНИ РАБОТИ
- Алуминиева дограма
- Масивни стени
- На шпакловка и замазка
- Тухлени стени
ЕКСТРИ В СГРАДАТА
- Асансьор
- Луксозни общи части
- Портиер
ДРУГИ
- Магазин за хранителни стоки в близост
Ексклузивно представяме за продажба едностаен апартамент в сграда S-Tower - нов проект с отличителен дизайн, висок клас на изпълнение, комуникативна локация и отлична възможност за инвестиция. Проектът е дело на арх. Ангел Захариев и неговия екип, печелили неведнъж престижната награда "Сграда на годината". Сградата е с изключителна визия и ще се превърне в емблема за столицата ни.
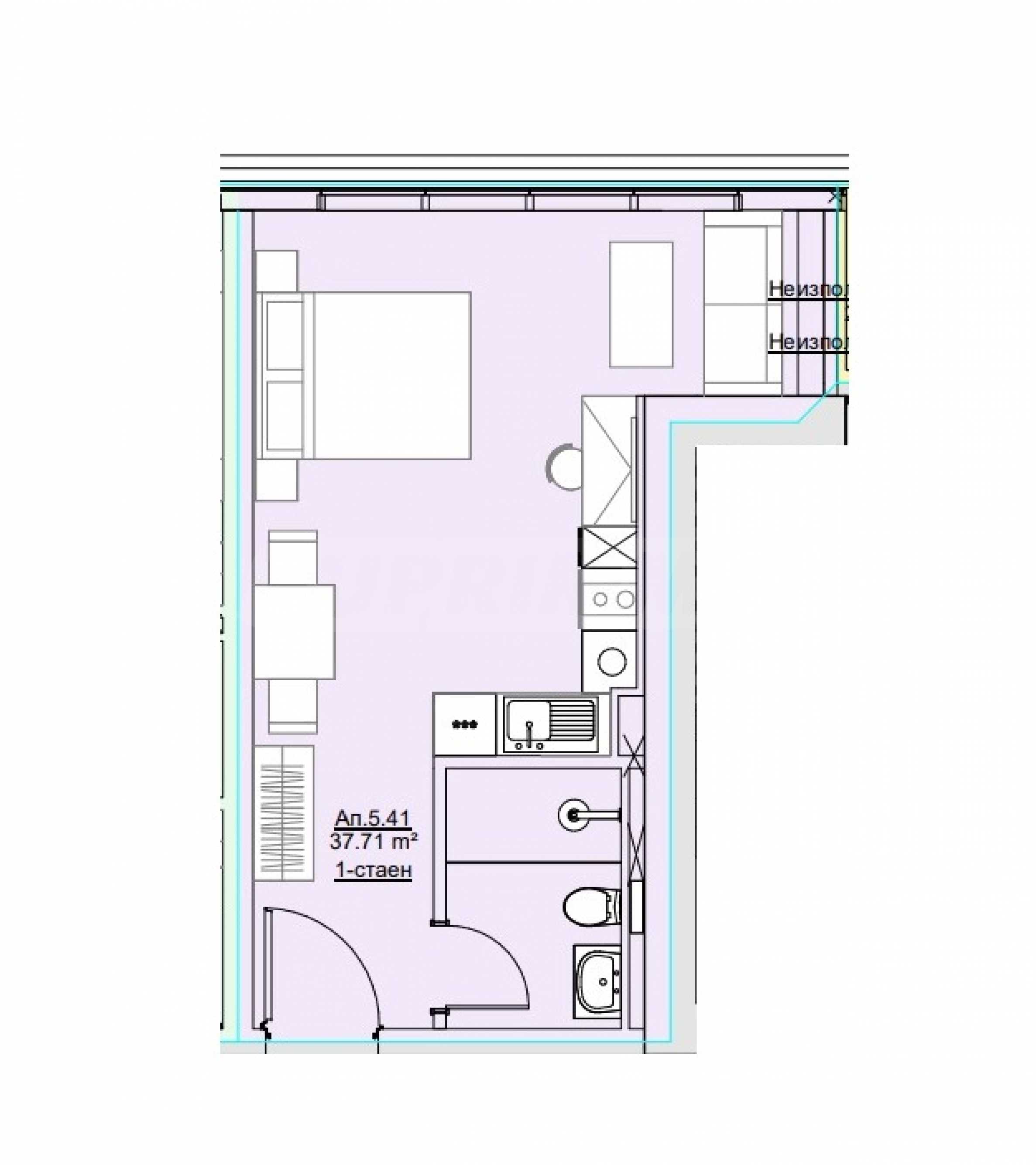
Апартамент 5.41 е ситуиран на 5-и етаж от общо 15 и предлага 46.03 кв.м обща площ - 37.71 кв.м нетна площ и 8.32 кв.м общи части.
Открита строителна площадка/първа копка. Срок на изпълнение - 2.5 години.
S-Tower e разположена на бул. "Г.М. Димитров" - един от емблематичните за нашия град булеварди, на който се извисяват множество ключови за София сгради - бизнес сгради от клас А, магазини, четиризвездния бизнес хотел "Вега", един от най-добрите СПА центрове в столицата ни - Este Fitness & SPA. Апартаментите в района са с много добра възвращаемост и с високи наемни цени, което прави инвестицията в недвижими имоти в района сигурна и печеливша.
S-Tower е многофункционална сграда, извисяваща се на 15 етажа, със 104 луксозни апартамента, 2 впечатляващи пентхауса, 6 офиса, ресторант и 3 магазина. Дизайнът е футуристичен, с разчупени форми и окачена стъклена фасада, изцяло изпълнена с алуминиеви елементи в цвят розово злато. Всички общи части са решени в елегантен и модерен стил, а за лобито инвеститорът предвижда луксозно довършване и 3D мапинг ефект. В строителството ще се използват материали от най-висок клас, осигуряващи дълговечност и лесна поддръжка на сградата във времето, а свободните пространства край сградата ще бъдат озеленени и естетически оформени. Архитектурният план предвижда две подземни нива с паркоместа и паркоместа на терен, които са предназначени за магазинната част и ресторанта.
Имоти
В сградата са планирани три магазина и един ресторант със светла височина 4.10 м и лице към бул. "Г.М. Димитров" на ниво партер, и 6 офиса на ниво две. Подходът към жилищната част ще се осъществява чрез просторно фоайе със светла височина 8 м, разположено във вътрешната част на сградата. Има избор от студиа и апартаменти с 1, 2 и 3 спални с функционални разпределения, завършени по БДС (на шпакловка и замазка), с блиндирани входни врати Solid и алуминиева дограма от висок клас с термомост и троен стъклопакет. Имотите се отличават с просторни площи, чудесни гледки и висококачествено изпълнение. Сградата ще разполага с климатична инсталация и ТЕЦ.
Посочената цена е без ДДС.
Има възможност за закупуване на подземни паркоместа на цени €23 000 - €25 000 без ДДС.
Стоп-капарото е в размер на 5 000 евро за едностаен и двустаен апартамент, 8 000 евро за тристаен и четиристаен апартамент.
Схема на плащане:
Зад проекта стои консорциум от инвеститори с безупречна репутация и десетки години опит в строителството на жилищни сгради и комплекси в големите градове на страната.
Арх. Ангел Захариев, проектант на S-Tower, описва сградата така:
„Архитектурата трябва да се стреми да бъде в крак с времето в което е създадена, да предизвиква сетивата на наблюдателите и да създава емоции сред обитателите. S-Tower дава ясен отговор на този стремеж!
Със своите флуидни и обтекаеми форми, плавно преливащи пространства, изобилие от светлина и усещане за простор, S-Tower е носител на новата архитектурна естетика на 21-и век. S-Tower съчетава елегантност и блясък, откроява се, обогатява средата и допринася за цялостното развитие на района. Специфичният материал на плътните части на фасадата, наподобяващ розово злато прави проекта уникален за тази част на Европа, и със своят блясък и променящ се образ през различните части на денонощието ще допълва динамичните форми на сградата.
С иновативната си архитектура, разнообразният функционален микс и комуникативната локация, S-Tower е един от проектите с които София ще гордее в следващите десетилетия.“ Вижте цялото представяне на сградата от арх. Захариев тук!
За професионална консултация, моля свържете се с отговорния брокер по офертата.
Апартамент 5.41 е ситуиран на 5-и етаж от общо 15 и предлага 46.03 кв.м обща площ - 37.71 кв.м нетна площ и 8.32 кв.м общи части.
Открита строителна площадка/първа копка. Срок на изпълнение - 2.5 години.
S-Tower e разположена на бул. "Г.М. Димитров" - един от емблематичните за нашия град булеварди, на който се извисяват множество ключови за София сгради - бизнес сгради от клас А, магазини, четиризвездния бизнес хотел "Вега", един от най-добрите СПА центрове в столицата ни - Este Fitness & SPA. Апартаментите в района са с много добра възвращаемост и с високи наемни цени, което прави инвестицията в недвижими имоти в района сигурна и печеливша.
S-Tower е многофункционална сграда, извисяваща се на 15 етажа, със 104 луксозни апартамента, 2 впечатляващи пентхауса, 6 офиса, ресторант и 3 магазина. Дизайнът е футуристичен, с разчупени форми и окачена стъклена фасада, изцяло изпълнена с алуминиеви елементи в цвят розово злато. Всички общи части са решени в елегантен и модерен стил, а за лобито инвеститорът предвижда луксозно довършване и 3D мапинг ефект. В строителството ще се използват материали от най-висок клас, осигуряващи дълговечност и лесна поддръжка на сградата във времето, а свободните пространства край сградата ще бъдат озеленени и естетически оформени. Архитектурният план предвижда две подземни нива с паркоместа и паркоместа на терен, които са предназначени за магазинната част и ресторанта.
Имоти
В сградата са планирани три магазина и един ресторант със светла височина 4.10 м и лице към бул. "Г.М. Димитров" на ниво партер, и 6 офиса на ниво две. Подходът към жилищната част ще се осъществява чрез просторно фоайе със светла височина 8 м, разположено във вътрешната част на сградата. Има избор от студиа и апартаменти с 1, 2 и 3 спални с функционални разпределения, завършени по БДС (на шпакловка и замазка), с блиндирани входни врати Solid и алуминиева дограма от висок клас с термомост и троен стъклопакет. Имотите се отличават с просторни площи, чудесни гледки и висококачествено изпълнение. Сградата ще разполага с климатична инсталация и ТЕЦ.
Посочената цена е без ДДС.
Има възможност за закупуване на подземни паркоместа на цени €23 000 - €25 000 без ДДС.
Стоп-капарото е в размер на 5 000 евро за едностаен и двустаен апартамент, 8 000 евро за тристаен и четиристаен апартамент.
Схема на плащане:
- 20% на Предварителен договор;
- 20% на кота 0;
- 20 % на Акт 14,
- 30% на дограма, фасада и покрив;
- 10% на Акт 16.
Зад проекта стои консорциум от инвеститори с безупречна репутация и десетки години опит в строителството на жилищни сгради и комплекси в големите градове на страната.
Арх. Ангел Захариев, проектант на S-Tower, описва сградата така:
„Архитектурата трябва да се стреми да бъде в крак с времето в което е създадена, да предизвиква сетивата на наблюдателите и да създава емоции сред обитателите. S-Tower дава ясен отговор на този стремеж!
Със своите флуидни и обтекаеми форми, плавно преливащи пространства, изобилие от светлина и усещане за простор, S-Tower е носител на новата архитектурна естетика на 21-и век. S-Tower съчетава елегантност и блясък, откроява се, обогатява средата и допринася за цялостното развитие на района. Специфичният материал на плътните части на фасадата, наподобяващ розово злато прави проекта уникален за тази част на Европа, и със своят блясък и променящ се образ през различните части на денонощието ще допълва динамичните форми на сградата.
С иновативната си архитектура, разнообразният функционален микс и комуникативната локация, S-Tower е един от проектите с които София ще гордее в следващите десетилетия.“ Вижте цялото представяне на сградата от арх. Захариев тук!
За професионална консултация, моля свържете се с отговорния брокер по офертата.
Виж текста на други езици (автоматичен превод)
Местоположение (приблизително)
На картата с червен маркер е указано приблизителното местоположение на имота/комплекса.
Видео
Популярни търсения
- Селски къщи в България
- Имоти за продажба в София
- Имоти в София
- Имоти под наем в София
- Тристайни апартаменти за продажба в София
- Къщи за продажба в София
- Двустайни апартаменти за продажба в София
- Апартаменти (различни типове) за продажба в София
- Едностайни апартаменти за продажба в София
- Двустайни апартаменти в София

