Клас на сградата/комплекса
Висок стандарт
Етажност на сградата
6
Етаж
4
Асансьор
да
Стаи
3
Спални
2
Бани
1
Балкони (тераси) бр.:
1
Тоалетни
1
Мазе/склад
да

Обща площ
101.27 м²
Застроена площ
84.70 м²
Общи части
16.57 м²
Състояние
В процес на строителство
Планирано завършване
Ноември 2026

Запитване за повече информация или оглед
Инфо пакет
Състояние
БДС (на шпакловка и замазка)
Обзавеждане
Отопление
Климатици
Прозорци
PVC дограма
Разстояния
Последна актуализация
19.11.2025 г.
Разстояния от имота до други важни обекти
- Център на града: 5 км
- Plovdiv (PDV): 18.7 км
Гледки от имота
- Гледка към града
- Гледка към планината
Строителство
- Стоманобетонна конструкция
- Тухла
Отопление
- Климатици
Административна информация за офертата
ГАЗИФИКАЦИЯ, ЕЛЕКТРИЧЕСТВО
- Електричество
ВОДОСНАБДЯВАНЕ
- Водоснабдяване
АСАНСЬОРИ
- автоматични врати
- луксозни асансьори
КАНАЛИЗАЦИЯ
- Канализация
ФАСАДА
- външна изолация
ВИД НА ОБЩИТЕ ЧАСТИ
- гранитогресни плочки
- стени/боядисани с латекс
ПОКРИВ
- плосък покрив
- покривна изолация
САНИТАРНИ И СПОМАГАТЕЛНИ ПОМЕЩЕНИЯ
- Балкон
- Баня с тоалетна
- Килер
- Тоалетна
ИЗОЛАЦИИ И ДОВЪРШИТЕЛНИ РАБОТИ
- PVC дограма
- Външна изолация
ЕКСТРИ В СГРАДАТА
- Асансьор
ДОСТЪП ДО ИМОТА И ТЕЛЕКОМУНИКАЦИИ
- Wi-Fi интернет
- Асфалтиран път
- Вътрешно окабеляване аудио и видео система
ДРУГИ
- В жилищна сграда
- Магазин за хранителни стоки в близост
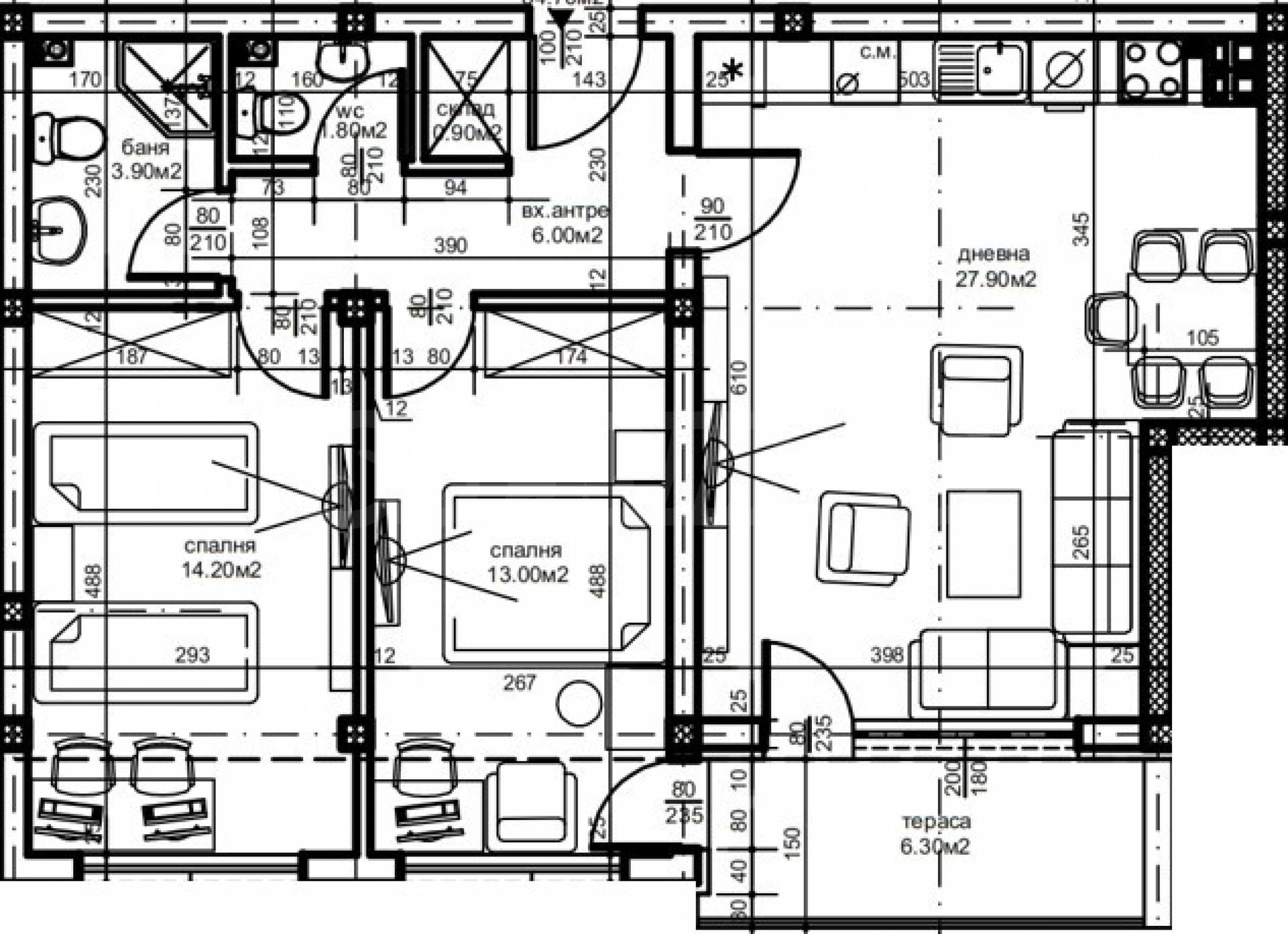
Представяме тристаен апартамент в нов жилищен проект в кв. "Остромила", Пловдив.
Имотът е разположен на 4-ти етаж в шестетажна сграда и е с обща площ от 101.27 кв.м (нетна площ - 84.70 кв.м + общи части - 16.57 кв.м).
БЕЗ КОМИСИОНА ОТ КУПУВАЧА!
Новият жилищен проект в кв. Остромила, се намира на тихо място, в район с модерно строителство. Първият етап на строителство включва изграждането на две секции и ще бъде завършен в рамките на 24 месеца от стартиране на строителните дейности. Може да избирате между студиа, двустайни и тристайни апартаменти.
Технически характеристики на сградата:
Осигурено 100% паркиране:
Комплексът ще бъде ситуиран в район с изградена инфраструктура, удобен градски транспорт, детски градини, училища и търговски център.
План на строителството:
Схема на плащане:
За повече информация, моля свържете се с отговорния брокер по офертата.
Имотът е разположен на 4-ти етаж в шестетажна сграда и е с обща площ от 101.27 кв.м (нетна площ - 84.70 кв.м + общи части - 16.57 кв.м).
БЕЗ КОМИСИОНА ОТ КУПУВАЧА!
Новият жилищен проект в кв. Остромила, се намира на тихо място, в район с модерно строителство. Първият етап на строителство включва изграждането на две секции и ще бъде завършен в рамките на 24 месеца от стартиране на строителните дейности. Може да избирате между студиа, двустайни и тристайни апартаменти.
Технически характеристики на сградата:
- монолитна стоманобетонна конструкция;
- външни стени - керамични тухли WIENERBERGER;
- PVC дограма с троен стъклопакет 4 сезона;
- шпакловка и замазка;
- топлоизолация;
- ВиК до тапа;
- ел. инсталация до ключ;
- окабеляване за интернет;
- отопление на климатици;
- блиндирана входна врата;
- хидравлични асансьори;
- иновативна фасада със система за вентилация.
Осигурено 100% паркиране:
- единичен гараж - 12000 евро;
- двоен гараж - 20000 евро;
- подземно паркомясто - 7000 евро;
- надземно паркомясто - 6000 евро.
Комплексът ще бъде ситуиран в район с изградена инфраструктура, удобен градски транспорт, детски градини, училища и търговски център.
План на строителството:
- старт на строителството - 11.2022 г.;
- достигане на груб строеж - 11.2023 г.;
- дата на завършване - 11.2025 г.
Схема на плащане:
- резервация - 1000 eвро;
- при подписване на предварителен договор - 30%;
- преди Акт 14 - 20%;
- Aкт 14 - 20%;
- Акт 15 - 30%.
За повече информация, моля свържете се с отговорния брокер по офертата.
Виж текста на други езици (автоматичен превод)
Местоположение (приблизително)
На картата с червен маркер е указано приблизителното местоположение на имота/комплекса.
Имоти по тип, Пловдив
- Тристайни апартаменти в Пловдив
- Двустайни апартаменти в Пловдив
- Апартаменти (различни типове) в Пловдив
- Четиристайни апартаменти в Пловдив
- Къщи в Пловдив
- Едностайни апартаменти в Пловдив
- Магазини в Пловдив
- Земеделски земи в Пловдив
- Парцели за инвестиция в Пловдив
- Промишлени парцели в Пловдив
Популярни търсения
- Селски къщи в България
- Имоти за продажба в Пловдив
- Имоти в Пловдив
- Имоти под наем в Пловдив
- Тристайни апартаменти за продажба в Пловдив
- Двустайни апартаменти за продажба в Пловдив
- Къщи за продажба в Пловдив
- Имоти за продажба в кв.Център, Пловдив
- Едностайни апартаменти за продажба в Пловдив
- Имоти за продажба в кв.Христо Смирненски, Пловдив

