
Етажност на сградата
6
Етаж
6
Асансьор
да
Стаи
3
Спални
2
Бани
1
Балкони (тераси) бр.:
2

Обща площ
131.10 м²
Застроена площ
113.76 м²
Общи части
17.34 м²

Запитване за повече информация или оглед
Инфо пакет
Състояние
БДС (на шпакловка и замазка)
Обзавеждане
Отопление
Парно на газ
Прозорци
PVC дограма
Разстояния
Последна актуализация
23.08.2024 г.
Разстояния от имота до други важни обекти
- Център на града: 7 км
- Sofia (SOF): 20 км
Строителство
- Тухла
Отопление
- Парно на газ
Административна информация за офертата
ГАЗИФИКАЦИЯ, ЕЛЕКТРИЧЕСТВО
- Газификация
- Електричество
ВОДОСНАБДЯВАНЕ
- Водоснабдяване
АСАНСЬОРИ
- автоматични врати
ВИД НА ОБЩИТЕ ЧАСТИ
- стени/боядисани с латекс
САНИТАРНИ И СПОМАГАТЕЛНИ ПОМЕЩЕНИЯ
- Балкон
ИЗОЛАЦИИ И ДОВЪРШИТЕЛНИ РАБОТИ
- PVC дограма
- На шпакловка и замазка
- Троен стъклопакет
- Тухлени стени
Представяме тристаен апартамент в нова жилищна сграда с качествени имоти ново строителство, разположена в развиващия се квартал "Манастирски ливади - изток".
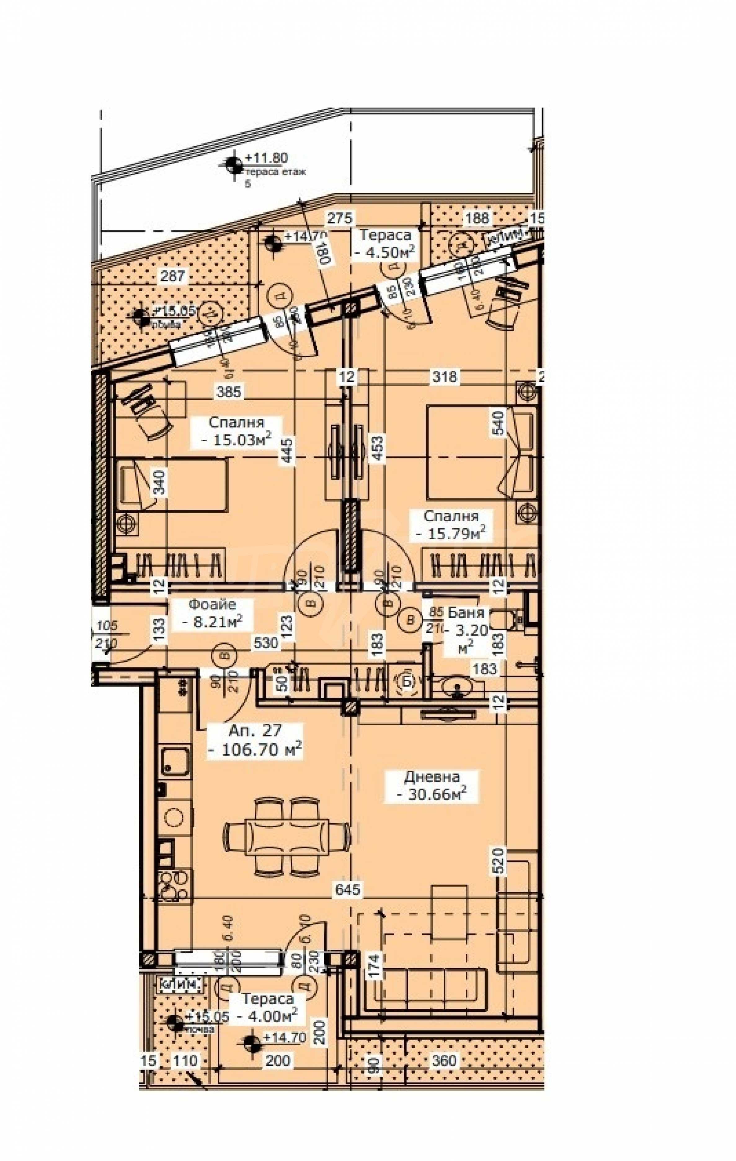
Жилището е разположено на 6-и последен етаж и предлага 131.10 кв.м обща площ със следното функционално разпределение: антре, всекидневна с кухненски бокс, баня с тоалетна, две спални и две тераси.
Има възможност за закупуване на открити паркоместа, подземни паркоместа и избени помещения.
Старт на строителството - юни 2022 г. Срок на завършване - 20 месеца.
Местоположението предлага спокойна жилищна атмосфера, с бърз достъп до центъра на града посредством бул. "България". В близост на разположение са магазин Lidl, детска градина, училище, магазини, заведения, Bulgaria Mall, спирки на градски транспорт и Южен парк.
Сградата е с РЗП 6 500 кв.м, разпределена в два входа по 6 етажа. Има избор от тристайни и четиристайни апартаменти за продажба, с просторни помещения и функционални разпределения. Отоплението е на газ.
Характеристики:
За професионална консултация, моля свържете се с отговорния брокер по офертата.
Жилището е разположено на 6-и последен етаж и предлага 131.10 кв.м обща площ със следното функционално разпределение: антре, всекидневна с кухненски бокс, баня с тоалетна, две спални и две тераси.
Има възможност за закупуване на открити паркоместа, подземни паркоместа и избени помещения.
Старт на строителството - юни 2022 г. Срок на завършване - 20 месеца.
Местоположението предлага спокойна жилищна атмосфера, с бърз достъп до центъра на града посредством бул. "България". В близост на разположение са магазин Lidl, детска градина, училище, магазини, заведения, Bulgaria Mall, спирки на градски транспорт и Южен парк.
Сградата е с РЗП 6 500 кв.м, разпределена в два входа по 6 етажа. Има избор от тристайни и четиристайни апартаменти за продажба, с просторни помещения и функционални разпределения. Отоплението е на газ.
Характеристики:
- стени и тавани с гипсова мазилка, подове с циментова мазилка;
- PVC дограма – шесткамерен профил, с троен стъклопакет – по проект;
- блиндирана входна врата с патронна брава.
- стени в баните и тоалетните с варова мазилка;
- общи части с латексово боядисване, стъпала от гранит и иноксови или други ажурни парапети;
- фасада с топлоизолация и полимерна силикатна мазилка, парапети – плътни и/или ажурни;
- под на тераси и балкони с гранитогрес;
- отоплителна инсталация – тапи, по проект;
- ВиК инсталации – изцяло изградени с полипропиленови водопроводни тръби по проект - до тапа, канализационни разводки, изградени външни връзки към уличните водопровод и канал.
- ел. инсталация – апартаментно електрическо табло, инсталация за телефон, домофон и за кабелна телевизия, звънчева и заземителна инсталации, изградени външни връзки с главно разпределително табло.
За професионална консултация, моля свържете се с отговорния брокер по офертата.
Виж текста на други езици (автоматичен превод)
Местоположение
(приблизително)
На картата с червен маркер е указано приблизителното местоположение на имота/комплекса.
Популярни търсения
- Селски къщи в България
- Имоти за продажба в София
- Имоти в София
- Имоти под наем в София
- Тристайни апартаменти за продажба в София
- Къщи за продажба в София
- Двустайни апартаменти за продажба в София
- Апартаменти (различни типове) за продажба в София
- Едностайни апартаменти за продажба в София
- Двустайни апартаменти в София