REF#VAR-103613 / Къща / кв. м-т Евксиноград / гр. Варна / Варненска област / България / Продажба На картата
Етажност на сградата
3
Стаи
4
Спални
3
Бани
3
Паркоместа на открито
2
Гаражи
2
Площ на балконите (терасите)
58 м²
Мазе/склад
да
Мазе (площ)
15 м²

Площ на сградата
446 м²
Тераса
58 м²
Площ на парцела
415 м²
Запитване за повече информация или оглед
Инфо пакет
Състояние
БДС (на шпакловка и замазка)
Обзавеждане
Необзаведен
Разстояния
Последна актуализация
30.03.2026 г.
Разстояния от имота до други важни обекти
- Varna (VAR): 17 км
Административна информация за офертата
Изберете модерен лукс и гледка към морския залив!
Представяме къща на три нива, модерно ново строителство, за продажба в престижен морски район на Варна - \"Евксиноград\".
Имотът е в процес на строителство. Акт 15 се очаква през декември 2022 г., а въвеждане в експлоатация - в първата половина на 2023 г., степента на завършеност - БДС.
Къщата е изцяло ориентирана на юг и предлага панорама море. Около имота е предвиден озеленен двор за индивидуално ползване, отделен с жив плет. Прилежащият двор е с площ около 400 кв.м, от които 200 кв.м - незастроени. Освен двойния гараж са предвидени и два броя открити паркоместа.
Имотът е с разгърната застроена площ от 446 кв.м.
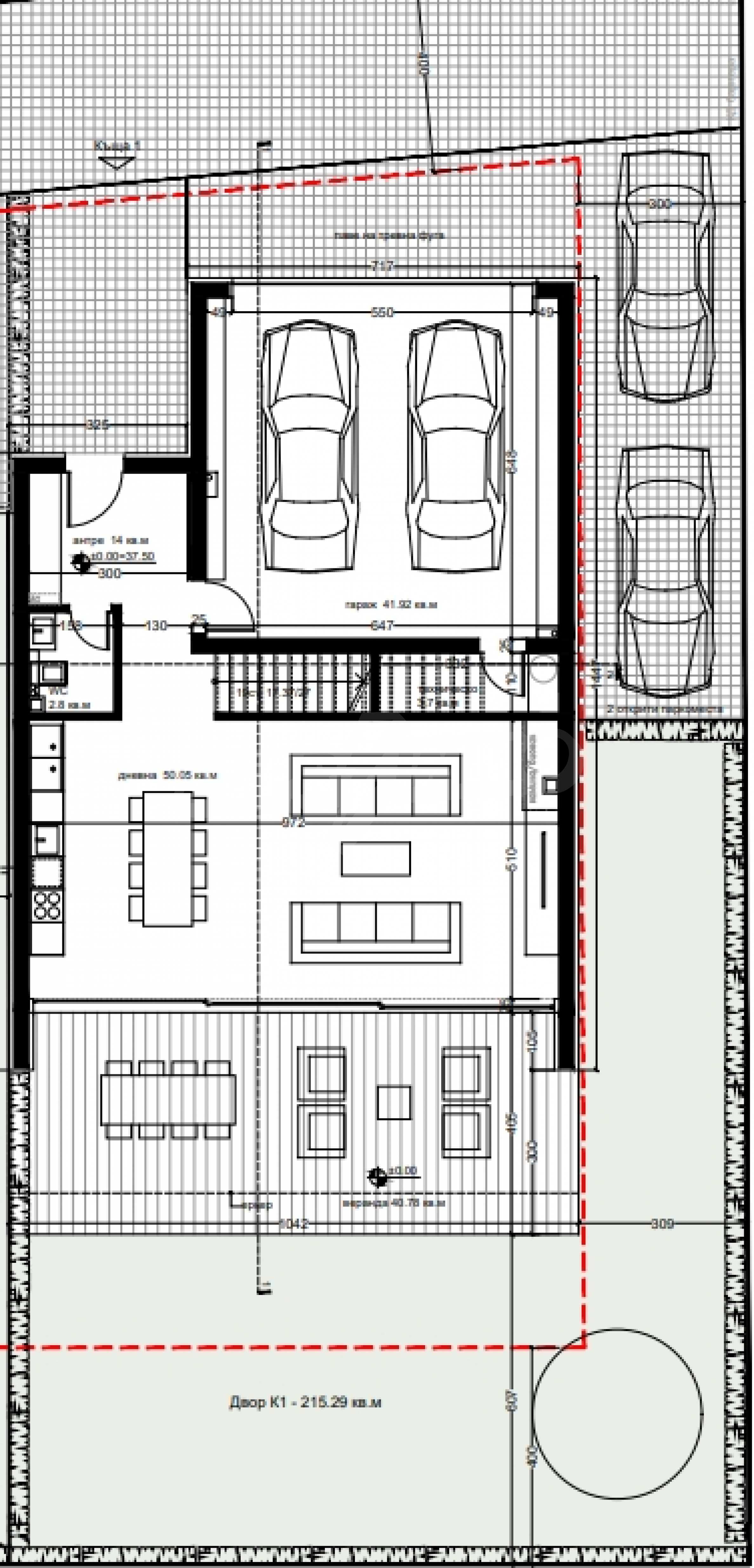
На първи етаж са разположени:
Конструктивна височина на етажа 3.30 м, светла височина - 2.95 м, застроената площ - 130.38 кв.м.
Втори етаж - кота +3.30
Конструктивна височина на етажа 3.10 м, светла височина - 2.75 м, застроената площ - 163.82 кв.м.
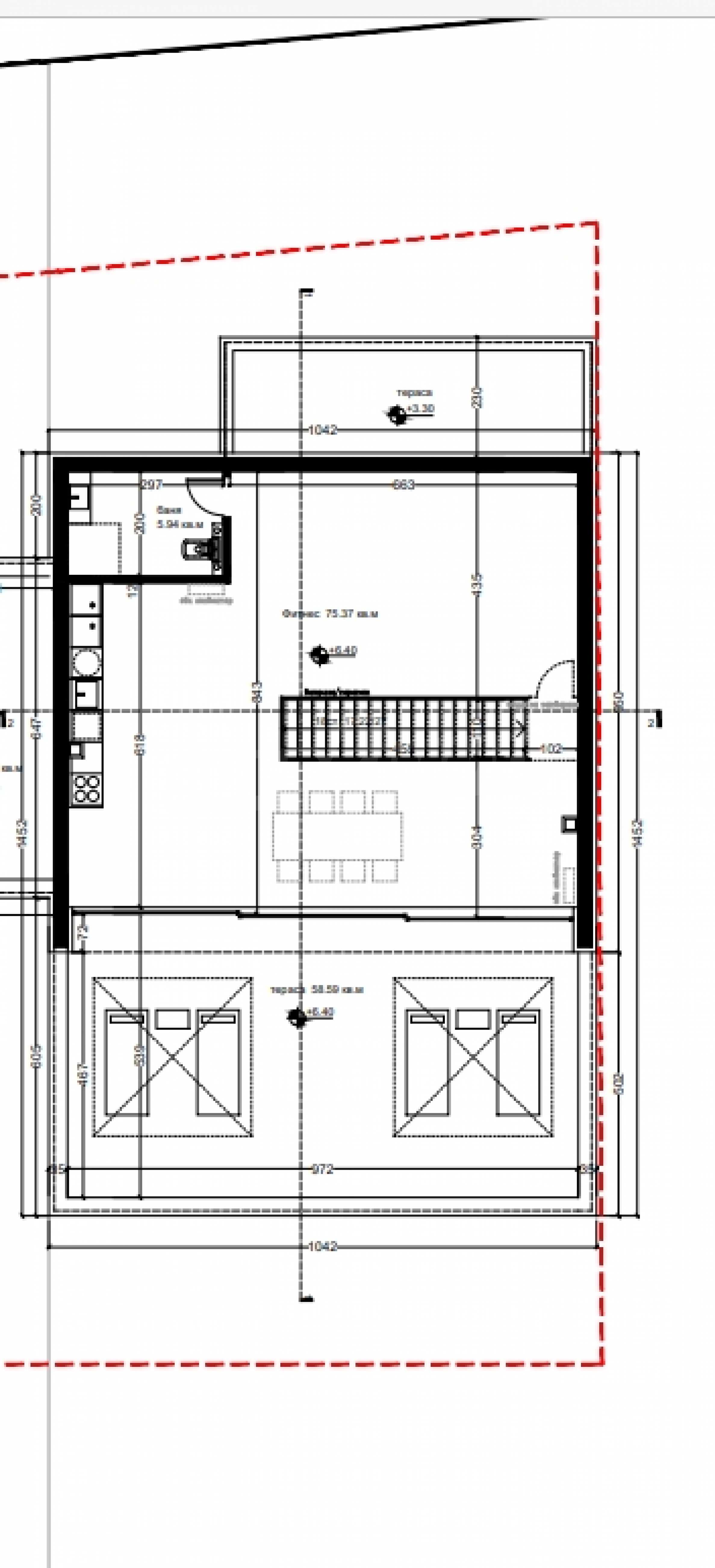
Трети етаж - кота +6.40
Конструктивна височина на етажа - 3.10 м, светла височина - 2.75 м, застроената площ на третия етаж е 151.3 кв.м.
Посочените площи на помещенията по-горе са чисти, използваеми.
Посочената цена е без ДДС.
Свържете се с нас за оглед!
Представяме къща на три нива, модерно ново строителство, за продажба в престижен морски район на Варна - \"Евксиноград\".
Имотът е в процес на строителство. Акт 15 се очаква през декември 2022 г., а въвеждане в експлоатация - в първата половина на 2023 г., степента на завършеност - БДС.
Къщата е изцяло ориентирана на юг и предлага панорама море. Около имота е предвиден озеленен двор за индивидуално ползване, отделен с жив плет. Прилежащият двор е с площ около 400 кв.м, от които 200 кв.м - незастроени. Освен двойния гараж са предвидени и два броя открити паркоместа.
Имотът е с разгърната застроена площ от 446 кв.м.
На първи етаж са разположени:
- дневна 50.05 кв.м;
- входно антре - 14 кв.м;
- гараж - 41.92 кв.м;
- тоалетна 2.8 кв.м и техническо помещение 3.65 кв.м.
Конструктивна височина на етажа 3.30 м, светла височина - 2.95 м, застроената площ - 130.38 кв.м.
Втори етаж - кота +3.30
- спалня - 25.23 кв.м с баня 9.26 кв.м;
- баня - 8.05 кв.м;
- коридор - 14.96 кв.м;
- детска стая 1 - 17.54 кв.м;
- детска стая 2 - 17.69 кв.м.
Конструктивна височина на етажа 3.10 м, светла височина - 2.75 м, застроената площ - 163.82 кв.м.
Трети етаж - кота +6.40
- фитнес 75.37 кв.м;
- баня 5.94 кв.м;
- тераса 58.59 кв.м.
Конструктивна височина на етажа - 3.10 м, светла височина - 2.75 м, застроената площ на третия етаж е 151.3 кв.м.
Посочените площи на помещенията по-горе са чисти, използваеми.
Посочената цена е без ДДС.
Свържете се с нас за оглед!
Виж текста на други езици (автоматичен превод)
Местоположение (приблизително)
На картата с червен маркер е указано приблизителното местоположение на имота/комплекса.
Нашите топ оферти за продажба във Варна, България


