Етажност на сградата
7
Етаж
2
Асансьор
да
Стаи
2
Спални
1
Бани
1
Балкони (тераси) бр.:
1
Мазе/склад
да
Мазе (площ)
2.88 м²

Обща площ
65.25 м²
Застроена площ
57.38 м²
Общи части
7.87 м²
Състояние
В процес на строителство
Планирано завършване
Март 2026
Запитване за повече информация или оглед
Инфо пакет
Разстояния
Последна актуализация
13.03.2026 г.
Разстояния от имота до други важни обекти
- Център на града: 3.8 км
- Plovdiv (PDV): 16.7 км
Гледки от имота
- Гледка към града
Строителство
- Стоманобетонна конструкция
- Тухла
Отопление
- ТЕЦ
Административна информация за офертата
ГАЗИФИКАЦИЯ, ЕЛЕКТРИЧЕСТВО
- Електричество
ВОДОСНАБДЯВАНЕ
- Вода
- Водоснабдяване
КАНАЛИЗАЦИЯ
- Канализация
САНИТАРНИ И СПОМАГАТЕЛНИ ПОМЕЩЕНИЯ
- Балкон
- Баня с тоалетна
ИЗОЛАЦИИ И ДОВЪРШИТЕЛНИ РАБОТИ
- Алуминиева дограма
- На шпакловка и замазка
ЕКСТРИ В СГРАДАТА
- Асансьор
- Затворен комплекс
- Луксозни общи части
ДВОР И ГРАДИНА
- Двор
- Поддържан двор
- Цветна градина
ДРУГИ
- Магазин за хранителни стоки в близост
Представяме двустаен апартамент в новата фаза на популярен жилищен комплекс от затворен тип до Mall Plovdiv и парк Отдих и култура, в кв. "Христо Смирненски".
Сградата е с Акт 14, а Акт 16 се очаква през март 2026 г.
Параметри на имота
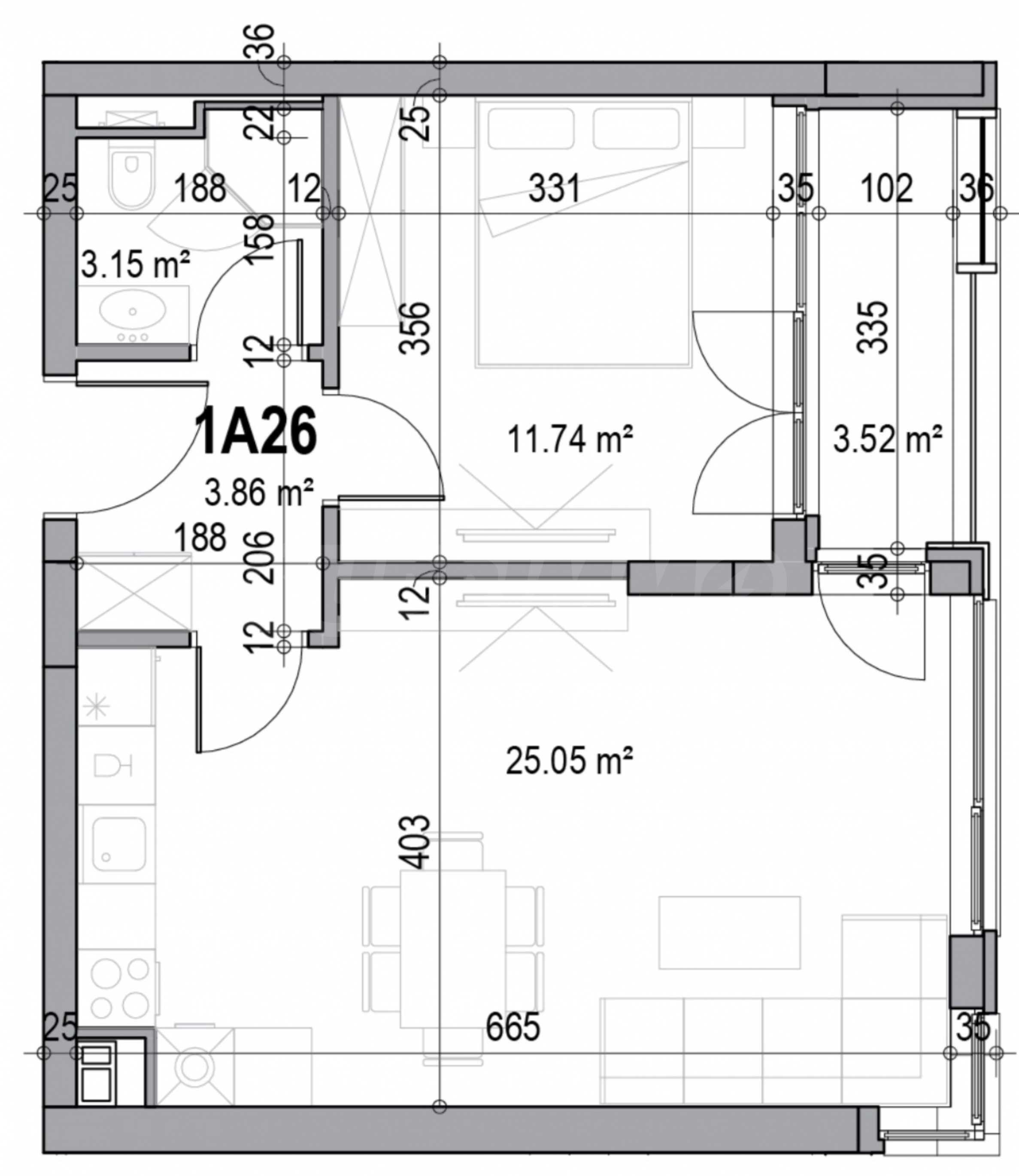
Жилището е разположено на втори етаж, с обща площ от 65.25 кв.м. Впечатлява с оптимално разпределение, което осигурява комфорт, функционалност и приятна жилищна среда. Ориентирано е изток–север, което гарантира равномерна и мека естествена светлина. Светлата височина от 2.80 м допринася за усещане за простор, въздух и свобода във всяко помещение.
Разпределение:
• просторна дневна зона;
• самостоятелна спалня;
• санитарно помещение;
• тераса.
Комплексът впечатлява с архитектурната концепция, подчертана чрез индивидуални елементи, стъпаловидни тераси и фасади в светли натурални тонове. Състои от две сгради, всяка със седем жилищни етажа, разполагащи с разнообразие от функционално разпределени апартаменти, както и представителни фоайети с височина 6 м.
В строителството са вложени висококачествени материали, гарантиращи устойчивост и комфорт:
• скелетно–безгредова конструкция, плоски покриви, монолитно изпълнение;
• ефективна топлоизолация и шумоизолация в пода;
• алуминиева дограма;
• отопление на ТЕЦ с опция за индивидуални бойлери;
• окабеляване за "умен дом";
• системи за пречистване на питейната вода и защита от наводнения;
• вентилируема HPL фасада на последните два етажа.
За повече информация, моля свържете се с нас.
Сградата е с Акт 14, а Акт 16 се очаква през март 2026 г.
Параметри на имота
Жилището е разположено на втори етаж, с обща площ от 65.25 кв.м. Впечатлява с оптимално разпределение, което осигурява комфорт, функционалност и приятна жилищна среда. Ориентирано е изток–север, което гарантира равномерна и мека естествена светлина. Светлата височина от 2.80 м допринася за усещане за простор, въздух и свобода във всяко помещение.
Разпределение:
• просторна дневна зона;
• самостоятелна спалня;
• санитарно помещение;
• тераса.
Комплексът впечатлява с архитектурната концепция, подчертана чрез индивидуални елементи, стъпаловидни тераси и фасади в светли натурални тонове. Състои от две сгради, всяка със седем жилищни етажа, разполагащи с разнообразие от функционално разпределени апартаменти, както и представителни фоайети с височина 6 м.
В строителството са вложени висококачествени материали, гарантиращи устойчивост и комфорт:
• скелетно–безгредова конструкция, плоски покриви, монолитно изпълнение;
• ефективна топлоизолация и шумоизолация в пода;
• алуминиева дограма;
• отопление на ТЕЦ с опция за индивидуални бойлери;
• окабеляване за "умен дом";
• системи за пречистване на питейната вода и защита от наводнения;
• вентилируема HPL фасада на последните два етажа.
За повече информация, моля свържете се с нас.
Виж текста на други езици (автоматичен превод)
Местоположение (абсолютно точно)
Това е абсолютно точното местоположение на имота/комплекса. Можете да увеличите или намалите мащаба на картата, както и да се движите по нея, използвайки мишката или контролите, разположени върху самата карта.
Нашите топ оферти за продажба в Пловдив, България
Имоти по тип, Пловдив
- Тристайни апартаменти в Пловдив
- Двустайни апартаменти в Пловдив
- Апартаменти (различни типове) в Пловдив
- Четиристайни апартаменти в Пловдив
- Къщи в Пловдив
- Едностайни апартаменти в Пловдив
- Магазини в Пловдив
- Парцели в регулация в Пловдив
- Земеделски земи в Пловдив
- Петстайни апартаменти в Пловдив
Популярни търсения
- Селски къщи в България
- Имоти за продажба в Пловдив
- Имоти в Пловдив
- Имоти под наем в Пловдив
- Тристайни апартаменти за продажба в Пловдив
- Двустайни апартаменти за продажба в Пловдив
- Къщи за продажба в Пловдив
- Имоти за продажба в кв.Център, Пловдив
- Едностайни апартаменти за продажба в Пловдив
- Имоти за продажба в кв.Христо Смирненски, Пловдив


