Етажност на сградата
5
Етаж
4
Асансьор
да
Стаи
2
Спални
1
Бани
1
Балкони (тераси) бр.:
1

Обща площ
79.03 м²
Застроена площ
66.15 м²
Общи части
12.88 м²
Състояние
В процес на строителство
Планирано завършване
Януари 2026

Запитване за повече информация или оглед
Инфо пакет
Разстояния
Последна актуализация
13.01.2026 г.
Разстояния от имота до други важни обекти
- Планински лифт: 6 км
- Център на града: 9 км
- Sofia (SOF): 10 км
- Спирка: 1 км
- ЖП гара: 8 км
- Болница: 1 км
- Училище: 5 км
Строителство
- Тухла
Административна информация за офертата
ГАЗИФИКАЦИЯ, ЕЛЕКТРИЧЕСТВО
- Електричество
ВОДОСНАБДЯВАНЕ
- Водоснабдяване
АСАНСЬОРИ
- автоматични врати
КАНАЛИЗАЦИЯ
- Канализация
ФАСАДА
- външна изолация
- декоративни фасадни елементи
- тухли
ПОКРИВ
- плосък покрив
САНИТАРНИ И СПОМАГАТЕЛНИ ПОМЕЩЕНИЯ
- Балкони
- Баня с тоалетна
- Гараж
- Паркинг
- Паркомясто
- Подземен гараж
ИЗОЛАЦИИ И ДОВЪРШИТЕЛНИ РАБОТИ
- Масивни стени
- На шпакловка и замазка
ДОСТЪП ДО ИМОТА И ТЕЛЕКОМУНИКАЦИИ
- Wi-Fi интернет
- Асфалтиран път
- Интернет
- Кабелна телевизия
ДРУГИ
- Магазин за хранителни стоки в близост
Представяме двустаен апартамент за продажба, в нова жилищна сграда с модерна фасада и удобна локация в кв. "Малинова долина", гр. София.
Локация
"Малинова долина" е нов квартал в София, който се развива с бързи темпове и в близко бъдеще ще стане един от най-хубавите и предпочитани за живеене райони, заради чистия въздух, планинските гледки към Витоша и изграждащата се инфраструктура – нови нискоетажни жилищни сгради, нови улици, връзка с Околовръстен път посредством бул. "Проф. Крикор Азарян" и отредени парцели за училище и детска градина. Локацията на комплекса е удобна, на 7 мин пешеходно разстояние от Национална Спортна Академия и многобройните удобства на Студентски град.
Параметри
Жилището е с източно изложение.
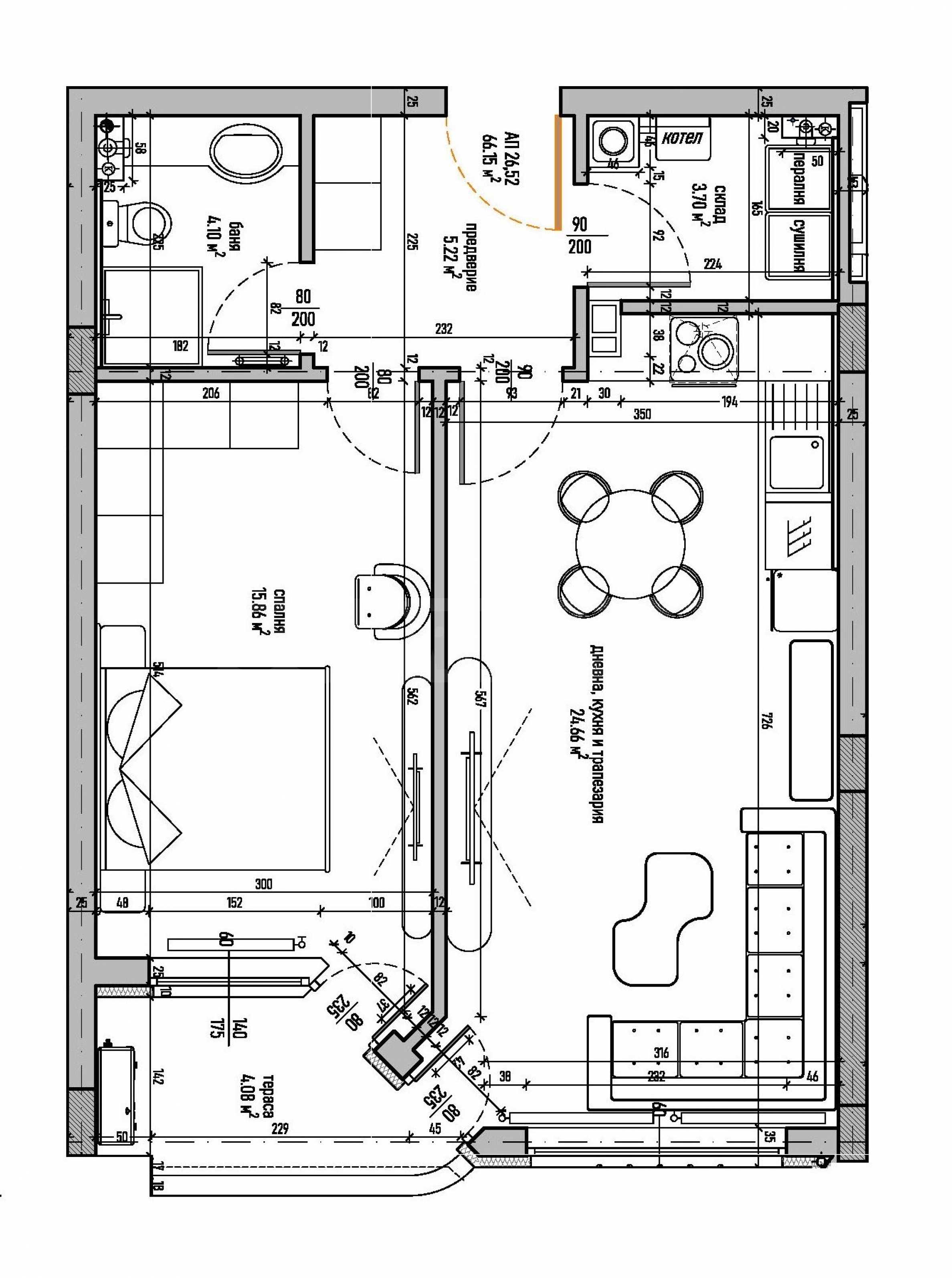
Апартаментът е разположен на 4-ти етаж и предлага площ от 79.03 кв.м, функционално разпределена във входно антре, склад, всекидневна с кухненска част и трапезария, спалня, баня с тоалетна, тераса.
Получен Акт 15. Планирано завършване - 11.2025 г.
В строителството ще бъдат заложени материали и технологии от най-висок клас. Архитектурната визия е модерна, в бели и тъмносиви цветове, с декоративни елементи, наподобяващи дърво. Общите части ще са луксозни, с висококачествен асансьор.
Отоплението е на ТЕЦ.
Сградата се състои от четири входа с 6 надземни нива, в които е включен партерен етаж. Има избор от двустайни и тристайни имоти, които са функционално проектирани, с максимално просторни помещения. Жилищата на партерно ниво разполагат със собствен двор. Паркирането е решено с паркоместа и гаражи, разположени на две подземни нива.
Апартаментите се предлагат по БДС.
Има възможност за закупуване на гаражи на цени от:
За допълнителна информация и професионална консултация, моля свържете се с отговорния брокер по офертата!
Локация
"Малинова долина" е нов квартал в София, който се развива с бързи темпове и в близко бъдеще ще стане един от най-хубавите и предпочитани за живеене райони, заради чистия въздух, планинските гледки към Витоша и изграждащата се инфраструктура – нови нискоетажни жилищни сгради, нови улици, връзка с Околовръстен път посредством бул. "Проф. Крикор Азарян" и отредени парцели за училище и детска градина. Локацията на комплекса е удобна, на 7 мин пешеходно разстояние от Национална Спортна Академия и многобройните удобства на Студентски град.
Параметри
Жилището е с източно изложение.
Апартаментът е разположен на 4-ти етаж и предлага площ от 79.03 кв.м, функционално разпределена във входно антре, склад, всекидневна с кухненска част и трапезария, спалня, баня с тоалетна, тераса.
Получен Акт 15. Планирано завършване - 11.2025 г.
В строителството ще бъдат заложени материали и технологии от най-висок клас. Архитектурната визия е модерна, в бели и тъмносиви цветове, с декоративни елементи, наподобяващи дърво. Общите части ще са луксозни, с висококачествен асансьор.
Отоплението е на ТЕЦ.
Сградата се състои от четири входа с 6 надземни нива, в които е включен партерен етаж. Има избор от двустайни и тристайни имоти, които са функционално проектирани, с максимално просторни помещения. Жилищата на партерно ниво разполагат със собствен двор. Паркирането е решено с паркоместа и гаражи, разположени на две подземни нива.
Апартаментите се предлагат по БДС.
Има възможност за закупуване на гаражи на цени от:
- Гараж - 19 000 евро;
- Двоен гараж - 38 000 евро;
- Двоен гараж (един зад друг) - 35 000 евро.
За допълнителна информация и професионална консултация, моля свържете се с отговорния брокер по офертата!
Виж текста на други езици (автоматичен превод)
Местоположение (приблизително)
На картата с червен маркер е указано приблизителното местоположение на имота/комплекса.
Популярни търсения
- Селски къщи в България
- Имоти за продажба в София
- Имоти в София
- Имоти под наем в София
- Тристайни апартаменти за продажба в София
- Къщи за продажба в София
- Двустайни апартаменти за продажба в София
- Апартаменти (различни типове) за продажба в София
- Едностайни апартаменти за продажба в София
- Двустайни апартаменти в София

