Етажност на сградата
3
Етаж
2
Асансьор
да
Стаи
3
Спални
2
Бани
2
Балкони (тераси) бр.:
1

Обща площ
112.98 м²
Застроена площ
98.98 м²
Общи части
14 м²
Получен Акт 16

Запитване за повече информация или оглед
Инфо пакет
Състояние
БДС (на шпакловка и замазка)
Обзавеждане
Отопление
Климатици / Парно на газ / Подово отопление
Климатик
Климатици инверторни
Разстояния
Последна актуализация
09.09.2025 г.
Разстояния от имота до други важни обекти
- Sofia (SOF): 15 км
Гледки от имота
- Гледка към града
- Гледка към планината
Строителство
- Стоманобетонна конструкция
- Тухла
Отопление
- Климатици
- Парно на газ
- Подово отопление
Климатизация
- Климатици инверторни
Административна информация за офертата
ГАЗИФИКАЦИЯ, ЕЛЕКТРИЧЕСТВО
- Газификация
- Електричество
ВОДОСНАБДЯВАНЕ
- Водоснабдяване
АСАНСЬОРИ
- луксозни асансьори
КАНАЛИЗАЦИЯ
- Канализация
ФАСАДА
- вентилируема фасада
- еталбонд (алуминиеви панели)
ВИД НА ОБЩИТЕ ЧАСТИ
- гранитогресни плочки
ПОКРИВ
- плосък покрив
САНИТАРНИ И СПОМАГАТЕЛНИ ПОМЕЩЕНИЯ
- Балкони
- Баня с тоалетна
- Вътрешна баня
- Вътрешна тоалетна
- Вътрешно стълбище
- Гараж
- Паркинг
- Паркомясто
ИЗОЛАЦИИ И ДОВЪРШИТЕЛНИ РАБОТИ
- PVC дограма
- Троен стъклопакет
ЕКСТРИ В СГРАДАТА
- Асансьор
- Луксозни общи части
ДВОР И ГРАДИНА
- Двор
ДОСТЪП ДО ИМОТА И ТЕЛЕКОМУНИКАЦИИ
- Wi-Fi интернет
- Асфалтиран път
- Вътрешно окабеляване аудио и видео система
- Интернет
- Кабелна телевизия
- Сателитна телевизия
- СОТ
ДРУГИ
- Магазин за хранителни стоки в близост
Представяме апартамент в модерен комплекс ново строителство в квартал „Драгалевци“. Комплексът е е разположена в непосредствена близост до бул. „Черни връх“, с бърз достъп до Околовръстен път, на метри от комплекс „Царско село“ и училище „Британика“.
Нов модерен и луксозно завършен комплекс, състоящ се от 3 малки бутикови жилищни сгради, разположени в просторен озеленен двор. Общият брой на апартаментите е 42 - студиа, двустайни и тристайни апартаменти с площ от 44 кв. м. до 112 кв. м. Целият комплекс е южно ориентиран, с красиви гледки към Витоша и София. Сутеренът е решен с гаражи с достъп чрез рампа.
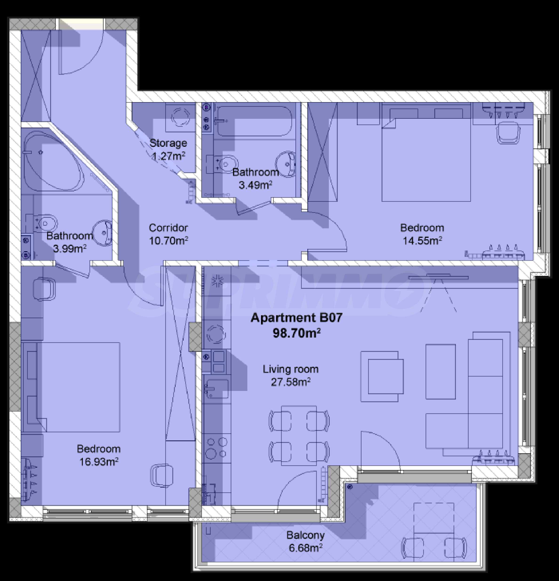
Апартаментът е тристаен, с обща площ 112.98 кв.м (нетна площ 98.70 кв.м + общи части 14.00 кв.м) и е разположен на втори етаж в сграда Б.
Разпределение:
Жилището се предлага за продажба качествено завършено по БДС, на шпакловка и замазка.
Проектът се изпълнен с висококачествени материали, по европейски стандарт от строителна фирма с авторитет в бранша.
Технически характеристики:
Нов модерен и луксозно завършен комплекс, състоящ се от 3 малки бутикови жилищни сгради, разположени в просторен озеленен двор. Общият брой на апартаментите е 42 - студиа, двустайни и тристайни апартаменти с площ от 44 кв. м. до 112 кв. м. Целият комплекс е южно ориентиран, с красиви гледки към Витоша и София. Сутеренът е решен с гаражи с достъп чрез рампа.
Апартаментът е тристаен, с обща площ 112.98 кв.м (нетна площ 98.70 кв.м + общи части 14.00 кв.м) и е разположен на втори етаж в сграда Б.
Разпределение:
- коридор;
- дневна с кухня и трапезария;
- две спални;
- две бани с тоалетни;
- тераса;
- килер.
Жилището се предлага за продажба качествено завършено по БДС, на шпакловка и замазка.
Проектът се изпълнен с висококачествени материали, по европейски стандарт от строителна фирма с авторитет в бранша.
Технически характеристики:
- Фасада - вентилируема HPL (бял, оранжев, зелен, жълт и дървесен цвят) и еталболд (сиво);
- Стъклени парапети по терасите с черна ръкохватка;
- 7 камерна дограма „Reahau“, троен стъклопакет, всички прозорци се отварят и открехват;
- Изолацията по стените е стъклена вата;
- Зидарията е с тухли „Винерберг“ 25 см и 12 см;
- Всяка сграда разполага с отделно пречиствателно съоръжение;
- Асансьорите са „Шиндлер“ и стигат до подземните гаражи;
- Отоплението е подово на отделни кръгове (могат да се отопляват стаите поотделно);
- Има монтирани климатици „Kaisai“, по система мултисплит (едно общо, външно тяло, което еизнесено на стойки на всяка малка тераса);
- Вътрешни тела има във всяка спалня и кухня/хол;
- Има пуснати подаваща и връщащи тръби между мястото за газов котел и мястото за бойлер (това дава възможност водата за апартамента да се отоплява на газ от котела и на ток от бойлера);
- Сервизно помещение на партерния етаж;
- Подгрев на рампата;
- Видео-домофонна система;
- Вратите са на „Солид“ отключват се с пръстов отпечатък,чип или ключ;
- Отоплението е подово, на газ, като има и монтирани климатици във всяка стая.
Виж текста на други езици (автоматичен превод)
Местоположение (приблизително)
На картата с червен маркер е указано приблизителното местоположение на имота/комплекса.
Популярни търсения
- Селски къщи в България
- Имоти за продажба в София
- Имоти в София
- Имоти под наем в София
- Тристайни апартаменти за продажба в София
- Къщи за продажба в София
- Двустайни апартаменти за продажба в София
- Апартаменти (различни типове) за продажба в София
- Едностайни апартаменти за продажба в София
- Двустайни апартаменти в София

