Етажност на сградата
8
Етаж
1
Асансьор
да
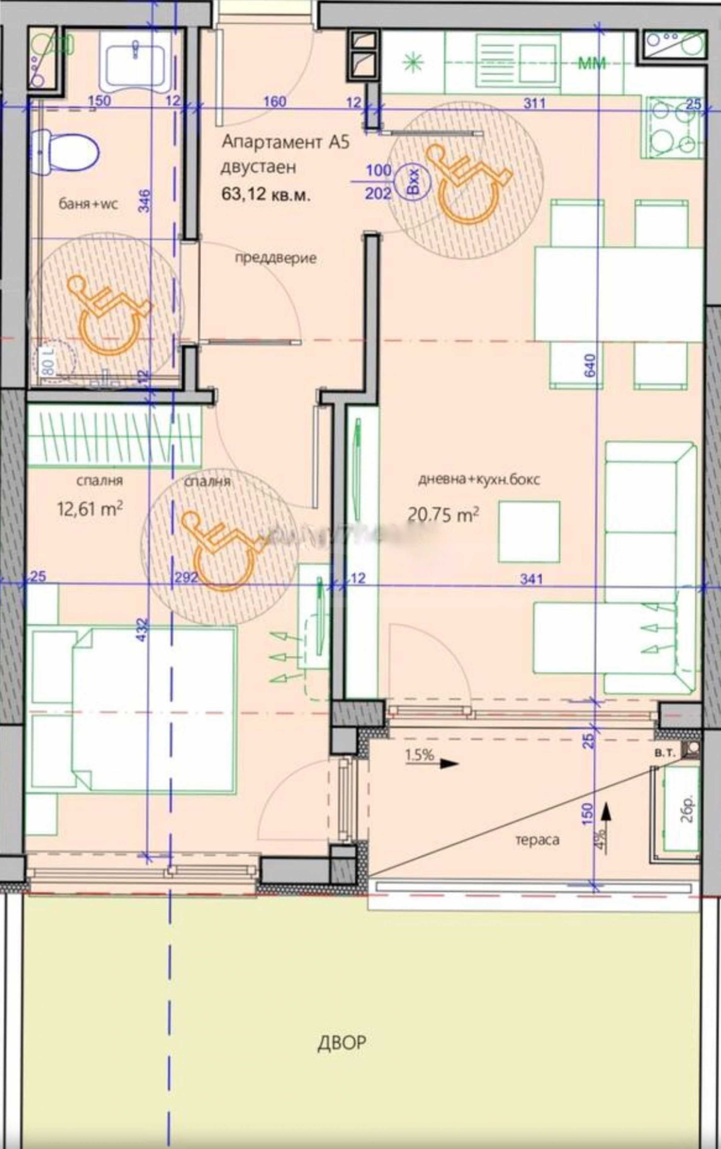
Стаи
2
Спални
1
Бани
1
Балкони (тераси) бр.:
1

Обща площ
63.07 м²
Застроена площ
56.05 м²
Общи части
7.02 м²
Запитване за повече информация или оглед
Инфо пакет
Разстояния
Последна актуализация
11.06.2025 г.
Разстояния от имота до други важни обекти
- Морето: 8 км
- Център на града: 8 км
- Burgas (BOJ): 18 км
Гледки от имота
- Гледка към вътрешен двор
- Гледка към града
- Гледка към езеро
- Гледка към парк
Административна информация за офертата
ИЗОЛАЦИИ И ДОВЪРШИТЕЛНИ РАБОТИ
- PVC дограма
- Външна изолация
- На шпакловка и замазка
ЕКСТРИ В СГРАДАТА
- Асансьор
Представяме за продажба двустаен апартамент в новострояща се многофамилна жилищна сграда в "Меден Рудник", Бургас.
Имотът се намира на 1-ви етаж с изложение юг и изток и с обща площ 63,07 кв. м.
Сградата е 8-етажна с удобна локация в "Меден рудник зона В" в Бургас, в непосредствена близост до новия парк от 16 дка с фитнес и спортен комплекс.
От кота 0 има гледка море
В района до сградата не се предвижда строителството, което позволява обширни гледки към парка, морето и Мандренското езеро.
Сградата се състои от два входа, свободно стояща е, с подземни паркоместа и местата на открито.
Подземните паркоместа са на стойност 7000 евро, а надземните - 3000 евро.
Апартаментите се издават по БДС, с 6 камерна PVC дограма.
Строителството е качествено, с модерна фасада, стените са с термоблокове Wienerberger.
Всеки вход е с испански безшумен асансьор за 8 души - Orona.
На първи етаж са разположени едностайни и двустайни апартаменти със собствен двор.
Има опция за довършителните работи "до ключ".
Свържете се с нас за професионална консултация относно интересуващия Ви тип имот в този модерен комплекс в Бургас!
Имотът се намира на 1-ви етаж с изложение юг и изток и с обща площ 63,07 кв. м.
- Пред Акт 15
- Акт 16 - 20.04.2025 г.
- Студиа, двустайни и тристайни апартаменти, имоти с частен двор, паркоместа.
Сградата е 8-етажна с удобна локация в "Меден рудник зона В" в Бургас, в непосредствена близост до новия парк от 16 дка с фитнес и спортен комплекс.
От кота 0 има гледка море
В района до сградата не се предвижда строителството, което позволява обширни гледки към парка, морето и Мандренското езеро.
Сградата се състои от два входа, свободно стояща е, с подземни паркоместа и местата на открито.
Подземните паркоместа са на стойност 7000 евро, а надземните - 3000 евро.
Апартаментите се издават по БДС, с 6 камерна PVC дограма.
Строителството е качествено, с модерна фасада, стените са с термоблокове Wienerberger.
Всеки вход е с испански безшумен асансьор за 8 души - Orona.
На първи етаж са разположени едностайни и двустайни апартаменти със собствен двор.
Има опция за довършителните работи "до ключ".
Свържете се с нас за професионална консултация относно интересуващия Ви тип имот в този модерен комплекс в Бургас!
Виж текста на други езици (автоматичен превод)
Местоположение (приблизително)
На картата с червен маркер е указано приблизителното местоположение на имота/комплекса.
Имоти по тип, Бургас
- Тристайни апартаменти в Бургас
- Двустайни апартаменти в Бургас
- Апартаменти (различни типове) в Бургас
- Къщи в Бургас
- Парцели за инвестиция в Бургас
- Четиристайни апартаменти в Бургас
- Парцели в регулация в Бургас
- Едностайни апартаменти в Бургас
- Земеделски земи в Бургас
- Многостайни апартаменти в Бургас
Популярни търсения
- Селски къщи в България
- Имоти за продажба в Бургас
- Имоти в Бургас
- Имоти под наем в Бургас
- Къщи за продажба в Бургас
- Двустайни апартаменти за продажба в Бургас
- Имоти в кв.Долно Езерово, Бургас
- Имоти за продажба в кв.Сарафово, Бургас
- Едностайни апартаменти за продажба в Бургас
- Апартаменти (различни типове) за продажба в Бургас


