Етажност на сградата
4
Етаж
4
Мазе
да
Асансьор
да
Стаи
1
Бани
1
Площ на балконите (терасите)
10.56 м²
Балкони (тераси) бр.:
1

Обща площ
33.30 м²
Застроена площ
28.95 м²
Общи части
4.35 м²
Тераса
10.56 м²
Получен Акт 16

Запитване за повече информация или оглед
Инфо пакет
Състояние
БДС (на шпакловка и замазка)
Обзавеждане
Отопление
Климатици
Прозорци
PVC дограма
Разстояния
Последна актуализация
10.10.2025 г.
Разстояния от имота до други важни обекти
- Plovdiv (PDV): 13 км
Гледки от имота
- Гледка към вътрешен двор
- Гледка към гора
- Гледка към парк
- Гледка към планината
- Гледка към хълмове
Строителство
- Стоманобетонна конструкция
- Тухла
Отопление
- Климатици
Административна информация за офертата
ГАЗИФИКАЦИЯ, ЕЛЕКТРИЧЕСТВО
- Електричество
ВОДОСНАБДЯВАНЕ
- Вода
- Водоснабдяване
АСАНСЬОРИ
- автоматични врати
- луксозни асансьори
КАНАЛИЗАЦИЯ
- Канализация
ФАСАДА
- външна изолация
ВИД НА ОБЩИТЕ ЧАСТИ
- гранитогресни плочки
- стени/боядисани с латекс
ПОКРИВ
- плосък покрив
САНИТАРНИ И СПОМАГАТЕЛНИ ПОМЕЩЕНИЯ
- Балкони
- Баня с тоалетна
- Килер
- Мазе
- Открит паркинг
- Паркомясто
ИЗОЛАЦИИ И ДОВЪРШИТЕЛНИ РАБОТИ
- PVC дограма
- Блиндирана входна врата
- Външна изолация
- На шпакловка и замазка
ЕКСТРИ В СГРАДАТА
- Асансьор
- Луксозни общи части
ДВОР И ГРАДИНА
- Поддържан двор
ДОСТЪП ДО ИМОТА И ТЕЛЕКОМУНИКАЦИИ
- Wi-Fi интернет
- Интернет
- Кабелна телевизия
ДРУГИ
- Магазин за хранителни стоки в близост
Представяме студио в нов жилищен комплекс, в южната част на град Пловдив, в кв. "Беломорски".
БЕЗ КОМИСИОНА!
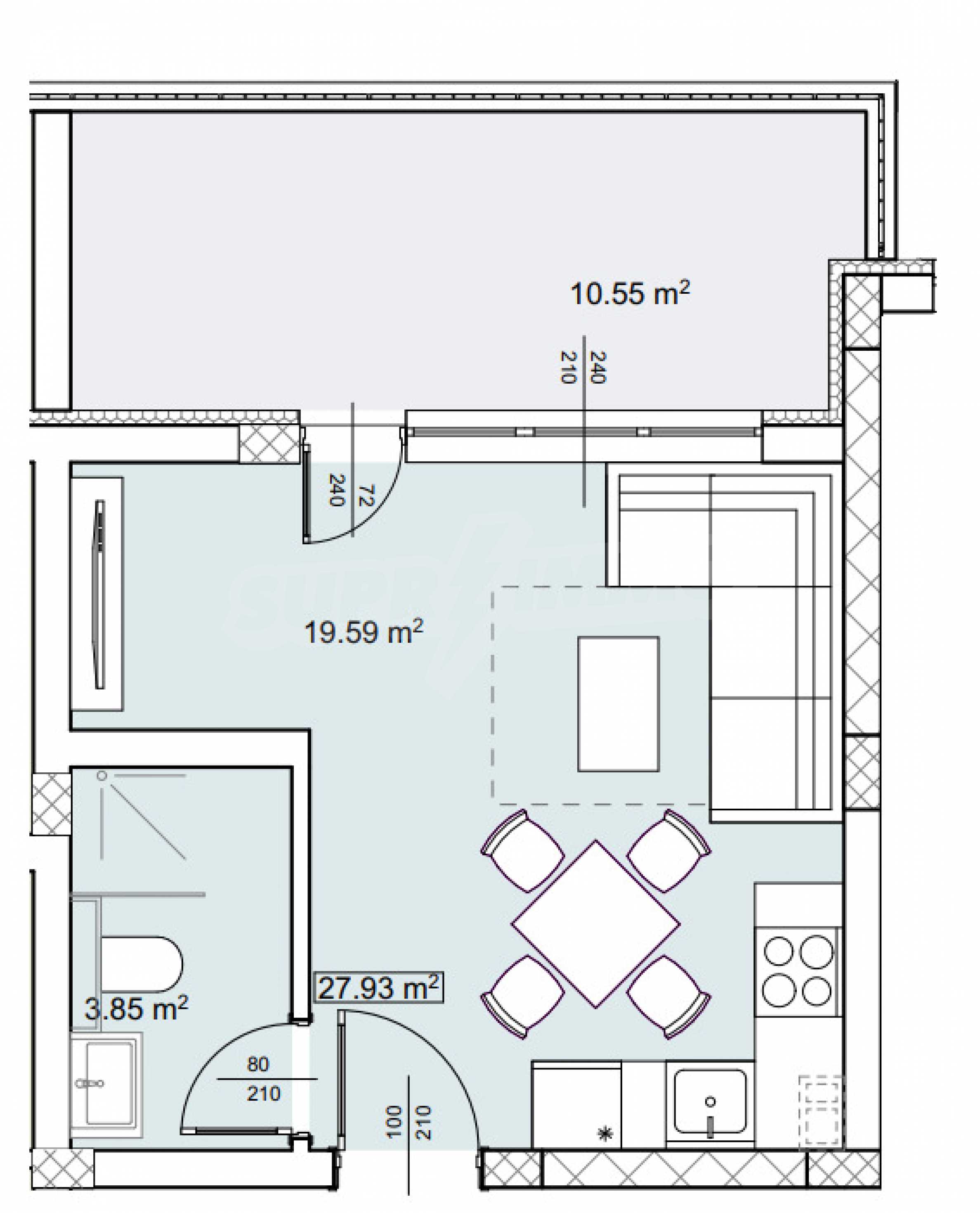
Имотът е с обща площ от 33.30 кв.м (нетна площ - 28.95 кв.м + общи части - 4.35 кв.м) + покривна тераса - 10.56 кв.м и е разположен на 4-ри етаж от 4. Състои се от дневна, баня с тоалетна, килер и тераса.
Кварталът е с нискo застрояване и позволява добра гледка и красива панорама към Родопа планина от всеки апартамент.
Комплексът ще се състои от 47 апартамента, разположени в 2 секции, проектирани в модерен и изчистен архитектурен стил. Прецизно изграждане с висококачествени материали. Предлага студио и апартаменти с 1,2 и 3 спални, както и жилища със собствен двор. Разпределенията са изключително функционални, което прави стаите комфортни и лесни за обзавеждане. На всеки етаж ще има от 5 до 8 апартамента.
Апартаментите се издават с качествено завършване по БДС:
Паркирането е осигурено на 100% с надземни паркоместа и гаражи.
Удобства на територията:
Комплексът ще бъде изграден с контролиран достъп и 24/7 видеонаблюдение.
Схема на плащане:
За повече информация, моля свържете се с нас.
БЕЗ КОМИСИОНА!
Имотът е с обща площ от 33.30 кв.м (нетна площ - 28.95 кв.м + общи части - 4.35 кв.м) + покривна тераса - 10.56 кв.м и е разположен на 4-ри етаж от 4. Състои се от дневна, баня с тоалетна, килер и тераса.
Кварталът е с нискo застрояване и позволява добра гледка и красива панорама към Родопа планина от всеки апартамент.
Комплексът ще се състои от 47 апартамента, разположени в 2 секции, проектирани в модерен и изчистен архитектурен стил. Прецизно изграждане с висококачествени материали. Предлага студио и апартаменти с 1,2 и 3 спални, както и жилища със собствен двор. Разпределенията са изключително функционални, което прави стаите комфортни и лесни за обзавеждане. На всеки етаж ще има от 5 до 8 апартамента.
Апартаментите се издават с качествено завършване по БДС:
- стени - на гипсова шпакловка;
- ел. и ВиК инсталации;
- висок клас дограма;
- добра външна изолация.
Паркирането е осигурено на 100% с надземни паркоместа и гаражи.
Удобства на територията:
- просторна вътрешна градина, богато озеленена;
- очароващи фонтани и пешеходни алеи;
- модерно оборудвана фитнес зала;
- уютна кафетерия;
- приятна зона за отдих;
- детски площадки;
- специални помещения за детски колички и велосипеди.
Комплексът ще бъде изграден с контролиран достъп и 24/7 видеонаблюдение.
Схема на плащане:
- капаро за резервация на апартамента - 1000 евро;
- 15% при подписване на предварителен договор;
- останалите вноски се договарят с всеки клиент индивидуално спрямо неговите възможности.
За повече информация, моля свържете се с нас.
Виж текста на други езици (автоматичен превод)
Местоположение (приблизително)
На картата с червен маркер е указано приблизителното местоположение на имота/комплекса.
Имоти по тип, Пловдив
- Тристайни апартаменти в Пловдив
- Двустайни апартаменти в Пловдив
- Апартаменти (различни типове) в Пловдив
- Четиристайни апартаменти в Пловдив
- Къщи в Пловдив
- Едностайни апартаменти в Пловдив
- Магазини в Пловдив
- Търговски имоти в Пловдив
- Земеделски земи в Пловдив
- Петстайни апартаменти в Пловдив
Популярни търсения
- Селски къщи в България
- Имоти за продажба в Пловдив
- Имоти в Пловдив
- Имоти под наем в Пловдив
- Тристайни апартаменти за продажба в Пловдив
- Двустайни апартаменти за продажба в Пловдив
- Къщи за продажба в Пловдив
- Имоти за продажба в кв.Център, Пловдив
- Едностайни апартаменти за продажба в Пловдив
- Имоти за продажба в кв.Христо Смирненски, Пловдив

